Dự án cải tạo biệt thự Sơn Tây
Sơn Tây
Đã xem: 49
Mã dự án:

- Diện tích: 9 x 13.5 m
- Phòng ngủ: 4
- Số tầng: 2
- Tầng hầm:
- Khách hàng: Mr Thắng
- Địa chỉ: Sơn Tây
- Chi phí đầu tư: 769 triệu
Mô tả dự án
Dự án cải tạo biệt thự tại Sơn Tây là một trong những công trình tiêu biểu mà AHACO thực hiện, mang lại diện mạo hoàn toàn mới cho ngôi nhà cũ. Từ một công trình xuống cấp, kiến trúc thiếu điểm nhấn, biệt thự đã được “lột xác” thành không gian sống sang trọng, tinh tế theo phong cách tân cổ điển.
Phối cảnh ngoại thất dự án cải tạo biệt thự Sơn Tây
Ngôi biệt thự hiện lên với vẻ đẹp sang trọng và đầy cuốn hút ngay từ ánh nhìn đầu tiên, như một bản hòa tấu tinh tế giữa kiến trúc tân cổ điển và hơi thở hiện đại. Toàn bộ ngoại thất được phủ lên gam trắng chủ đạo – một lựa chọn tưởng chừng đơn giản nhưng lại tôn vinh trọn vẹn những đường nét kiến trúc cầu kỳ, khiến công trình trở nên nổi bật và thanh lịch giữa không gian xung quanh.
Phần mặt tiền được thiết kế cân đối, bề thế với hệ cột trụ vuông vức, khỏe khoắn nhưng không hề thô cứng. Những đường phào chỉ được chạm khắc tỉ mỉ chạy dọc theo thân cột và các mảng tường, tạo nên chiều sâu và sự chuyển tiếp mềm mại cho tổng thể. Chính những chi tiết nhỏ này đã góp phần làm nên vẻ đẹp đặc trưng của phong cách tân cổ điển – sang trọng nhưng không phô trương.

Điểm nhấn nổi bật nhất của ngôi nhà chính là hệ cửa vòm lớn ở tầng hai. Khung cửa được bo cong duyên dáng, kết hợp cùng lan can con tiện trắng tạo nên cảm giác nhẹ nhàng, thanh thoát. Khi ánh sáng xuyên qua lớp kính, không gian bên trong như được “thắp sáng”, mang lại sự ấm cúng và gần gũi. Bên cạnh đó, ban công bán nguyệt nhô ra phía trước không chỉ tăng tính thẩm mỹ mà còn tạo thêm chiều sâu, giúp mặt tiền trở nên sinh động hơn.
Mái Nhật được thiết kế giật cấp tinh tế, phủ lớp ngói màu xanh đậm, tạo sự tương phản rõ nét với sắc trắng của tường. Các mái nhỏ đan xen hài hòa, vừa đảm bảo khả năng thoát nước tốt, vừa mang lại cảm giác vững chãi và cân đối. Trên đỉnh mái, những chi tiết trang trí nhỏ được bố trí khéo léo như điểm xuyết thêm nét cổ điển, khiến tổng thể trở nên hoàn thiện hơn.

Khu vực tầng một được bao quanh bởi hệ tường rào chắc chắn, kết hợp cùng những ô thoáng hình vòm mềm mại. Các mảng tường được đục lỗ trang trí, vừa đảm bảo sự riêng tư, vừa giúp không gian không bị bí bách. Cổng chính làm bằng sắt mỹ thuật với hoa văn uốn lượn tinh xảo, mang đến cảm giác an toàn nhưng vẫn giữ được vẻ đẹp sang trọng, đẳng cấp.
Hệ thống đèn ngoại thất được bố trí hợp lý ở các vị trí cột và tường, khi đêm xuống, ánh sáng vàng ấm lan tỏa nhẹ nhàng, làm nổi bật từng chi tiết kiến trúc. Lúc này, ngôi biệt thự không chỉ là nơi để ở mà còn giống như một tác phẩm nghệ thuật sống động, thu hút mọi ánh nhìn.

Xung quanh công trình, những mảng xanh được bố trí khéo léo, tạo sự cân bằng giữa kiến trúc và thiên nhiên. Cây xanh không chỉ làm dịu đi sự cứng cáp của bê tông mà còn mang lại cảm giác thư thái, dễ chịu cho không gian sống.

Tổng thể, ngoại thất của ngôi biệt thự là sự kết hợp hài hòa giữa đường nét cổ điển và công năng hiện đại. Không quá cầu kỳ nhưng đủ tinh xảo, không quá phô trương nhưng vẫn toát lên đẳng cấp – tất cả tạo nên một không gian sống lý tưởng, nơi mỗi góc nhìn đều mang lại cảm giác sang trọng và đầy cảm hứng.
Phối cảnh bóc mái dự án cải tạo biệt thự Sơn Tây
Trong quá trình cải tạo biệt thự Sơn Tây, phương án phối cảnh bóc mái được AHACO áp dụng nhằm giúp gia chủ hình dung rõ ràng kết cấu và công năng bên trong công trình. Đây không chỉ là bản vẽ kỹ thuật mà còn là “chìa khóa” giúp tối ưu toàn bộ quá trình thi công.
Phối cảnh bóc mái là dạng hình ảnh 3D thể hiện công trình khi phần mái được “tách” ra, giúp nhìn trực tiếp vào không gian bên trong từng tầng, từng khu vực.
Nhờ đó, gia chủ có thể:
Quan sát tổng thể bố trí phòng
Hiểu rõ kết cấu mái, dầm, cột
Dễ dàng điều chỉnh trước khi thi công




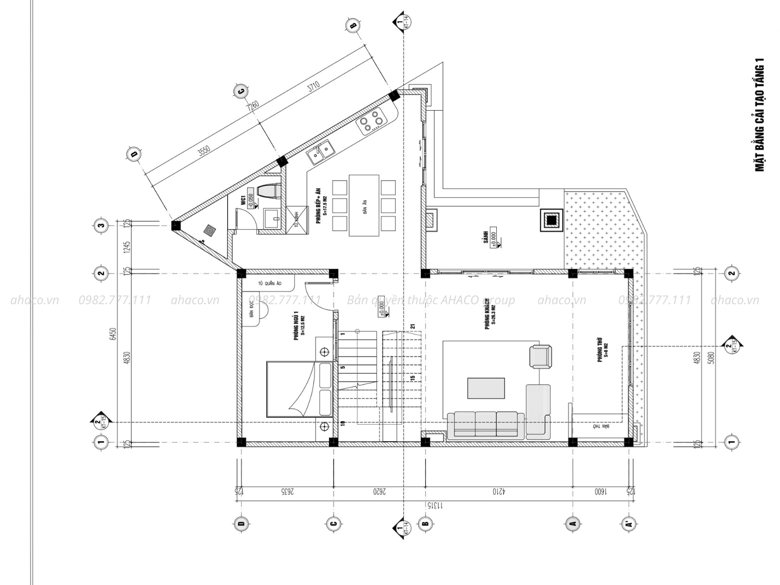
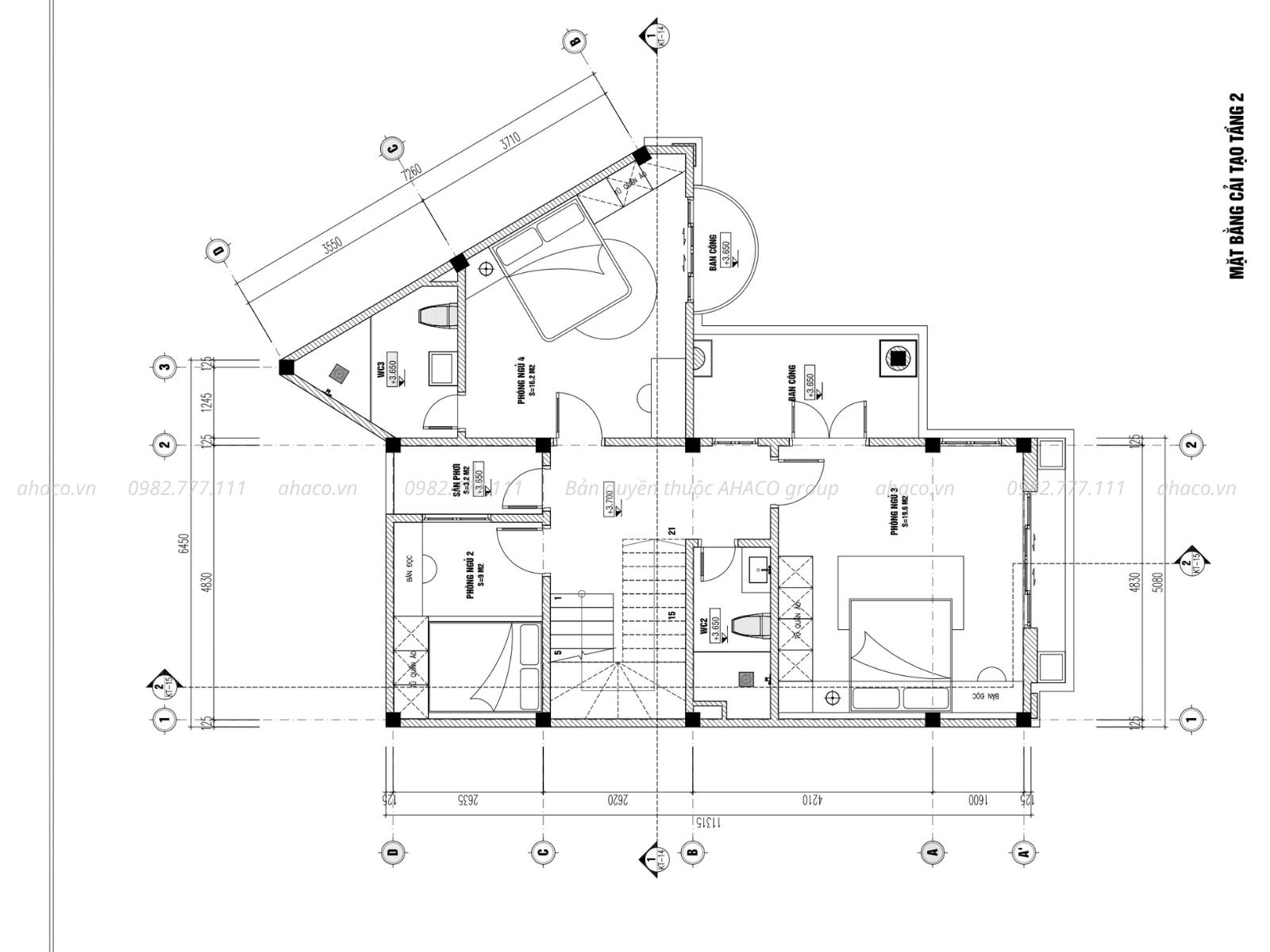
Mặt bằng công năng dự án cải tạo biệt thự Sơn Tây
Chia sẻ với chúng tôi, anh Thắng mong muốn có 1 mẫu biệt thự đẹp đẽ phong cách tân cổ điển. Với 1 diện tích không quá lớn căn biệt thự được xây lùi về phía sau để chừa lại 1 khoảng sân để xe và sinh hoạt của gia đình, hạn chế khói bụi vào nhà. Sau khi khảo sát vị trí khu đất chúng tôi đã thiết kế cho anh mẫu biệt thự 2 tầng đẹp hút hồn với công năng sau đây.
Công năng tầng 1
Phòng khách
Phòng bếp + ăn
Phòng thờ
1 Phòng ngủ
1 WC

Công năng tầng 2
3 Phòng ngủ
2 WC
1 Phòng thay đồ
2 Ban công nhỏ

Bảng khái toán xây thô dự án cải tạo biệt thự Sơn Tây
AHACO – Tiên phong áp dụng công nghệ Bim vào trong bản vẽ thiết kế. Dựa vào bảng dự toán chi phí xây thô, quý vị có thể mua và đặt cọc trước nguyên vật liệu để giữ giá, giúp dự trù kinh phí thực tế để tránh phát sinh trong quá trình thi công. Và còn giúp mình chủ động gọi nguyên vật liệu trong quá trình xây dựng. Như quý vị đang thấy ở đây là bảng dự toán chi phí xây thô của công trình có địa chỉ tại Sơn Tây ; chi phí gạch xây là 54 triệu đồng, chi phí cát xây là 16 triệu, chi phí nhân công xây dựng vào khoảng 268 triệu và tổng chi phí xây thô của công trình này vào khoảng 769 triệu đồng quý vị nhé!

Kết luận
Dự án cải tạo biệt thự Sơn Tây là minh chứng rõ ràng cho việc chỉ cần cải tạo đúng cách, ngôi nhà cũ hoàn toàn có thể trở thành biệt thự cao cấp. Nếu bạn đang có ý định nâng cấp không gian sống, đây chắc chắn là giải pháp đáng cân nhắc.
DỰ ÁN LIÊN QUAN
Mẫu nhà 2 tầng 1 tum mặt tiền 8m
Mr Thế Anh

