Mẫu nhà 3 gian mái nhật 5 phòng ngủ
Phú Thọ
Đã xem: 21
Mã dự án:

- Diện tích: 13 x 16 m
- Phòng ngủ: 5
- Số tầng: 2
- Tầng hầm:
- Khách hàng: Mr Thái
- Địa chỉ: Phú Thọ
- Chi phí đầu tư: 1.69 tỷ
Mô tả dự án
Trong những năm gần đây, mẫu nhà 3 gian mái Nhật 5 phòng ngủ đang trở thành xu hướng được nhiều gia đình Việt lựa chọn. Sự kết hợp giữa kiến trúc truyền thống 3 gian và phong cách mái Nhật hiện đại mang đến không gian sống vừa gần gũi, vừa tiện nghi, phù hợp với gia đình đông người hoặc nhiều thế hệ cùng sinh sống.
Phối cảnh ngoại thất mẫu nhà 3 gian mái nhật 5 phòng ngủ
Ngôi nhà hiện lên như một biểu tượng của sự giao thoa hoàn hảo giữa vẻ đẹp hiện đại và tinh thần Á Đông tinh tế. Ngay từ cái nhìn đầu tiên, công trình đã tạo ấn tượng mạnh mẽ bởi bố cục cân đối, hình khối rõ ràng và đường nét kiến trúc dứt khoát, toát lên phong thái bề thế nhưng không hề phô trương.
Phần mái Nhật chính là điểm nhấn nổi bật nhất của tổng thể. Những lớp mái xếp chồng lên nhau với độ dốc vừa phải, trải rộng theo nhiều hướng, tạo nên một hình khối vững chãi nhưng vẫn mềm mại. Màu ngói xanh than trầm mặc không chỉ giúp ngôi nhà trở nên sang trọng mà còn tạo cảm giác mát mẻ, hài hòa với thiên nhiên xung quanh. Khi nhìn từ trên cao, hệ mái hiện lên như những cánh quạt xòe đều, ôm trọn toàn bộ công trình, vừa có tính thẩm mỹ cao vừa đảm bảo khả năng thoát nước hiệu quả.

Mặt tiền ngôi nhà được thiết kế theo phong cách đối xứng, tạo cảm giác cân bằng và uy nghi. Ở chính giữa là khối sảnh chính nhô ra, được tạo hình bằng một vòm cong mềm mại – chi tiết hiếm thấy trong những mẫu nhà hiện đại, nhưng lại mang đến điểm nhấn đầy tinh tế. Bên trong vòm là hệ cửa kính lớn, phản chiếu ánh sáng tự nhiên và mở ra không gian nội thất ấm cúng bên trong. Hai bên sảnh là các khối nhà được xử lý khéo léo với những mảng tường đan xen giữa màu trắng chủ đạo và các mảng ốp xám đậm, tạo chiều sâu và sự tương phản đầy cuốn hút.

Bậc tam cấp dẫn lên sảnh chính được thiết kế rộng rãi, trải dài theo chiều ngang của ngôi nhà, tạo cảm giác bề thế như một biệt thự nghỉ dưỡng. Những đường viền sắc nét ở bậc thềm kết hợp với hệ đèn âm sàn tạo nên hiệu ứng ánh sáng lung linh khi về đêm, khiến ngôi nhà trở nên nổi bật giữa không gian xung quanh.
Tầng một mang dáng dấp vững chắc với hệ cửa chính lớn, thiết kế dạng cửa đôi màu tối, tạo cảm giác sang trọng và kín đáo. Hai bên là những ô cửa sổ lớn, sử dụng kính trong suốt kết hợp khung nhôm tối màu, vừa giúp lấy sáng tối đa vừa giữ được sự hiện đại trong tổng thể thiết kế. Dưới các ô cửa là những bồn cây xanh nhỏ được bố trí tinh tế, mang lại sức sống và sự gần gũi với thiên nhiên.
Lên đến tầng hai, không gian trở nên nhẹ nhàng và thoáng đãng hơn với hệ ban công rộng. Ban công trung tâm được thiết kế như một góc thư giãn lý tưởng, nơi gia chủ có thể đặt những bộ bàn ghế nhỏ, thưởng trà hay ngắm cảnh. Hai bên ban công là những chậu cây xanh được bố trí khéo léo, vừa tạo điểm nhấn vừa giúp cân bằng không gian. Lan can được thiết kế đơn giản với các đường nét gọn gàng, không cầu kỳ nhưng vẫn đủ tinh tế để tôn lên vẻ đẹp chung.
Các khối nhà hai bên tầng hai được xử lý với những mảng tường ốp vật liệu khác nhau, tạo nên sự đa dạng trong thị giác. Một bên sử dụng tông trắng nhẹ nhàng, bên còn lại là mảng xám đậm mạnh mẽ, kết hợp cùng hệ cửa kính lớn giúp không gian luôn tràn ngập ánh sáng tự nhiên. Sự đối lập này không hề gây rối mắt mà ngược lại, còn làm nổi bật cá tính kiến trúc của công trình.

Bao quanh ngôi nhà là khoảng sân rộng rãi, được lát gạch tối màu, tạo nên một nền tảng vững chắc và sạch sẽ. Khu vực sân không chỉ là nơi để xe mà còn có thể tận dụng làm không gian sinh hoạt ngoài trời, tổ chức những buổi tụ họp gia đình. Những hàng cây xanh và tiểu cảnh được bố trí dọc theo các cạnh nhà giúp làm mềm không gian, đồng thời tạo cảm giác gần gũi, thư thái.
Nhìn từ góc trên cao, tổng thể ngôi nhà hiện lên như một khu biệt thự thu nhỏ, nổi bật giữa khu dân cư xung quanh. Các khối mái đan xen, các khoảng đua ra – thụt vào hợp lý tạo nên một tổng thể kiến trúc sống động, không bị đơn điệu. Những khoảng ban công, ô cửa và sân vườn nhỏ được bố trí xen kẽ giúp công trình luôn thông thoáng và có chiều sâu.
Ánh sáng cũng là một yếu tố được xử lý rất tinh tế trong thiết kế này. Hệ đèn âm trần được bố trí dưới mái hiên, kết hợp với đèn tường và đèn sân, tạo nên một bức tranh ánh sáng ấm áp khi đêm xuống. Khi đó, ngôi nhà không chỉ là nơi để ở mà còn trở thành một không gian sống đầy cảm xúc, nơi ánh sáng và kiến trúc hòa quyện vào nhau.

Tổng thể, ngôi nhà không chỉ đơn thuần là một công trình xây dựng mà còn là sự thể hiện gu thẩm mỹ và phong cách sống của gia chủ. Từ mái Nhật thanh thoát, mặt tiền cân đối, cho đến từng chi tiết nhỏ như bồn cây, lan can hay hệ thống chiếu sáng – tất cả đều được chăm chút tỉ mỉ. Đây là một không gian sống lý tưởng, nơi mỗi góc nhỏ đều mang lại cảm giác bình yên, tiện nghi và đẳng cấp.
Phối cảnh bóc mái mẫu nhà 3 gian mái nhật 5 phòng ngủ
Phối cảnh bóc mái là một dạng thể hiện kiến trúc giúp người xem nhìn rõ toàn bộ cấu trúc không gian bên trong ngôi nhà từ góc nhìn tổng thể. Với các công trình do AHACO thực hiện, phối cảnh bóc mái có nhiều điểm khác biệt nổi bật so với cách thể hiện thông thường.
1. Thể hiện rõ cấu trúc không gian bên trong
Khác với phối cảnh ngoại thất chỉ nhìn thấy mặt ngoài, phối cảnh bóc mái của AHACO loại bỏ phần mái để người xem có thể quan sát trực tiếp cách bố trí các tầng. Nhờ đó, khách hàng dễ dàng hình dung được vị trí phòng khách, bếp, phòng ngủ, cầu thang hay khu sinh hoạt chung trong ngôi nhà.
2. Góc nhìn 3D trực quan như một “ngôi nhà thu nhỏ”
Phối cảnh bóc mái được dựng theo góc nhìn 3D từ trên cao, giống như một mô hình nhà thu nhỏ. Cách thể hiện này giúp gia chủ nhìn tổng thể công trình một cách sinh động và dễ hiểu hơn so với bản vẽ mặt bằng 2D truyền thống.
3. Kết hợp cả kiến trúc và cảnh quan
Một điểm đặc biệt trong phối cảnh bóc mái của AHACO là không chỉ thể hiện công trình mà còn mô phỏng thêm cảnh quan xung quanh như sân vườn, cây xanh, đường giao thông. Điều này giúp khách hàng hình dung rõ hơn ngôi nhà sau khi hoàn thiện sẽ hài hòa với môi trường xung quanh như thế nào.
4. Hỗ trợ khách hàng dễ điều chỉnh thiết kế
Nhờ nhìn rõ toàn bộ không gian bên trong, khách hàng có thể dễ dàng nhận ra các điểm chưa phù hợp để yêu cầu điều chỉnh trước khi thi công. Điều này giúp hạn chế sai sót, tiết kiệm chi phí sửa đổi trong quá trình xây dựng.
5. Công cụ marketing hiệu quả cho khách hàng
Phối cảnh bóc mái không chỉ phục vụ kỹ thuật mà còn giúp khách hàng dễ dàng chia sẻ hình ảnh ngôi nhà của mình. Những hình ảnh trực quan, sinh động giúp người xem nhanh chóng hiểu được cấu trúc và công năng của công trình.





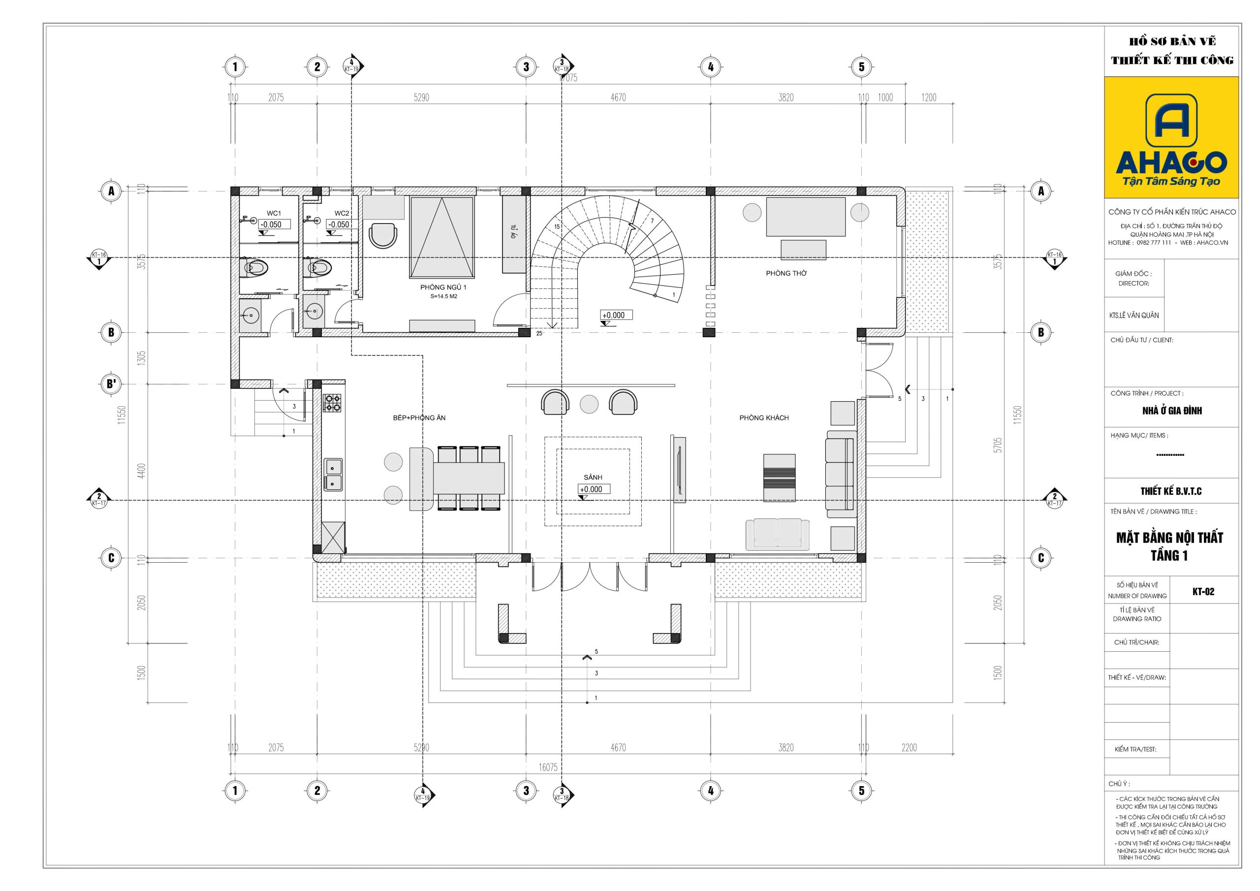
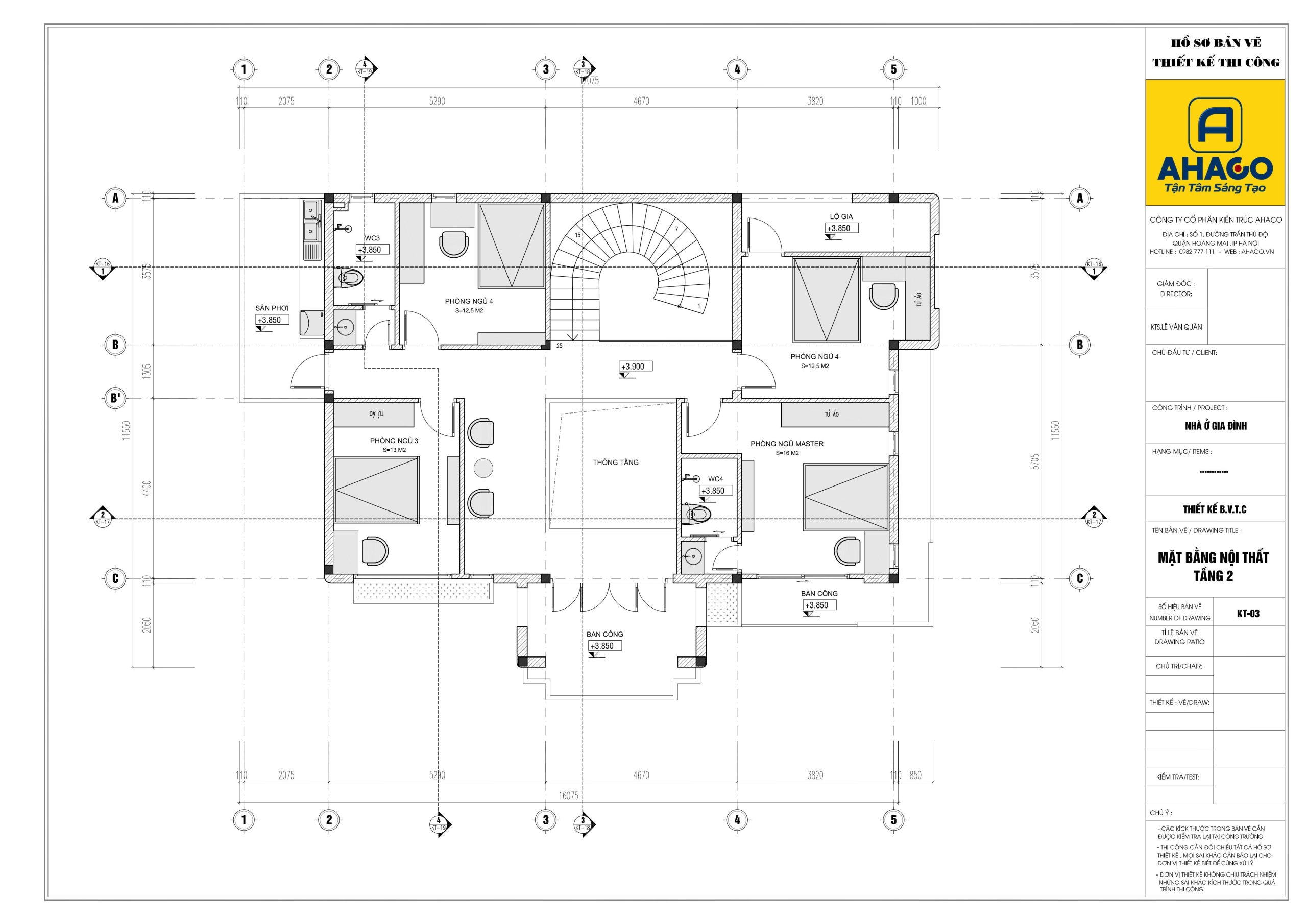
Mặt bằng công năng mẫu nhà 3 gian mái nhật 5 phòng ngủ
Mẫu nhà này được kiến trúc sư AHACO tối ưu công năng, bố trí nội thất khoa học, đảm bảo tiện nghi cho từng thành viên trong gia đình.
Công năng tầng 1
Phòng khách + bếp
Phòng ăn
1 Phòng ngủ
Phòng thờ
2 WC

Công năng tầng 2
Sân phơi
4 Phòng ngủ
1 WC

Bảng khái toán xây thô mẫu nhà 3 gian mái nhật 5 phòng ngủ
AHACO – Tiên phong áp dụng công nghệ Bim vào trong bản vẽ thiết kế . Dựa vào bảng dự toán chi phí xây thô, quý vị có thể mua và đặt cọc trước nguyên vật liệu để giữ giá, giúp dự trù kinh phí thực tế để tránh phát sinh trong quá trình thi công. Và còn giúp mình chủ động gọi nguyên vật liệu trong quá trình xây dựng. Như quý vị đang thấy ở đây là bảng dự toán chi phí xây thô của công trình có địa chỉ tại Phú Thọ ; chi phí gạch xây là 124 triệu đồng, chi phí cát xây là 36 triệu, chi phí thép xây khoảng 230 triệu, chi phí nhân công xây dựng vào khoảng 549 triệu và tổng chi phí xây thô của công trình này vào khoảng 1 tỷ 696 triệu đồng quý vị nhé!

Kết luận
Mẫu nhà 3 gian mái Nhật 5 phòng ngủ là lựa chọn lý tưởng cho gia đình đông thành viên, yêu thích sự kết hợp giữa truyền thống và hiện đại. Không chỉ mang lại không gian sống tiện nghi, mẫu nhà này còn có tính thẩm mỹ cao, chi phí hợp lý và phù hợp với nhiều khu đất tại Việt Nam.
DỰ ÁN LIÊN QUAN
Mẫu nhà 2 tầng 1 tum mặt tiền 8m
Mr Thế Anh

