Mẫu nhà cấp 4 mái bằng 3 phòng ngủ tối ưu chi phí
Hải Phòng
Đã xem: 10
Mã dự án:

- Diện tích: 8 x 13 m
- Phòng ngủ: 2
- Số tầng: 1
- Tầng hầm:
- Khách hàng: Mr Hiểu
- Địa chỉ: Hải Phòng
- Chi phí đầu tư: 609 triệu
Mô tả dự án
Chiêm ngưỡng mẫu nhà cấp 4 mái bằng 3 phòng ngủ với thiết kế sang trọng, tối ưu diện tích. Giải pháp xây dựng tiết kiệm cho gia đình trẻ. Xem ngay phối cảnh và báo giá!
Phối cảnh ngoại thất mẫu nhà cấp 4 mái bằng 3 phòng ngủ tối ưu chi phí
Mẫu nhà cấp 4 mái bằng hiện đại này hiện lên như một biểu tượng của sự tinh tế và năng động, rất phù hợp với nhịp sống của các gia đình trẻ hiện nay.
Ngay từ cái nhìn đầu tiên, ngôi nhà gây ấn tượng bởi hệ thống hình khối vuông vắn, khỏe khoắn nhưng không hề khô cứng. Toàn bộ công trình được bao phủ bởi sắc trắng sứ chủ đạo, tạo nên một cảm giác thanh khiết và mở rộng không gian. Điểm nhấn đắt giá nhất chính là những đường kẻ chỉ và mảng tường màu xanh navy chạy dọc theo viền mái và thân cột. Sự kết hợp giữa hai tông màu đối lập này không chỉ giúp ngôi nhà trở nên nổi bật giữa không gian xung quanh mà còn mang lại vẻ đẹp đậm chất kiến trúc hiện đại, sang trọng.
Mặt tiền của ngôi nhà được chăm chút kỹ lưỡng với hệ cột trụ vững chãi. Phần chân cột và bậc tam cấp được ốp đá vân mây đen sáng bóng, tạo nên sự tương phản mạnh mẽ với nền tường trắng, đồng thời giúp bảo vệ công trình khỏi tác động của thời tiết và rêu mốc. Hệ cửa chính và cửa sổ sử dụng khung nhôm kính xingfa màu đen cao cấp, không chỉ bền bỉ mà còn giúp tối ưu hóa ánh sáng tự nhiên, khiến không gian nội thất bên trong luôn tràn ngập sức sống và thông thoáng.



Nhìn từ trên cao, phần mái bằng được thiết kế giật cấp nhẹ nhàng, tạo chiều sâu cho thị giác. Phần sân thượng phẳng phiu không chỉ là nơi đặt bồn nước tiện lợi mà còn mở ra cơ hội để gia chủ biến tấu thành một khu vườn nhỏ hoặc không gian thư giãn lý tưởng. Phía trước hiên nhà, một bồn hoa nhỏ được thiết kế tinh xảo với những khóm cây xanh mướt, mang lại hơi thở thiên nhiên tươi mát, làm dịu đi những đường nét góc cạnh của bê tông cốt thép.

Tổng thể ngoại thất của công trình là một bản giao hưởng hài hòa giữa màu sắc, ánh sáng và đường nét kiến trúc. Đây không chỉ là một nơi để che mưa che nắng, mà còn là một tác phẩm nghệ thuật thể hiện gu thẩm mỹ tinh tế và khát vọng về một tổ ấm bình yên, hiện đại của gia chủ.
Phối cảnh bóc mái mẫu nhà cấp 4 mái bằng 3 phòng ngủ tối ưu chi phí
Phối cảnh bóc mái không chỉ là bản vẽ minh họa mà còn là “câu chuyện” về cuộc sống tương lai của gia chủ được thể hiện bằng hình ảnh trực quan và sinh động. Thông qua phối cảnh, từng đường nét kiến trúc, màu sắc, ánh sáng và cách bố trí không gian được tái hiện rõ ràng, giúp gia chủ dễ dàng hình dung ngôi nhà của mình trước khi bắt đầu xây dựng.
Với AHACO, mỗi bản phối cảnh được thực hiện dựa trên sự kết hợp giữa thẩm mỹ kiến trúc, công năng sử dụng và cá tính riêng của gia chủ. Từ mặt tiền hiện đại, tinh tế đến không gian nội thất ấm cúng, tất cả đều được tính toán hài hòa để tạo nên một tổng thể thống nhất và bền vững theo thời gian.
Phối cảnh không gian còn giúp gia chủ:
Dễ dàng điều chỉnh thiết kế trước khi thi công
Tối ưu chi phí xây dựng
Đảm bảo công trình hoàn thiện đúng với mong muốn ban đầu
AHACO tin rằng, một bản phối cảnh đẹp không chỉ giúp khách hàng “nhìn thấy” ngôi nhà tương lai, mà còn mang lại sự yên tâm và cảm hứng trong suốt hành trình xây dựng tổ ấm.



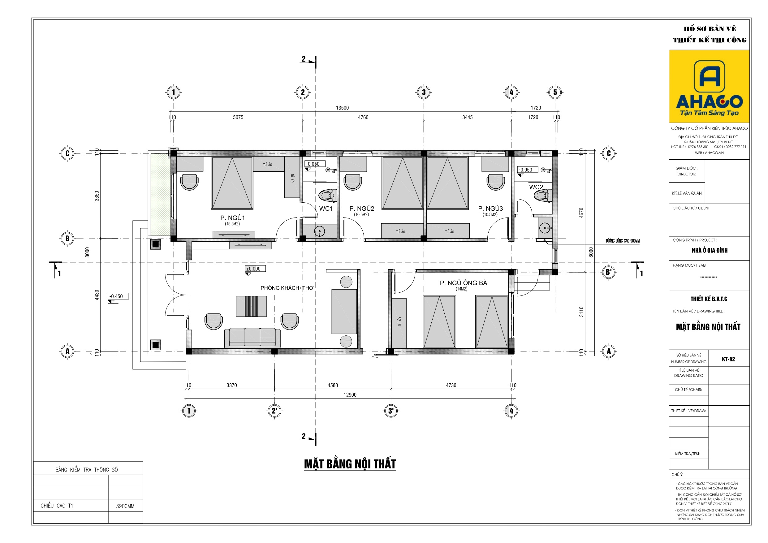
Mặt bằng mẫu nhà cấp 4 mái bằng 3 phòng ngủ tối ưu chi phí
Mẫu nhà này được kiến trúc sư AHACO tối ưu công năng, bố trí nội thất khoa học, đảm bảo tiện nghi cho từng thành viên trong gia đình.
Công năng tầng 1
Phòng khách + bếp
Phòng ăn
3 Phòng ngủ
2 WC

Bảng khái toán xây thô mẫu nhà cấp 4 mái bằng 3 phòng ngủ tối ưu chi phí
So với các mẫu nhà cao tầng, mẫu nhà 1 tầng 3 phòng ngủ có chi phí xây dựng thấp hơn, phù hợp với nhiều đối tượng gia đình. AHACO áp dụng công nghệ Bim vào trong bản vẽ thiết kế giúp quý vị xây nhà nhàn tênh, đọc bản vẽ dễ hiểu dễ giám sát thợ cho dù không có chuyên môn và đặc biệt công nghệ này giúp thống kê được các nguyên vật liệu cần dùng và số lượng chính xác để gia chủ kiểm soát tốt hơn chi phí xây dựng của ngôi nhà với các số liệu được cập nhật kịp thời, cụ thể và rõ ràng. Dựa vào bảng dự toán thô quý vị có thể mua đặt cọc trước vật liệu để giữ giá, giúp dự trù được kinh phí thực tế, để tránh phát sinh trong quá trình xây dựng, và còn giúp mình có thể chủ động gọi vật liệu trong quá trình thi công. Như quý vị đang thấy ở đây là bảng dự toán chi phí xây thô của công trình tại HẢI PHÒNG : Chi phí gạch xây khoảng 43 triệu, chi phí cát xây là 12 triệu đồng, chi phí nhân công xây dựng là 163 triệu, và tổng chi phí xây thô của công trình vào khoảng 610 triệu đồng quý vị nhé!

Kết luận :
Nhìn một cách tổng thể, mẫu nhà cấp 4 mái bằng 3 phòng ngủ này là minh chứng rõ nét cho việc không cần quá cầu kỳ, rườm rà vẫn có thể tạo nên một không gian sống đẳng cấp và đầy lôi cuốn. Sự kết hợp khéo léo giữa tông màu trắng – xanh navy thời thượng cùng các vật liệu hiện đại như nhôm kính và đá vân mây đã tạo nên một diện mạo vừa khỏe khoắn, vừa thanh lịch.
Đây không chỉ là phương án tối ưu về mặt kinh phí xây dựng mà còn là giải pháp hoàn hảo cho bài toán công năng của những gia đình đông thành viên. Với lối thiết kế thông minh, chú trọng vào sự thông thoáng và tính bền vững, ngôi nhà hứa hẹn sẽ mang lại một không gian sống tiện nghi, thư thái và là niềm tự hào của gia chủ trong suốt nhiều năm tới. Nếu bạn đang tìm kiếm một tổ ấm hiện đại, tiết kiệm mà vẫn mang đậm dấu ấn cá nhân, thì đây chắc chắn là một hình mẫu lý tưởng để hiện thực hóa ước mơ về ngôi nhà hạnh phúc.
DỰ ÁN LIÊN QUAN
Mẫu nhà 2 tầng 1 tum mặt tiền 8m
Mr Thế Anh

