Mẫu nhà ống 1 tầng 4 phòng ngủ mặt tiền 5m
Gia Lai
Đã xem: 17
Mã dự án:

- Diện tích: 5 x 30 m
- Phòng ngủ: 4
- Số tầng: 1
- Tầng hầm:
- Khách hàng: Mr Sơn
- Địa chỉ: Gia Lai
- Chi phí đầu tư: 710 triệu
Mô tả dự án
Bạn đang sở hữu mảnh đất có mặt tiền 5m và mong muốn xây dựng một không gian sống đủ cho 3 thế hệ? Mẫu nhà ống 1 tầng 4 phòng ngủ mặt tiền 5m chính là giải pháp hoàn hảo giúp tiết kiệm chi phí xây dựng mà vẫn đảm bảo sự riêng tư cho từng thành viên.
Phối cảnh ngoại thất mẫu nhà ống 1 tầng 4 phòng ngủ mặt tiền 5m
Nằm yên bình dưới bầu trời xanh trong, ngôi nhà ống 1 tầng hiện lên với vẻ đẹp hiện đại, thanh lịch và vô cùng cuốn hút. Tổng thể kiến trúc là sự kết hợp hài hòa giữa những khối hình vuông vức, đường nét dứt khoát và tông màu trang nhã, tạo nên một không gian sống đậm chất thời thượng.
Gây ấn tượng ngay từ cái nhìn đầu tiên chính là mặt tiền của ngôi nhà. Sự phối hợp ăn ý giữa màu trắng chủ đạo và những điểm nhấn màu đen cá tính tạo nên sức hút khó cưỡng. Mảng tường ốp đá thẻ màu xám đen bên phải không chỉ mang lại vẻ sang trọng, mạnh mẽ mà còn là nét chấm phá độc đáo giữa không gian hiện đại. Hệ thống cửa chính và cửa sổ sử dụng khung nhôm kính xám đen bền bỉ, giúp lấy ánh sáng tự nhiên tối đa, tạo sự thông thoáng cho ngôi nhà và gắn kết không gian sống với thiên nhiên. Điểm xuyết cho mặt tiền là những dải đèn led âm trần tỏa ánh sáng vàng ấm áp, tô điểm thêm vẻ lung linh, huyền ảo cho ngôi nhà khi màn đêm buông xuống.



Nhìn từ trên cao, ngôi nhà ống nổi bật với mái bằng vững chãi, được sơn màu xanh dương trẻ trung, năng động. Điểm nhấn đặc biệt trên sân thượng là hệ thống năng lượng mặt trời hiện đại, không chỉ giúp tiết kiệm điện năng mà còn thể hiện lối sống xanh, thân thiện với môi trường của gia chủ. Cùng với đó là bồn chứa nước, đảm bảo nguồn nước sinh hoạt ổn định cho gia đình.
Lối vào nhà được thiết kế rộng rãi với bậc tam cấp ốp đá đen sang trọng. Hai bên lối đi được trang trí bằng những chậu hoa nhỏ xinh, tạo cảm giác gần gũi và tươi mới. Một góc nhỏ phía trước nhà được tận dụng để đỗ xe, tiện lợi cho việc di chuyển của gia đình. Xung quanh ngôi nhà được bao bọc bởi hàng rào kiên cố, vừa đảm bảo an ninh vừa tôn lên vẻ đẹp riêng của công trình. Sự xuất hiện của cây cối xanh tươi mang lại cảm giác bình yên, thư thái, biến ngôi nhà trở thành tổ ấm lý tưởng để tận hưởng cuộc sống.

Mẫu nhà ống 1 tầng này không chỉ là một công trình kiến trúc đẹp mắt mà còn là một không gian sống tiện nghi, hiện đại và tràn đầy sức sống. Sự kết hợp hoàn hảo giữa thiết kế, màu sắc và công năng sử dụng đã tạo nên một tổ ấm lý tưởng, hứa hẹn mang lại những trải nghiệm sống tuyệt vời cho gia đình.
Phối cảnh bóc mái mẫu nhà ống 1 tầng 4 phòng ngủ mặt tiền 5m
Khác với những bản vẽ 2D thông thường, hình ảnh bóc mái 3D giúp quý khách hàng dễ dàng hình dung toàn bộ dòng chảy không gian trong ngôi nhà. Với chiều dài sâu đặc trưng của nhà ống, AHACO đã khéo léo sắp xếp các phân khu chức năng theo một mạch giao thông xuyên suốt và logic:
Không gian đối ngoại: Phòng khách (1) và phòng thờ (2) được đặt trang trọng ngay đầu nhà, đón trọn ánh sáng từ hệ cửa chính lớn.
Trái tim của ngôi nhà: Phòng bếp kết hợp bàn ăn (3) được thiết kế hiện đại, là nơi kết nối các thành viên trong gia đình.
Khu vực nghỉ ngơi riêng tư: 4 phòng ngủ (4, 6, 7, 8) được bố trí tiếp nối nhau, xen kẽ là các nhà vệ sinh (5, 9) giúp tối ưu hóa diện tích sử dụng và đảm bảo tính riêng tư tuyệt đối cho từng thành viên.




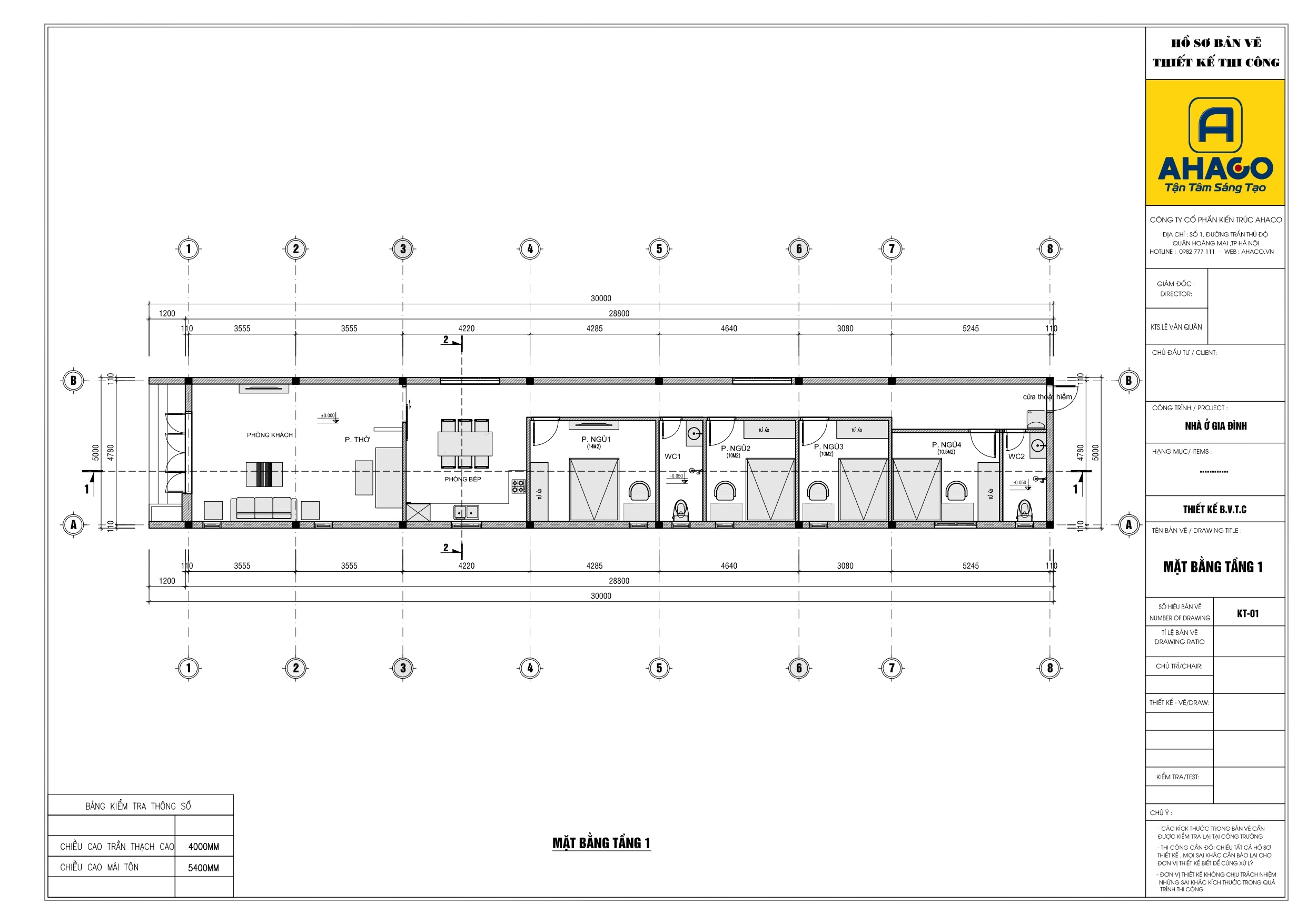
Mặt bằng công năng mẫu nhà ống 1 tầng 4 phòng ngủ mặt tiền 5m
Bước vào ngôi nhà, cảm giác đầu tiên là sự rộng rãi và thông suốt. Với tổng diện tích sàn khoảng 150m², các kiến trúc sư đã khéo léo phân chia không gian thành hai khu vực rõ rệt: khu vực sinh hoạt chung sôi động phía trước và khu vực nghỉ ngơi riêng tư, yên tĩnh phía sau.
1. Khu Vực Sinh Hoạt Chung (Phòng Khách – Thờ – Bếp)
Điểm chạm đầu tiên là Phòng Khách rộng mở, nơi tiếp khách và sum họp gia đình. Ngay sát bên là không gian Phòng Thờ được bố trí trang trọng, đảm bảo tính tâm linh và phong thủy truyền thống của người Việt.
Tiếp nối là khu vực Phòng Bếp và Bàn Ăn. Đây được xem là “trái tim” của ngôi nhà, nằm ở vị trí trung tâm (trục 3-4), giúp kết nối mọi thành viên. Việc đặt bàn ăn ngay cạnh khu vực nấu nướng tạo ra sự thuận tiện tối đa trong sinh hoạt hàng ngày.
2. Hành Lang Giao Thông và Các Phòng Ngủ
Điểm ấn tượng nhất của bản vẽ chính là dãy 4 Phòng Ngủ (P. Ngủ 01 đến 04) được xếp dọc theo chiều dài ngôi nhà.
Phòng ngủ 1: Nằm gần khu vực bếp, phù hợp cho người lớn tuổi hoặc chủ nhà để tiện quán xuyến.
Phòng ngủ 2, 3, 4: Được thiết kế đồng nhất, riêng tư. Mỗi phòng đều có cửa sổ hoặc khoảng thoáng để lấy sáng tự nhiên.
Cách bố trí này giúp tận dụng tối đa chiều dài 30m, biến ngôi nhà thành một “tổ hợp” nghỉ ngơi hoàn chỉnh cho gia đình nhiều thế hệ.
3. Hệ Thống Tiện Ích và Vệ Sinh
Ngôi nhà được trang bị 2 Nhà Vệ Sinh (WC) chiến lược:
WC1: Nằm giữa phòng ngủ 1 và 2, phục vụ chung cho khu vực sinh hoạt chính và các phòng ngủ phía trước.
WC2: Nằm ở cuối nhà, cạnh phòng ngủ cuối cùng, đảm bảo sự kín đáo và tiện lợi cho các thành viên ở khu vực phía sau.

Bảng khái toán xây thô mẫu nhà ống 1 tầng 4 phòng ngủ mặt tiền 5m
So với các mẫu nhà cao tầng, mẫu nhà 1 tầng 4 phòng ngủ có chi phí xây dựng thấp hơn, phù hợp với nhiều đối tượng gia đình. AHACO áp dụng công nghệ Bim vào trong bản vẽ thiết kế giúp quý vị xây nhà nhàn tênh, đọc bản vẽ dễ hiểu dễ giám sát thợ cho dù không có chuyên môn và đặc biệt công nghệ này giúp thống kê được các nguyên vật liệu cần dùng và số lượng chính xác để gia chủ kiểm soát tốt hơn chi phí xây dựng của ngôi nhà với các số liệu được cập nhật kịp thời, cụ thể và rõ ràng. Dựa vào bảng dự toán thô quý vị có thể mua đặt cọc trước vật liệu để giữ giá, giúp dự trù được kinh phí thực tế, để tránh phát sinh trong quá trình xây dựng, và còn giúp mình có thể chủ động gọi vật liệu trong quá trình thi công. Như quý vị đang thấy ở đây là bảng dự toán chi phí xây thô của công trình tại GIA LAI : Chi phí gạch xây khoảng 51 triệu, chi phí cát xây là 15 triệu đồng, chi phí nhân công xây dựng là 180 triệu, và tổng chi phí xây thô của công trình vào khoảng 710 triệu đồng quý vị nhé!

Kết luận
Mẫu nhà ống 1 tầng 4 phòng ngủ mặt tiền 5m là bài toán kinh tế thông minh cho các gia đình đông thành viên nhưng ngân sách có hạn. Chỉ cần một chút khéo léo trong việc bố trí giếng trời và lựa chọn nội thất, bạn sẽ có ngay một không gian sống lý tưởng.
DỰ ÁN LIÊN QUAN
Mẫu nhà 2 tầng 1 tum mặt tiền 8m
Mr Thế Anh

