Mẫu nhà 2 tầng 1 tum ở Ứng Hòa
Ứng Hòa
Đã xem: 47
Mã dự án:

- Diện tích: 7 x 11 m
- Phòng ngủ: 4
- Số tầng: 3
- Tầng hầm:
- Khách hàng: Mr Hoạch
- Địa chỉ: Ứng Hòa
- Chi phí đầu tư: 886 triệu
Mô tả dự án
Trong những năm gần đây, nhu cầu xây dựng nhà ở tại khu vực ngoại thành Hà Nội ngày càng tăng, đặc biệt là tại Ứng Hòa. Những mẫu nhà 2 tầng 1 tum đang trở thành lựa chọn phổ biến nhờ thiết kế hiện đại, tối ưu diện tích và đáp ứng đầy đủ công năng cho gia đình nhiều thế hệ. Dưới đây là mẫu nhà 2 tầng 1 tum nổi bật với kiến trúc tinh tế, phù hợp với xu hướng nhà ở năm 2026.
Phối cảnh ngoại thất mẫu nhà 2 tầng 1 tum ở Ứng Hòa
Ngoại thất của mẫu nhà 2 tầng 1 tum tại Ứng Hòa gây ấn tượng mạnh với phong cách kiến trúc hiện đại, tối giản nhưng vẫn toát lên vẻ sang trọng và tinh tế. Tổng thể công trình được thiết kế theo dạng khối vuông vức, sử dụng các đường nét kiến trúc dứt khoát, mang lại cảm giác chắc chắn và khỏe khoắn cho ngôi nhà.
Mặt tiền ngôi nhà nổi bật với sự kết hợp hài hòa giữa gam màu trắng chủ đạo và các mảng ốp giả gỗ ấm áp. Những mảng tường ốp gỗ được bố trí khéo léo tại khu vực ban công tầng hai giúp tạo điểm nhấn nổi bật, đồng thời làm tăng chiều sâu thẩm mỹ cho toàn bộ công trình. Bên cạnh đó, các chi tiết ốp đá màu xám ở trục tường đứng giúp cân bằng màu sắc và mang lại cảm giác hiện đại, vững chãi.

Hệ thống ban công được thiết kế rộng rãi với lan can kính cường lực trong suốt, không chỉ tăng tính thẩm mỹ mà còn giúp mở rộng tầm nhìn, tạo cảm giác thông thoáng cho không gian bên trong. Tại các ban công và sân thượng, kiến trúc sư bố trí nhiều chậu cây xanh trang trí, mang đến sự gần gũi với thiên nhiên và giúp ngôi nhà trở nên sinh động hơn.
Tầng tum được thiết kế gọn gàng phía trên với phần sân thượng rộng rãi. Đây là khu vực lý tưởng để gia chủ trồng cây cảnh, đặt bàn trà thư giãn hoặc tận dụng làm không gian sinh hoạt ngoài trời. Hệ thống đèn âm trần được bố trí dưới mái đua và ban công giúp công trình trở nên nổi bật và lung linh khi về đêm.

Khu vực tầng một được thiết kế với cổng sắt sơn tĩnh điện chắc chắn, mang lại sự an toàn và riêng tư cho gia đình. Các cửa sổ và cửa chính sử dụng hệ cửa kính khung nhôm lớn giúp tận dụng tối đa ánh sáng tự nhiên, đồng thời tạo sự kết nối hài hòa giữa không gian trong nhà và cảnh quan bên ngoài.


Nhìn tổng thể, mẫu nhà 2 tầng 1 tum tại Ứng Hòa là sự kết hợp hoàn hảo giữa tính thẩm mỹ hiện đại và công năng tiện nghi. Thiết kế không chỉ đáp ứng nhu cầu sinh hoạt của gia đình mà còn mang đến một không gian sống thoáng đãng, xanh mát và đầy cảm hứng.
Phối cảnh bóc mái mẫu nhà 2 tầng 1 tum ở Ứng Hòa
Phối cảnh bóc mái là một dạng thể hiện kiến trúc giúp người xem nhìn rõ toàn bộ cấu trúc không gian bên trong ngôi nhà từ góc nhìn tổng thể. Với các công trình do AHACO thực hiện, phối cảnh bóc mái có nhiều điểm khác biệt nổi bật so với cách thể hiện thông thường.
1. Thể hiện rõ cấu trúc không gian bên trong
Khác với phối cảnh ngoại thất chỉ nhìn thấy mặt ngoài, phối cảnh bóc mái của AHACO loại bỏ phần mái để người xem có thể quan sát trực tiếp cách bố trí các tầng. Nhờ đó, khách hàng dễ dàng hình dung được vị trí phòng khách, bếp, phòng ngủ, cầu thang hay khu sinh hoạt chung trong ngôi nhà.
2. Góc nhìn 3D trực quan như một “ngôi nhà thu nhỏ”
Phối cảnh bóc mái được dựng theo góc nhìn 3D từ trên cao, giống như một mô hình nhà thu nhỏ. Cách thể hiện này giúp gia chủ nhìn tổng thể công trình một cách sinh động và dễ hiểu hơn so với bản vẽ mặt bằng 2D truyền thống.
3. Kết hợp cả kiến trúc và cảnh quan
Một điểm đặc biệt trong phối cảnh bóc mái của AHACO là không chỉ thể hiện công trình mà còn mô phỏng thêm cảnh quan xung quanh như sân vườn, cây xanh, đường giao thông. Điều này giúp khách hàng hình dung rõ hơn ngôi nhà sau khi hoàn thiện sẽ hài hòa với môi trường xung quanh như thế nào.
4. Hỗ trợ khách hàng dễ điều chỉnh thiết kế
Nhờ nhìn rõ toàn bộ không gian bên trong, khách hàng có thể dễ dàng nhận ra các điểm chưa phù hợp để yêu cầu điều chỉnh trước khi thi công. Điều này giúp hạn chế sai sót, tiết kiệm chi phí sửa đổi trong quá trình xây dựng.
5. Công cụ marketing hiệu quả cho khách hàng
Phối cảnh bóc mái không chỉ phục vụ kỹ thuật mà còn giúp khách hàng dễ dàng chia sẻ hình ảnh ngôi nhà của mình. Những hình ảnh trực quan, sinh động giúp người xem nhanh chóng hiểu được cấu trúc và công năng của công trình.





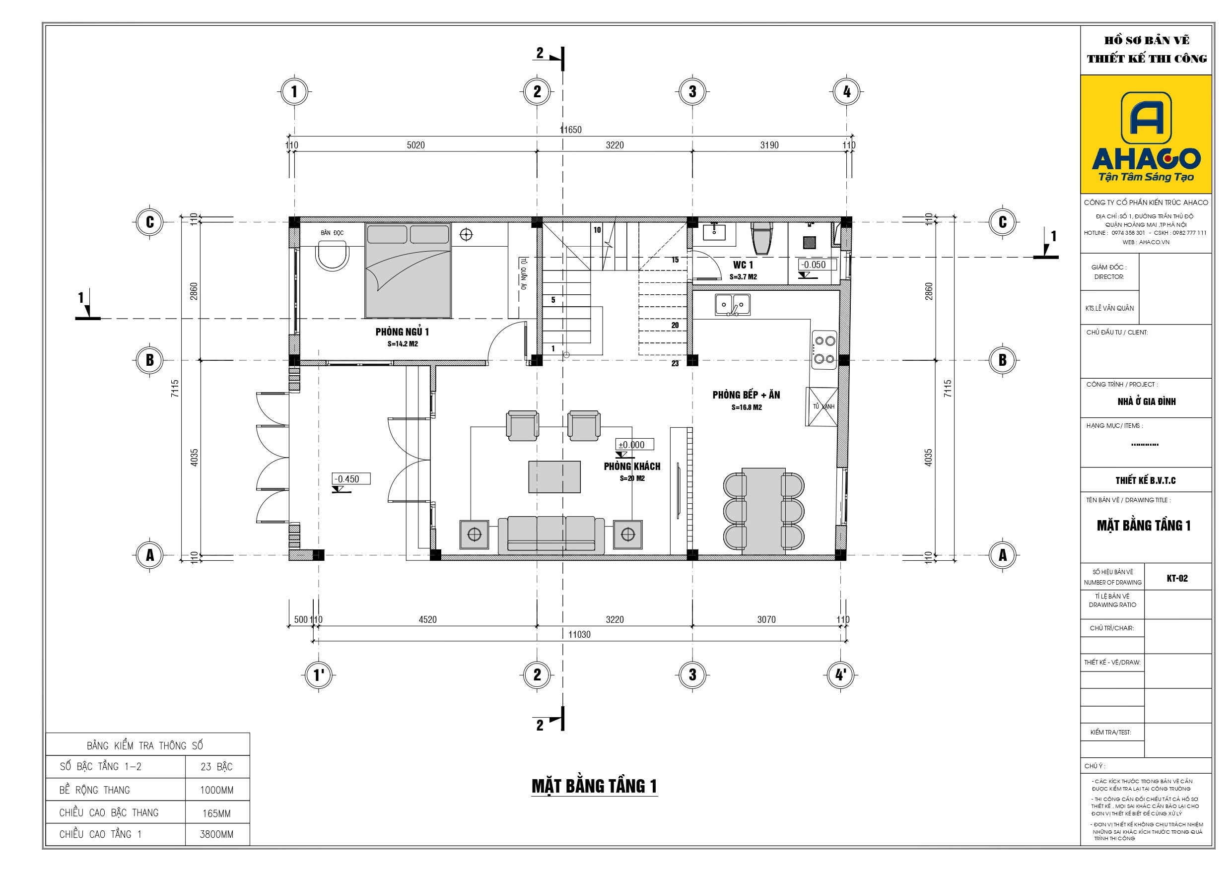
Mặt bằng công năng mẫu nhà 2 tầng 1 tum ở Ứng Hòa
CÔNG NĂNG TẦNG 1
Phòng bếp
Phòng ăn
Phòng khách
1 Phòng ngủ
1 WC

CÔNG NĂNG TẦNG 2
3 Phòng ngủ
Phòng thờ
1 WC


Bảng khái toán xây thô nhà 2 tầng 1 tum ở Ứng Hòa
Ngay sau đây chúng tôi sẽ chia sẻ với các bạn bảng dự toán chi phí xây thô mẫu nhà 2 tầng 1 tum được xuất ra từ công nghệ Bim giúp các bạn dự toán chính xác nhất chi phí xây dựng của ngôi nhà mình với các số liệu chính xác và rõ ràng. Như các bạn đã thấy ở đây là chi phí xây dựng công trình này chỉ gần 886 triệu thôi nhé!

Kết luận
Mẫu nhà 2 tầng 1 tum ở Ứng Hòa là sự kết hợp hoàn hảo giữa kiến trúc hiện đại, công năng khoa học và chi phí xây dựng hợp lý. Đây chắc chắn sẽ là lựa chọn lý tưởng cho những gia đình đang tìm kiếm một ngôi nhà đẹp, tiện nghi và phù hợp với xu hướng kiến trúc mới.
DỰ ÁN LIÊN QUAN
Mẫu nhà 2 tầng 1 tum mặt tiền 8m
Mr Thế Anh

