Mẫu biệt thự 11x11m công năng 4 phòng ngủ
Hà Tĩnh
Đã xem: 70
Mã dự án:

- Diện tích: 11 x 11 m
- Phòng ngủ: 4
- Số tầng: 2
- Tầng hầm:
- Khách hàng: Mr Kiên
- Địa chỉ: Hà Tĩnh
- Chi phí đầu tư: 1.13 tỷ
Mô tả dự án
Sở hữu một mảnh đất vuông vắn với kích thước 11x11m là một lợi thế tuyệt vời trong kiến trúc. Với diện tích sàn hơn 120m², việc bố trí biệt thự 4 phòng ngủ không chỉ đảm bảo sự riêng tư mà còn tạo ra không gian sống sang trọng, bề thế.
Phối cảnh ngoại thất mẫu biệt thự 11x11m công năng 4 phòng ngủ
Ngôi biệt thự hiện lên giữa không gian như một tác phẩm nghệ thuật kiến trúc hiện đại, đầy vững chãi nhưng không kém phần thanh thoát. Nằm kiêu hãnh tại vị trí góc đường, công trình thu hút ánh nhìn bởi sự kết hợp hoàn hảo giữa hình khối vuông vức và các chất liệu cao cấp, tạo nên một tổng thể bề thế, sang trọng.
Ngay từ cái nhìn đầu tiên, ngôi nhà gây ấn tượng bởi bảng màu trung tính đầy tinh tế. Sắc trắng tinh khôi của những mảng tường chủ đạo làm nền cho sắc xám trầm của đá ốp và nâu ấm áp của gỗ. Hệ mái Nhật với độ dốc vừa phải, lợp ngói màu xám ghi không chỉ giúp thoát nước tốt mà còn tạo nên vẻ ngoài thanh lịch, cân đối cho toàn bộ công trình.

Tầng một của biệt thự được thiết kế mở với những hệ cửa kính cường lực khung nhôm lớn, giúp xóa nhòa ranh giới giữa bên trong và bên ngoài.
Sảnh chính: Điểm nhấn nằm ở hai cột trụ lớn ốp đá marble vân mây trắng sang trọng, đỡ lấy phần ban công phía trên.
Điểm xuyết gỗ: Những mảng tường ốp gỗ nhựa màu nâu sáng chạy dọc theo các ô cửa không chỉ tạo điểm nhấn về màu sắc mà còn mang lại cảm giác gần gũi với thiên nhiên.
Cảnh quan: Những bồn hoa nhỏ sát chân tường với các loài cây nhiệt đới xanh mướt giúp làm mềm đi những đường nét góc cạnh của bê tông.

Lên đến tầng hai, không gian trở nên nhẹ nhàng và bay bổng hơn.
Ban công rộng lớn: Hệ lan can bằng kính cường lực trong suốt chạy dài, cho phép gia chủ tận hưởng tầm nhìn trọn vẹn ra xung quanh.
Hệ thống đèn: Phía dưới mái hiên được ốp gỗ sang trọng, tích hợp hệ thống đèn downlight vàng ấm. Khi màn đêm buông xuống, những ánh đèn này hắt lên tường đá xám tạo nên một hiệu ứng ánh sáng lung linh, huyền ảo.
Cửa sổ: Các ô cửa sổ được tính toán vị trí kỹ lưỡng, không chỉ đón sáng mà còn tạo nên sự nhịp điệu cho mặt đứng của ngôi nhà.

Bao quanh ngôi biệt thự là hệ thống tường rào kiên cố nhưng đầy tính thẩm mỹ. Tường rào được xây từ những khối đá xám nhạt, xen kẽ với những mảng nan sắt đen thanh mảnh, vừa đảm bảo an ninh vừa tạo sự thông thoáng. Cánh cổng chính với thiết kế tối giản, hiện đại hoàn thiện vẻ ngoài hoàn hảo cho ngôi biệt thự, khẳng định gu thẩm mỹ tinh tế của gia chủ.
Phối cảnh bóc mái mẫu biệt thự 11x11m công năng 4 phòng ngủ
Phối cảnh bóc mái không chỉ là một hình ảnh kỹ thuật, mà là cách AHACO giúp khách hàng nhìn thấy trước ngôi nhà tương lai của mình một cách trọn vẹn và chân thực nhất. Thay vì chỉ quan sát vẻ đẹp bên ngoài, khách hàng có thể hình dung rõ ràng cấu trúc bên trong của căn biệt thự: từ hệ mái, các tầng không gian, cầu thang, giếng trời cho đến cách ánh sáng và gió di chuyển trong ngôi nhà. Mọi thứ không còn là những đường nét khó hiểu trên bản vẽ, mà trở thành một không gian sống rõ ràng, dễ cảm nhận.
Nhờ phối cảnh bóc mái, khách hàng tránh được cảm giác mơ hồ hay lo lắng thường gặp trước khi xây nhà. Những vấn đề như nhà có bị bí không, mái có nóng không, các tầng có liên kết hợp lý hay không đều được nhìn thấy và đánh giá ngay từ đầu. Điều này giúp hạn chế tối đa tình trạng “xây xong mới thấy chưa đúng như tưởng tượng”, một nỗi băn khoăn rất phổ biến của nhiều gia chủ.
Không chỉ mang lại sự yên tâm, phối cảnh bóc mái còn giúp khách hàng kiểm soát chi phí hiệu quả hơn. Khi hiểu rõ cấu trúc và giải pháp thiết kế, khách hàng dễ dàng nhận ra đâu là phần cần đầu tư để đảm bảo chất lượng, đâu là hạng mục có thể tối ưu. Nhờ đó, quá trình trao đổi giữa khách hàng và kiến trúc sư trở nên minh bạch, rõ ràng, giảm thiểu phát sinh trong quá trình thi công.
Quan trọng hơn, phối cảnh bóc mái thể hiện rõ năng lực thiết kế và trách nhiệm của AHACO. Đây không phải là bản vẽ làm cho đẹp, mà là một phương án được tính toán kỹ lưỡng, bám sát thực tế thi công. Với khách hàng, điều này đồng nghĩa với sự tin tưởng: ngôi nhà được thiết kế không chỉ đẹp trên giấy, mà còn khả thi, bền vững và đúng với mong muốn ngay từ khi bắt đầu.
Chính vì vậy, phối cảnh bóc mái trở thành cầu nối giúp khách hàng của AHACO hiểu – tin – và yên tâm hơn trên hành trình xây dựng tổ ấm của mình.




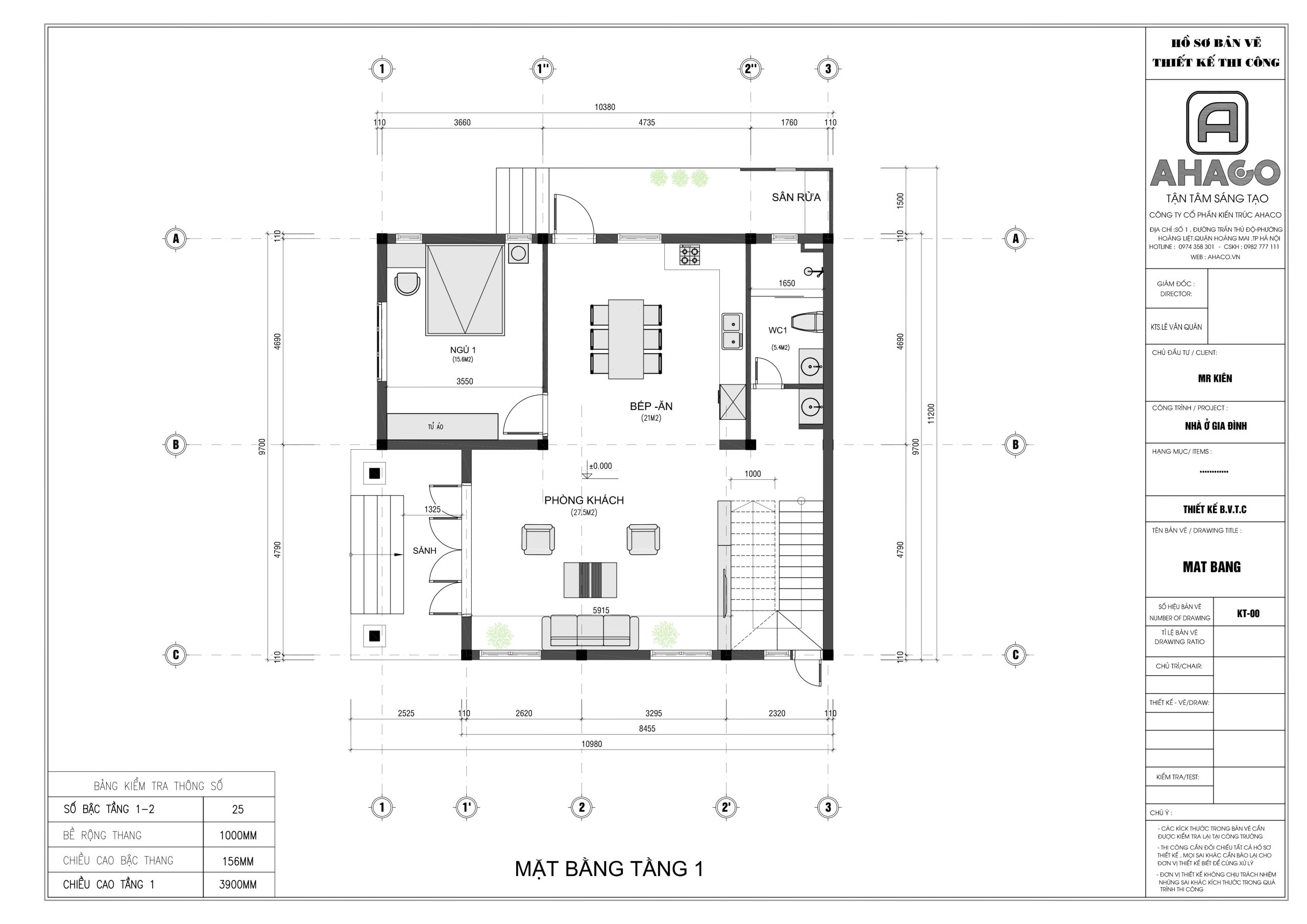
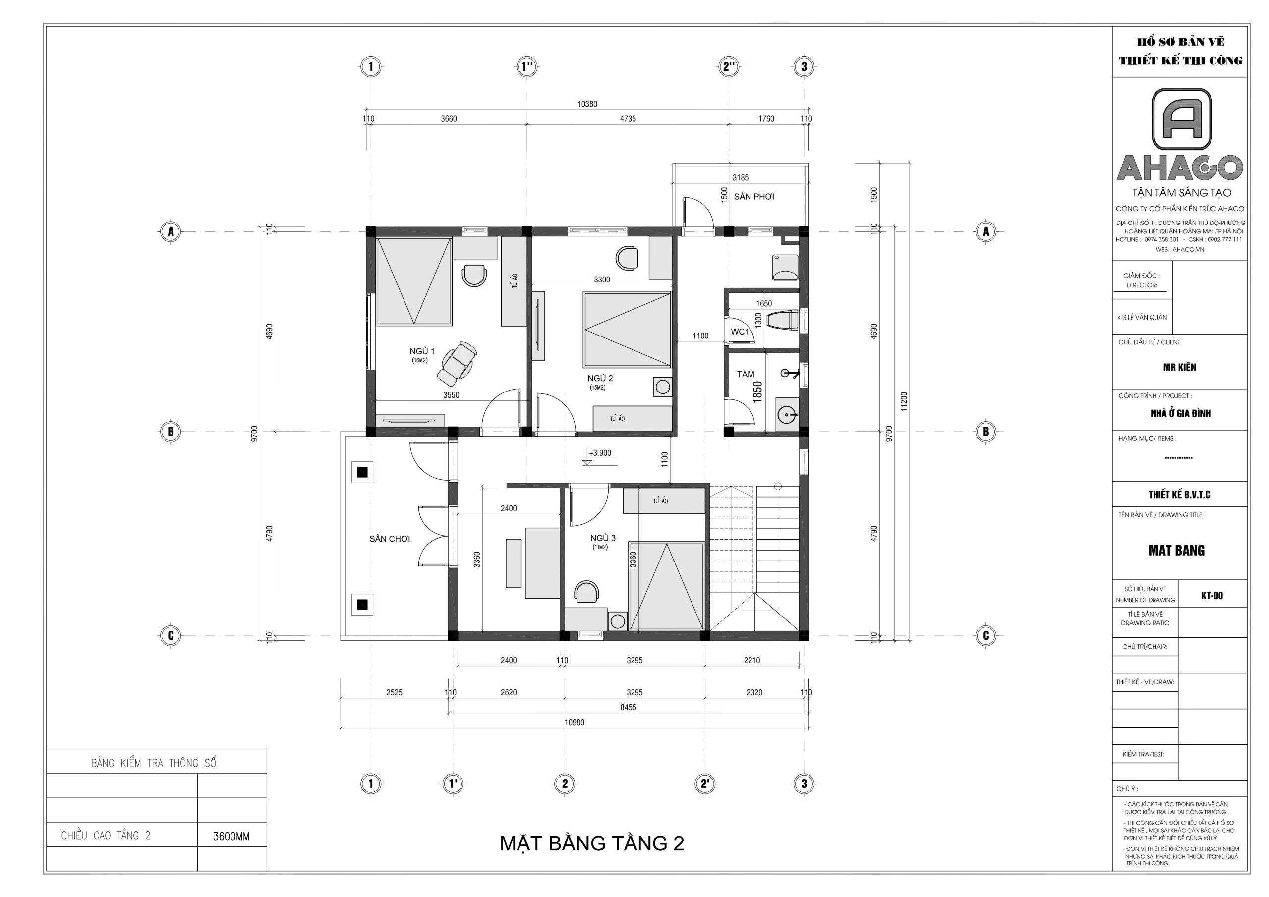
Mặt bằng công năng mẫu biệt thự 11x11m công năng 4 phòng ngủ
Để kiến tạo một không gian sống lý tưởng cho gia chủ, AHACO luôn ưu tiên thiết kế mặt bằng công năng theo nguyên tắc khoa học, tối ưu hóa diện tích và đảm bảo sự thông thoáng, tiện nghi cho mọi thành viên.
Thiết kế công năng của AHACO tập trung vào việc phân chia rõ ràng các khu vực chức năng theo từng tầng, đồng thời tạo ra sự kết nối linh hoạt giữa chúng:
Công năng tầng 1
- Phòng bếp + ăn
- Phòng khách
- 1 Phòng ngủ
- 1 Vệ sinh

Công năng tầng 2
- Phòng thờ
- 3 Phòng ngủ
- 1 Vệ sinh
- Sân phơi

Bảng khái toán xây thô mẫu biệt thự 11x11m công năng 4 phòng ngủ
AHACO – Tiên phong áp dụng công nghệ Bim vào trong bản vẽ thiết kế . Dựa vào bảng dự toán chi phí xây thô, quý vị có thể mua và đặt cọc trước nguyên vật liệu để giữ giá, giúp dự trù kinh phí thực tế để tránh phát sinh trong quá trình thi công. Và còn giúp mình chủ động gọi nguyên vật liệu trong quá trình xây dựng. Như quý vị đang thấy ở đây là bảng dự toán chi phí xây thô của công trình có địa chỉ tại Hà Tĩnh ; chi phí gạch xây là 83 triệu đồng, chi phí cát xây là 24 triệu, chi phí sắt khoảng 153 triệu, chi phí nhân công xây dựng vào khoảng 363 triệu và tổng chi phí xây thô của công trình này vào khoảng 1,3 tỷ đồng quý vị nhé!

Kết luận:
Ngôi biệt thự không chỉ là một nơi để ở, mà là một không gian nghỉ dưỡng thực thụ, nơi mỗi chi tiết nhỏ đều được AHACO chăm chút để mang lại sự thoải mái và tự hào cho những thành viên trong gia đình.
DỰ ÁN LIÊN QUAN
Mẫu nhà 2 tầng 1 tum mặt tiền 8m
Mr Thế Anh

