Mẫu thiết kế chung cư mini 5 tầng có gác lửng 60m2
Hà Nội
Đã xem: 103
Mã dự án:

- Diện tích: 6 x 10 m
- Phòng ngủ: 12
- Số tầng: 6
- Tầng hầm:
- Khách hàng: Mr Tùng
- Địa chỉ: Hà Nội
- Chi phí đầu tư: 1,57 tỷ
Mô tả dự án
Trong bối cảnh nhu cầu nhà ở tại đô thị ngày càng tăng, chung cư mini 5 tầng có gác lửng 60m² đang trở thành lựa chọn tối ưu cho cả chủ đầu tư lẫn người mua/thuê. Thiết kế dạng căn hộ thông minh, tối ưu không gian, chi phí xây dựng hợp lý và khả năng khai thác cho thuê cao.
Mô hình này đặc biệt phù hợp tại các thành phố lớn như Hà Nội, Bắc Ninh, Hải Dương, Bắc Giang – nơi nhu cầu căn hộ nhỏ đang phát triển mạnh.
Phối cảnh ngoại thất chung cư mini 5 tầng có gác lửng 60m2
Tòa nhà trong hình mang phong cách tân cổ điển sang trọng, gây ấn tượng mạnh ngay từ mặt tiền. Các đường phào chỉ đối xứng, hệ cột chạy dọc mặt đứng và những ban công sắt mỹ thuật tinh xảo tạo nên vẻ đẹp đẳng cấp, bền vững theo thời gian.
Tầng 1 được ốp đá cao cấp, kết hợp cửa lớn viền vàng nổi bật như một điểm nhấn quyền uy, giúp công trình trở nên nổi bật giữa phố.
Từ tầng 2 đến tầng 5, kiến trúc sử dụng hệ cửa kính khung tối màu kết hợp ánh sáng vàng ấm, vừa hiện đại vừa hài hòa với tổng thể tân cổ điển.
Trên cùng là khu sân thượng thông thoáng với mái kính sang trọng, phù hợp làm không gian thư giãn hoặc café ngoài trời. Tổng thể công trình toát lên vẻ đẳng cấp, tinh tế và cuốn hút, thể hiện rõ dấu ấn của chủ đầu tư và phong cách thiết kế chuyên nghiệp của AHACO.





Phối cảnh bóc mái chung cư mini 5 tầng có gác lửng 60m2
Khám phá phối cảnh bóc mái độc đáo của chung cư mini 5 tầng có gác lửng 60m² do Ahaco thiết kế, khách hàng sẽ được chiêm ngưỡng toàn bộ bố cục không gian từ tầng trệt đến gác lửng một cách trực quan nhất. Phối cảnh bóc mái giúp lộ cấu trúc khung mái, sàn bê tông và bố trí nội thất tinh tế, từ phòng khách, bếp, phòng ngủ đến WC, tất cả đều được bố trí hợp lý, tối ưu diện tích. Cầu thang, giếng trời và ban công được thể hiện rõ ràng, mang đến cái nhìn toàn diện về lối thiết kế thông minh và tiện nghi. Với màu sắc tinh tế, nhãn chú thích trực quan và hiệu ứng 3D sinh động, phối cảnh này không chỉ giúp khách hàng hình dung ngôi nhà mơ ước mà còn trải nghiệm cảm giác sống tiện nghi, hiện đại ngay từ bản thiết kế. Ahaco tự hào mang đến giải pháp kiến trúc tối ưu, nơi mỗi mét vuông đều được khai thác hiệu quả, đáp ứng nhu cầu sống hiện đại cho mọi gia đình.








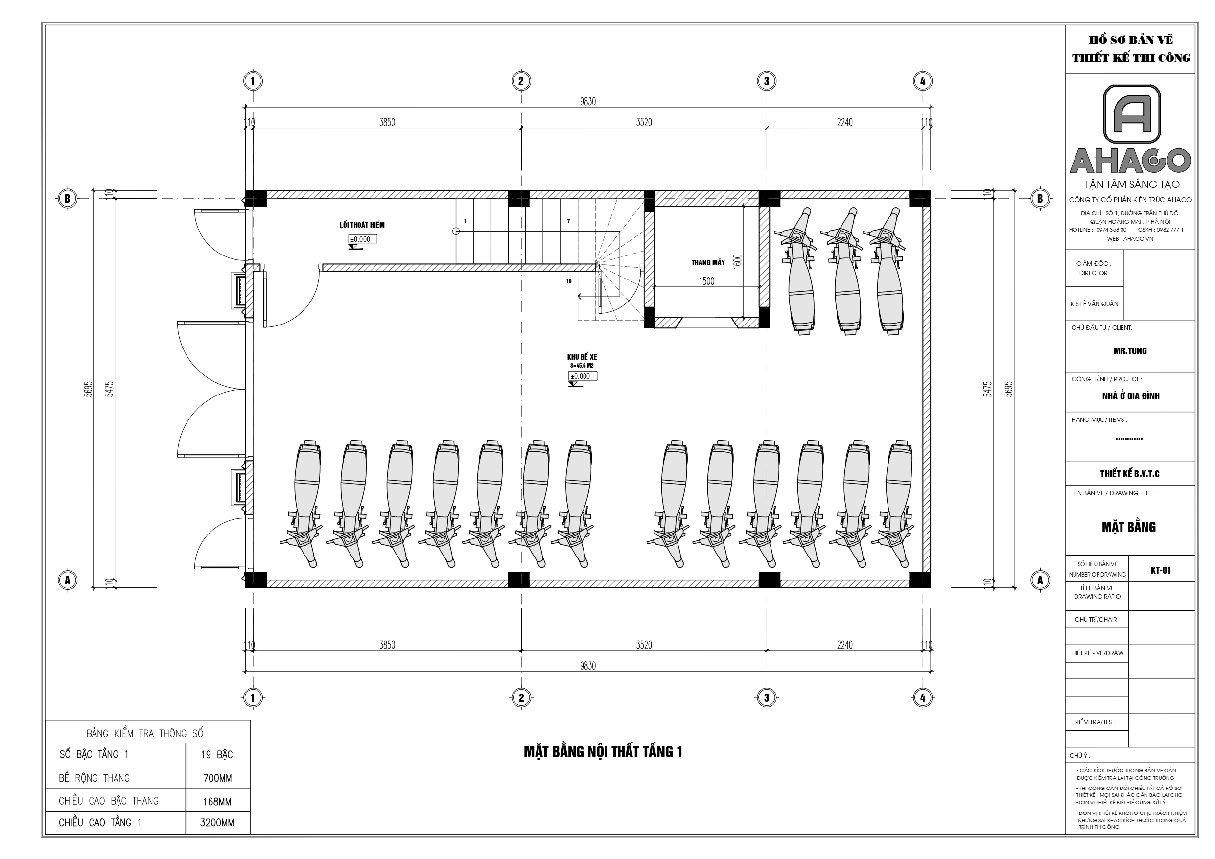
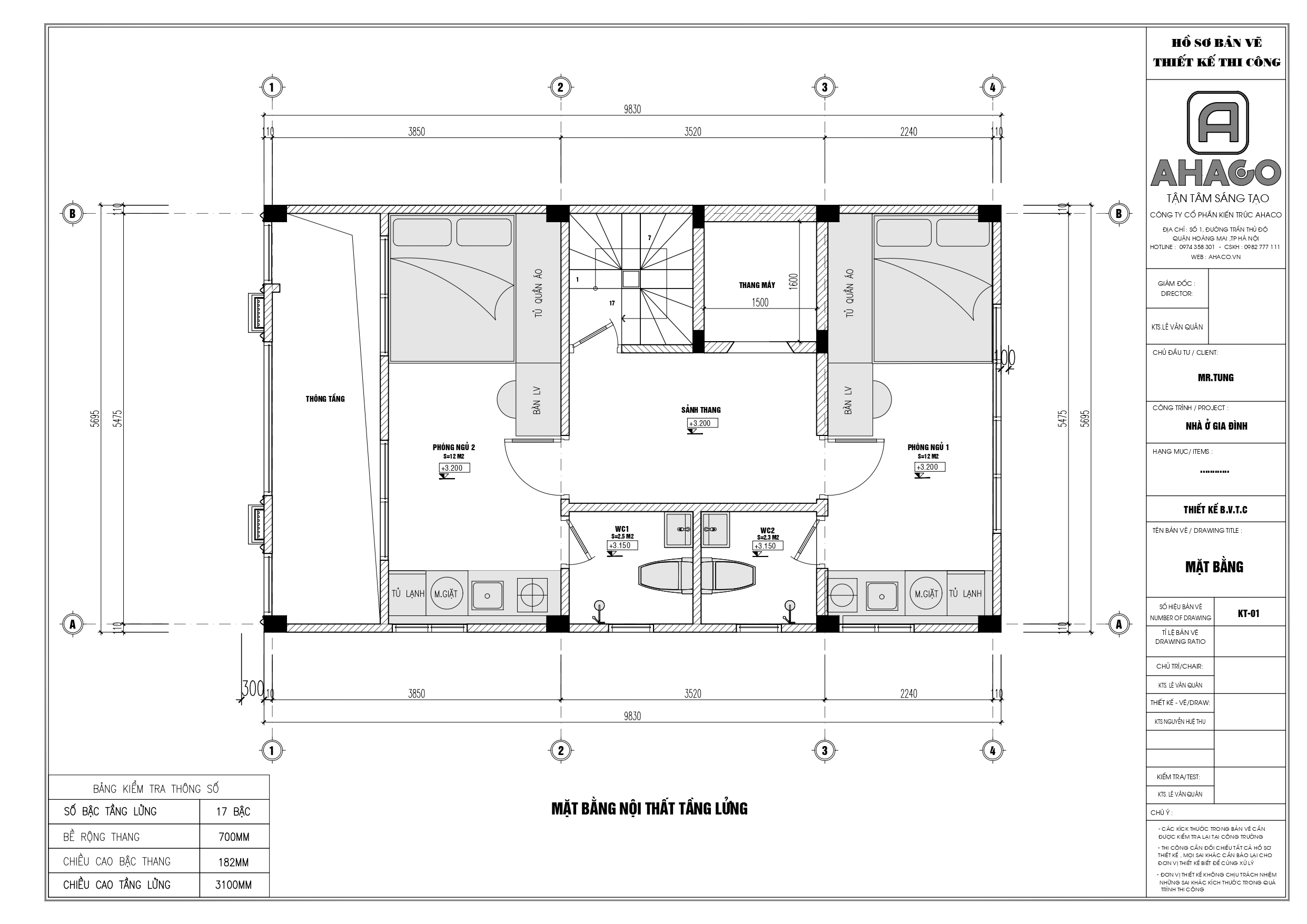
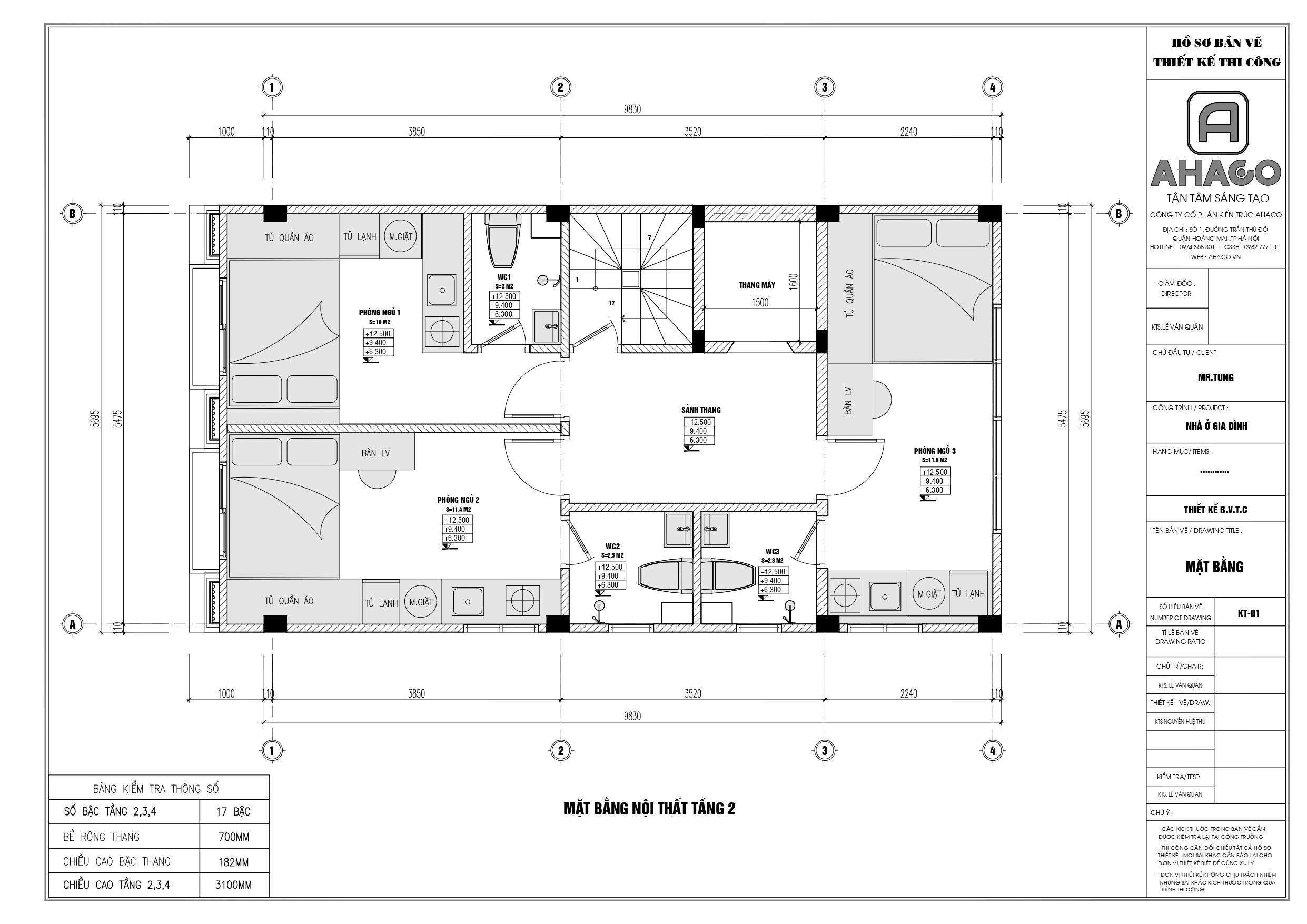
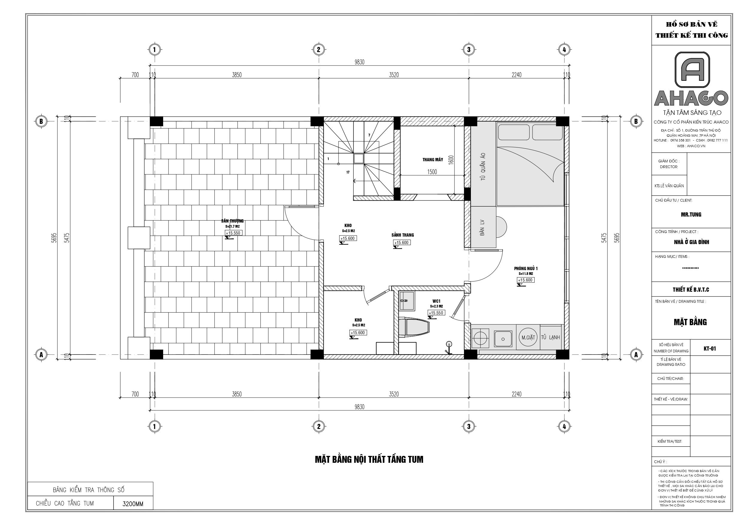
Mặt bằng công năng chung cư mini 5 tầng có gác lửng 60m2
Với 4 phòng ngủ rộng rãi, phòng khách thoáng đãng, phòng bếp hiện đại và khu vực sân trước cửa, mỗi không gian đều được tính toán kỹ lưỡng để đáp ứng mọi nhu cầu sinh hoạt của gia đình bạn. AHACO luôn chú trọng đến việc tối ưu hóa ánh sáng tự nhiên và thông gió, mang đến không gian sống trong lành và thoải mái.
Công năng tầng 1 :
Khu để xe

Công năng tầng lửng :
2 Phòng ngủ
2 nhà vệ sinh

Công năng tầng 2,3,4 :
3 Phòng ngủ
3 nhà vệ sinh

Công năng tầng tum :
1 Phòng ngủ
1 nhà vệ sinh

Bảng khái toán xây thô chung cư mini 5 tầng có gác lửng 60m2
AHACO – Tiên phong áp dụng công nghệ Bim vào trong bản vẽ thiết kế giúp quý vị xây nhà nhàn tênh, đọc bản vẽ dễ hiểu dễ giám sát thợ cho dù không có chuyên môn và đặc biệt công nghệ này giúp thống kê được các nguyên vật liệu cần dùng và số lượng chính xác để gia chủ kiểm soát tốt hơn chi phí xây dựng của ngôi nhà với các số liệu được cập nhật kịp thời, cụ thể và rõ ràng. Dựa vào bảng dự toán thô quý vị có thể mua đặt cọc trước vật liệu để giữ giá, giúp dự trù được kinh phí thực tế, để tránh phát sinh trong quá trình xây dựng, và còn giúp mình có thể chủ động gọi vật liệu trong quá trình thi công. Như quý vị đang thấy ở đây là bảng dự toán chi phí xây thô của công trình tại Hà Nội: Chi phí gạch xây khoảng 101 triệu, chi phí cát xây là 27 triệu đồng, chi phí nhân công trọn gói là 607 triệu, và tổng chi phí xây thô của công trình vào khoảng 1 tỷ 573 triệu đồng quý vị nhé!

Kết luận
Mẫu thiết kế chung cư mini 5 tầng có gác lửng 60m² là giải pháp thông minh, phù hợp xu hướng sống đô thị hiện đại và đem lại hiệu quả đầu tư vượt trội. Nếu bạn đang tìm một mô hình tối ưu diện tích, sinh lợi cao và có tính thẩm mỹ tốt, đây là lựa chọn đáng cân nhắc.
DỰ ÁN LIÊN QUAN
Mẫu nhà 2 tầng 1 tum mặt tiền 8m
Mr Thế Anh

