Mẫu nhà phố 3 tầng phong cách Indochine
Thanh Trì
Đã xem: 72
Mã dự án: 1030126

- Diện tích: 10 x 11 m
- Phòng ngủ: 4
- Số tầng: 3
- Tầng hầm:
- Khách hàng: Ms Hà
- Địa chỉ: Thanh Trì
- Chi phí đầu tư: 1.17 tỷ
Mô tả dự án
Mẫu nhà phố 3 tầng phong cách Indochine đang trở thành xu hướng thiết kế được nhiều gia đình lựa chọn trong những năm gần đây. Sự kết hợp hài hòa giữa nét truyền thống Á Đông và kiến trúc Pháp cổ mang đến không gian sống sang trọng, tinh tế nhưng vẫn gần gũi và ấm cúng.
Trong bài viết này, hãy cùng khám phá những điểm nổi bật của mẫu nhà phố Indochine 3 tầng và lý do vì sao phong cách này ngày càng được yêu thích.
Phong cách Indochine (Đông Dương) là sự giao thoa giữa kiến trúc Pháp và văn hóa truyền thống Việt Nam. Điểm đặc trưng của phong cách này là:
Màu sắc trung tính, ấm áp
Vật liệu tự nhiên như gỗ, mây, tre
Họa tiết kỷ hà, hoa văn truyền thống
Nội thất mang hơi hướng hoài cổ
Không gian thoáng, nhiều ánh sáng
Đối với nhà phố 3 tầng, phong cách Indochine giúp cân bằng giữa tính thẩm mỹ, công năng và sự sang trọng.
Phối cảnh ngoại thất nhà phố 3 tầng phong cách Indochine
Ngôi nhà phố 3 tầng hiện lên với vẻ đẹp đầy mê hoặc, là sự giao thoa tinh tế giữa nét hoài cổ truyền thống Á Đông và vẻ tân cổ điển lãng mạn của kiến trúc Pháp. Với tông màu trắng kem chủ đạo, công trình toát lên vẻ thanh thoát, làm nổi bật những hệ mái ngói dốc màu xanh đen được xếp lớp nhịp nhàng, gợi nhớ đến những mái nhà Việt xưa.

Điểm nhấn ấn tượng nhất chính là sự kết hợp khéo léo của các hình khối hình học: từ những khung cửa sổ vòm tròn mềm mại đến các ô cửa kính lớn vuông vức, tạo nên một diện mạo vừa vững chãi vừa uyển chuyển. Các chi tiết phào chỉ được lược bỏ sự rườm rà, thay vào đó là những đường bo góc tinh xảo và hệ đèn tường mang phong cách cổ điển tỏa ánh sáng vàng ấm áp. Không gian xanh cũng được lồng ghép khéo léo tại các ban công và góc sân, mang lại hơi thở thiên nhiên tươi mát cho ngôi nhà phố. Tổng thể ngoại thất không chỉ là một công trình kiến trúc mà còn là một tác phẩm nghệ thuật, khẳng định gu thẩm mỹ tinh tế và đẳng cấp của gia chủ.





Phối cảnh bóc mái nhà phố 3 tầng phong cách Indochine
Bạn đã bao giờ tự hỏi làm thế nào để hình dung trọn vẹn “mạch máu” của một ngôi nhà trước khi đặt những viên gạch đầu tiên? Tại AHACO, chúng tôi không chỉ vẽ nên những mặt tiền đẹp, mà còn mang đến cái nhìn xuyên thấu qua bản phối cảnh 3D bóc mái độc đáo cho mã số công trình MS:1030126.
Bản vẽ 3D bóc mái là “chìa khóa vàng” giúp gia chủ nắm bắt toàn bộ bố cục nội thất và sự liên kết giữa các tầng một cách trực quan nhất:
Tầng 1 – Không gian kết nối: Khu vực sân trước rộng rãi dẫn vào Phòng Khách sang trọng, liền kề là không gian Bếp + Ăn được thiết kế mở, tạo sự thông thoáng tuyệt đối cho sinh hoạt chung của gia đình.
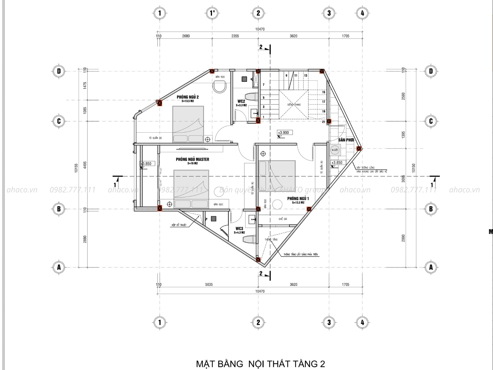
Tầng 2 – Riêng tư và Đẳng cấp: Tập trung vào sự nghỉ ngơi với Phòng ngủ Master có tầm nhìn đẹp, cùng 2 phòng ngủ phụ (Phòng ngủ 1 và Phòng ngủ 2) được bố trí khoa học, đảm bảo sự yên tĩnh và lấy sáng tự nhiên tối đa.
Tầng 3 – Tâm linh và Thư giãn: Bao gồm Phòng thờ trang trọng hướng ra ban công, cùng một Phòng ngủ 3 dự phòng cho khách hoặc thành viên mới trong gia đình.
Hệ thống kết cấu vững chãi: Tầng móng và kết cấu khung được AHACO thể hiện minh bạch, giúp gia chủ hoàn toàn yên tâm về độ bền vững của công trình.






Mặt bằng công năng nhà phố 3 tầng phong cách Indochine
Mẫu nhà 3 tầng có hình dáng phức tạp này được thiết kế để tận dụng tối đa diện tích đất, mang lại không gian rộng rãi và thoáng đãng. Với 3 phòng ngủ, ngôi nhà này rất phù hợp cho các gia đình có từ 3 đến 5 thành viên. Kiến trúc indochine với các chi tiết tinh tế giúp ngôi nhà không chỉ đẹp mà còn đầy đủ công năng.
Công năng tầng 1
1 Phòng Khách
1 Bếp + ăn
1 WC

Công năng tầng 2
3 Phòng ngủ
2 WC

Công năng tầng 3
Phòng thờ
Sân chơi
1 Phòng ngủ
1 WC

Bảng dự toán chi phí nhà phố 3 tầng phong cách Indochine
Ngay sau đây chúng tôi sẽ chia sẻ với các bạn bảng dự toán chi phí xây thô mẫu nhà 3 tầng indochine được xuất ra từ công nghệ Bim giúp các bạn dự toán chính xác nhất chi phí xây dựng của ngôi nhà mình với các số liệu chính xác và rõ ràng. Như các bạn đã thấy ở đây là chi phí xây dựng công trình này chỉ hết 1.17 tỷ thôi nhé!

Kết luận
Mẫu nhà phố 3 tầng phong cách Indochine là sự kết hợp hoàn hảo giữa thẩm mỹ, công năng và giá trị văn hóa. Không quá cầu kỳ nhưng vẫn đủ sang trọng, phong cách này mang đến không gian sống bền vững theo thời gian.
Nếu bạn đang tìm kiếm một thiết kế nhà phố vừa hiện đại vừa mang nét truyền thống, Indochine chắc chắn là một lựa chọn đáng cân nhắc.
DỰ ÁN LIÊN QUAN
Mẫu nhà 2 tầng 1 tum mặt tiền 8m
Mr Thế Anh

