Mẫu nhà ống 4 tầng 1 tum 5x15m
Yên Sở
Đã xem: 103
Mã dự án:

- Diện tích: 5 x 15 m
- Phòng ngủ: 4
- Số tầng: 5
- Tầng hầm:
- Khách hàng: Ms Thủy
- Địa chỉ: Yên Sở
- Chi phí đầu tư:
Mô tả dự án
Mẫu nhà ống 4 tầng 1 tum 5x15m đang trở thành lựa chọn hàng đầu của nhiều gia đình sống tại khu vực đô thị nhờ khả năng tối ưu không gian và đáp ứng đầy đủ công năng. Với chiều ngang 5m và chiều sâu 15m, ngôi nhà tạo cảm giác thoáng rộng, dễ bố trí nội thất và phù hợp với nhiều phong cách kiến trúc khác nhau. Thiết kế 4 tầng kết hợp 1 tum không chỉ mang lại diện tích sử dụng lớn mà còn giúp chủ nhà có thêm không gian sinh hoạt như phòng thờ, sân phơi hoặc khu thư giãn trên cao.
Phối cảnh ngoại thất mẫu nhà ống 4 tầng 1 tum 5x15m
Ngoại thất của mẫu nhà ống 4 tầng 1 tum nổi bật với phong cách hiện đại, sang trọng và đầy sự tinh tế trong từng đường nét. Mặt tiền ngôi nhà được thiết kế hài hòa với hệ lan can kính kết hợp khung kim loại màu nâu đồng, tạo nên vẻ đẹp trẻ trung nhưng không kém phần bền bỉ. Các mảng tường được xử lý phẳng, gọn gàng, cùng hệ cửa kính chạy dọc mặt đứng giúp không gian bên trong luôn tràn ngập ánh sáng tự nhiên.

Tầng tum trên cùng được bố trí giàn lam và khoảng sân rộng thoáng, là điểm nhấn giúp tổng thể trở nên cân đối và cuốn hút hơn. Ban công ở mỗi tầng có thêm cây xanh trang trí, vừa mang đến cảm giác mềm mại cho kiến trúc, vừa giúp ngôi nhà thân thiện hơn với môi trường. Nhìn tổng thể từ trên cao, công trình nổi bật giữa khu phố bởi hình khối vuông vắn, bố cục khoa học và phong cách thiết kế hiện đại – một lựa chọn hoàn hảo cho gia đình yêu thích sự tiện nghi và thẩm mỹ.



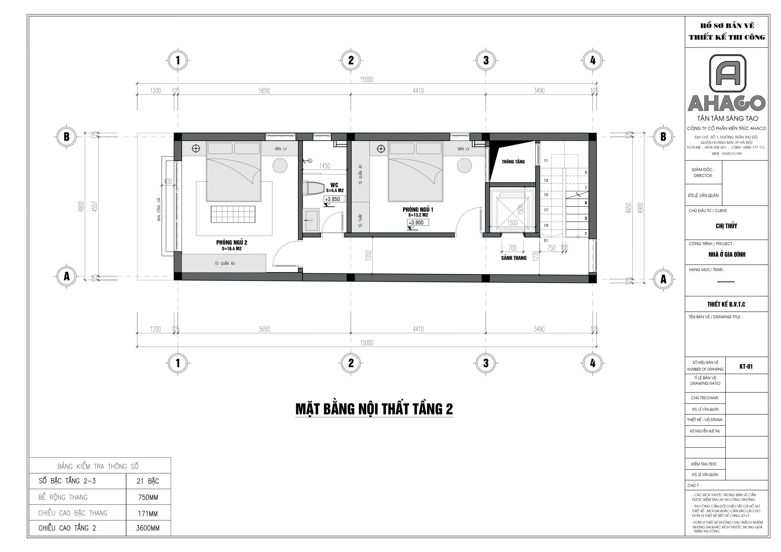
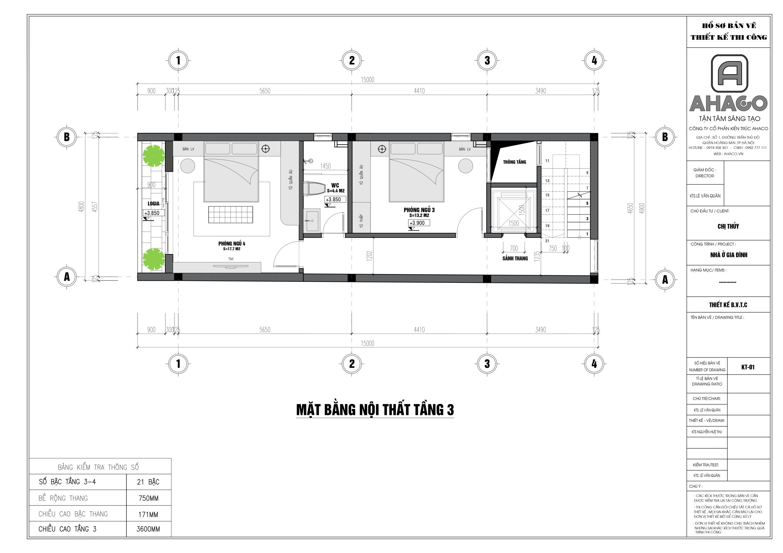
Mặt bằng công năng mẫu nhà ống 4 tầng 1 tum 5x15m
Một ngôi nhà đẹp không chỉ nằm ở ngoại thất ấn tượng mà còn ở cách bố trí công năng khoa học, tiện nghi và hợp lý. Và đó chính là điều làm nên sự khác biệt trong những thiết kế của AHACO. Với mẫu nhà phố 4 tầng 1 tum 4 phòng ngủ mặt tiền 5m, AHACO đã chứng minh năng lực vượt trội trong việc kết hợp thẩm mỹ và công năng sử dụng.
CÔNG NĂNG TẦNG 1
Phòng khách
Gara
1 WC

CÔNG NĂNG TẦNG 2
2 Phòng ngủ
1 WC

CÔNG NĂNG TẦNG 3
2 Phòng ngủ
1 WC

CÔNG NĂNG TẦNG 4
Phòng thờ
Phòng bếp + ăn
1 WC

CÔNG NĂNG TẦNG TUM
SÂN CHƠI + PHƠI
PHÒNG GIẶT

Mặt bằng bóc mái mẫu nhà ống 4 tầng 1 tum 5x15m
Diện tích 5x15m là kích thước phổ biến nhưng cũng đầy thách thức đối với nhà phố. Làm thế nào để giải quyết vấn đề bí bách, thiếu sáng và thiếu không gian mà vẫn đảm bảo đầy đủ tiện nghi cho gia đình đa thế hệ?
Công ty Cổ phần Kiến trúc Xây dựng AHACO tự hào giới thiệu Mặt Bằng Bóc Mái Mẫu Nhà Ống 4 Tầng 1 Tum (5x15m) – bản vẽ chiến lược được đội ngũ kiến trúc sư hàng đầu của chúng tôi dày công nghiên cứu, mang đến sự hoàn hảo từ chi tiết nhỏ nhất.
Mặt bằng bóc mái không chỉ là bản vẽ 2D, mà là sự mô phỏng 3D chi tiết về cách thức các tầng, không gian và kết cấu liên kết với nhau.
Tối Đa Hóa Diện Tích: Thiết kế 4 tầng 1 tum (4.5 tầng) giúp AHACO khai thác tối đa chiều cao, tăng 30-40% diện tích sử dụng so với nhà 3 tầng.
Giải Pháp Thông Gió Bứt Phá: Khắc phục triệt để nhược điểm nhà ống bằng hệ thống Giếng Trời Kép (giếng trời trung tâm và giếng trời cuối nhà) đảm bảo mọi không gian đều có ánh sáng và không khí tươi mới.
Minh Bạch Hóa Kết Cấu: Mặt bằng bóc mái giúp Chủ đầu tư dễ dàng hình dung về vị trí dầm, sàn, cột, hệ thống M&E (Điện nước) ngay từ đầu, đảm bảo tính thẩm mỹ cao và tránh phát sinh chi phí trong quá trình thi công.







Kết luận :
Mẫu nhà ống 4 tầng 1 tum 5x15m do AHACO thiết kế là sự kết hợp hoàn hảo giữa tính thẩm mỹ hiện đại và công năng tối ưu cho gia đình Việt. Từ hình khối kiến trúc mạnh mẽ, mặt tiền sang trọng cho đến cách bố trí không gian khoa học, mỗi chi tiết đều thể hiện sự chỉn chu và sáng tạo của đội ngũ kiến trúc sư. Đây không chỉ là một ngôi nhà đẹp, mà còn là tổ ấm bền vững, tiện nghi và giàu giá trị sử dụng lâu dài. Nếu bạn đang tìm kiếm một giải pháp thiết kế – thi công chuyên nghiệp, tin cậy và phù hợp với ngân sách, AHACO chắc chắn là địa chỉ đồng hành lý tưởng để hiện thực hóa giấc mơ an cư của bạn.
DỰ ÁN LIÊN QUAN
Mẫu nhà 2 tầng 1 tum mặt tiền 8m
Mr Thế Anh

