 
    
	
Mẫu nhà chữ U tân cổ điển đẹp hợp xu hướng 2025
-  
                                    Hải Dương Đã xem: 155 
- 
                                    Mã dự án: 
 
                                        - Diện tích: 15 x 11 m
- Phòng ngủ: 3
- Số tầng: 1
- Tầng hầm:
- Khách hàng: Mr Nhơn
- Địa chỉ: Hải Dương
- Chi phí đầu tư: 875 triệu
Mô tả dự án
Trong những năm gần đây, mẫu nhà chữ U tân cổ điển trở thành xu hướng nổi bật trong thiết kế biệt thự bởi sự kết hợp hoàn hảo giữa nét sang trọng cổ điển và sự tinh tế hiện đại. Bước sang năm 2025, phong cách này càng được ưa chuộng nhờ tính thẩm mỹ cao, không gian sống thoáng đãng và công năng sử dụng tối ưu.
Phối cảnh ngoại thất nhà chữ U tân cổ điển đẹp hợp xu hướng 2025
Ngôi nhà hiện lên với dáng vẻ sang trọng và bề thế, mang đậm dấu ấn của kiến trúc tân cổ điển. Tổng thể thiết kế theo bố cục chữ U cân đối, tạo nên khoảng sân trong thoáng đãng, vừa là không gian sinh hoạt ngoài trời, vừa tăng tính thẩm mỹ cho công trình.
Màu sơn trắng tinh khôi được sử dụng chủ đạo, làm nổi bật các chi tiết phào chỉ, cột trụ và hoa văn trang trí tinh xảo. Hệ thống mái thái màu xanh than nhã nhặn kết hợp cùng những ô cửa sổ mái vòm nhỏ xinh, vừa mang hơi hướng cổ điển châu Âu, vừa gợi cảm giác gần gũi, ấm cúng.

Mặt tiền được nhấn nhá bằng các đường gờ, phào chỉ đắp nổi và phù điêu hoa văn tinh tế, tạo chiều sâu và sức hút thị giác. Phần chân tường được ốp đá tự nhiên màu xám ghi, không chỉ tăng độ bền mà còn làm nổi bật vẻ sang trọng, bền vững theo thời gian.
Cổng và hàng rào sắt mỹ thuật uốn hoa văn thanh thoát, kết hợp cùng trụ cột vuông vững chắc, mang đến sự hài hòa giữa yếu tố an toàn và tính thẩm mỹ. Đặc biệt, sự xuất hiện của cây cọ cảnh quan trước sân giúp tổng thể công trình thêm phần mềm mại, gần gũi thiên nhiên.




Từng chi tiết ngoại thất đều được tính toán tỉ mỉ, từ hệ thống chiếu sáng gắn tường cho đến vật liệu sử dụng, tất cả cùng tôn lên một không gian sống vừa sang trọng, vừa tiện nghi – chuẩn phong cách tân cổ điển hợp xu hướng năm 2025.
Phối cảnh bóc mái nhà chữ U tân cổ điển đẹp hợp xu hướng 2025
Trong thiết kế kiến trúc, phối cảnh bóc mái không chỉ giúp gia chủ hình dung rõ ràng bố cục công năng bên trong, mà còn phô bày trọn vẹn vẻ đẹp tinh tế của ngôi nhà. Với mẫu nhà chữ U tân cổ điển do Ahaco thực hiện, sự độc đáo thể hiện ở nhiều chi tiết khác biệt:
- 
Kết cấu mái cân xứng và bề thế: Kiểu mái thái chữ U được thiết kế giật cấp, tạo nên sự uy nghi, sang trọng và giúp thoát nước nhanh, phù hợp khí hậu Việt Nam. 
- 
Đường gờ, phào chỉ tinh xảo: Khi bóc mái, các chi tiết phào chỉ, hoa văn và vòm cửa sổ nổi bật rõ ràng, thể hiện sự đầu tư tỉ mỉ trong thiết kế. 
- 
Không gian sân trong mở rộng: Bố cục chữ U để lộ khoảng sân trung tâm, mang lại sự thoáng đãng, dễ dàng kết nối thiên nhiên với không gian sống. 
- 
Tối ưu ánh sáng và gió trời: Qua phối cảnh bóc mái, có thể thấy rõ cách sắp xếp cửa sổ, cửa chính và hệ thống mái lấy sáng hợp lý, tạo sự thoải mái cho nội thất. 
- 
Tính thẩm mỹ và công năng song hành: Bóc mái không chỉ làm rõ từng khu vực chức năng mà còn cho thấy sự hài hòa giữa ngoại thất sang trọng và công năng tiện nghi. 
Chính sự kết hợp tinh tế giữa kiến trúc tân cổ điển và kỹ thuật hiện đại đã tạo nên một phối cảnh bóc mái nhà chữ U độc đáo, khác biệt, khẳng định dấu ấn thiết kế riêng của Ahaco.



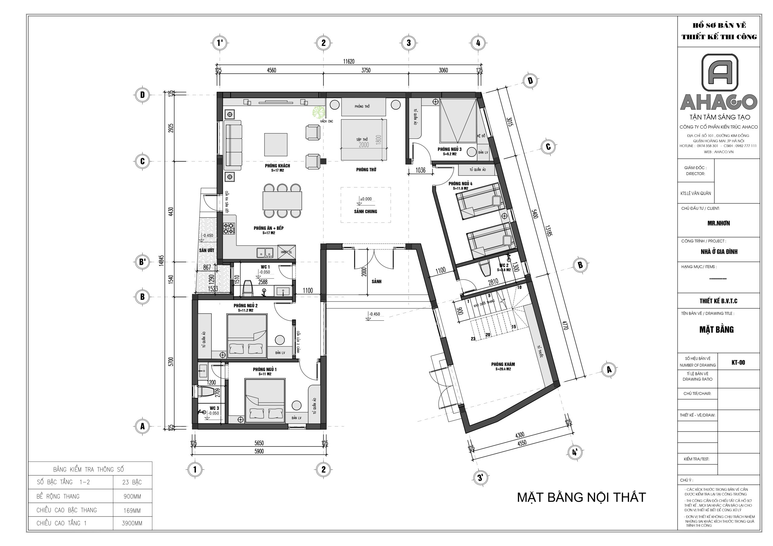
Mặt bằng công năng nhà chữ U tân cổ điển đẹp hợp xu hướng 2025
Ahaco tự hào là đơn vị thiết kế công năng tối ưu cho ngôi nhà chữ U này, mang đến không gian sống tiện nghi, hiện đại và đầy đủ công năng. Chúng tôi không chỉ tạo ra những ngôi nhà đẹp về thẩm mỹ mà còn tập trung vào trải nghiệm sống, giúp gia chủ tận hưởng từng khoảnh khắc hạnh phúc trong không gian của mình. Với sự am hiểu sâu sắc về kiến trúc và nhu cầu thực tế của người Việt, AHACO cam kết mang đến những giải pháp thiết kế tối ưu, tận dụng từng mét vuông diện tích để tạo nên ngôi nhà mơ ước của bạn!


Dự toán chi phí nhà chữ U tân cổ điển đẹp hợp xu hướng 2025
AHACO – Tiên phong áp dụng công nghệ Bim vào trong bản vẽ thiết kế, đề xuất khối lượng dự toán. Dựa vào bảng khái toán xây thô quý vị có thể mua đặt cọc trước vật liệu để giữ giá, giúp dự trù được kinh phí thực tế, để tránh phát sinh trong quá trình xây dựng, và còn giúp mình có thể chủ động gọi vật liệu trong quá trình thi công. Như quý vị đang thấy ở đây là bảng dự toán chi phí xây thô của công trình địa chỉ tại Hải Dương : Chi phí gạch xây vào khoảng 66 triệu, chi phí cát xây là 18 triệu đồng, chi phí nhân công xây dựng là 265 triệu, và tổng chi phí xây thô của công trình này vào khoảng 875 triệu thôi quý vị nhé!

Kết luận
Mẫu nhà chữ U tân cổ điển đẹp hợp xu hướng 2025 là lựa chọn hoàn hảo cho những gia chủ yêu thích sự tinh tế, sang trọng và mong muốn sở hữu không gian sống đẳng cấp. Với thiết kế hài hòa giữa kiến trúc – công năng – thẩm mỹ, kiểu nhà này chắc chắn sẽ tiếp tục dẫn đầu xu hướng trong nhiều năm tới.
 



 
 
                                 
 
                                 
 
                                 
 
                                 
 
                                 
 
                                 
 
                                 
 
                                 
 
                                 
 
                                 
 
                                 
 
                                 
 
                                 
 
                                 
 
                                 
 
                                 
 
                                 
 
                                 
 
                                 
 
                                 
 
                                 
 
                                 
 
                                 
 
                                 
 
                                 
 
                                 
 
                                 
 
                                 
 
                                 
 
                                 
 
                                 
 
                                 
 
                                