Mẫu nhà cấp 4 chữ L hiện đại 2 phòng ngủ
Nam Định
Đã xem: 275
Mã dự án:

- Diện tích: 10 x 11 m
- Phòng ngủ: 2
- Số tầng: 1
- Tầng hầm:
- Khách hàng: Ms Hà
- Địa chỉ: Nam Định
- Chi phí đầu tư: 381 triệu
Mô tả dự án
Trong những năm gần đây, mẫu nhà cấp 4 chữ L hiện đại 2 phòng ngủ đang trở thành xu hướng được nhiều gia đình Việt lựa chọn. Thiết kế này không chỉ đơn giản, tinh tế mà còn phù hợp với nhiều diện tích đất – đặc biệt là những khu đất có mặt tiền rộng hoặc góc vuông. Với phong cách hiện đại, không gian mở và công năng hợp lý, nhà cấp 4 chữ L là lựa chọn hoàn hảo cho gia đình trẻ hoặc các cặp vợ chồng có 1–2 con.
Phối cảnh ngoại thất nhà cấp 4 chữ L hiện đại 2 phòng ngủ
Ngôi nhà có kiến trúc hiện đại, tối giản, với hình khối hộp chữ nhật đơn giản và mái bằng. Màu sắc chủ đạo là trắng tinh khiết, tạo cảm giác sạch sẽ và thoáng đãng. Mặt tiền ngôi nhà nổi bật với các đường nét ngang, dứt khoát và sự kết hợp hài hòa giữa tường trắng và khung cửa màu tối. Ngôi nhà có cổng rào kiên cố, với cánh cổng lớn bằng gỗ hoặc vật liệu giả gỗ có hoa văn sọc chéo màu nâu và đen, được đỡ bởi hai trụ cột lớn màu xám trắng.
Phần tường rào phía trước thấp, kết hợp giữa mảng tường trắng đặc và các khe chắn dọc màu đen, phía dưới có một bồn cây nhỏ trồng cây xanh. Xung quanh ngôi nhà là không gian sân vườn rộng rãi, với thảm cỏ xanh, nhiều cây xanh nhiệt đới như cây cọ, dừa và các bụi cây cảnh được cắt tỉa gọn gàng, tạo nên một không gian sống thư thái, gần gũi với thiên nhiên. Từ góc nhìn trên cao, ta thấy sân trước nhà có một khoảng hiên nhỏ lát gạch sạch sẽ, dẫn vào cửa chính, và trên mái bằng có đặt một bồn nước. Tổng thể ngoại thất ngôi nhà toát lên vẻ đẹp hiện đại, tinh tế và ấm cúng.




Phối cảnh bóc mái nhà cấp 4 chữ L hiện đại 2 phòng ngủ
Trong lĩnh vực thiết kế kiến trúc, việc giúp khách hàng hình dung chính xác công trình trước khi thi công là một yếu tố then chốt quyết định sự thành công của dự án. Hiểu được điều đó, AHACO không ngừng nâng cấp chất lượng hồ sơ thiết kế, trong đó nổi bật nhất là phối cảnh bóc mái – công cụ thể hiện không gian trực quan và toàn diện mà rất ít đơn vị khác trên thị trường có thể cung cấp.
Phối cảnh bóc mái là hình thức diễn họa 3D đặc biệt, cho phép nhìn xuyên từ mái nhà xuống toàn bộ không gian bên trong, giống như một lát cắt tổng thể của công trình. Qua đó, khách hàng có thể dễ dàng quan sát:
Cách bố trí công năng từng phòng
Mối liên kết giữa các không gian sinh hoạt
Sự lưu thông gió và ánh sáng tự nhiên trong nhà
Tính hợp lý, tiện nghi và thẩm mỹ tổng thể của thiết kế
Thay vì phải tưởng tượng qua mặt bằng kỹ thuật hoặc phối cảnh từng góc nhỏ, chỉ với một hình ảnh bóc mái, khách hàng đã có thể hiểu rõ thiết kế một cách toàn diện, trực quan và sinh động nhất.
Không phải đơn vị thiết kế nào cũng đủ năng lực chuyên môn và đầu tư thời gian để triển khai phối cảnh bóc mái trong hồ sơ thiết kế. Tuy nhiên, tại Ahaco, đây là một phần tiêu chuẩn trong bộ hồ sơ kiến trúc hoàn chỉnh – minh chứng cho sự nghiêm túc và chuyên nghiệp trong từng dự án.




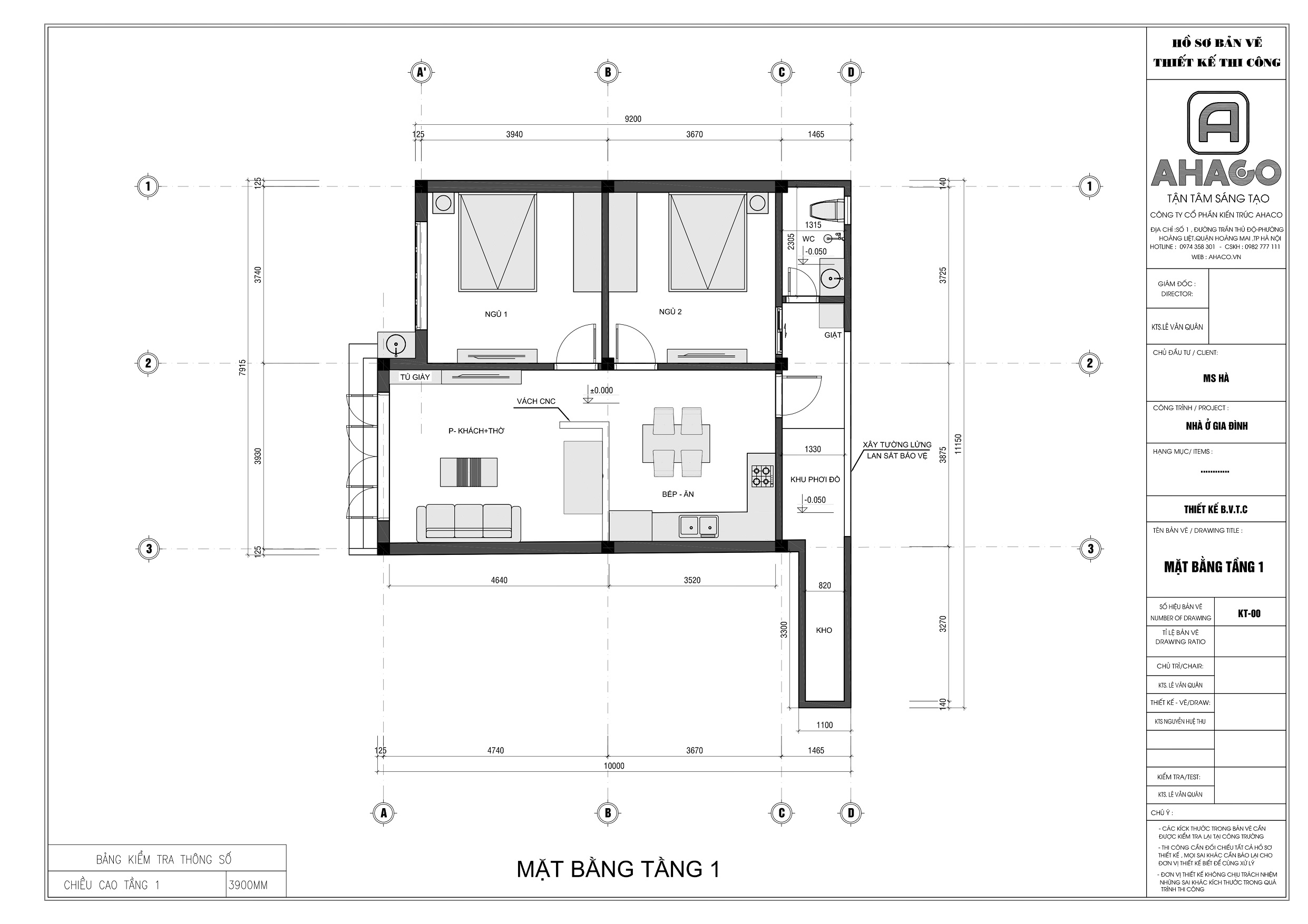
Mặt bằng 2D nhà cấp 4 chữ L hiện đại 2 phòng ngủ
Phía bên trong, nhà được bố trí công năng hợp lý với phòng khách rộng rãi, phòng bếp tiện nghi, 2 phòng ngủ thoải mái và nhà vệ sinh hiện đại. Mỗi phòng đều được thiết kế tỉ mỉ, chú trọng đến từng chi tiết nhỏ, mang đến cho gia chủ một không gian sống tiện nghi và sang trọng.
Công năng tầng 1
- Phòng bếp + ăn
- Phòng khách + thờ
- 2 Phòng ngủ
- 1 Vệ sinh
- kho

Dự toán chi phí nhà cấp 4 chữ L hiện đại 2 phòng ngủ
AHACO – Tiên phong áp dụng công nghệ Bim vào trong bản vẽ thiết kế, đề xuất khối lượng dự toán. Dựa vào bảng khái toán xây thô quý vị có thể mua đặt cọc trước vật liệu để giữ giá, giúp dự trù được kinh phí thực tế, để tránh phát sinh trong quá trình xây dựng, và còn giúp mình có thể chủ động gọi vật liệu trong quá trình thi công. Như quý vị đang thấy ở đây là bảng dự toán chi phí xây thô của công trình địa chỉ tại Hải Dương : Chi phí gạch xây vào khoảng 26 triệu, chi phí cát xây là 7 triệu đồng, chi phí nhân công xây dựng là 103 triệu, và tổng chi phí xây thô của công trình này vào khoảng 381 triệu thôi quý vị nhé!

Kết Luận
Mẫu nhà cấp 4 chữ L 2 phòng ngủ hiện đại là sự kết hợp hoàn hảo giữa thẩm mỹ, công năng và chi phí. Nếu bạn đang tìm kiếm một không gian sống tiện nghi, thoáng đãng cho gia đình nhỏ, đây chính là lựa chọn đáng cân nhắc nhất.
Liên hệ ngay với chúng tôi để nhận tư vấn và thiết kế chi tiết bản vẽ nhà cấp 4 chữ L 2 phòng ngủ tối ưu nhất!
DỰ ÁN LIÊN QUAN
Mẫu nhà 2 tầng 1 tum mặt tiền 8m
Mr Thế Anh

