Mẫu nhà 9x15m 3 phòng ngủ
Gia Lộc
Đã xem: 53
Mã dự án:

- Diện tích: 9 x 15 m
- Phòng ngủ: 3
- Số tầng: 1
- Tầng hầm:
- Khách hàng: Mr Thế
- Địa chỉ: Gia Lộc
- Chi phí đầu tư: 746 triệu
Mô tả dự án
Với diện tích nhà 9x15m mặt tiền rộng 9m và chiều sâu 15m, các mẫu nhà này đang trở thành lựa chọn hàng đầu cho các gia đình từ 4-6 thành viên. Sự cân bằng giữa không gian sinh hoạt chung và sự riêng tư của 3 phòng ngủ tạo nên một tổ ấm lý tưởng.
Phối cảnh ngoại thất mẫu nhà 9x15m 3 phòng ngủ
Trong tâm trí mỗi người, ngôi nhà không chỉ là nơi để che mưa che nắng, mà còn là biểu tượng của sự bình an và thành quả sau những ngày dài làm việc. Ngôi nhà mà tôi muốn miêu tả hôm nay chính là một kiệt tác kiến trúc mái Nhật hiện đại, toát lên vẻ đẹp thanh lịch và sự tiện nghi ngay từ cái nhìn đầu tiên.
Nhìn từ xa, ngôi nhà nổi bật với hệ mái Nhật màu xanh than lịch lãm. Những lớp ngói được xếp chồng lên nhau đều tặn, có độ dốc vừa phải, không chỉ giúp thoát nước mưa tốt mà còn tạo nên một diện mạo thanh thoát, nhẹ nhàng. Sắc xanh của mái kết hợp hài hòa với tông màu trắng chủ đạo của tường nhà, điểm xuyết thêm những mảng ốp đá trang trí màu xám ghi và đen, tạo nên một tổng thể màu sắc sang trọng và không bao giờ lỗi mốt.

Cổng chính và hàng rào được thiết kế đồng nhất với phong cách của ngôi nhà. Bức tường bao kiên cố được sơn trắng, xen kẽ là những ô thoáng bằng nan sắt đen tinh tế, vừa đảm bảo sự riêng tư, vừa giúp không gian bên trong luôn đón được gió trời. Bước qua cánh cổng là khoảng sân rộng rãi được lát gạch xám chống trơn trượt, tạo nên một không gian thoáng đãng cho lũ trẻ vui đùa hay để những chiếc xe gia đình.
Điểm nhấn ấn tượng nhất chính là khu vực sảnh chính. Hai chiếc cột trụ vuông vức, vững chãi được trang trí bằng đèn treo tường hiện đại, soi sáng lối đi vào mỗi tối. Hệ cửa chính được làm bằng kính cường lực khung nhôm xingfa đen cao cấp, không chỉ bền bỉ mà còn giúp kết nối không gian bên trong nhà với thiên nhiên bên ngoài. Ánh sáng mặt trời len lỏi qua những ô kính, làm bừng sáng cả căn phòng khách sang trọng phía sau cánh cửa.

Xung quanh chân tường và các góc sân, những bồn hoa nhỏ được chăm chút kỹ lưỡng với sắc hoa rực rỡ và những tán cây xanh mướt. Một cây tùng nhỏ được tạo dáng nghệ thuật đặt ngay cạnh cửa sổ lớn như một nét chấm phá đậm chất Á Đông, mang lại cảm giác bình yên và thư thái.


Ngôi nhà không quá phô trương nhưng lại khiến bất cứ ai đi ngang qua cũng phải ngoái nhìn bởi sự tinh tế trong từng đường nét. Đó không chỉ là một công trình xây dựng bằng gạch đá, mà là một tổ ấm lý tưởng, nơi mỗi góc nhỏ đều tràn đầy ánh sáng và hơi thở của sự sống hiện đại.
Phối cảnh bóc mái mẫu nhà 9x15m 3 phòng ngủ
Trong quy trình thiết kế chuyên nghiệp của AHACO, phối cảnh bóc mái (hay còn gọi là mặt bằng định vị nội thất 3D) là một bản vẽ cực kỳ quan trọng giúp chủ đầu tư có cái nhìn trực quan nhất về không gian sống.
Thông thường, một bộ phối cảnh bóc mái của AHACO sẽ bao gồm các thành phần chi tiết sau:
1. Phân chia công năng mặt bằng
Đây là phần cốt lõi, thể hiện rõ ràng vị trí và diện tích của từng khu vực trong nhà:
Các phòng chức năng: Vị trí phòng khách, bếp ăn, các phòng ngủ và khu vực vệ sinh được sắp xếp theo đúng bản vẽ kỹ thuật.
Giao thông đi lại: Thể hiện hành lang, lối đi giữa các phòng, vị trí cầu thang (nếu là nhà tầng) để chủ nhà hình dung được sự thuận tiện trong sinh hoạt hàng ngày.
2. Sắp xếp nội thất cơ bản
Khác với bản vẽ 2D đen trắng, phối cảnh bóc mái 3D mô phỏng đầy đủ đồ đạc:
Vị trí kê đồ: Cách đặt sofa, bàn ăn, giường ngủ, tủ quần áo… giúp bạn kiểm tra xem không gian có bị chật chội hay không.
Kích thước thực tế: Giúp gia chủ hình dung được tỉ lệ của nội thất so với diện tích căn phòng.
3. Chi tiết cấu trúc và kỹ thuật mái
Đúng như tên gọi “bóc mái”, bản vẽ này cho phép nhìn xuyên qua hệ mái để thấy:
Cấu tạo mái: Với các mẫu nhà mái Nhật hoặc mái Thái, nó thể hiện hệ khung kèo hoặc cách đổ trần bê tông.
Hệ thống kỹ thuật áp mái: Vị trí đặt bồn nước, thái dương năng, hệ thống thoát nước mái hoặc các ô giếng trời lấy sáng.
4. Màu sắc và vật liệu hoàn thiện
Bản vẽ này cung cấp cái nhìn thực tế về thẩm mỹ nội thất:
Sàn nhà: Loại gạch lát hoặc gỗ lát sàn.
Màu sơn tường: Sự phối hợp màu sắc giữa các mảng tường trong phòng.
Cửa: Vị trí và chất liệu cửa ra vào, cửa sổ để tính toán hướng đón ánh sáng tự nhiên.
Lợi ích khi có phối cảnh bóc mái:
Tránh sai sót: Gia chủ dễ dàng phát hiện những điểm chưa hợp lý trong bố cục để yêu cầu kiến trúc sư chỉnh sửa ngay từ khâu thiết kế.
Dễ dàng giám sát: Đội ngũ thợ thi công có cái nhìn tổng thể để đặt các đầu chờ điện, nước chính xác theo vị trí nội thất.
Tiết kiệm thời gian: Giúp việc chọn mua nội thất sau này trở nên nhanh chóng và đồng bộ hơn.




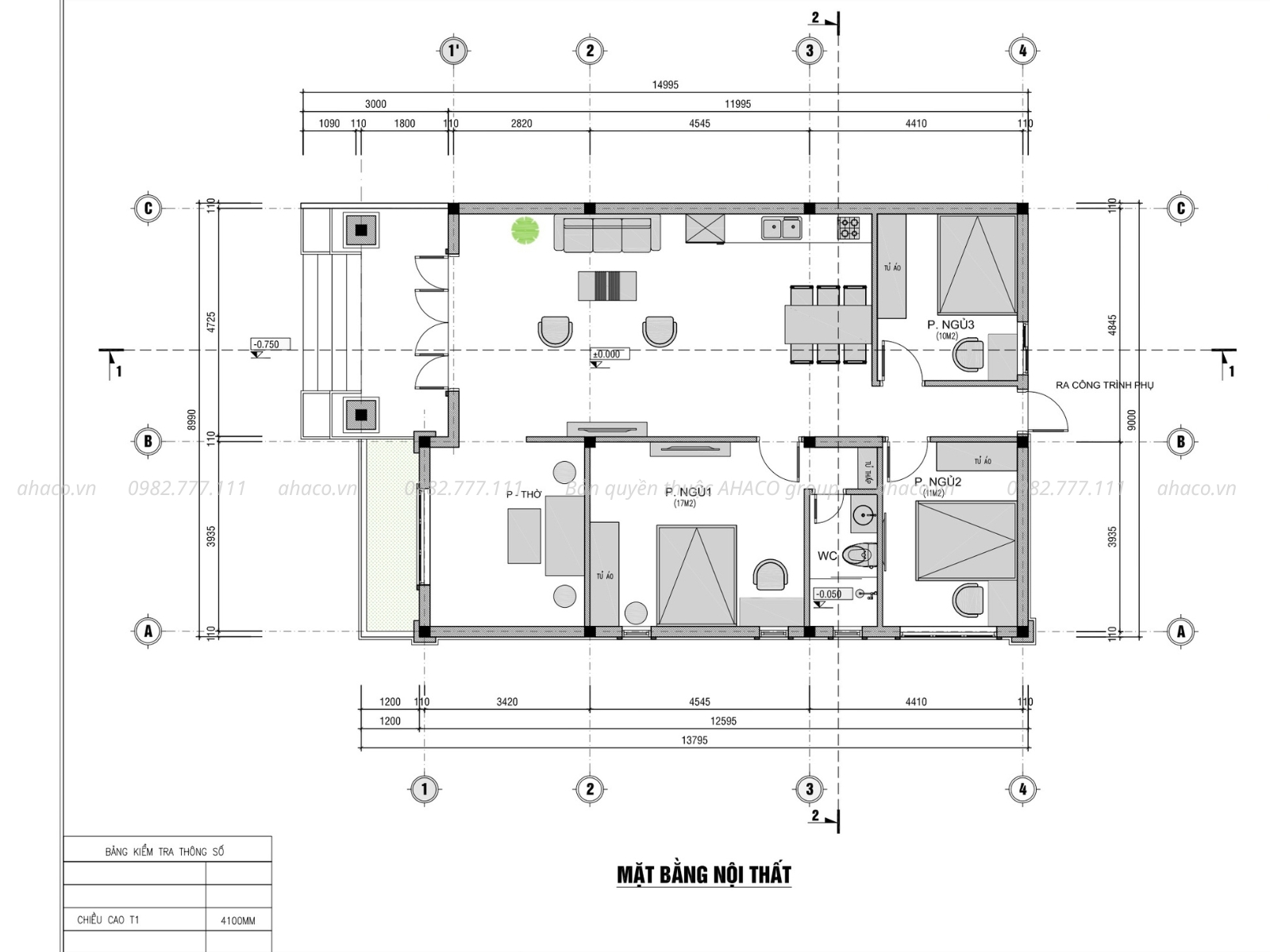
Mặt bằng công năng mẫu nhà 9x15m 3 phòng ngủ
Mẫu nhà cấp 4 hiện đại tại Hải Dương không chỉ đáp ứng yêu cầu sinh hoạt của chủ đầu tư về công năng, phong thủy mà còn tạo nên một không gian thư giãn thư thái, thoải mái và gần gũi với thiên nhiên cho từng thành viên trong gia đình chủ đầu tư. Hãy cùng khám phá cách sắp xếp khoa học thông minh tiện ích dưới đây nhé
- Không gian phòng khách có diện tích 20 m2
- Phòng thờ có diện tích là 11 m2
- Phòng bếp cùng phòng ăn có diện tích 15 m2
- Phòng ngủ 01 có diện tích 10 m2
- Phòng ngủ 02 có diện tích 11 m2
- Phòng ngủ 03 có diện tích 17 m2
- 01 Phòng vệ sinh 4 m2

Dự toán xây thô mẫu nhà 9x15m 3 phòng ngủ
AHACO – Tiên phong áp dụng công nghệ Bim vào trong bản vẽ thiết kế. Dựa vào bảng dự toán chi phí xây thô, quý vị có thể mua và đặt cọc trước nguyên vật liệu để giữ giá, giúp dự trù kinh phí thực tế để tránh phát sinh trong quá trình thi công. Và còn giúp mình chủ động gọi nguyên vật liệu trong quá trình xây dựng. Như quý vị đang thấy ở đây là bảng dự toán chi phí xây thô của công trình có địa chỉ tại Hải Dương ; chi phí gạch xây là 48 triệu đồng, chi phí cát xây là 14 triệu, chi phí nhân công xây dựng vào khoảng 213 triệu và tổng chi phí xây thô của công trình này vào khoảng 746 triệu đồng quý vị nhé!

Kết luận:
Mẫu nhà 9x15m 3 phòng ngủ là sự lựa chọn thông minh, đáp ứng đầy đủ nhu cầu thẩm mỹ và công năng. Hy vọng bài viết này đã cung cấp cho bạn những ý tưởng tuyệt vời cho ngôi nhà tương lai.
DỰ ÁN LIÊN QUAN
Mẫu nhà 2 tầng 1 tum mặt tiền 8m
Mr Thế Anh

