Mẫu nhà 5x16m hiện đại 4 phòng ngủ
Bắc Giang
Đã xem: 42
Mã dự án:

- Diện tích: 5 x 16 m
- Phòng ngủ: 4
- Số tầng: 2
- Tầng hầm:
- Khách hàng: Mr Hoàng
- Địa chỉ: Bắc Giang
- Chi phí đầu tư: 904 triệu
Mô tả dự án
Trong bối cảnh quỹ đất tại các đô thị ngày càng hạn chế, những mẫu nhà diện tích 5x16m đang trở thành lựa chọn phổ biến của nhiều gia đình. Với thiết kế thông minh, tối ưu không gian và phong cách kiến trúc hiện đại, mẫu nhà 5x16m 4 phòng ngủ không chỉ đảm bảo công năng sử dụng mà còn mang lại vẻ đẹp sang trọng, tiện nghi cho cuộc sống hàng ngày.
Phối cảnh ngoại thất mẫu nhà 5x16m hiện đại 4 phòng ngủ
Mẫu nhà 5x16m gây ấn tượng ngay từ cái nhìn đầu tiên với phong cách kiến trúc hiện đại, tối giản nhưng vẫn toát lên vẻ sang trọng và tinh tế. Tổng thể công trình sử dụng những hình khối vuông vức, mạnh mẽ kết hợp cùng các đường cong mềm mại ở khu vực mặt tiền, tạo nên sự cân bằng hài hòa giữa nét cá tính và sự thanh lịch.
Phần mặt tiền của ngôi nhà nổi bật với gam màu trắng chủ đạo, mang lại cảm giác sạch sẽ, tinh khôi và giúp công trình luôn nổi bật giữa không gian xung quanh. Trên nền màu trắng ấy, các chi tiết điểm nhấn được khéo léo bố trí bằng vật liệu giả gỗ ấm áp, tạo nên sự tương phản nhẹ nhàng nhưng rất cuốn hút. Hệ lam trang trí cùng những mảng ốp gỗ ở ban công không chỉ giúp tăng tính thẩm mỹ mà còn mang lại cảm giác gần gũi, thân thiện cho tổng thể kiến trúc.

Tầng 1 của ngôi nhà được thiết kế với hệ cổng sắt hiện đại kết hợp các nan kim loại thẳng đứng, tạo nên vẻ chắc chắn và an toàn nhưng vẫn đảm bảo sự thông thoáng. Cổng chính được kết hợp cùng những mảng ốp gỗ trang trí ở trung tâm, giúp mặt tiền trở nên nổi bật và sang trọng hơn. Phía trên khu vực cổng là hệ mái che kính cong trong suốt, vừa có tác dụng che nắng mưa cho khu vực sân trước, vừa giúp ánh sáng tự nhiên dễ dàng xuyên qua, mang lại cảm giác thoáng đãng cho không gian bên dưới.
Tầng 2 chính là điểm nhấn nổi bật nhất của toàn bộ công trình. Ban công được thiết kế rộng rãi với lan can sắt sơn tĩnh điện màu đen, kết hợp cùng các bồn cây xanh nhỏ xinh tạo nên một khoảng không gian thư giãn đầy sức sống. Phần khung vòm cong mềm mại ôm trọn hệ cửa kính lớn phía trước, giúp mặt tiền trở nên mềm mại và thanh thoát hơn so với các thiết kế nhà phố thông thường. Hệ cửa kính khung nhôm lớn không chỉ mang lại vẻ đẹp hiện đại mà còn giúp không gian bên trong luôn tràn ngập ánh sáng tự nhiên.

Phía bên trái ban công là khu vực cửa sổ nhỏ được thiết kế thêm mái che lam kim loại, vừa tạo điểm nhấn kiến trúc vừa giúp hạn chế ánh nắng trực tiếp. Chi tiết này tuy nhỏ nhưng góp phần làm cho mặt tiền trở nên sinh động và có chiều sâu hơn. Bên cạnh đó, hệ đèn tường trang trí được bố trí hợp lý ở hai bên cửa ban công, giúp công trình trở nên nổi bật và lung linh hơn khi về đêm.
Nhìn từ góc trên cao, tổng thể ngôi nhà càng thể hiện rõ nét sự gọn gàng và khoa học trong thiết kế. Mái nhà được bố trí hệ tôn chống nóng cùng khu vực đặt bồn nước gọn gàng ở phía sau, đảm bảo yếu tố thẩm mỹ và tiện lợi trong sử dụng. Kiến trúc mái bằng hiện đại không chỉ giúp công trình trông thanh thoát hơn mà còn dễ dàng bố trí thêm các công năng như sân phơi hoặc khu vực kỹ thuật.

Bao quanh ngôi nhà là hệ tường rào thấp kết hợp mảng xanh được chăm chút cẩn thận. Những hàng cây, bụi cây và thảm xanh giúp không gian trở nên tươi mát, tạo cảm giác gần gũi với thiên nhiên và giảm bớt sự khô cứng của kiến trúc bê tông. Khi nhìn tổng thể, ngôi nhà hiện lên như một tổ ấm hiện đại, nhẹ nhàng nhưng đầy tinh tế giữa khu phố.
Với sự kết hợp hài hòa giữa hình khối kiến trúc, vật liệu hiện đại và các mảng xanh trang trí, mẫu nhà 5x16m này không chỉ đáp ứng yêu cầu về thẩm mỹ mà còn mang lại cảm giác thoải mái, dễ chịu cho gia chủ. Đây thực sự là một mẫu nhà phố lý tưởng dành cho những gia đình yêu thích phong cách sống hiện đại, tiện nghi nhưng vẫn gần gũi với thiên nhiên.
Phối cảnh bóc mái mẫu nhà 5x16m hiện đại 4 phòng ngủ
Phối cảnh bóc mái là một trong những điểm nổi bật trong hồ sơ thiết kế của AHACO, giúp gia chủ có thể nhìn thấy toàn bộ không gian bên trong ngôi nhà theo dạng 3D trực quan trước khi công trình được xây dựng. Nhờ đó, chủ đầu tư không chỉ xem bản vẽ kỹ thuật mà còn dễ dàng hình dung cách bố trí từng khu vực trong thực tế.
Trước hết, phối cảnh bóc mái giúp gia chủ hiểu rõ cách sắp xếp công năng của từng tầng. Thông qua hình ảnh bóc mái, các không gian như phòng khách, bếp, phòng ngủ, phòng thờ hay nhà vệ sinh đều được thể hiện rõ vị trí và diện tích. Điều này giúp chủ nhà dễ dàng nắm được luồng di chuyển trong nhà và sự liên kết giữa các phòng.
Bên cạnh đó, phối cảnh bóc mái giúp hình dung không gian một cách trực quan hơn so với bản vẽ mặt bằng thông thường. Thay vì chỉ nhìn các đường nét kỹ thuật, gia chủ có thể thấy được cách bố trí nội thất, lối đi, cầu thang và khoảng không gian giữa các phòng. Nhờ vậy, việc tưởng tượng về ngôi nhà tương lai trở nên đơn giản và rõ ràng hơn.
Một lợi ích quan trọng khác là giúp gia chủ dễ dàng điều chỉnh thiết kế trước khi thi công. Khi nhìn thấy toàn bộ cấu trúc không gian, nếu có khu vực chưa hợp lý như phòng quá nhỏ, lối đi chưa thuận tiện hay vị trí phòng chưa phù hợp, gia chủ có thể trao đổi với kiến trúc sư để điều chỉnh kịp thời. Điều này giúp hạn chế tối đa việc sửa chữa khi công trình đã xây dựng.
Ngoài ra, phối cảnh bóc mái còn hỗ trợ quá trình thi công hiệu quả hơn. Đội ngũ kỹ thuật và chủ nhà đều có chung một hình dung rõ ràng về công trình, từ đó giảm sai sót và đảm bảo ngôi nhà được xây dựng đúng với thiết kế ban đầu.
Có thể nói, phối cảnh bóc mái của AHACO không chỉ giúp khách hàng dễ hiểu bản vẽ mà còn giúp kiểm soát tốt công năng, thẩm mỹ và quá trình thi công của ngôi nhà, mang lại sự yên tâm cho gia chủ ngay từ giai đoạn thiết kế.




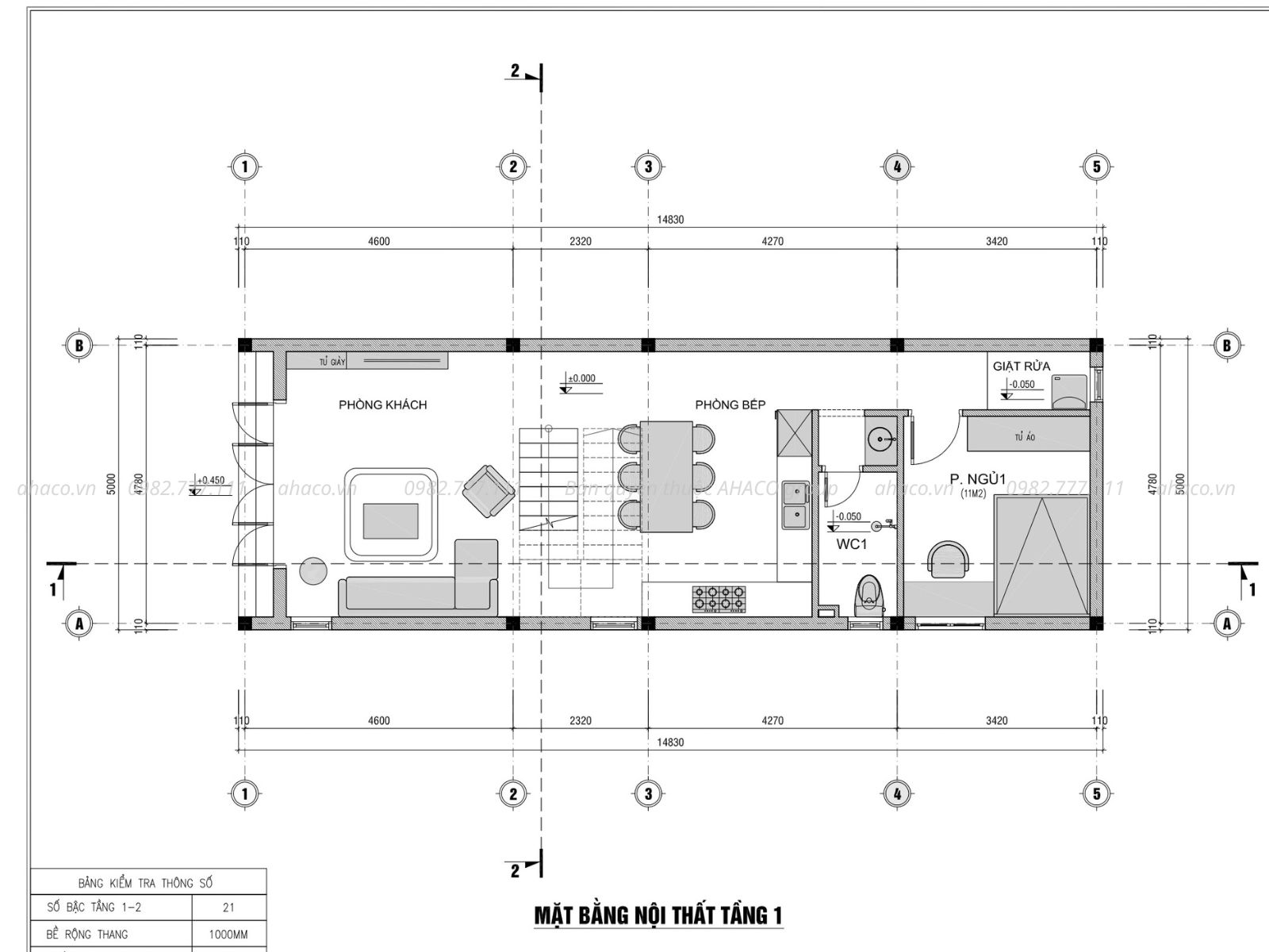
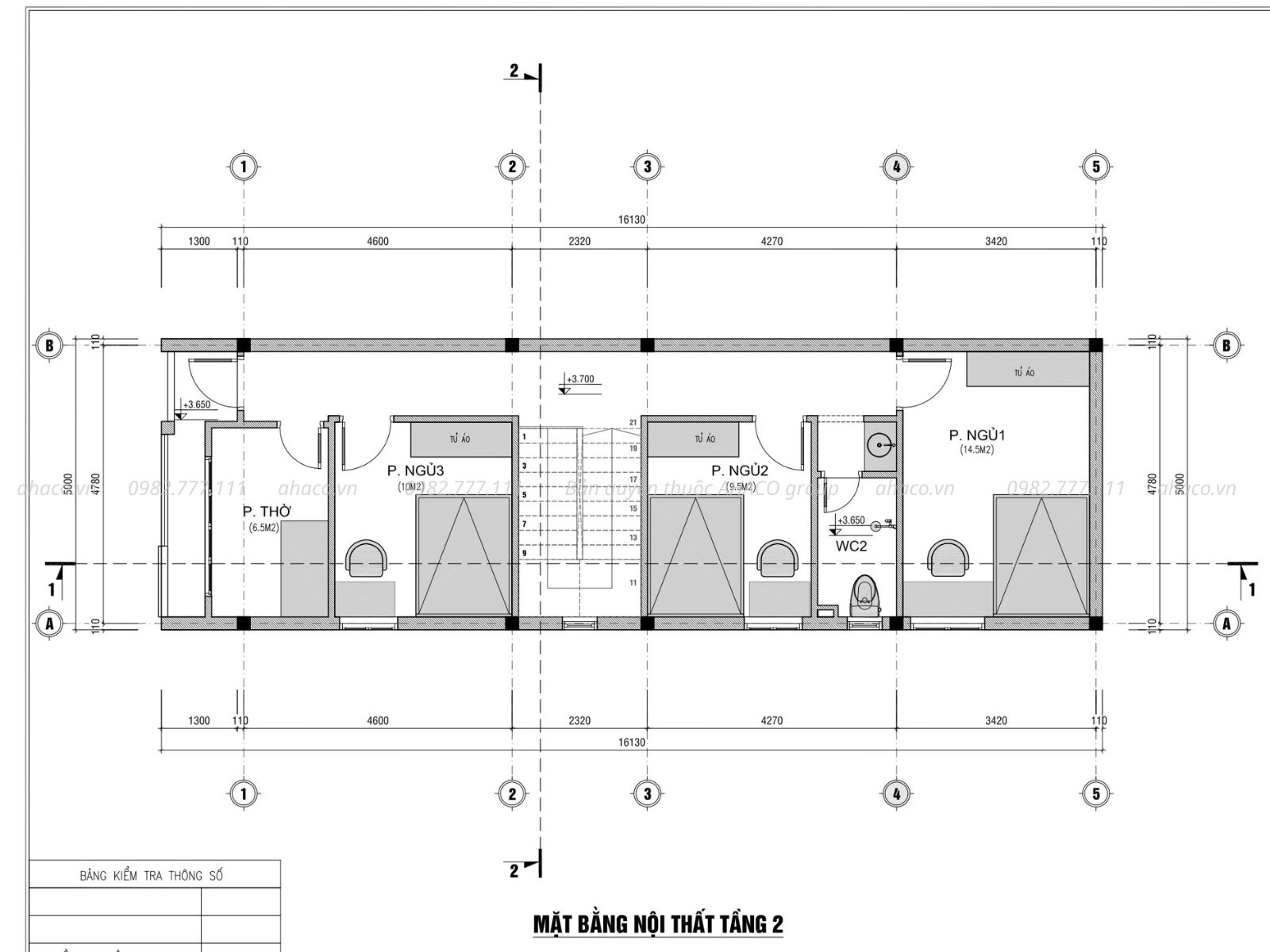
Mặt bằng công năng mẫu nhà 5x16m hiện đại 4 phòng ngủ
Mẫu nhà này được kiến trúc sư AHACO tối ưu công năng, bố trí nội thất khoa học, đảm bảo tiện nghi cho từng thành viên trong gia đình.
Công năng tầng 1
Phòng khách
Phòng bếp
Phòng ăn
1 Phòng ngủ
1 WC

Công năng tầng 2
3 Phòng ngủ
Phòng thờ
1 WC

Bảng khái toán xây thô mẫu nhà 5x16m hiện đại 4 phòng ngủ
Chi phí xây dựng phần thô mẫu nhà 2 tầng 5x16m chỉ khoảng 904 triệu. Bao gồm chi phí nhân công xây dựng 313 triệu và chi phí vật liệu 550 triệu , chi phí khác 36 triệu. Chi phí thực tế có thể thay đổi tùy thuộc vào nhiều yếu tố như địa điểm thi công, chất lượng vật liệu , thời điểm thi công . Bạn nên liên hệ trực tiếp với AHACO để có được báo giá chính xác nhất cho ngôi nhà của mình.

Kết luận
Mẫu nhà 5x16m hiện đại 4 phòng ngủ là lựa chọn lý tưởng cho những gia đình đang sở hữu lô đất nhà phố có mặt tiền 5m. Với thiết kế tối ưu công năng, kiến trúc hiện đại và chi phí xây dựng hợp lý, mẫu nhà này không chỉ đáp ứng nhu cầu sinh hoạt mà còn mang lại không gian sống tiện nghi, thẩm mỹ và bền vững theo thời gian.
Nếu được thiết kế bởi đội ngũ kiến trúc sư giàu kinh nghiệm, ngôi nhà 5x16m hoàn toàn có thể trở thành tổ ấm lý tưởng, nơi mọi thành viên trong gia đình cùng tận hưởng cuộc sống thoải mái và trọn vẹn.
DỰ ÁN LIÊN QUAN
Mẫu nhà 2 tầng 1 tum mặt tiền 8m
Mr Thế Anh

