Mẫu nhà 3 tầng mặt tiền 6m 3 phòng ngủ ở Nam Định
Nam Định
Đã xem: 134
Mã dự án:

- Diện tích: 6 x 13.5 m
- Phòng ngủ: 3
- Số tầng: 3
- Tầng hầm:
- Khách hàng: Mr Văn
- Địa chỉ: Nam Định
- Chi phí đầu tư: 919 triệu
Mô tả dự án
Nếu bạn đang tìm kiếm mẫu nhà 3 tầng mặt tiền 6m vừa đẹp, vừa tối ưu công năng thì thiết kế nhà 3 tầng 3 phòng ngủ ở Nam Định dưới đây sẽ là gợi ý hoàn hảo. Với phong cách hiện đại, hình khối mạnh mẽ và cách bố trí không gian hợp lý, ngôi nhà mang đến sự tiện nghi, thoải mái cho gia đình 4–6 người.
Phối cảnh ngoại thất mẫu nhà 3 tầng mặt tiền 6m 3 phòng ngủ ở Nam Định
Ngôi nhà 3 tầng mặt tiền 6m tại Nam Định gây ấn tượng ngay từ cái nhìn đầu tiên bởi phong cách kiến trúc hiện đại, sang trọng và tinh tế. Mặt tiền ngôi nhà được thiết kế vuông vức, sử dụng tông màu trắng chủ đạo kết hợp điểm nhấn ốp đá tối và gỗ trang trí trần mang lại cảm giác ấm cúng, gần gũi. Hệ cửa kính lớn cùng ban công kính trong suốt giúp không gian bên trong luôn tràn ngập ánh sáng tự nhiên, đồng thời tạo nên vẻ thanh thoát, nhẹ nhàng cho tổng thể công trình.
Tầng thượng được bố trí giàn lam hiện đại cùng khu vực trồng cây xanh, tiểu cảnh và bàn trà thư giãn – nơi gia chủ có thể tận hưởng không khí trong lành, ngắm nhìn toàn cảnh xung quanh. Từng chi tiết được xử lý khéo léo, hài hòa giữa yếu tố thẩm mỹ và công năng, mang lại một không gian sống tiện nghi, gần gũi với thiên nhiên, phù hợp với xu hướng thiết kế nhà phố hiện nay.




Mặt bằng bóc mái mẫu nhà 3 tầng mặt tiền 6m 3 phòng ngủ ở Nam Định
“Mặt bằng bóc mái” là bản vẽ thể hiện chi tiết phần mái của một công trình khi được tháo bỏ hoặc bóc lớp mái hiện tại, giúp nhìn rõ cấu trúc, vị trí dầm, vì kèo, các chi tiết kỹ thuật và cách bố trí các yếu tố trên mái. Thường dùng trong thiết kế, thi công, sửa chữa hoặc cải tạo nhà để đảm bảo kỹ sư, nhà thầu nắm rõ kết cấu trước khi thi công.
AHACO tự hào giới thiệu mặt bằng bóc mái của các công trình do công ty thực hiện, giúp khách hàng và đối tác dễ dàng quan sát cấu trúc mái, vị trí dầm, vì kèo và các chi tiết kỹ thuật. Với bản vẽ chi tiết và chính xác, quá trình thi công, sửa chữa hay cải tạo được thực hiện nhanh chóng, an toàn và tiết kiệm chi phí, thể hiện tinh thần chuyên nghiệp và cam kết chất lượng mà AHACO luôn đặt lên hàng đầu.





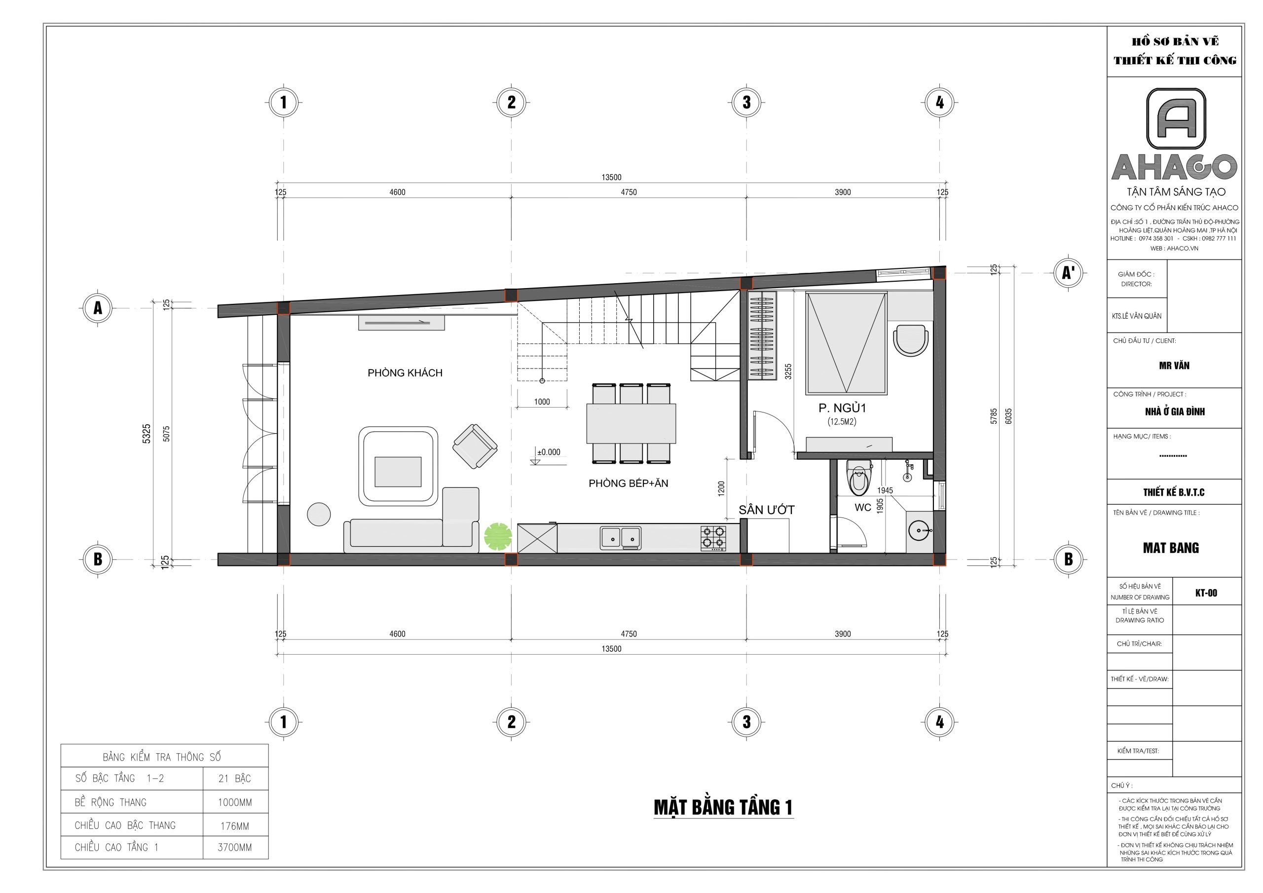
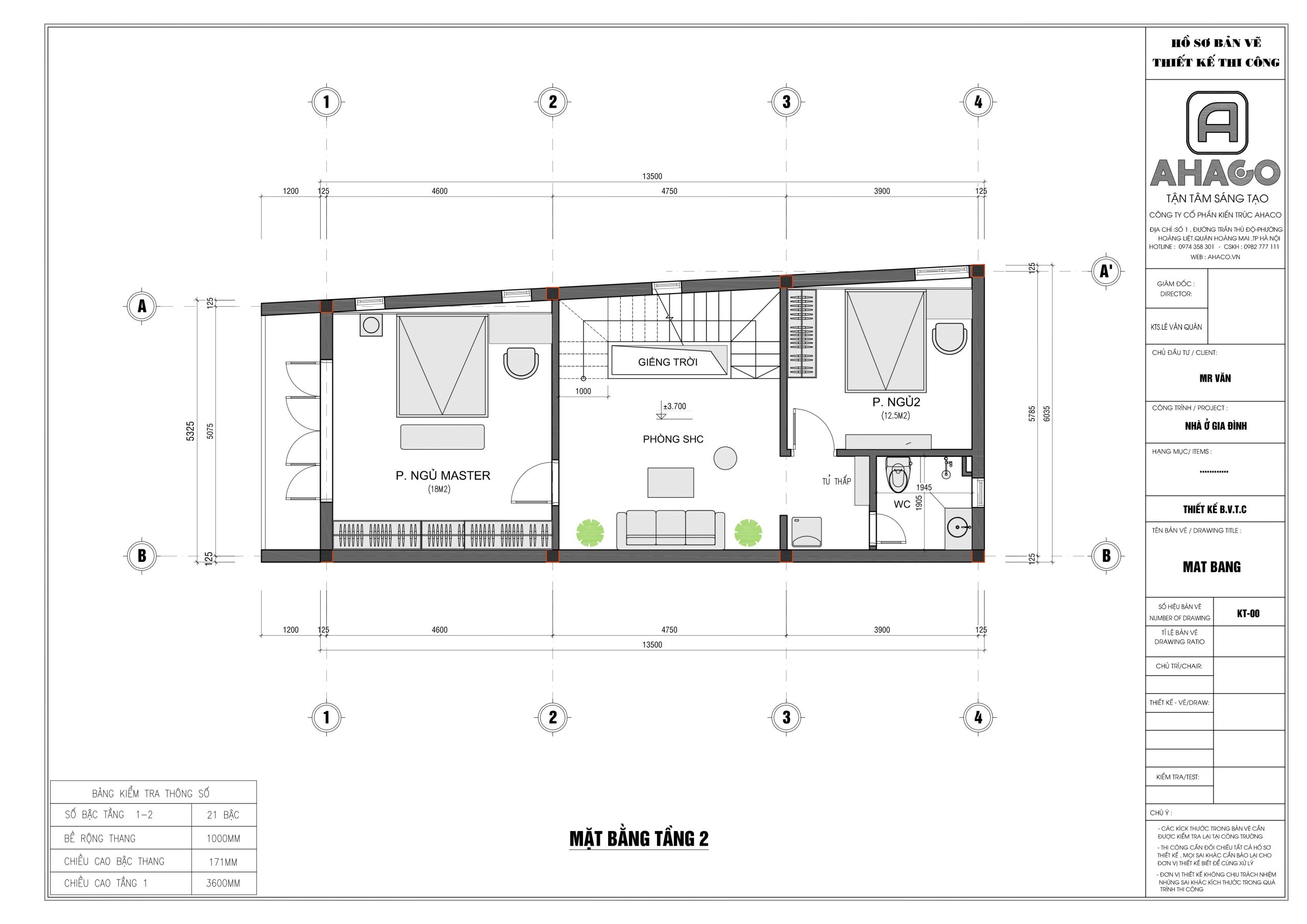
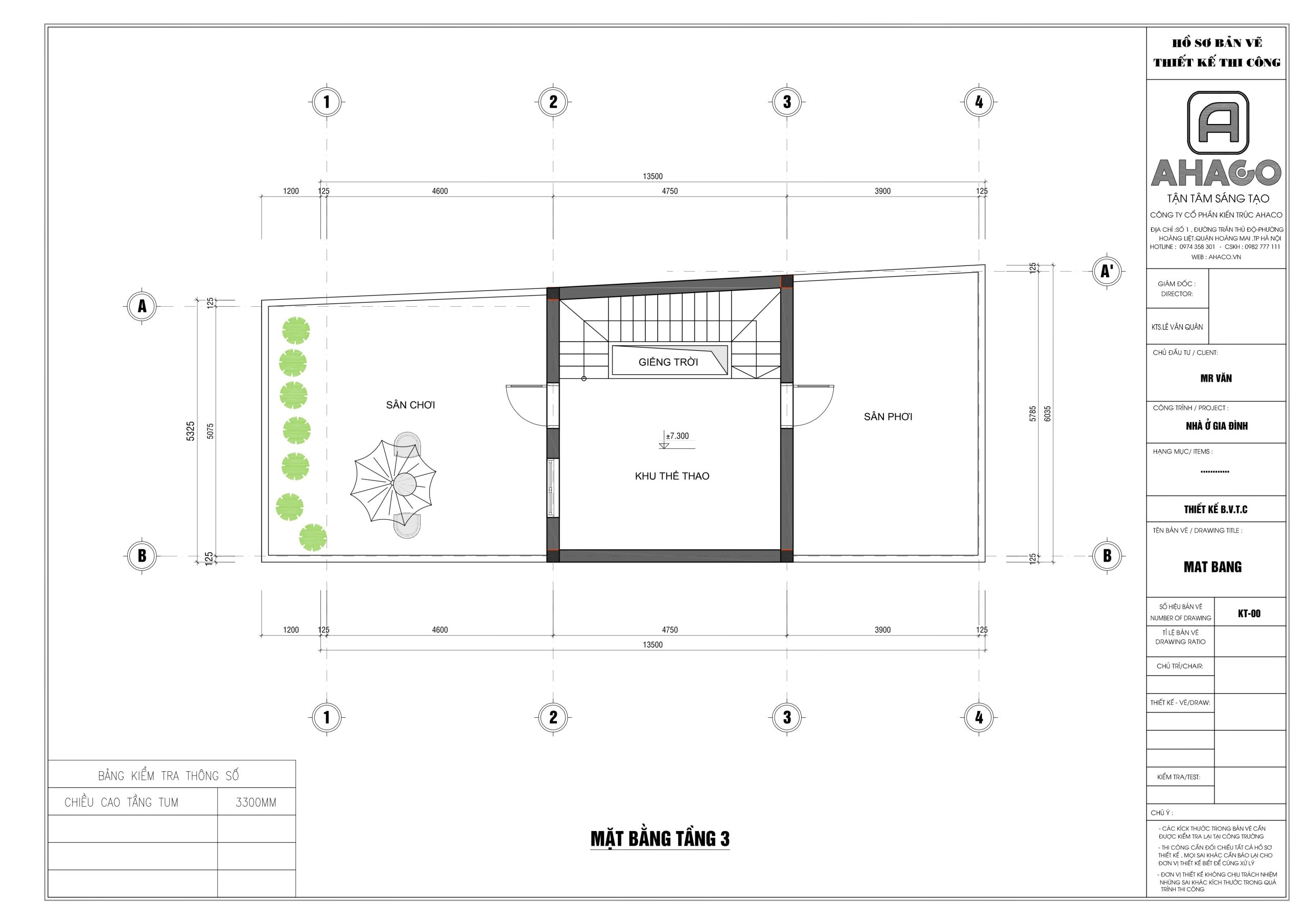
Mặt bằng công năng mẫu nhà 3 tầng mặt tiền 6m 3 phòng ngủ ở Nam Định
Để kiến tạo một không gian sống lý tưởng trong khuôn khổ nhà phố, đặc biệt là với các mẫu nhà hẹp ngang nhưng cao tầng, AHACO luôn ưu tiên thiết kế mặt bằng công năng theo nguyên tắc khoa học, tối ưu hóa diện tích và đảm bảo sự thông thoáng, tiện nghi cho mọi thành viên.
Thiết kế công năng của AHACO tập trung vào việc phân chia rõ ràng các khu vực chức năng theo từng tầng, đồng thời tạo ra sự kết nối linh hoạt giữa chúng:
Công năng tầng 1
- Phòng bếp + ăn
- Phòng khách
- 1 Phòng ngủ
- 1 Vệ sinh
- Sân ướt

Công năng tầng 2
- Phòng SHC
- 2 Phòng ngủ
- 1 Vệ sinh

Công năng tầng 3
- Khu thể thao
- Sân phơi
- Sân chơi

Bảng khái xây thô mẫu nhà 3 tầng mặt tiền 6m 3 phòng ngủ ở Nam Định
AHACO – Tiên phong áp dụng công nghệ Bim vào trong bản vẽ thiết kế . Dựa vào bảng dự toán chi phí xây thô, quý vị có thể mua và đặt cọc trước nguyên vật liệu để giữ giá, giúp dự trù kinh phí thực tế để tránh phát sinh trong quá trình thi công. Và còn giúp mình chủ động gọi nguyên vật liệu trong quá trình xây dựng. Như quý vị đang thấy ở đây là bảng dự toán chi phí xây thô của công trình có địa chỉ tại Nam Định ; chi phí gạch xây là 68 triệu đồng, chi phí cát xây là 18 triệu, chi phí sắt khoảng 159 triệu, chi phí nhân công xây dựng vào khoảng 273 triệu và tổng chi phí xây thô của công trình này vào khoảng 918 triệu đồng quý vị nhé!

Kết luận
Mẫu nhà 3 tầng mặt tiền 6m 3 phòng ngủ ở Nam Định là sự lựa chọn hoàn hảo cho những gia đình yêu thích phong cách hiện đại, tối ưu công năng và đề cao tính thẩm mỹ. Với thiết kế hài hòa, không gian mở đón sáng tự nhiên cùng mảng xanh được bố trí khéo léo ở từng tầng, ngôi nhà không chỉ đáp ứng nhu cầu sinh hoạt tiện nghi mà còn mang lại cảm giác thư thái, gần gũi với thiên nhiên. Đây là một trong những mẫu thiết kế tiêu biểu của AHACO – minh chứng cho sự sáng tạo, tận tâm và gu thẩm mỹ tinh tế trong từng công trình nhà phố hiện đại
DỰ ÁN LIÊN QUAN
Mẫu nhà 2 tầng 1 tum mặt tiền 8m
Mr Thế Anh

