Mẫu nhà 3 tầng có gara mặt tiền 9m
Đông Anh
Đã xem: 117
Mã dự án:

- Diện tích: 9 x 7 m
- Phòng ngủ: 3
- Số tầng: 3
- Tầng hầm:
- Khách hàng: Mr Tùng
- Địa chỉ: Đông Anh
- Chi phí đầu tư: 836 triệu
Mô tả dự án
Mẫu nhà 3 tầng có gara mặt tiền 9m đang trở thành xu hướng được rất nhiều gia đình lựa chọn trong những năm gần đây. Với lợi thế mặt tiền rộng, ngôi nhà dễ dàng bố trí gara ô tô, tối ưu công năng, đồng thời tạo nên kiến trúc sang trọng, bề thế và hiện đại.
Diện tích ngang 9m giúp kiến trúc sư linh hoạt trong bố trí ban công, cửa kính, mảng tường trang trí, mang đến không gian sống thoáng sáng và hợp xu hướng.
Phối cảnh ngoại thất mẫu nhà 3 tầng có gara mặt tiền 9m
Ngôi nhà phố 2 tầng với phong cách kiến trúc hiện đại và tối giản này nổi bật với sự kết hợp hài hòa giữa các vật liệu và màu sắc. Tổng thể công trình sử dụng tông màu trắng, xám đậm và đen (ốp đá) làm chủ đạo, tạo nên vẻ ngoài sang trọng và mạnh mẽ.

Tầng 1 thu hút ánh nhìn với phần ốp đá cẩm thạch màu đen có vân trắng tinh tế, mang lại cảm giác cao cấp và vững chãi. Lối vào chính nằm cạnh cửa cuốn gara, với cửa kính lớn và khung màu đen, làm nổi bật ánh sáng vàng ấm áp bên trong.

Tầng 2 sử dụng các mảng tường màu trắng và xám, được bố trí khung cửa sổ vuông vức, lớn, tạo sự thoáng đãng và đối xứng. Điểm nhấn là khu vực ban công được tô điểm bằng những hàng cây xanh rủ xuống, mang lại vẻ tươi mát, gần gũi với thiên nhiên.

Tầng 3 được thiết kế lùi vào trong, nổi bật với trần và sàn ốp vật liệu giả gỗ ấm áp, tương phản với các mảng tường trắng. Ban công ở tầng này rộng rãi, có lan can kính và trang trí thêm cây cảnh nhỏ, là không gian lý tưởng để thư giãn.

Hệ thống chiếu sáng ngoại thất được bố trí tinh tế với đèn downlight âm trần và đèn tường, không chỉ đảm bảo ánh sáng mà còn làm nổi bật các chi tiết kiến trúc và mảng xanh vào buổi tối, tạo nên một vẻ đẹp ấm cúng và cuốn hút.

Phối cảnh bóc mái mẫu nhà 3 tầng có gara mặt tiền 9m
Trong lĩnh vực thiết kế kiến trúc, phối cảnh bóc mái được xem là một trong những giải pháp đột phá giúp hiện thực hóa những ý tưởng sơ khai trên bản vẽ thành một không gian sống trực quan và sống động. Thay vì những thông số kỹ thuật khô khan của mặt bằng 2D truyền thống, công nghệ bóc mái 3D cho phép gia chủ có cái nhìn toàn diện từ trên cao, dễ dàng quan sát cách phân chia các khu vực chức năng như phòng khách, bếp ăn và các phòng ngủ.
Điểm mạnh của loại hình phối cảnh này nằm ở khả năng tối ưu hóa công năng sử dụng. Gia chủ có thể hình dung rõ ràng luồng giao thông giữa các phòng, sự sắp xếp nội thất và cách đón ánh sáng tự nhiên cho từng góc nhỏ trong ngôi nhà. Điều này không chỉ giúp chủ đầu tư an tâm hơn về tính thẩm mỹ mà còn hỗ trợ đắc lực trong việc điều chỉnh thiết kế sao cho phù hợp nhất với nhu cầu sinh hoạt thực tế trước khi bắt tay vào thi công.
Tại AHACO, mỗi bản phối cảnh bóc mái là sự kết tinh của tinh thần “Tận tâm sáng tạo”. Các kiến trúc sư chú trọng vào việc kết hợp hài hòa giữa màu sắc, vật liệu và bố cục để tạo ra một không gian sống đẳng cấp, hiện đại và tràn đầy cảm hứng. Đây chính là cầu nối hoàn hảo để biến những ngôi nhà trong mơ trở thành hiện thực, mang lại sự tiện nghi và niềm hạnh phúc bền vững cho mỗi gia đình.




Phối cảnh ngoại thất mẫu nhà 3 tầng có gara mặt tiền 9m
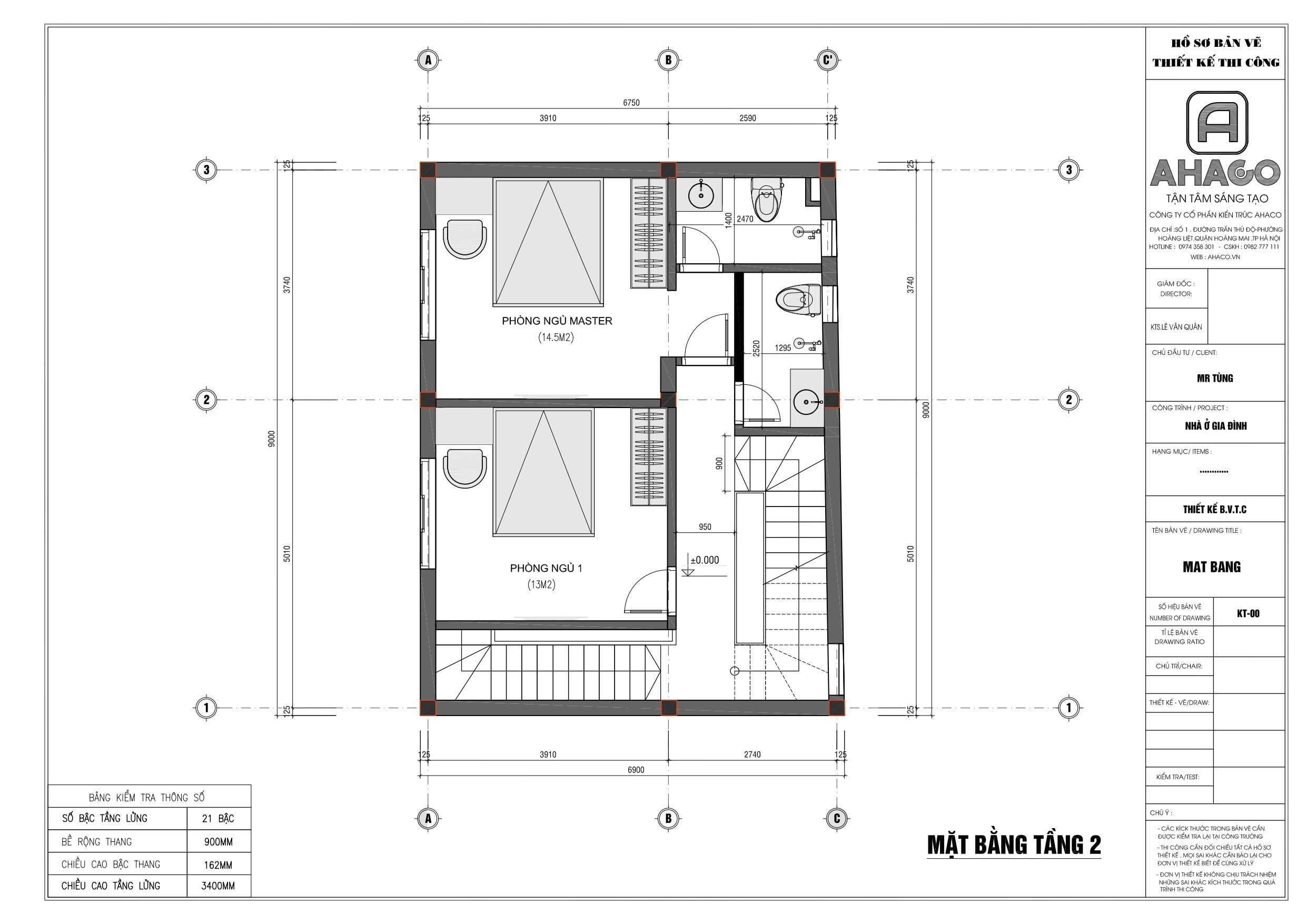
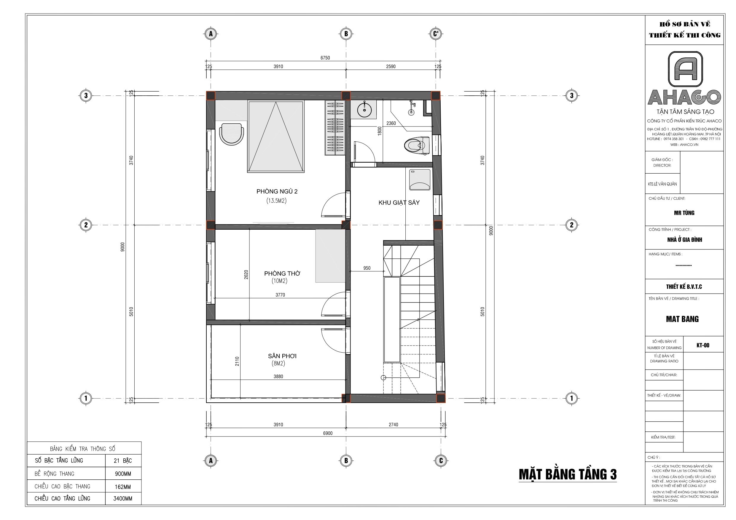
Mẫu nhà 3 tầng 9x7m được thiết kế để tận dụng tối đa diện tích đất, mang lại không gian rộng rãi và thoáng đãng. Với 3 phòng ngủ, ngôi nhà này rất phù hợp cho các gia đình có từ 3 đến 5 thành viên. Kiến trúc hiện đại kết hợp với các chi tiết tinh tế giúp ngôi nhà không chỉ đẹp mà còn đầy đủ công năng.
Công năng tầng 1
Khu Để Xe Gara
1 Phòng Khách
1 Bếp + ăn
1 Phòng ngủ
1 WC

Công năng tầng 2
2 Phòng ngủ
2 WC

Công năng tầng 3
1 Phòng ngủ
1 Phòng thờ
1 WC
Sân phơi
Khu giặt sấy

Dự toán mẫu nhà 3 tầng có gara mặt tiền 9m
Ngay sau đây chúng tôi sẽ chia sẻ với các bạn bảng dự toán chi phí xây thô mẫu nhà phố hiện đại 3 tầng được xuất ra từ công nghệ Bim giúp các bạn dự toán chính xác nhất chi phí xây dựng của ngôi nhà mình với các số liệu chính xác và rõ ràng. Như các bạn đã thấy ở đây là chi phí xây dựng công trình này chỉ hết hơn 900 triệu thôi nhé!

Kết luận
Mẫu nhà 3 tầng có gara mặt tiền 9m là lựa chọn lý tưởng cho các gia đình muốn sở hữu không gian sống rộng rãi, hiện đại và tiện nghi. Với lợi thế mặt tiền lớn, ngôi nhà không chỉ đẹp về thẩm mỹ mà còn tối ưu công năng, mang đến trải nghiệm sống thoải mái, sang trọng.
DỰ ÁN LIÊN QUAN
Mẫu nhà 2 tầng 1 tum mặt tiền 8m
Mr Thế Anh

