Mẫu nhà 3 tầng 5 phòng ngủ ngang 6m
Bắc Ninh
Đã xem: 94
Mã dự án:

- Diện tích: 6 x 18 m
- Phòng ngủ: 5
- Số tầng: 3
- Tầng hầm:
- Khách hàng: Ms Mến
- Địa chỉ: Bắc Ninh
- Chi phí đầu tư: 1.24 tỷ
Mô tả dự án
Mẫu nhà 3 tầng 5 phòng ngủ ngang 6m là lựa chọn lý tưởng cho các gia đình nhiều thành viên hoặc muốn tận dụng tối đa diện tích sử dụng. Với thiết kế hiện đại, mặt tiền 6m mang đến vẻ ngoài thanh thoát, sang trọng, đồng thời tối ưu công năng cho cả ngôi nhà.
Phối cảnh ngoại thất mẫu nhà 3 tầng 5 phòng ngủ ngang 6m
Tuyệt tác kiến trúc nhà phố hiện đại này gây ấn tượng mạnh mẽ nhờ sự kết hợp hài hòa giữa các đường nét hình học sắc sảo và vật liệu ấm áp. Ngôi nhà vươn cao ba tầng trên một mặt tiền hẹp, tận dụng tối đa khối hình vuông vắn và dứt khoát của phong cách tối giản.

Màu trắng chủ đạo bao phủ toàn bộ khối nhà, tạo nên sự thanh lịch và nền nã, được điểm xuyết bởi những mảng ốp gỗ hoặc giả gỗ màu nâu trầm ở các khu vực ban công và mái hắt, mang lại cảm giác ấm cúng và đối lập thị giác thú vị. Hệ thống ban công sử dụng kính cường lực trong suốt, giúp mở rộng không gian, đồng thời phản chiếu ánh sáng tự nhiên và làm nhẹ đi vẻ nặng nề của bê tông. Đặc biệt, chi tiết ô thoáng hình học hoặc hệ lam trang trí ở mặt tiền không chỉ là điểm nhấn kiến trúc độc đáo mà còn có chức năng chắn nắng và lấy gió hiệu quả.

Phía dưới, cổng và hàng rào được thiết kế đồng bộ, sử dụng vật liệu hiện đại và nhấn nhá bằng hàng cây xanh cắt tỉa gọn gàng, tạo ra một ranh giới tự nhiên nhưng vẫn giữ được sự riêng tư và vẻ sang trọng cho tổng thể công trình.

Phối cảnh bóc mái mẫu nhà 3 tầng 5 phòng ngủ ngang 6m
Trong lĩnh vực thiết kế và thi công xây dựng, việc hình dung một cách rõ nét về dự án trước khi triển khai là vô cùng quan trọng. Đặc biệt, đối với các công trình có kiến trúc phức tạp hoặc cần tối ưu hóa không gian, phối cảnh bóc mái trở thành một công cụ không thể thiếu. AHACO, với kinh nghiệm và chuyên môn sâu sắc, đã ứng dụng kỹ thuật này một cách hiệu quả, mang lại nhiều lợi ích vượt trội cho khách hàng.
Phối cảnh bóc mái là một dạng bản vẽ 3D hoặc mô hình kỹ thuật số, cho phép người xem quan sát cấu trúc bên trong của một tòa nhà bằng cách loại bỏ (bóc) phần mái hoặc các tầng trên cùng. Kỹ thuật này giúp phơi bày toàn bộ bố cục không gian, cách sắp xếp nội thất, hệ thống kỹ thuật (như đường ống, dây điện) và các chi tiết kiến trúc ẩn bên dưới.
Phối cảnh bóc mái không chỉ là một công cụ kỹ thuật mà còn là một cầu nối hiệu quả giữa Ahaco và khách hàng. Bằng cách mang lại cái nhìn sâu sắc và toàn diện về dự án, Ahaco giúp khách hàng hình dung rõ ràng, đưa ra quyết định tự tin, tối ưu hóa không gian và giảm thiểu rủi ro. Đây chính là minh chứng cho cam kết của Ahaco trong việc cung cấp những giải pháp thiết kế và thi công chất lượng cao, đặt lợi ích của khách hàng lên hàng đầu.





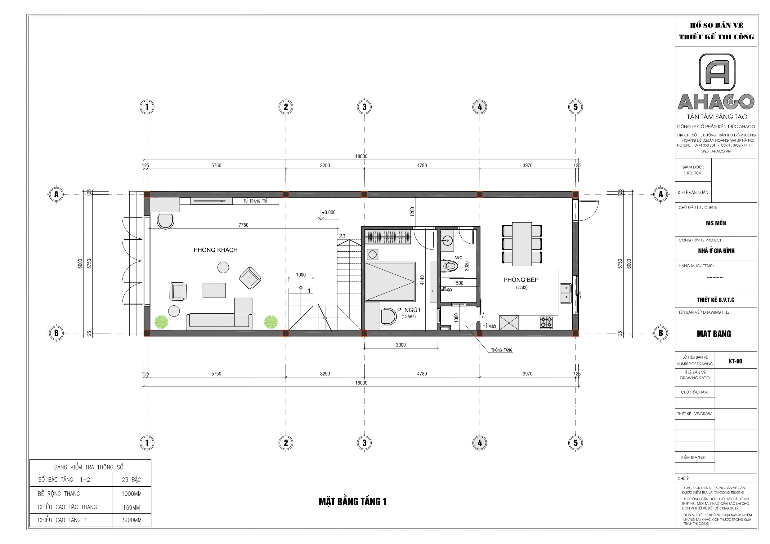
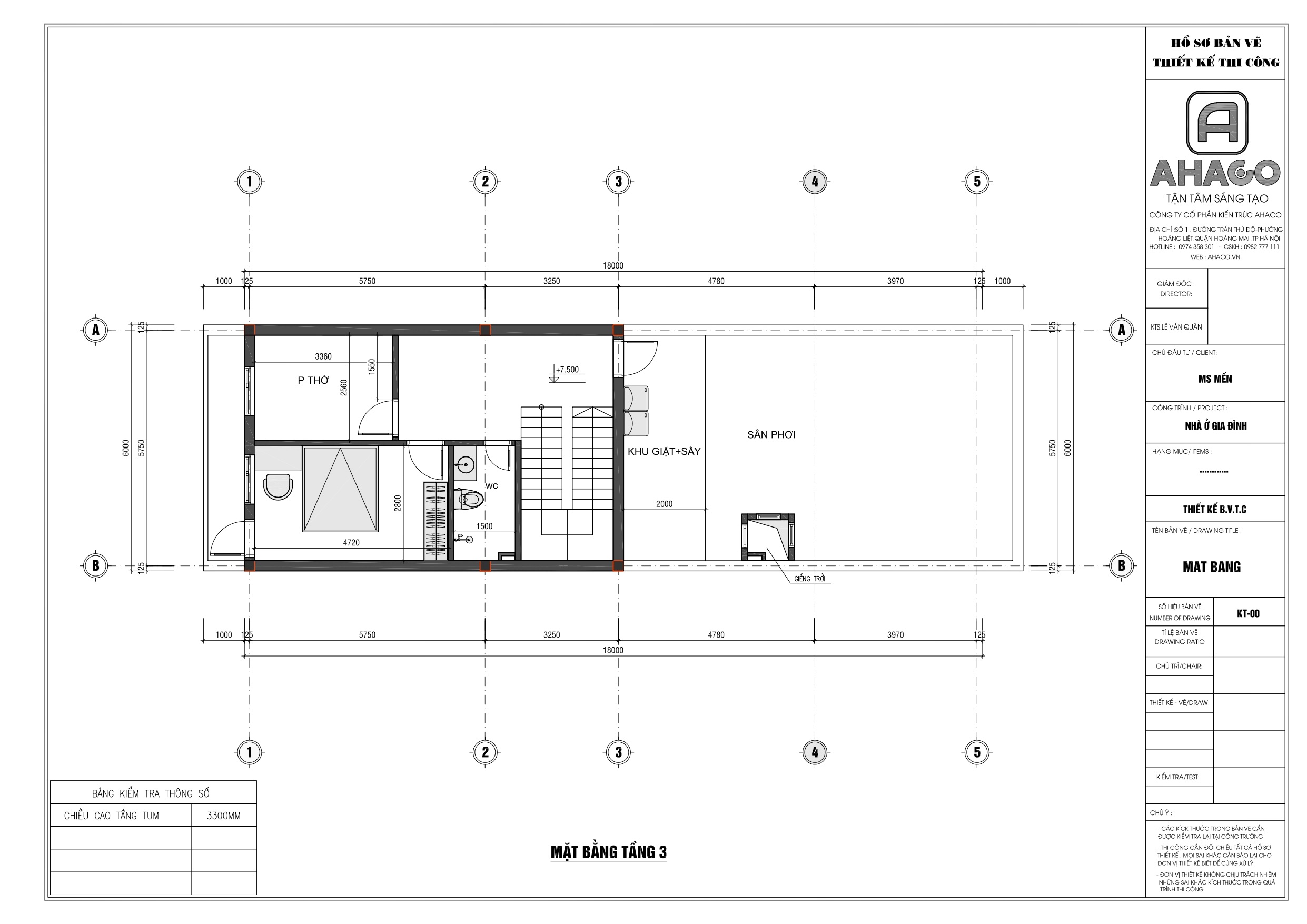
Mặt bằng công năng mẫu nhà 3 tầng 5 phòng ngủ ngang 6m
Mẫu nhà này được kiến trúc sư AHACO tối ưu công năng, bố trí nội thất khoa học, đảm bảo tiện nghi cho từng thành viên trong gia đình.
Công năng tầng 1
Phòng khách + bếp
Phòng ăn
1 Phòng ngủ
1 WC

Công năng tầng 2
3 Phòng ngủ
2 WC

Công năng tầng 3
Sân phơi
Phòng thờ
1 Phòng ngủ
1 WC

Bảng khái toán xây thô mẫu nhà 3 tầng 5 phòng ngủ ngang 6m
Chi phí xây dựng phần thô mẫu nhà 3 tầng 5 phòng ngủ chỉ khoảng 1.25 tỷ. Bao gồm chi phí nhân công xây dựng 366 triệu và chi phí vật liệu 800 triệu , chi phí khác 55 triệu. Chi phí thực tế có thể thay đổi tùy thuộc vào nhiều yếu tố như địa điểm thi công, chất lượng vật liệu , thời điểm thi công . Bạn nên liên hệ trực tiếp với AHACO để có được báo giá chính xác nhất cho ngôi nhà của mình.

Kết luận :
Mẫu nhà ống (nhà phố) 3 tầng, với bề ngang 6m và công năng 5 phòng ngủ, là một giải pháp kiến trúc tối ưu và linh hoạt dành cho các gia đình Việt Nam có nhiều thành viên hoặc gia đình đa thế hệ.
DỰ ÁN LIÊN QUAN
Mẫu nhà 2 tầng 1 tum mặt tiền 8m
Mr Thế Anh

