Mẫu nhà 3 tầng 1 tum ngang 3m hiện đại tiện nghi
Trương Định
Đã xem: 177
Mã dự án:

- Diện tích: 3 x 14 m
- Phòng ngủ: 2
- Số tầng: 4
- Tầng hầm:
- Khách hàng: Ms Ngà
- Địa chỉ: Trương Định
- Chi phí đầu tư: 709 triệu
Mô tả dự án
Chiêm ngưỡng ngay mẫu nhà 3 tầng 1 tum ngang 3m tối ưu công năng, thiết kế hiện đại, thông thoáng do Ahaco thiết kế. Xem ngay giải pháp nhà phố mặt tiền 3m độc đáo và tiện nghi nhất.
Phối cảnh ngoại thất mẫu nhà 3 tầng 1 tum ngang 3m hiện đại
Ngoại thất của mẫu nhà phố 3 tầng 1 tum này mang đậm phong cách hiện đại, tối giản (Minimalism), là giải pháp hoàn hảo cho những lô đất có mặt tiền 3m tại các khu đô thị. Tổng thể ngôi nhà nổi bật với tông màu trắng tinh khiết làm chủ đạo, kết hợp hài hòa cùng các mảng màu đen của khung cửa và các chi tiết ốp tường màu xám, tạo nên sự tương phản mạnh mẽ và cuốn hút.

Điểm nhấn kiến trúc là việc sử dụng các hình khối vuông vắn, mạnh mẽ ở mặt tiền, đồng thời được làm mềm mại hóa một cách tinh tế bằng cửa sổ và ban công dạng vòm (bo cong) ở tầng 2 và tầng 3, mang lại nét độc đáo và giảm bớt sự cứng nhắc của nhà ống. Các ô cửa lớn cùng hệ thống lan can kính cường lực được ưu tiên sử dụng để tối đa hóa ánh sáng tự nhiên vào sâu bên trong nhà.
Tầng tum (tầng 4) được thiết kế mở với một khu vực ban công/sân thượng nhỏ có mái che kính và giàn lam hiện đại, là nơi lý tưởng để bố trí cây xanh, tạo ra một mảng xanh tươi mát cho toàn bộ công trình. Sự kết hợp giữa chất liệu hiện đại và các mảng xanh không chỉ tăng tính thẩm mỹ mà còn giúp ngôi nhà trở nên thông thoáng và tiện nghi hơn, thể hiện đúng tinh thần “Tận Tâm Sáng Tạo” của Ahaco.



Phối cảnh bóc mái mẫu nhà 3 tầng 1 tum ngang 3m hiện đại
AHACO là một công ty hàng đầu về thiết kế kiến trúc và thi công trọn gói tại Việt Nam. Chúng tôi sử dụng phối cảnh bóc mái vì những lợi ích quan trọng sau:
- Tăng tính trực quan và dễ hiểu cho Khách hàng:
- Nhiều khách hàng không chuyên về kiến trúc sẽ khó hình dung căn nhà của mình qua bản vẽ mặt bằng 2D khô khan.
- Phối cảnh bóc mái giúp khách hàng nhìn thấy rõ ràng mọi thứ từ trên xuống, dễ dàng kiểm tra công năng, vị trí cầu thang, cửa ra vào, và sự kết nối giữa các không gian một cách chân thực nhất.
- Tối ưu hóa Công năng Sử dụng:
- Thông qua hình ảnh 3D chi tiết này, cả kiến trúc sư và khách hàng có thể dễ dàng đánh giá và điều chỉnh tính hợp lý của bố cục trước khi thi công, đảm bảo mọi không gian đều được tận dụng tối ưu.
- Điều này đặc biệt quan trọng trong các thiết kế nhà ở, nơi mà công năng luôn được đặt lên hàng đầu.
- Hỗ trợ Thi công và Giám sát:
- Phối cảnh bóc mái là một tài liệu tham khảo tuyệt vời cho đội ngũ thi công và giám sát, giúp họ hiểu rõ ý đồ thiết kế về không gian và nội thất bên trong, từ đó thực hiện công trình chính xác và đồng bộ hơn.
- Khẳng định sự Chuyên nghiệp và Tận tâm:
- Việc cung cấp bản vẽ phối cảnh bóc mái chi tiết thể hiện sự đầu tư, chuyên nghiệp và mong muốn mang đến sản phẩm dễ hiểu, rõ ràng nhất cho khách hàng của AHACO.






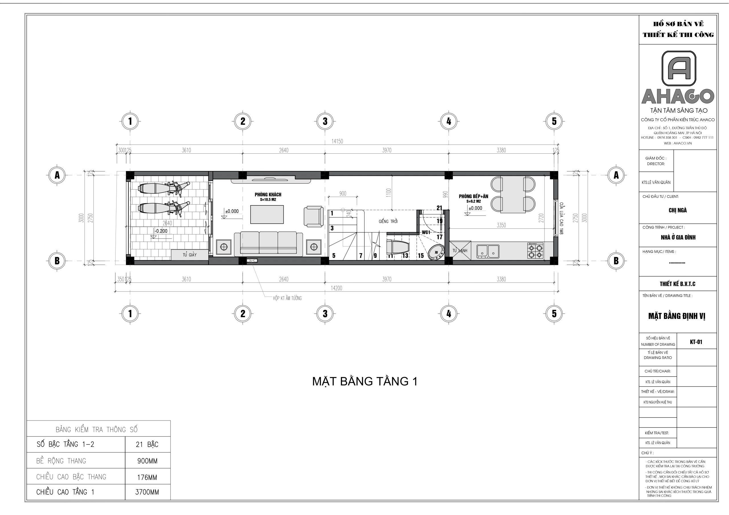
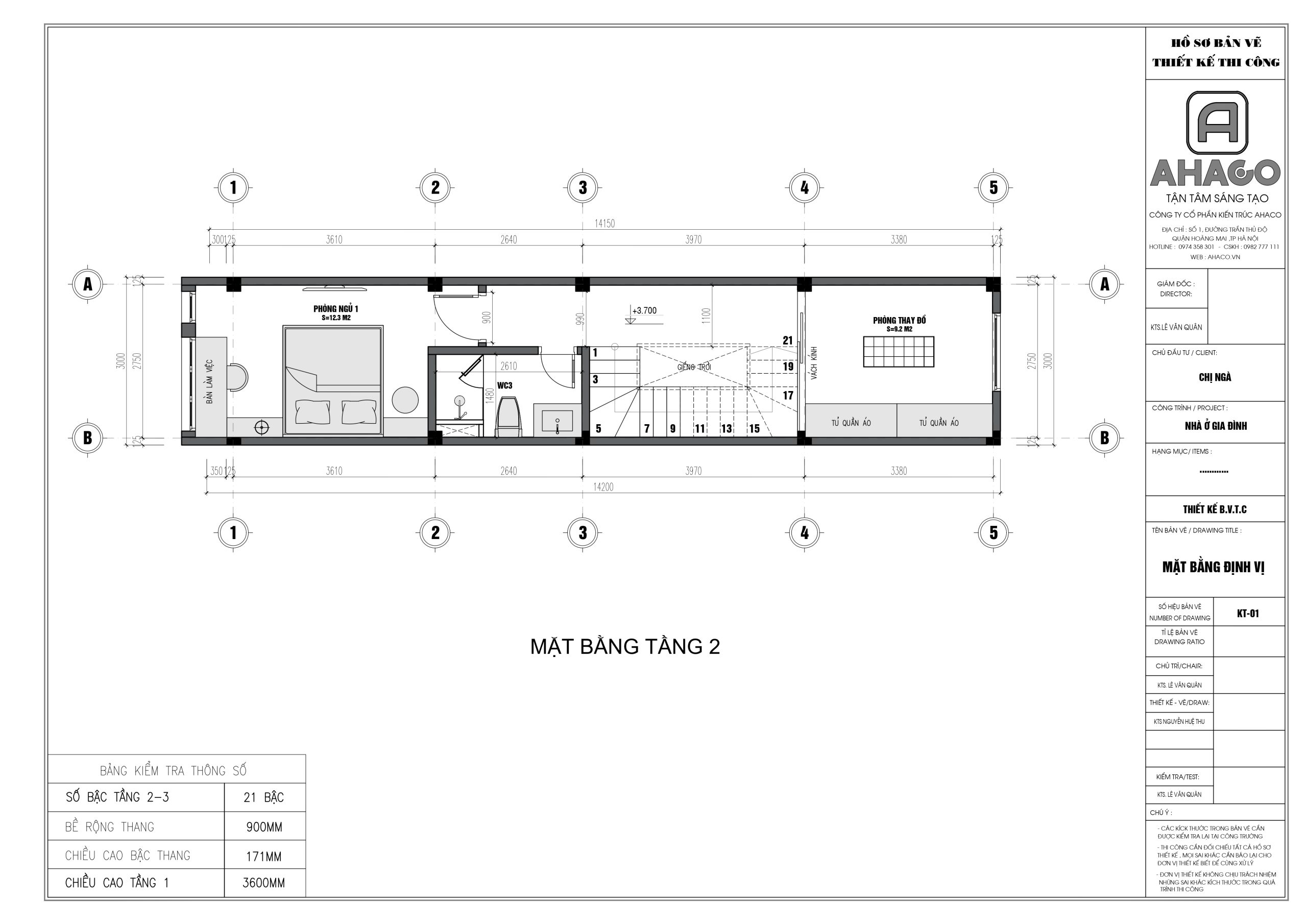
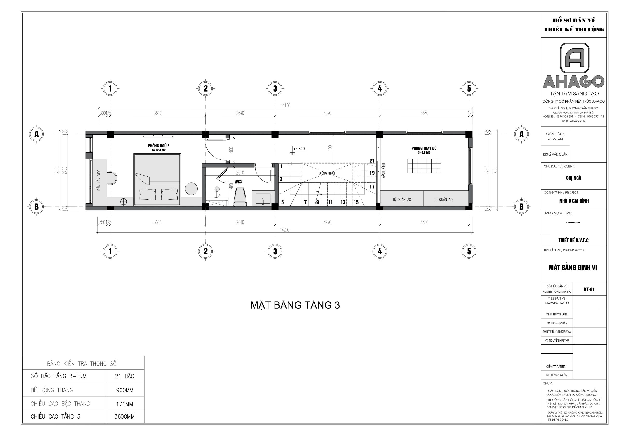
Mặt bằng công năng mẫu nhà 3 tầng 1 tum ngang 3m hiện đại
Với 2 phòng ngủ rộng rãi, phòng khách thoáng đãng, phòng bếp hiện đại và khu vực sân vườn xanh mát, mỗi không gian đều được tính toán kỹ lưỡng để đáp ứng mọi nhu cầu sinh hoạt của gia đình bạn. AHACO luôn chú trọng đến việc tối ưu hóa ánh sáng tự nhiên và thông gió, mang đến không gian sống trong lành và thoải mái.
Công năng tầng 1 :
Phòng khách
Phòng bếp + ăn
1 nhà vệ sinh

Công năng tầng 2 :
Phòng thay đồ
1 Phòng ngủ
1 nhà vệ sinh

Công năng tầng 3 :
Phòng thay đồ
1 Phòng ngủ
1 nhà vệ sinh

Công năng tầng tum :
Phòng thờ
Sân phơi

Bảng khái toán chi phí mẫu nhà 3 tầng 1 tum ngang 3m hiện đại
Ahaco hiểu rằng chi phí xây dựng là một trong những mối quan tâm hàng đầu của khách hàng khi xây nhà. Vì vậy, chúng tôi luôn cố gắng cung cấp bảng khái toán chi phí xây thô chi tiết và minh bạch nhất để khách hàng dễ dàng dự trù ngân sách.

Kết Luận
Mẫu nhà 3 tầng 1 tum ngang 3m hiện đại không chỉ là một ngôi nhà mà còn là một tác phẩm kiến trúc thông minh, giải quyết triệt để bài toán không gian hẹp. Bằng cách tận dụng chiều cao và tối ưu hóa ánh sáng, bạn hoàn toàn có thể sở hữu một không gian sống tiện nghi, sang trọng không thua kém các ngôi nhà có mặt tiền lớn hơn.

