Mẫu nhà 3 tầng 1 tum 5x15m dẫn đầu xu hướng 2026
Quốc Oai
Đã xem: 37
Mã dự án:

- Diện tích: 5 x 15 m
- Phòng ngủ: 3
- Số tầng: 4
- Tầng hầm:
- Khách hàng: Ms Dung
- Địa chỉ: Quốc Oai
- Chi phí đầu tư: 1.22 tỷ
Mô tả dự án
Trong bối cảnh quỹ đất đô thị ngày càng hạn hẹp, việc sở hữu một không gian sống vừa hiện đại, vừa thông thoáng là ưu tiên hàng đầu. Mẫu nhà 3 tầng 1 tum 5x15m đang trở thành lựa chọn quốc dân trong năm 2026 nhờ sự cân bằng hoàn hảo giữa thẩm mỹ và công năng.
Cùng kiến trúc sư điểm qua những nét đột phá trong xu hướng xây dựng năm nay!
Phối cảnh ngoại thất mẫu nhà 3 tầng 1 tum 5x15m dẫn đầu xu hướng 2026
Trong thế giới kiến trúc nhà phố 2026, khi sự bão hòa của các thiết kế rập khuôn ngày càng lớn, Công ty Kiến trúc AHACO đã tạo nên một dấu ấn đậm nét, dẫn đầu xu hướng với mẫu nhà 3 tầng 1 tum kích thước 5x15m (MS: 2030326). Nhìn vào hình ảnh tổng thể ngoại thất của công trình này, ta không chỉ thấy một ngôi nhà, mà thấy một tuyên ngôn về phong cách sống hiện đại, thông minh và tràn đầy năng lượng xanh.
Công trình sở hữu một diện mạo vô cùng “bắt trend” năm 2026 với những hình khối kiến trúc vuông vức, mạnh mẽ, gạt bỏ mọi chi tiết rườm rà để tập trung hoàn toàn vào công năng và sự tinh tế. AHACO đã khéo léo sử dụng các khối bê tông trắng tinh khôi làm chủ đạo, đan xen cùng sắc ghi xám hiện đại của khung cửa và ban công, tạo nên một bản hòa tấu màu sắc thanh lịch nhưng đầy cá tính, nổi bật giữa khu phố mà không cần phải quá phô trương.

Ngay từ tầng một, điểm nhấn kiến trúc đã được định hình rõ nét với một khoảng mặt tiền ốp đá marble vân mây sang trọng. Hệ thống cửa cuốn âm trần vừa đảm bảo an ninh tuyệt đối, vừa tạo ra một mặt tiền phẳng, gọn gàng, đúng chất tối giản của kỷ nguyên 4.0. Đây là cách AHACO tối ưu hóa không gian một cách thông minh cho các lô đất phố điển hình.
Càng lên cao, vẻ đẹp của công trình càng được mở rộng. AHACO đã hiện thực hóa xu hướng “Kiến trúc Xanh” (Biophilic Design) một cách hoàn hảo trên các ban công tầng 2 và tầng 3. Thay vì những lan can bê tông thô kệch, đội ngũ kiến trúc sư sử dụng hệ thống lan can kính cường lực kết hợp cùng tay vịn sắt sơn tĩnh điện mỏng nhẹ. Việc này không chỉ giúp xóa bỏ ranh giới giữa không gian sống và thiên nhiên, mà còn biến mỗi ban công trở thành một khu vườn nhỏ với những bồn hoa xanh mướt, mang lại sức sống và sự tươi mát cho căn nhà. Hệ cửa kính lớn sát trần giúp đón trọn ánh sáng tự nhiên và gió trời, tạo ra một không gian sống “biết thở”, vô cùng trong lành và thư thái.

Đỉnh cao của toàn bộ thiết kế chính là khu vực tầng tum. Tại đây, AHACO đã kiến tạo một “resort tại gia” đúng nghĩa với một hệ mái lam gỗ kết hợp với khung sắt đen cá tính. Đây không chỉ là giải pháp chống nóng thông minh, tạo ra những khoảng bóng đổ đẹp mắt cho sân thượng, mà còn là một điểm nhấn thẩm mỹ tuyệt vời. Khu vực này được thiết kế như một Sky Bar hay một góc thư giãn lý tưởng, nơi gia chủ có thể tận hưởng những ly cà phê sáng hay tổ chức những bữa tiệc ngoài trời ấm cúng, bao quanh là một khu vườn trên cao được bố trí khéo léo.
Sự tỉ mỉ của AHACO còn được thể hiện qua hệ thống chiếu sáng. Đèn LED âm trần được bố trí tinh tế tại các khu vực ban công và mái lam gỗ không chỉ giúp công trình trở nên lung linh, huyền ảo khi đêm về mà còn làm nổi bật những đường nét kiến trúc tinh tế. Ngay cả vỉa hè phía trước cũng được ốp lát đồng bộ, cho thấy sự quan tâm đến từng chi tiết nhỏ nhất trong tổng thể dự án.

Nhìn tổng thể, mẫu nhà 3 tầng 1 tum 5x15m (MS: 2030326) của AHACO không chỉ là một giải pháp kiến trúc tối ưu cho nhà phố mà còn là một biểu tượng của sự sang trọng, tiện nghi và bền vững. AHACO một lần nữa chứng minh vị thế dẫn đầu xu hướng kiến trúc năm 2026 bằng một thiết kế “độc bản”, thỏa mãn mọi giác quan và nhu cầu khắt khe của gia chủ hiện đại. Hãy liên hệ với AHACO ngay hôm nay để sở hữu một không gian sống trong mơ, nâng tầm đẳng cấp của bạn.
Phối cảnh bóc mái mẫu nhà 3 tầng 1 tum 5x15m dẫn đầu xu hướng 2026
Nếu phối cảnh ngoại thất là “chiếc áo” lộng lẫy, thì bản vẽ bóc mái (3D không gian) chính là cách AHACO phô diễn “trí tuệ” trong việc sắp đặt công năng. Với mẫu nhà 3 tầng 1 tum diện tích 5x15m (MS: 2020326), AHACO không chỉ xây nhà, mà chúng tôi đang kiến tạo một hệ sinh thái sống thông minh, nơi mỗi mét vuông đều mang trong mình một sứ mệnh riêng biệt.
Hãy cùng “bóc tách” sự tinh tế mà đội ngũ AHACO đã gửi gắm vào bên trong công trình này:
Sự khoa học trong nghệ thuật sắp đặt công năng
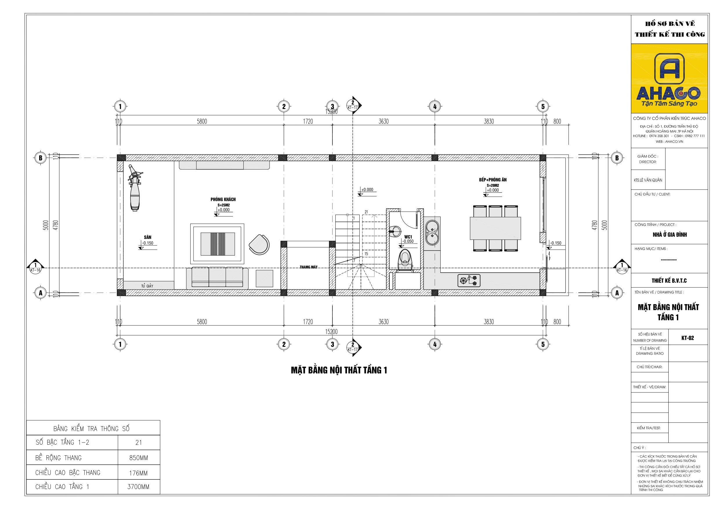
Nhìn vào bản vẽ bóc mái, ta thấy rõ sự ưu tiên của AHACO dành cho tính kết nối và sự riêng tư. Tầng 1 mở ra một không gian khoáng đạt với Phòng khách rộng rãi, liền kề là khu vực Bếp & Phòng ăn được ngăn cách tinh tế bằng hệ thang bộ hiện đại. Đây là trái tim của ngôi nhà, nơi lưu giữ những khoảnh khắc quây quần ấm cúng của cả gia đình. Đặc biệt, phần Kết cấu móng được AHACO thể hiện minh bạch, khẳng định sự vững chãi và quy trình thi công chuẩn chỉ, tạo niềm tin tuyệt đối cho gia chủ.
Không gian nghỉ dưỡng cá nhân hóa
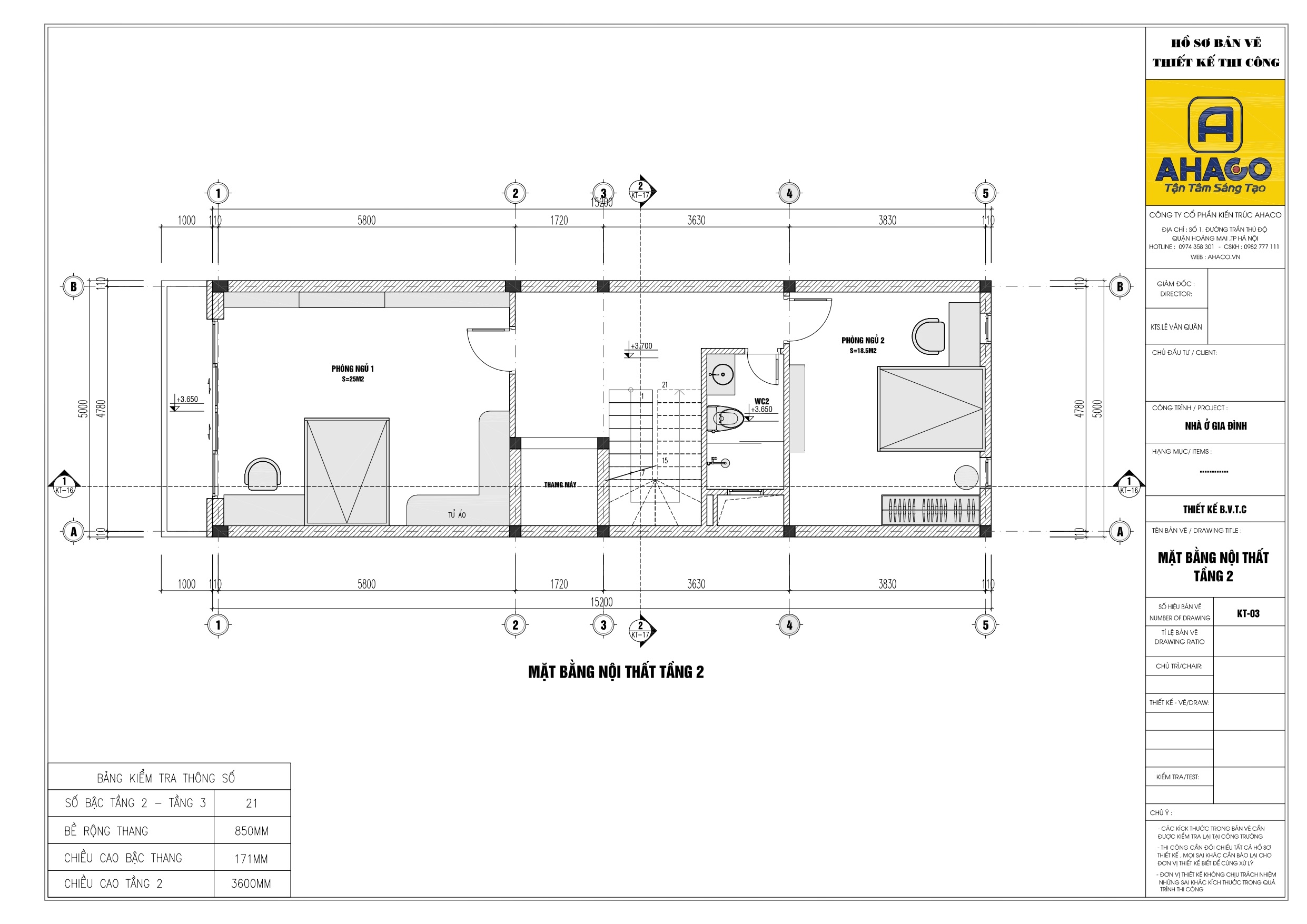
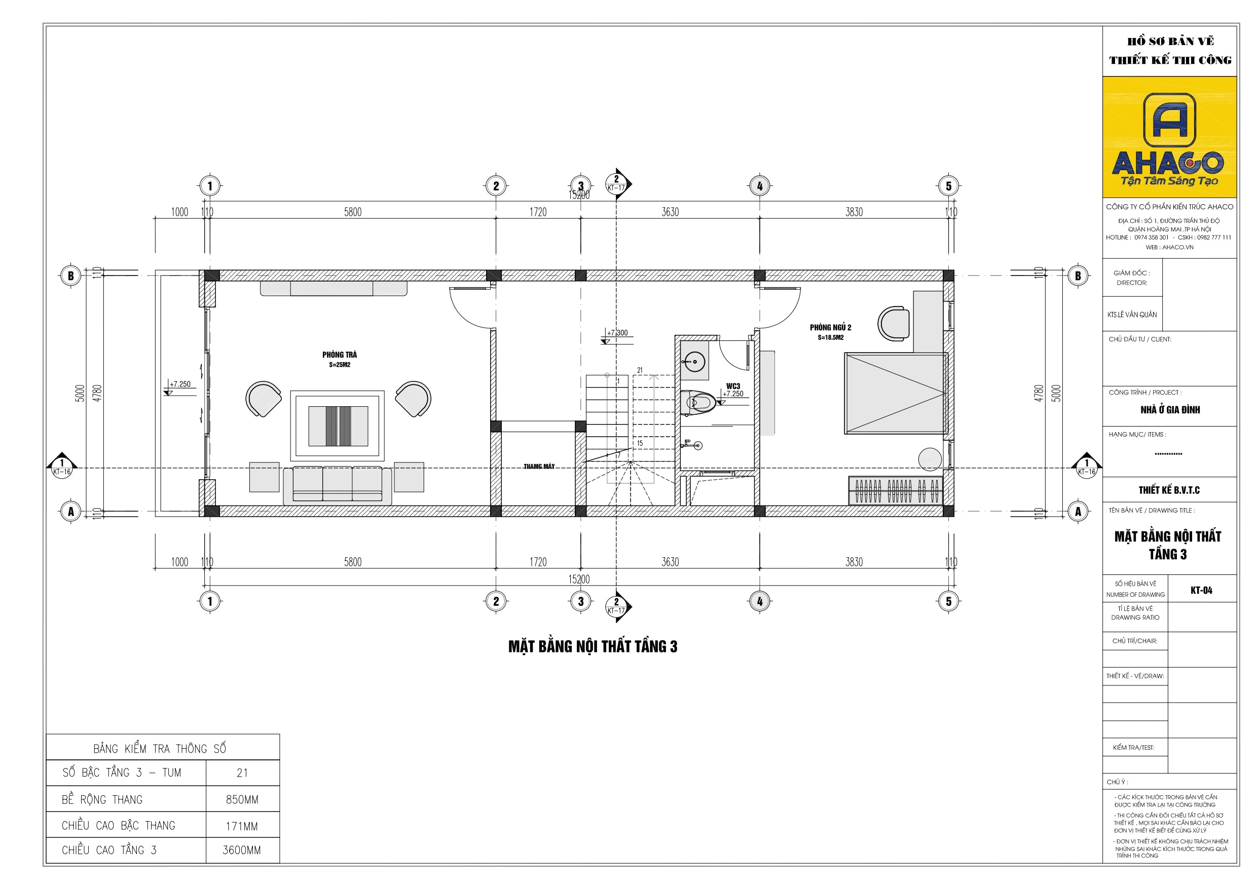
Tiến lên các tầng cao, AHACO đã khéo léo bố trí các Phòng ngủ (1, 2, 3) tại những vị trí đắc địa nhất để đón trọn ánh sáng tự nhiên. Mỗi căn phòng không chỉ đơn thuần là nơi để ngủ, mà là một “ốc đảo” riêng tư được thiết kế theo cá tính của từng thành viên. Điểm nhấn đắt giá nhất chính là khu vực Phòng trà trang nhã – một không gian đệm đầy nghệ thuật để các thành viên có thể tĩnh tâm, đọc sách hoặc thưởng trà, tận hưởng nhịp sống chậm giữa lòng phố thị.
Tầng tum – Nơi giao thoa của tâm linh và hưởng thụ
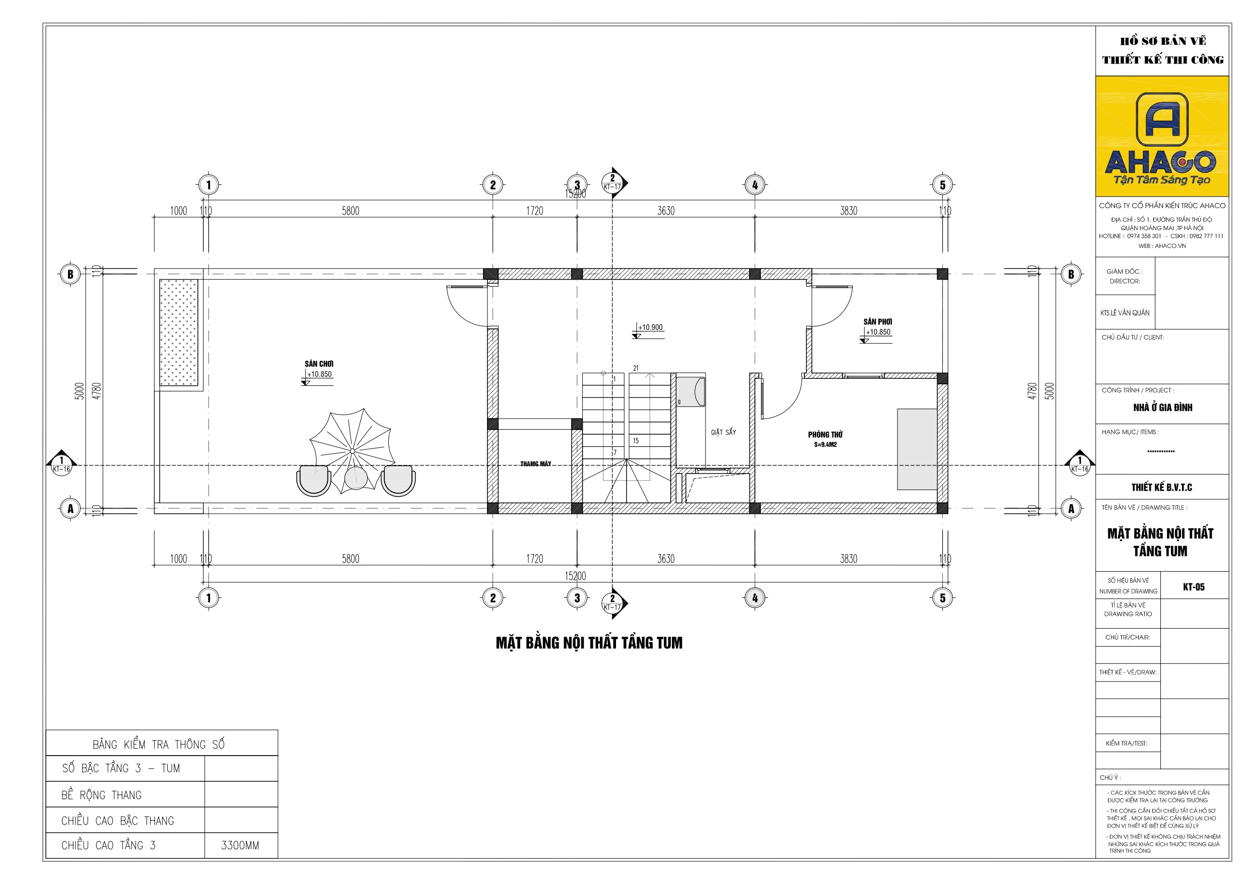
Tầng tum hiện lên như một sự kết thúc hoàn hảo cho bản thiết kế này. AHACO đặt Phòng thờ ở vị trí cao nhất, trang nghiêm nhất, đảm bảo tính phong thủy và sự yên tĩnh tuyệt đối. Ngay bên cạnh là khoảng sân thượng rộng mở dưới hệ mái lam gỗ sang trọng. Đây là giải pháp đột phá của AHACO nhằm đưa thiên nhiên vào không gian sống, biến sân thượng thành một vườn thượng uyển mini hay khu vực tiệc tùng “chill” hết nấc vào mỗi tối cuối tuần.







Mặt bằng công năng mẫu nhà 3 tầng 1 tum 5x15m dẫn đầu xu hướng 2026
Với 3 phòng ngủ rộng rãi, phòng khách thoáng đãng, phòng bếp hiện đại, mỗi không gian đều được tính toán kỹ lưỡng để đáp ứng mọi nhu cầu sinh hoạt của gia đình bạn. AHACO luôn chú trọng đến việc tối ưu hóa ánh sáng tự nhiên và thông gió, mang đến không gian sống trong lành và thoải mái.
Công năng tầng 1
- Phòng khách
- Phòng bếp + ăn
- 1 Vệ sinh

Công năng tầng 2
- 2 Phòng ngủ
- 1 Vệ sinh

Công năng tầng 3
- 1 Phòng ngủ
- 1 Phòng trà
- 1 Vệ sinh

Công năng tầng tum
- Phòng thờ
- Sân phơi
- Sân chơi

Bảng khái toán xây thô mẫu nhà 3 tầng 1 tum 5x15m dẫn đầu xu hướng 2026
AHACO – Tiên phong áp dụng công nghệ Bim vào trong bản vẽ thiết kế giúp quý vị xây nhà nhàn tênh, đọc bản vẽ dễ hiểu dễ giám sát thợ dù không có chuyên môn và đặc biệt công nghệ này giúp thống kê được các nguyên vật liệu cần dùng và số lượng chính xác để gia chủ kiểm soát tốt hơn chi phí xây dựng của ngôi nhà với các số liệu được cập nhật kịp thời, cụ thể và rõ ràng.

Kết luận
Mẫu nhà 3 tầng 1 tum 5x15m không chỉ giải quyết bài toán không gian mà còn khẳng định gu thẩm mỹ tinh tế của gia chủ. Với sự kết hợp giữa công nghệ và thiên nhiên, đây chắc chắn là mẫu nhà bền vững với thời gian.
Bạn đang có ý định xây nhà trong năm 2026? Liên hệ ngay với đội ngũ kiến trúc sư của chúng tôi để nhận tư vấn và báo giá chi tiết nhất!
DỰ ÁN LIÊN QUAN
Mẫu nhà 2 tầng 1 tum mặt tiền 8m
Mr Thế Anh

