Mẫu nhà 3 tầng 1 tum 4 phòng ngủ hiện đại
Long Biên
Đã xem: 101
Mã dự án:

- Diện tích: 6 x 8 m
- Phòng ngủ: 4
- Số tầng: 4
- Tầng hầm:
- Khách hàng: Mr Nguyên
- Địa chỉ: Long Biên
- Chi phí đầu tư:
Mô tả dự án
Bạn đang tìm kiếm một mẫu nhà 3 tầng 1 tum 4 phòng ngủ hiện đại, tiện nghi, phù hợp với gia đình nhiều thành viên? Mẫu nhà này không chỉ đáp ứng đầy đủ nhu cầu sử dụng mà còn mang đến không gian sống thoải mái, hiện đại và sang trọng.
Phối cảnh ngoại thất mẫu nhà 3 tầng 1 tum 4 phòng ngủ hiện đại
Ngôi nhà hiện ra trong một khung cảnh bình dị nhưng lại tỏa ra sự tinh tế và hiện đại qua từng đường nét kiến trúc. Tổng thể công trình là một khối hình học cao ráo, nổi bật với tông màu trắng tinh khôi làm chủ đạo, tạo cảm giác sạch sẽ, sang trọng và thoáng đãng dưới nền trời xanh nhạt.
Mặt tiền chính của ngôi nhà được thiết kế theo phong cách tối giản nhưng không hề đơn điệu. Đặc điểm thu hút nhất là khu vực ban công ở tầng hai và tầng ba. Thay vì sử dụng ban công vuông vắn truyền thống, kiến trúc sư đã khéo léo tạo hình các khối cong mềm mại ở phần bao quanh cửa sổ và ban công. Khối cong này được viền bằng màu đen đậm tương phản, như một nét phác thảo nghệ thuật trên nền trắng, mang lại sự độc đáo và uyển chuyển.

Hệ thống cửa sổ và cửa ra vào sử dụng vật liệu kính lớn, giúp tối đa hóa ánh sáng tự nhiên và kết nối không gian bên trong với bên ngoài. Cửa ra vào chính ở tầng trệt là một điểm nhấn xa hoa với thiết kế hoa văn hình học phức tạp và chi tiết, đặt trên nền ốp tường bằng đá cẩm thạch đen bóng loáng. Sự kết hợp giữa màu trắng của tường, màu đen của đá và kim loại tạo nên một tổng thể thị giác mạnh mẽ và đẳng cấp.
Bên phải ngôi nhà là một khối kiến trúc phụ thấp hơn, cũng sơn màu trắng, với cánh cổng lớn bằng kim loại màu ghi hoặc bạc, có thể là lối vào gara hoặc một khu vực chức năng riêng biệt. Trên tầng cao nhất, phần sân thượng được bố trí một khung thép giàn che (pergola) nhẹ nhàng, hứa hẹn là một không gian thư giãn ngoài trời lý tưởng. Một ô cửa sổ hình tròn độc đáo nằm lệch ở tầng áp mái tạo thêm sự thú vị cho bố cục mặt tiền.
Xung quanh ngôi nhà là không gian xanh mát. Phía bên trái, cây xanh lớn với tán lá rậm rạp mang lại bóng râm và sự tươi mới. Dưới chân tường có một hàng rào cây xanh được cắt tỉa gọn gàng, tạo nên sự phân cách tự nhiên nhưng vẫn hài hòa với kiến trúc.


Tóm lại, ngoại thất ngôi nhà là sự kết hợp hoàn hảo giữa chủ nghĩa tối giản và những điểm nhấn hình học tinh tế, sử dụng sự tương phản mạnh mẽ của hai màu đen – trắng để làm nổi bật lên vẻ đẹp hiện đại, sang trọng và cá tính.
Phối cảnh bóc mái mẫu nhà 3 tầng 1 tum 4 phòng ngủ hiện đại
Trong lĩnh vực thiết kế và thi công xây dựng, việc hình dung một cách rõ nét về dự án trước khi triển khai là vô cùng quan trọng. Đặc biệt, đối với các công trình có kiến trúc phức tạp hoặc cần tối ưu hóa không gian, phối cảnh bóc mái trở thành một công cụ không thể thiếu. Ahaco, với kinh nghiệm và chuyên môn sâu sắc, đã ứng dụng kỹ thuật này một cách hiệu quả, mang lại nhiều lợi ích vượt trội cho khách hàng.
Phối cảnh bóc mái là một dạng bản vẽ 3D hoặc mô hình kỹ thuật số, cho phép người xem quan sát cấu trúc bên trong của một tòa nhà bằng cách loại bỏ (bóc) phần mái hoặc các tầng trên cùng. Kỹ thuật này giúp phơi bày toàn bộ bố cục không gian, cách sắp xếp nội thất, hệ thống kỹ thuật (như đường ống, dây điện) và các chi tiết kiến trúc ẩn bên dưới.
Phối cảnh bóc mái không chỉ là một công cụ kỹ thuật mà còn là một cầu nối hiệu quả giữa Ahaco và khách hàng. Bằng cách mang lại cái nhìn sâu sắc và toàn diện về dự án, Ahaco giúp khách hàng hình dung rõ ràng, đưa ra quyết định tự tin, tối ưu hóa không gian và giảm thiểu rủi ro. Đây chính là minh chứng cho cam kết của Ahaco trong việc cung cấp những giải pháp thiết kế và thi công chất lượng cao, đặt lợi ích của khách hàng lên hàng đầu.





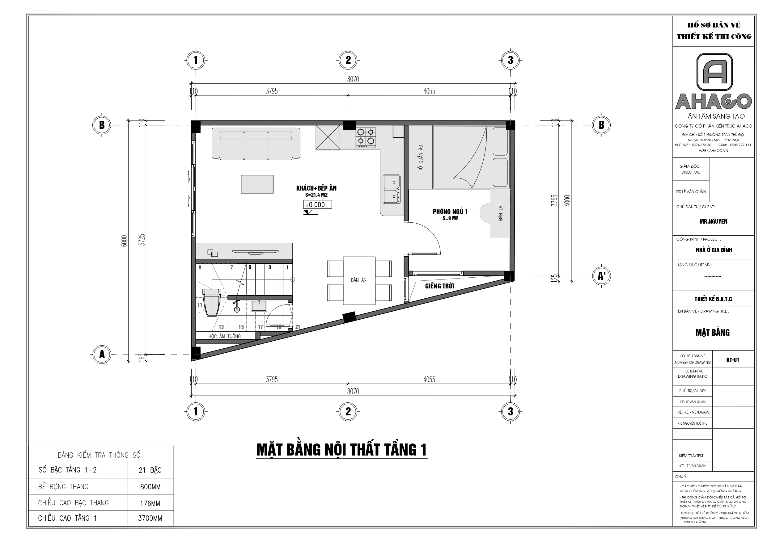
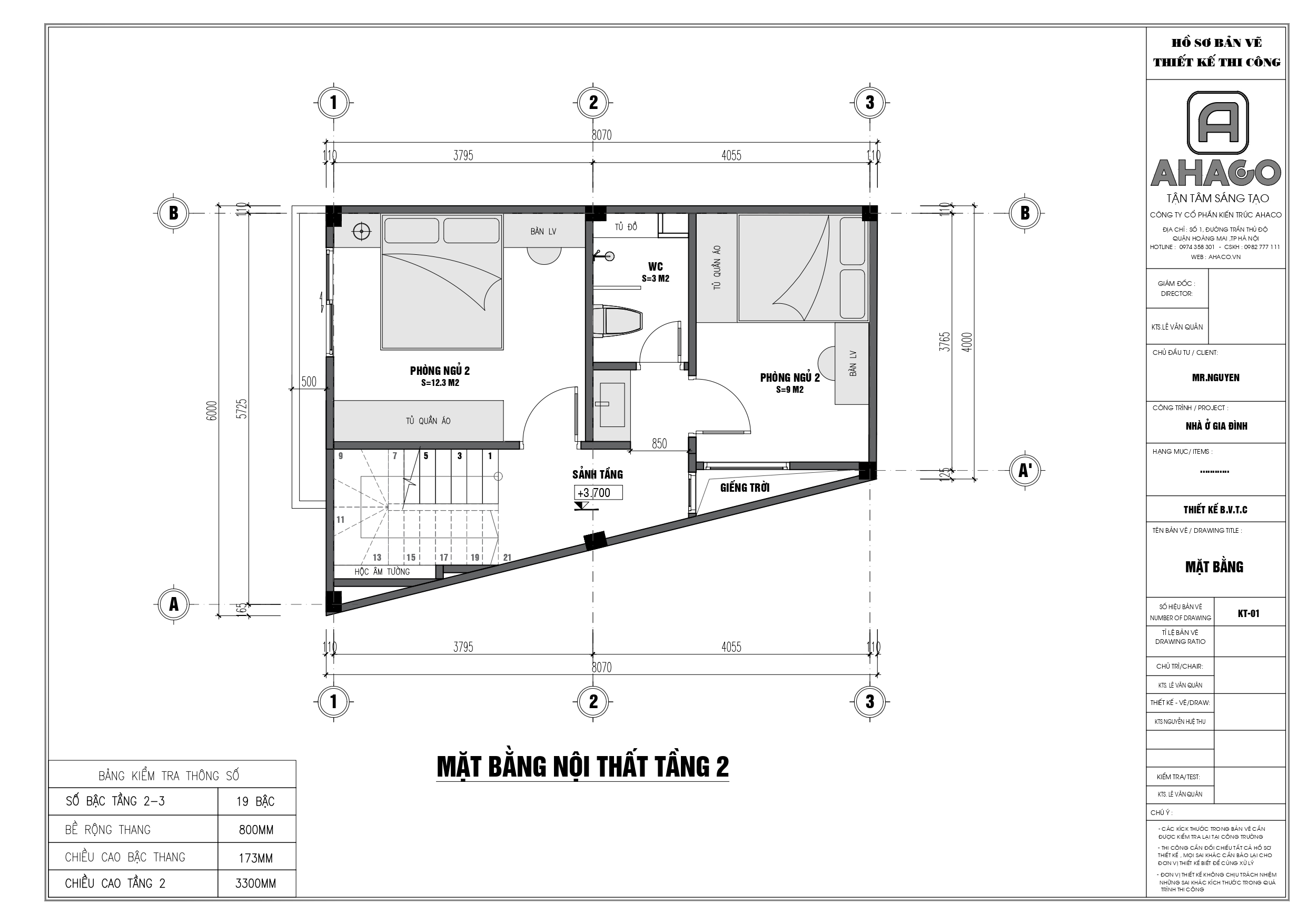
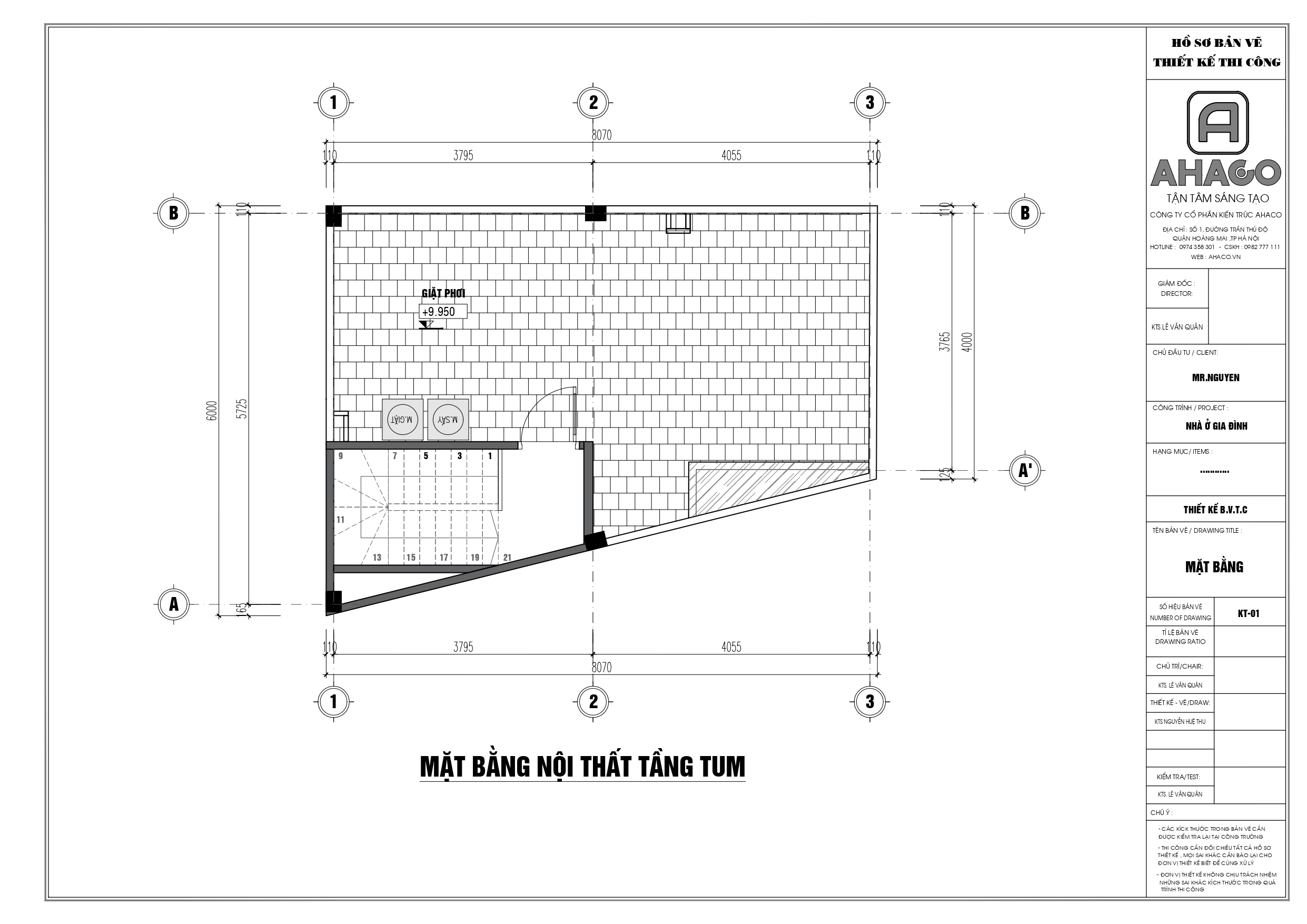
Mặt bằng công năng mẫu nhà 3 tầng 1 tum 4 phòng ngủ hiện đại
Mẫu nhà 3 tầng 1 tum 4 phòng ngủ với diện tích 6×8 m được AHACO thiết kế hiện đại, tối ưu không gian sinh hoạt cho gia đình từ 4–6 thành viên.
Công năng tầng 1 :
Phòng khách
Phòng bếp + ăn
1 Phòng ngủ
1 nhà vệ sinh

Công năng tầng 2 :
2 Phòng ngủ
1 nhà vệ sinh

Công năng tầng 3 :
1 Phòng ngủ
1 Phòng thờ
1 nhà vệ sinh

Công năng tầng tum :
Giặt phơi

Kết luận :
Mẫu nhà 3 tầng 1 tum 4 phòng ngủ hiện đại là sự kết hợp hoàn hảo giữa thiết kế thẩm mỹ, tiện nghi và công năng sử dụng thông minh. Với 4 phòng ngủ rộng rãi, các không gian sinh hoạt chung hợp lý và tầng tum linh hoạt, ngôi nhà đáp ứng đầy đủ nhu cầu của gia đình đông thành viên, đồng thời mang đến cảm giác thoáng đãng, sáng sủa nhờ hệ thống cửa sổ, ban công và sân thượng đón sáng tự nhiên. Thiết kế hiện đại cùng cách bố trí khoa học không chỉ tối ưu diện tích 6×8 m mà còn tạo nên một không gian sống tiện nghi, sang trọng và thoải mái, xứng đáng là lựa chọn lý tưởng cho những gia đình muốn sở hữu ngôi nhà đẹp, hiện đại và đầy đủ tiện ích.
DỰ ÁN LIÊN QUAN
Mẫu nhà 2 tầng 1 tum mặt tiền 8m
Mr Thế Anh

