Mẫu nhà 2 tầng mặt tiền 6m rưỡi 3 phòng ngủ
Bắc Ninh
Đã xem: 156
Mã dự án:

- Diện tích: 6.5 x 8 m
- Phòng ngủ: 3
- Số tầng: 2
- Tầng hầm:
- Khách hàng: Ms Liên
- Địa chỉ: Bắc Ninh
- Chi phí đầu tư: 642 triệu
Mô tả dự án
Trong xu hướng thiết kế nhà ở hiện nay, mẫu nhà 2 tầng mặt tiền 6m rưỡi đang trở thành lựa chọn phổ biến cho những gia đình muốn sở hữu không gian sống tiện nghi, sang trọng mà vẫn đảm bảo chi phí hợp lý. Với chiều ngang 6,5m, ngôi nhà có thể dễ dàng bố trí 3 phòng ngủ, phòng khách rộng rãi và khu bếp ăn thông thoáng.
Phối cảnh ngoại thất mẫu nhà 2 tầng mặt tiền 6m rưỡi 3 phòng ngủ
Ngôi nhà hai tầng này toát lên vẻ đẹp hiện đại và tối giản với kiến trúc vuông vức, đường nét gọn gàng. Tông màu ngoại thất chủ đạo là sự kết hợp hài hòa giữa trắng và xám đậm, tạo nên sự tương phản tinh tế và sang trọng. Mặt tiền ngôi nhà được thiết kế tập trung vào sự đơn giản nhưng hiệu quả, với các mảng tường phẳng được nhấn nhá bằng những chi tiết trang trí ngang dọc, thể hiện rõ phong cách kiến trúc đương đại.

Hệ thống cửa sổ lớn, đặc biệt là cửa sổ kính với khung đen ở tầng hai, không chỉ mang lại ánh sáng tự nhiên dồi dào cho không gian bên trong mà còn là điểm nhấn nổi bật, tạo sự thông thoáng cho mặt tiền. Phía trên cửa sổ lớn có một mái hiên nhỏ vươn ra, tích hợp đèn chiếu sáng âm trần màu vàng ấm, tăng thêm vẻ ấm cúng và chiều sâu cho ngôi nhà khi trời tối. Cổng ra vào được làm bằng sắt với các nan dọc/ngang tối giản, vừa đảm bảo an ninh vừa không che khuất hoàn toàn tầm nhìn vào sân. Khu vực sân trước được lát gạch sạch sẽ, đủ không gian cho một chiếc ô tô, và được bao bọc bởi một hàng rào thấp màu trắng cùng hàng rào cây xanh được cắt tỉa gọn gàng, mang lại sự riêng tư và gần gũi với thiên nhiên.




Tổng thể, ngôi nhà đặt trong bối cảnh cây xanh rậm rạp và bãi cỏ xanh mướt, tạo nên một sự kết hợp lý tưởng giữa không gian sống tiện nghi hiện đại và môi trường thiên nhiên trong lành. Phần mái bằng đơn giản có thể được tận dụng cho các thiết bị kỹ thuật hoặc làm sân thượng.
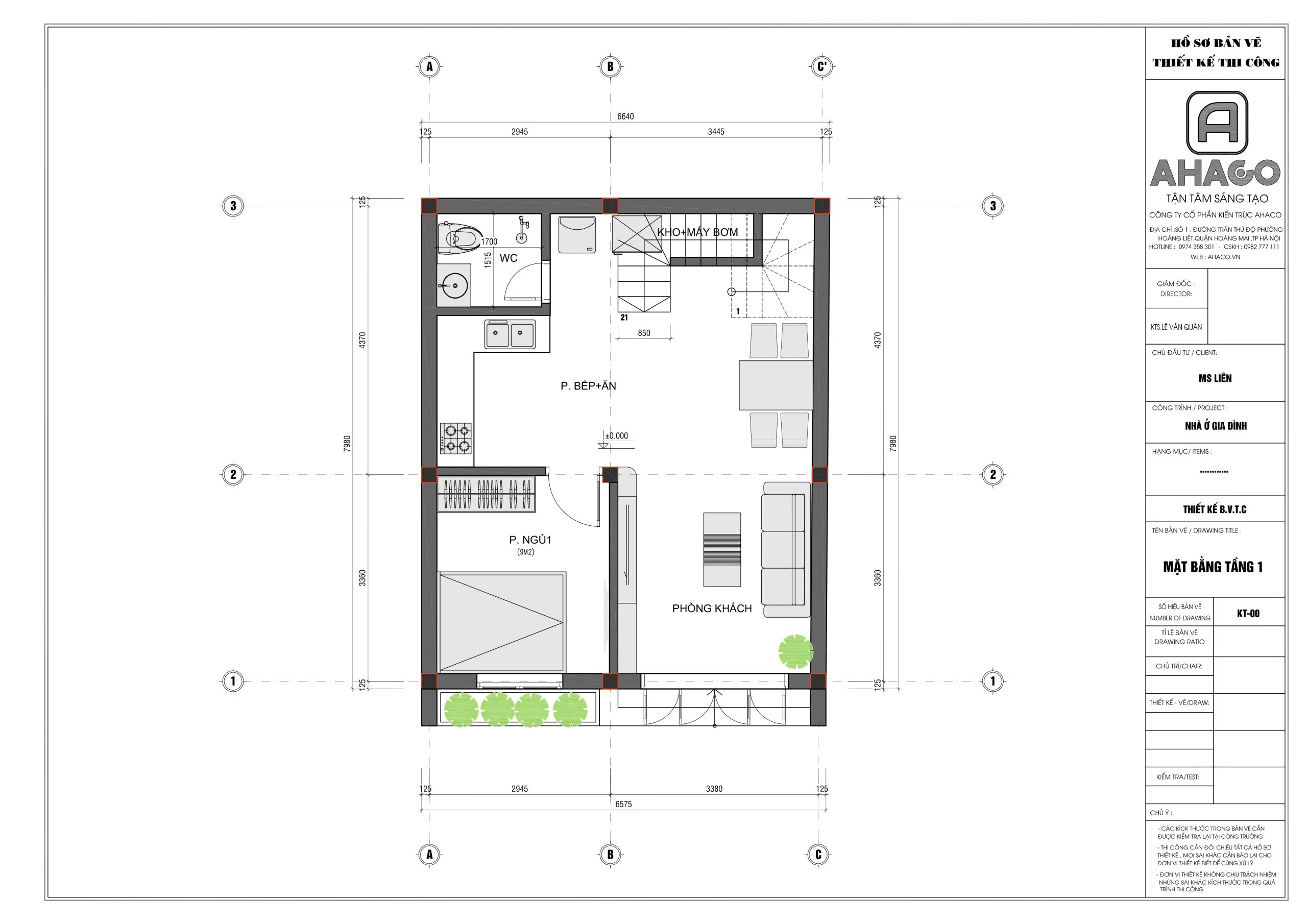
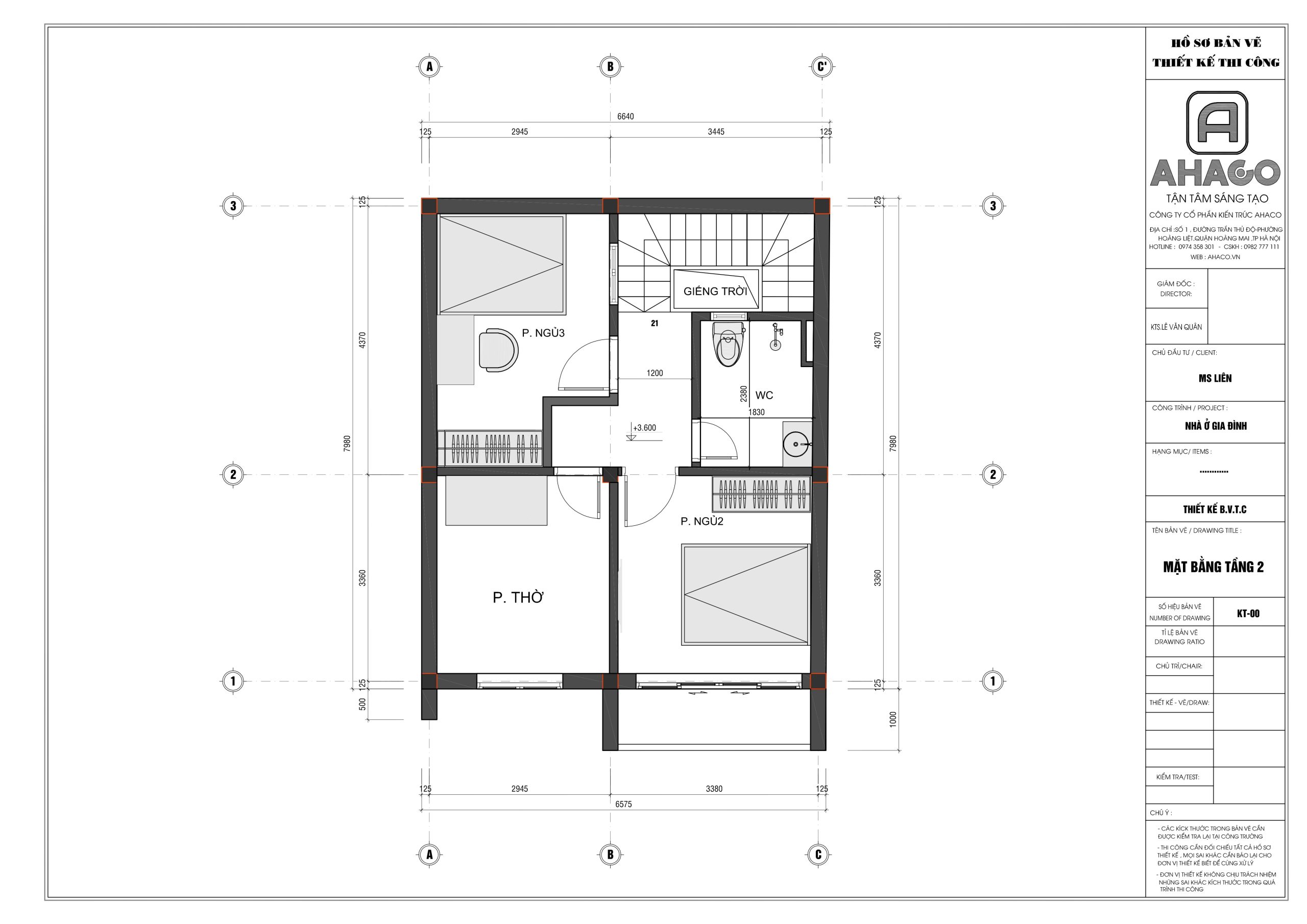
Mặt bằng công năng mẫu nhà 2 tầng mặt tiền 6m rưỡi 3 phòng ngủ
Với 4 phòng ngủ rộng rãi, phòng khách thoáng đãng, phòng bếp hiện đại và khu vực sân trước cửa, mỗi không gian đều được tính toán kỹ lưỡng để đáp ứng mọi nhu cầu sinh hoạt của gia đình bạn. AHACO luôn chú trọng đến việc tối ưu hóa ánh sáng tự nhiên và thông gió, mang đến không gian sống trong lành và thoải mái.
Công năng tầng 1 :
Phòng khách
Phòng bếp + ăn
1 Phòng ngủ
1 nhà vệ sinh

Công năng tầng 2 :
Phòng thờ
2 Phòng ngủ
1 nhà vệ sinh

Phối cảnh bóc mái mẫu nhà 2 tầng mặt tiền 6m rưỡi 3 phòng ngủ
Phối cảnh bóc mái (hay còn gọi là phối cảnh 3D cắt lớp) trong bộ hồ sơ thiết kế của AHACO có nhiều điểm đặc biệt và giá trị, giúp khách hàng và đơn vị thi công dễ dàng hình dung và kiểm soát công trình hơn so với bản vẽ thông thường.
Phối cảnh bóc mái của AHACO được coi là một “vũ khí mạnh” vì nó mang lại tính trực quan và chi tiết cao, phục vụ hiệu quả cho cả khách hàng và quá trình thi công:
Minh họa công năng 3D rõ ràng:
Giúp khách hàng “nhìn xuyên mái nhà” để thấy rõ toàn bộ mặt bằng và cách tổ chức không gian bên trong một cách trực quan như ảnh thật (ví dụ: bố trí phòng khách, bếp, phòng ngủ, vệ sinh, cầu thang, hành lang…).
Dễ dàng hiểu được mối liên hệ giữa các không gian mà không cần phải đọc bản vẽ kỹ thuật phức tạp.
Hỗ trợ khách hàng điều chỉnh công năng ngay từ giai đoạn đầu thiết kế.
Chi tiết kỹ thuật mái nhà quan trọng:
Đặc biệt với nhà mái bằng, phối cảnh thể hiện kỹ lưỡng hệ mái bằng, ô giếng trời, lam che nắng, bồn nước, dàn năng lượng mặt trời.
Làm rõ cách thoát nước, chống nóng, tổ chức mái sao cho hợp lý về cả công năng và thẩm mỹ.
Công cụ giao tiếp hiệu quả:
Là công cụ giao tiếp hiệu quả giữa chủ nhà và đơn vị thi công, giúp hạn chế hiểu nhầm và thi công sai ý đồ thiết kế ở các khu vực phức tạp.
Thể hiện sự đầu tư và cam kết chất lượng trong từng hồ sơ thiết kế, một ưu thế mà ít đơn vị thiết kế hiện nay cung cấp.




Chi phí xây thô mẫu nhà 2 tầng mặt tiền 6m rưỡi 3 phòng ngủ
Ahaco hiểu rằng chi phí xây dựng là một trong những mối quan tâm hàng đầu của khách hàng khi xây nhà. Vì vậy, chúng tôi luôn cố gắng cung cấp bảng khái toán chi phí xây thô chi tiết và minh bạch nhất để khách hàng dễ dàng dự trù ngân sách.

Kết luận :
Mẫu nhà 2 tầng mặt tiền 6.5m, 3 phòng ngủ là sự kết hợp hoàn hảo giữa tính thẩm mỹ hiện đại, công năng sử dụng tối ưu và chi phí đầu tư hợp lý, rất phù hợp với nhu cầu sống tiện nghi của đa số gia đình hiện nay.
DỰ ÁN LIÊN QUAN
Mẫu nhà 2 tầng 1 tum mặt tiền 8m
Mr Thế Anh

