Mẫu nhà 2 tầng mặt tiền 5m hiện đại 4 phòng ngủ
Nam Định
Đã xem: 134
Mã dự án:

- Diện tích: 5 x 18 m
- Phòng ngủ: 4
- Số tầng: 2
- Tầng hầm:
- Khách hàng: Mr Việt
- Địa chỉ: Nam Định
- Chi phí đầu tư: 779 triệu
Mô tả dự án
Mẫu nhà 2 tầng mặt tiền 5m hiện đại 4 phòng ngủ là một trong những lựa chọn thiết kế phổ biến và tối ưu nhất hiện nay. Với mặt tiền không quá rộng nhưng đủ để tạo ấn tượng, kết hợp với công năng 4 phòng ngủ, đây chính là giải pháp lý tưởng cho các gia đình nhiều thế hệ hoặc đông thành viên muốn sở hữu một không gian sống tiện nghi và thẩm mỹ.
Phối cảnh ngoại thất mẫu nhà 2 tầng mặt tiền 5m hiện đại 4 phòng ngủ
Ngôi nhà 2 tầng mặt tiền 5m này là một công trình kiến trúc hiện đại đầy ấn tượng, nổi bật với sự kết hợp tinh tế giữa các khối hình học mạnh mẽ và những chi tiết cong mềm mại. Tổng thể ngoại thất sử dụng gam màu trắng tinh tế làm chủ đạo, được nhấn nhá bằng các mảng vật liệu giả gỗ màu nâu trầm và các chi tiết kim loại màu xám đậm hoặc đen ở khung cửa và cổng. .

Tầng hai là điểm nhấn kiến trúc chính, với hệ cửa kính lớn màu đen tối giản mở ra ban công nhỏ có lan can kim loại thanh thoát, giúp tối đa hóa ánh sáng và tầm nhìn. Đặc biệt, mái che phía trên ban công được tạo hình với một đường cong duyên dáng, làm dịu đi sự vuông vắn của các khối kiến trúc xung quanh, đồng thời tích hợp đèn âm trần ánh sáng vàng ấm tạo cảm giác sang trọng vào buổi tối.
Khu vực tầng trệt và hàng rào được thiết kế kín đáo nhưng vẫn đảm bảo thẩm mỹ: cổng sắt lớn màu đen kết hợp với mảng tường trắng trang trí hoa văn ô vuông, bên cạnh là một ô trồng cây xanh nhỏ, mang lại sự tươi mát ngay từ mặt tiền. Sự hiện diện của cây xanh cao lớn xung quanh càng làm tăng thêm vẻ hài hòa, tạo nên một không gian sống hiện đại, tiện nghi và gần gũi với thiên nhiên, lý tưởng cho một gia đình có nhu cầu 4 phòng ngủ



Phối cảnh bóc mái mẫu nhà 2 tầng mặt tiền 5m hiện đại 4 phòng ngủ
Với sứ mệnh kiến tạo những không gian sống hoàn hảo, Công ty Cổ phần Kiến trúc AHACO tự hào là đơn vị tiên phong trong lĩnh vực thiết kế nhà ở hiện đại, đặc biệt là các giải pháp nhà phố tối ưu công năng. Qua phối cảnh ngoại thất tinh tế và các mặt bằng bóc mái chi tiết (Tầng 1 và Tầng 2), AHACO thể hiện rõ sự chuyên nghiệp trong việc cân bằng giữa thẩm mỹ và tiện ích. Các thiết kế của chúng tôi không chỉ sở hữu vẻ ngoài hiện đại, sang trọng – nổi bật với sự kết hợp hài hòa giữa đường nét vuông vắn và đường cong mềm mại – mà còn đặc biệt chú trọng đến việc bố trí công năng khoa học. Với mẫu nhà 2 tầng mặt tiền hẹp, AHACO vẫn đảm bảo đầy đủ 4 phòng ngủ, không gian mở liên hoàn cho khu vực Khách – Bếp – Ăn, cùng với khu vực Thờ cúng trang trọng, đáp ứng trọn vẹn nhu cầu của gia đình hiện đại. Hãy để AHACO đồng hành cùng bạn hiện thực hóa ngôi nhà mơ ước, nơi mỗi mét vuông đều được “tận tâm sáng tạo” để mang lại cuộc sống tiện nghi và đẳng cấp nhất!




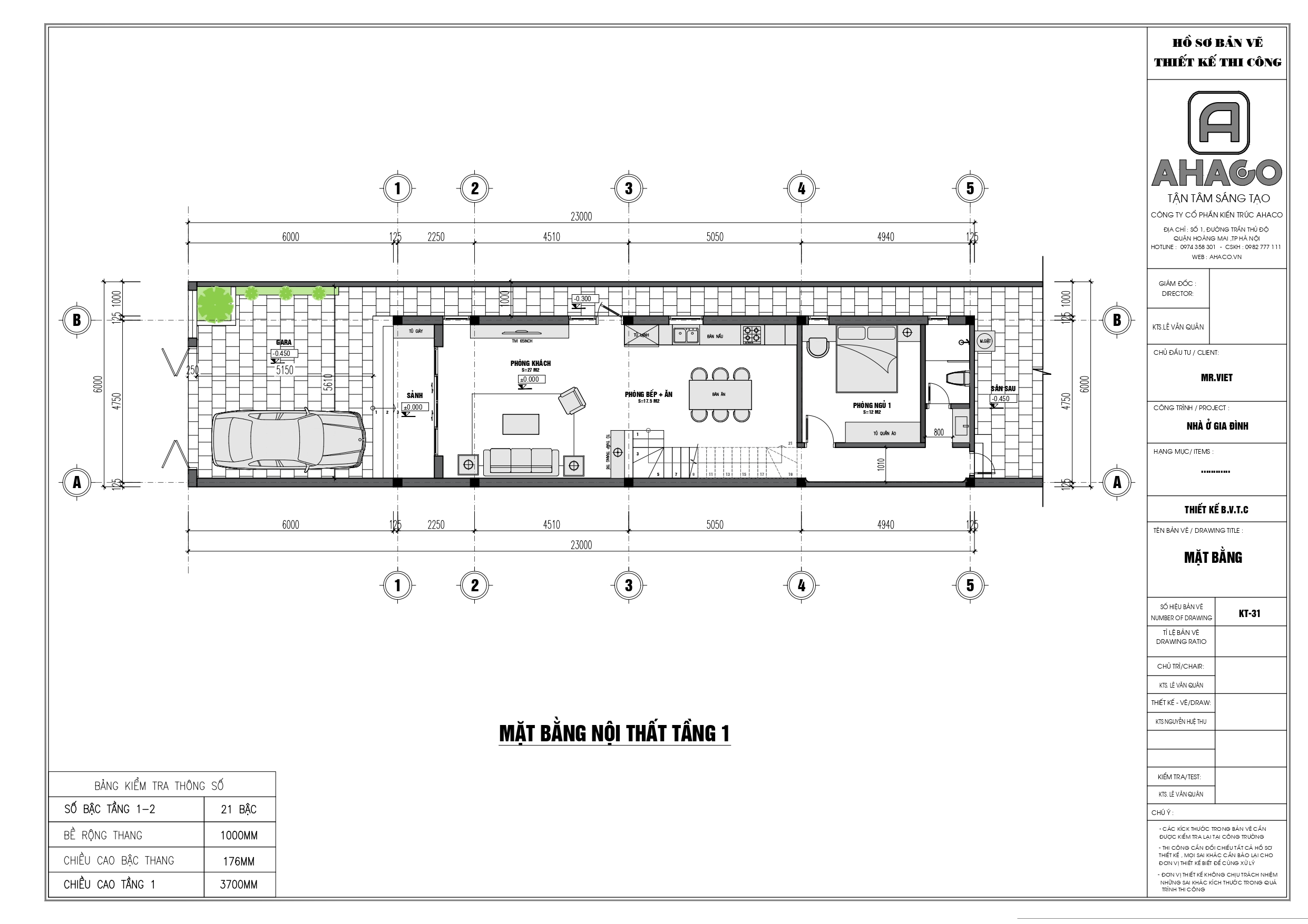
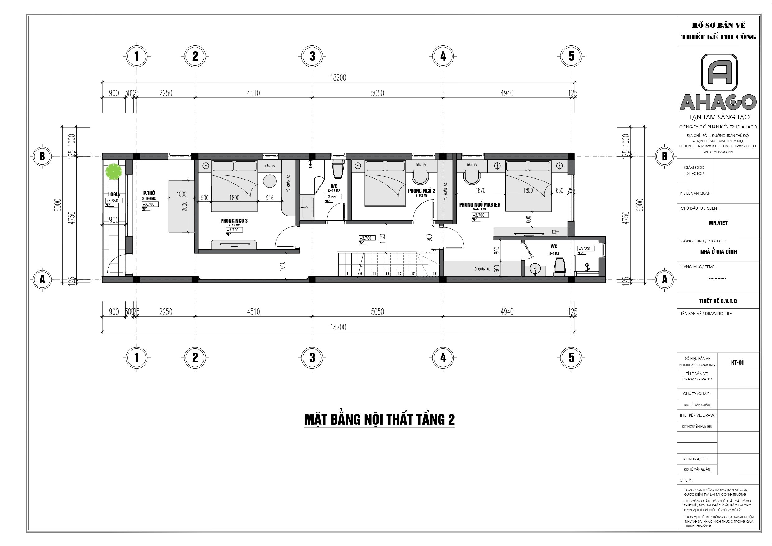
Mặt bằng công năng mẫu nhà 2 tầng mặt tiền 5m hiện đại 4 phòng ngủ
Tầng 1
Phòng Khách, Bếp + Ăn, 1 Phòng Ngủ, 1 WC

Tầng 2
Phòng Thờ, 3 Phòng Ngủ, 2 WC

Bảng dự toán chi phí mẫu nhà 2 tầng mặt tiền 5m hiện đại 4 phòng ngủ
Ngay sau đây chúng tôi sẽ chia sẻ với các bạn bảng dự toán chi phí xây thô mẫu nhà 2 tầng mặt tiền 5m được xuất ra từ công nghệ Bim giúp các bạn dự toán chính xác nhất chi phí xây dựng của ngôi nhà mình với các số liệu chính xác và rõ ràng. Như các bạn đã thấy ở đây là chi phí xây dựng công trình này chỉ gần 800 triệu thôi nhé!

Kết luận :
Ngôi nhà 2 tầng mặt tiền 5m này là một mẫu thiết kế nhà phố hiện đại, tối ưu công năng, được thiết kế để đáp ứng đầy đủ nhu cầu sinh hoạt của một gia đình nhiều thế hệ.
DỰ ÁN LIÊN QUAN
Mẫu nhà 2 tầng 1 tum mặt tiền 8m
Mr Thế Anh

