Mẫu nhà 2 tầng 5 phòng ngủ 5×20
Hà Giang
Đã xem: 83
Mã dự án:

- Diện tích: 5 x 20 m
- Phòng ngủ: 5
- Số tầng: 2
- Tầng hầm:
- Khách hàng: Ms Hương
- Địa chỉ: Hà Giang
- Chi phí đầu tư: 1.16 tỷ
Mô tả dự án
Mẫu nhà 2 tầng 5 phòng ngủ 5×20 đang trở thành lựa chọn hàng đầu của nhiều gia đình Việt nhờ diện tích vừa phải nhưng đáp ứng đầy đủ công năng. Với mặt tiền 5m và chiều sâu 20m, mẫu nhà này phù hợp với đa dạng phong cách kiến trúc, mang đến không gian sống rộng rãi, tiện nghi và có tính riêng tư cao.
Phối cảnh ngoại thất mẫu nhà 2 tầng 5 phòng ngủ 5×20
Trong dòng chảy hối hả của cuộc sống đô thị, ngôi nhà không còn đơn thuần là nơi trú ngụ mà đã trở thành nơi thể hiện gu thẩm mỹ và tuyên ngôn phong cách của gia chủ. Mẫu nhà phố hiện đại này chính là minh chứng rõ nét nhất cho sự kết hợp hoàn hảo giữa nét tinh tế và tiện nghi, một công trình được đội ngũ AHACO – Tận Tâm Sáng Tạo dày công kiến tạo.
Ngay từ cái nhìn đầu tiên, ngoại thất ngôi nhà đã chinh phục người xem bằng phong cách hiện đại, tối giản nhưng đầy kiêu hãnh. Bề mặt kiến trúc được định hình bằng những đường nét thẳng tắp, mạnh mẽ, sử dụng tông màu trắng tinh khôi làm chủ đạo, hòa quyện một cách duyên dáng với màu ghi xám hiện đại. Đặc biệt, điểm nhấn ấm áp và sang trọng đến từ lớp vật liệu ốp lát giả đá màu vàng nâu ở khu vực tầng trệt và ban công, tạo nên sự tương phản thị giác độc đáo, vừa ấm cúng vừa đẳng cấp.

Toàn bộ mặt tiền được ưu tiên lắp đặt hệ thống cửa kính lớn với khung nhôm màu đen, không chỉ tối đa hóa nguồn sáng tự nhiên mà còn giúp mở rộng không gian, kết nối hài hòa giữa nội thất và ngoại thất. Tầng trệt được thiết kế khéo léo lùi vào, tạo ra một khoảng không gian sân đậu xe ô tô tiện lợi cùng với khu vực đệm xanh mát. Hệ thống chiếu sáng âm trần bố trí tinh tế, tập trung làm nổi bật chất liệu đá ốp, mang lại cảm giác mời gọi, thân thiện khi đêm về.
Lên đến tầng lầu, ban công với lan can kính cường lực không chỉ đảm bảo an toàn mà còn giữ trọn vẻ đẹp khoáng đạt, không che chắn tầm nhìn. Phía trên là mảng tường vuông vắn, dứt khoát, định hình kiến trúc một cách mạch lạc. Điểm đáng quý trong thiết kế này là sự xuất hiện của mảng xanh – một yếu tố không thể thiếu trong kiến trúc đô thị bền vững. Từ hàng rào cây xanh được cắt tỉa gọn gàng, tạo sự riêng tư tuyệt đối, cho đến mảng xanh tươi tốt trên sân thượng, tất cả đã mang hơi thở thiên nhiên vào trọn vẹn không gian sống, biến ngôi nhà thành một chốn nghỉ dưỡng đích thực giữa lòng thành phố.



Công trình này không chỉ là vẻ đẹp bên ngoài mà còn là lời khẳng định về chất lượng và sự chuyên nghiệp của AHACO. Với kim chỉ nam “Tận Tâm Sáng Tạo”, chúng tôi cam kết mang đến những giải pháp thiết kế và thi công kiến trúc, nội thất không chỉ đẹp về mặt thẩm mỹ mà còn tối ưu về công năng sử dụng. Sự lắng nghe tận tâm và tinh thần sáng tạo không ngừng là yếu tố giúp AHACO biến mọi ý tưởng của khách hàng thành những tổ ấm hoàn hảo, bền vững theo thời gian.
Phối cảnh bóc mái mẫu nhà 2 tầng 5 phòng ngủ 5×20
Trong hành trình kiến tạo tổ ấm, việc nhìn thấy trước tương lai của ngôi nhà là yếu tố then chốt, mang lại sự an tâm tuyệt đối cho gia chủ. Đó chính là lý do vì sao Phối cảnh Bóc Mái – một công cụ thiết kế chuyên sâu, trực quan do AHACO – Tận Tâm Sáng Tạo cung cấp – lại trở thành bước đột phá không thể thiếu trong quy trình thiết kế.
Phối cảnh Bóc Mái không phải là một bản vẽ thông thường; nó là một “lát cắt” không gian 3D kỳ diệu, vén bức màn ngoại thất để lộ ra toàn bộ cấu trúc, công năng và dòng chảy ánh sáng bên trong. Thay vì chỉ hình dung qua mặt bằng 2D khô khan, gia chủ có thể tận mắt chiêm ngưỡng ngôi nhà của mình như một mô hình thu nhỏ được cắt mở, nhìn rõ cách Phòng Khách giao tiếp với Phòng Bếp, cách ánh sáng tự nhiên từ Giếng Trời len lỏi xuống từng tầng, hay vị trí lắp đặt hệ thống kỹ thuật.
Tại AHACO, chúng tôi hiểu rằng một ngôi nhà đẹp phải song hành với một công năng hoàn hảo. Phối cảnh Bóc Mái là công cụ mạnh mẽ nhất để đảm bảo điều đó. Nó giúp gia chủ kiểm tra tính hợp lý của mọi sắp xếp: Liệu cầu thang có đủ rộng? Phòng ngủ có đủ ánh sáng? Hành lang có thông thoáng? Mọi vấn đề tiềm ẩn về không gian sẽ được phát hiện và điều chỉnh ngay từ giai đoạn thiết kế, tiết kiệm tối đa thời gian và chi phí phát sinh trong quá trình thi công thực tế.
Đây chính là sự khác biệt mà triết lý “Tận Tâm Sáng Tạo” của AHACO mang lại: sự minh bạch tuyệt đối, độ chính xác cao và cam kết về chất lượng sống. Phối cảnh Bóc Mái của chúng tôi là lời khẳng định: Bạn không chỉ đang mua một thiết kế, bạn đang đầu tư vào sự thấu hiểu trọn vẹn về không gian sống của mình.




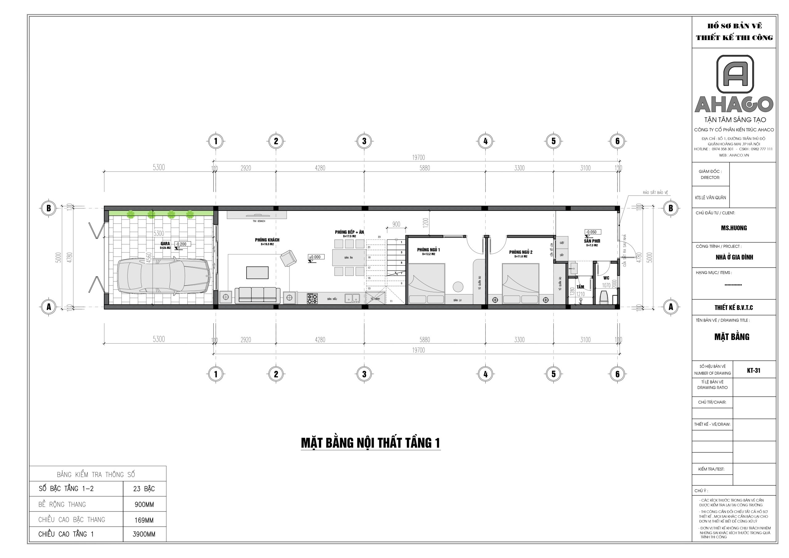
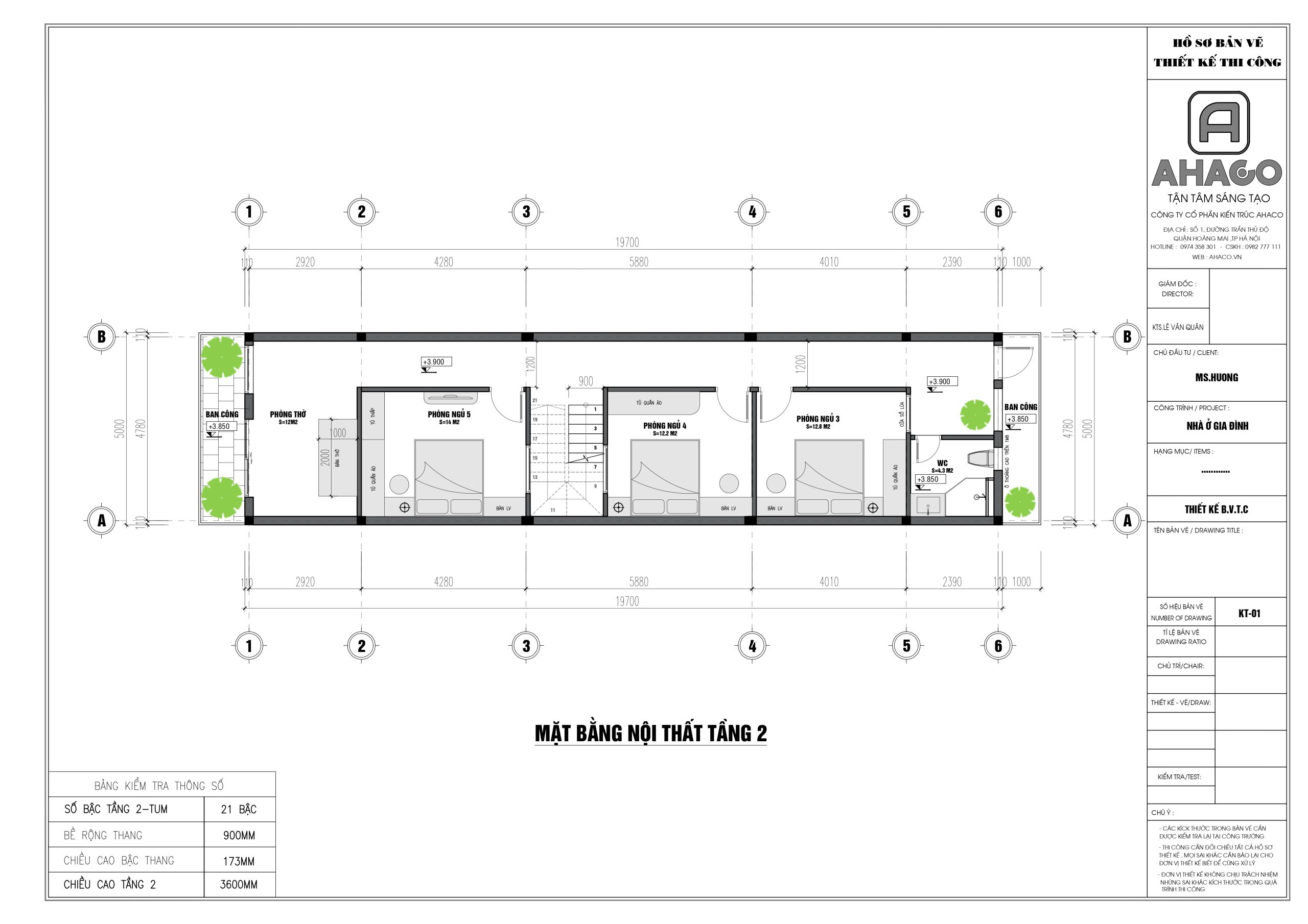
Mặt bằng công năng mẫu nhà 2 tầng 5 phòng ngủ 5×20
Dù diện tích chưa đến 100m², AHACO vẫn thiết kế được một không gian sống 2 tầng hiện đại, 5 phòng ngủ đầy đủ tiện nghi, đáp ứng trọn vẹn nhu cầu của cả gia đình. Từng góc nhà đều được tối ưu hóa, đảm bảo vừa thoáng đãng, vừa tiện ích, vừa mang tính thẩm mỹ cao. Thiết kế chú trọng sự tối giản nhưng tinh tế, sử dụng cửa kính lớn để đón ánh sáng tự nhiên, giúp ngôi nhà luôn sáng sủa và tràn đầy năng lượng. Đây chính là minh chứng cho câu nói: “Diện tích nhỏ nhưng thiết kế đỉnh cao, nhà nhỏ vẫn đủ đầy và hạnh phúc!
Công năng tầng 1
Khu để xe
Phòng khách
Phòng bếp + ăn
2 Phòng ngủ
1 WC

Công năng tầng 2
Phòng thờ
Phòng bếp + ăn
3 Phòng ngủ
1 WC


Bảng khái toán xây thô mẫu nhà 2 tầng 5 phòng ngủ 5×20
AHACO – Tiên phong áp dụng công nghệ Bim vào trong bản vẽ thiết kế Dựa vào bảng dự toán chi phí xây thô, quý vị có thể mua và đặt cọc trước nguyên vật liệu để giữ giá, giúp dự trù kinh phí thực tế để tránh phát sinh trong quá trình thi công. Và còn giúp mình chủ động gọi nguyên vật liệu trong quá trình xây dựng. Như quý vị đang thấy ở đây là bảng dự toán chi phí xây thô của công trình có địa chỉ tại Hà Giang; chi phí gạch xây là 72 triệu đồng, chi phí cát xây là 26 triệu, chi phí nhân công xây dựng vào khoảng 382 triệu và tổng chi phí xây thô của công trình này vào khoảng 1163 triệu đồng quý vị nhé!

Kết luận
Mẫu nhà 2 tầng 5 phòng ngủ 5×20 là lựa chọn hoàn hảo cho những gia đình đông thành viên muốn tối ưu công năng mà vẫn tiết kiệm chi phí. Với thiết kế linh hoạt, thẩm mỹ và khả năng tùy biến cao, mẫu nhà này phù hợp với hầu hết khu đất nhà phố hiện nay.

