 
    
	
Mẫu nhà 2 tầng 4 phòng ngủ mặt tiền 4m
-  
                                    Gia Lộc Đã xem: 139 
- 
                                    Mã dự án: 
 
                                        - Diện tích: 4 x 23 m
- Phòng ngủ: 4
- Số tầng: 2
- Tầng hầm:
- Khách hàng: Mr Hải
- Địa chỉ: Gia Lộc
- Chi phí đầu tư:
Mô tả dự án
Trong những năm gần đây, nhu cầu thiết kế nhà 2 tầng 4 phòng ngủ mặt tiền 4m ngày càng phổ biến tại các đô thị và khu dân cư đông đúc. Với lợi thế chi phí hợp lý, công năng đầy đủ và tính thẩm mỹ cao, đây là lựa chọn hoàn hảo cho những gia đình có 4 – 6 thành viên sinh sống.
Phối cảnh ngoại thất nhà 2 tầng 4 phòng ngủ mặt tiền 4m
Ngôi nhà 2 tầng mặt tiền 4m hiện lên với dáng vẻ thanh thoát và hiện đại. Từ xa nhìn lại, mặt tiền gọn gàng nhưng không kém phần tinh tế nhờ sự kết hợp hài hòa giữa những mảng khối vuông vức và gam màu trung tính trang nhã. Tầng một nổi bật với hệ cửa kính khung nhôm đen, sáng bóng dưới ánh đèn vàng, vừa tạo cảm giác rộng mở, vừa mang đến sự sang trọng cho tổng thể công trình. Bức tường bao phía trước được thiết kế tối giản với những thanh sắt song song, vừa chắc chắn, vừa giữ được độ thoáng cho ngôi nhà.

Lên đến tầng hai, ban công rộng mở vươn ra phía trước như điểm nhấn kiến trúc. Lan can sắt sơn tĩnh điện mang đường nét mạnh mẽ, kết hợp cùng mái che bằng lam ngang vừa hiện đại, vừa giúp che nắng che mưa. Khi màn đêm buông xuống, hệ thống đèn trần vàng ấm tỏa sáng, khiến ngôi nhà càng trở nên lung linh, nổi bật giữa dãy phố.




Tổng thể ngoại thất ngôi nhà là sự giao thoa hoàn hảo giữa nét hiện đại trẻ trung và sự tiện nghi trong công năng sử dụng. Dù sở hữu mặt tiền chỉ 4m, công trình vẫn toát lên vẻ đẹp sang trọng, khẳng định gu thẩm mỹ tinh tế của gia chủ.
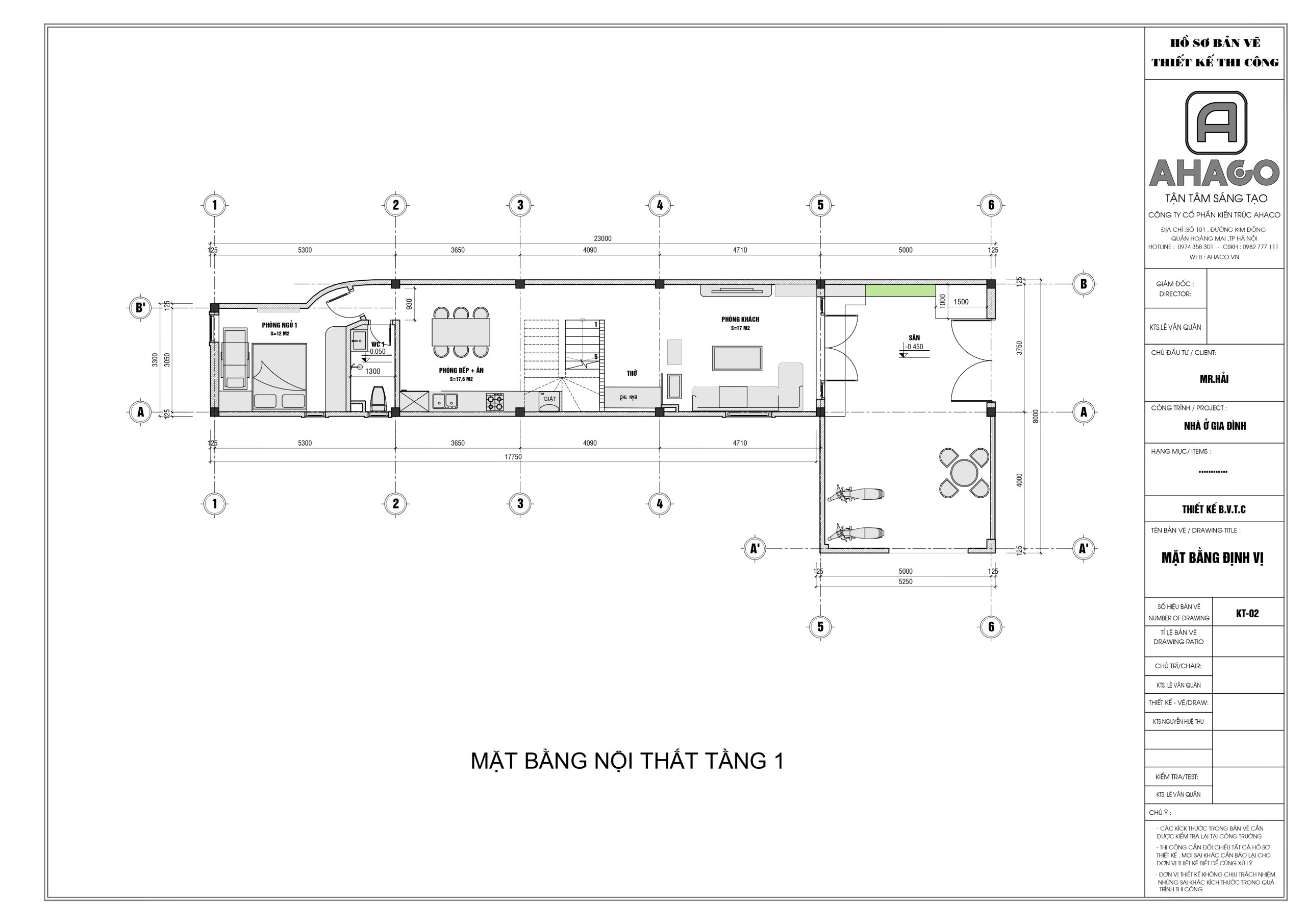
Mặt bằng 2D nhà 2 tầng 4 phòng ngủ mặt tiền 4m
Với 4 phòng ngủ rộng rãi, phòng khách thoáng đãng, phòng bếp hiện đại và khu vực sân trước cửa, mỗi không gian đều được tính toán kỹ lưỡng để đáp ứng mọi nhu cầu sinh hoạt của gia đình bạn. AHACO luôn chú trọng đến việc tối ưu hóa ánh sáng tự nhiên và thông gió, mang đến không gian sống trong lành và thoải mái.
Công năng tầng 1 :
Phòng khách
Phòng bếp + ăn
1 Phòng ngủ
1 nhà vệ sinh

Công năng tầng 2 :
3 Phòng ngủ
2 nhà vệ sinh
Phòng giặt


Kết luận
Mẫu nhà 2 tầng 4 phòng ngủ mặt tiền 4m chính là giải pháp lý tưởng cho những gia đình muốn sở hữu tổ ấm tiện nghi, sang trọng nhưng vẫn tiết kiệm diện tích và chi phí. Với thiết kế hài hòa giữa ngoại thất hiện đại và công năng khoa học, đây chắc chắn là lựa chọn phù hợp cho cuộc sống gia đình hiện đại nơi phố thị.
 



 
 
                                 
 
                                 
 
                                 
 
                                 
 
                                 
 
                                 
 
                                 
 
                                 
 
                                 
 
                                 
 
                                 
 
                                 
 
                                 
 
                                 
 
                                 
 
                                 
 
                                 
 
                                 
 
                                 
 
                                 
 
                                 
 
                                 
 
                                 
 
                                 
 
                                 
 
                                 
 
                                 
 
                                 
 
                                 
 
                                 
 
                                 
 
                                 
 
                                