Mẫu nhà 2 tầng 1 tum 5x17m 4 phòng ngủ
Gia Lộc
Đã xem: 77
Mã dự án:

- Diện tích: 5 x 17 m
- Phòng ngủ: 4
- Số tầng: 3
- Tầng hầm:
- Khách hàng: Mr Tuấn
- Địa chỉ: Gia Lộc
- Chi phí đầu tư: 967 triệu
Mô tả dự án
Mẫu nhà 2 tầng 1 tum 5x17m 4 phòng ngủ đang là lựa chọn được nhiều gia đình Việt yêu thích nhờ thiết kế gọn gàng, công năng khoa học và chi phí xây dựng hợp lý. Với mặt tiền 5m phổ biến tại khu đô thị, nông thôn cải tạo hay nhà lô phố, mẫu nhà này đáp ứng trọn vẹn nhu cầu sinh hoạt cho gia đình từ 4–6 thành viên.
Phối cảnh ngoại thất mẫu nhà 2 tầng 1 tum 5x17m 4 phòng ngủ
Mẫu nhà 2 tầng 1 tum 5x17m gây ấn tượng mạnh ngay từ cái nhìn đầu tiên bởi ngôn ngữ kiến trúc hiện đại, tối giản nhưng đầy chiều sâu thẩm mỹ. Công trình nổi bật giữa dãy nhà phố nhờ hình khối gọn gàng, bố cục mạch lạc và cách xử lý không gian ban công thông minh.
Mặt tiền sử dụng tông màu trắng chủ đạo, kết hợp hài hòa với đá ốp vân marble xám đậm tại tầng 1, tạo cảm giác vững chãi, sang trọng và bền bỉ theo thời gian. Hệ cửa chính kim loại màu xám than điểm nhấn hoa văn CNC tinh xảo, vừa đảm bảo an ninh vừa nâng tầm giá trị thẩm mỹ cho tổng thể ngôi nhà.

Các tầng trên được thiết kế với ban công đua nhẹ, lan can sắt sơn tĩnh điện thanh mảnh, kết hợp hệ bồn cây xanh chạy dài, mang thiên nhiên len lỏi vào không gian sống. Cách bố trí cây xanh không chỉ tạo điểm nhấn mềm mại cho mặt đứng mà còn giúp điều hòa vi khí hậu, giảm bức xạ nhiệt hiệu quả.
Điểm nhấn đặc biệt của công trình nằm ở tầng tum với mái che lam kim loại uốn cong hiện đại, tạo hiệu ứng kiến trúc độc đáo và khác biệt so với các mẫu nhà phố thông thường. Trần ban công được ốp gỗ nhựa ngoài trời, kết hợp hệ đèn âm trần ánh sáng vàng, mang đến cảm giác ấm áp, sang trọng vào buổi tối.



Tổng thể ngoại thất được xử lý tinh tế với sự tương phản giữa vật liệu cứng – mềm, giữa đường nét thẳng mạnh mẽ và những mảng cong nhẹ nhàng, tạo nên một mẫu nhà phố 2 tầng 1 tum vừa hiện đại, vừa gần gũi và có giá trị thẩm mỹ cao.
Mặt bằng bóc mái mẫu nhà 2 tầng 1 tum 5x17m 4 phòng ngủ
Trong thiết kế nhà ở hiện đại, mặt bằng bóc mái đóng vai trò vô cùng quan trọng, giúp gia chủ hình dung rõ ràng kết cấu, công năng và cách tổ chức không gian tổng thể của ngôi nhà. Với mẫu nhà 2 tầng 1 tum 5x17m 4 phòng ngủ, AHACO đã nghiên cứu kỹ lưỡng để đưa ra phương án bóc mái tối ưu, vừa đảm bảo thẩm mỹ, vừa đáp ứng công năng và yếu tố kỹ thuật lâu dài.
Mặt bằng bóc mái thể hiện rõ:
Quy mô công trình 2 tầng + 1 tum
Bố trí mái, sân thượng, khu vực kỹ thuật
Phương án thoát nước, chống nóng, chống thấm
Tất cả đều được AHACO tính toán đồng bộ ngay từ khâu thiết kế, giúp hạn chế tối đa phát sinh trong quá trình thi công.
Trong mẫu nhà này, tầng tum được AHACO thiết kế với tỷ lệ hợp lý, không gây cảm giác nặng nề cho mặt tiền nhưng vẫn tăng đáng kể diện tích sử dụng. Không gian tum thường bao gồm:
Phòng thờ đặt tại vị trí cao ráo, yên tĩnh, hợp phong thủy
Phòng ngủ hoặc phòng đa năng linh hoạt theo nhu cầu gia đình
Sân thượng – sân phơi thông thoáng, đón nắng và gió tự nhiên
Thiết kế bóc mái giúp gia chủ dễ dàng hình dung mối liên kết giữa tum và các tầng bên dưới, đồng thời kiểm soát tốt chiều cao công trình theo quy định xây dựng.






Với kinh nghiệm thiết kế và thi công hàng nghìn công trình nhà ở trên toàn quốc, AHACO luôn chú trọng từng chi tiết nhỏ, trong đó mặt bằng bóc mái là một phần không thể thiếu để tạo nên ngôi nhà đẹp – bền – chuẩn công năng.
Nếu bạn đang quan tâm đến mẫu nhà 2 tầng 1 tum 5x17m 4 phòng ngủ, đội ngũ kiến trúc sư AHACO sẵn sàng:
Tư vấn phương án thiết kế phù hợp
Điều chỉnh mặt bằng theo nhu cầu gia đình
Báo giá thiết kế – thi công trọn gói minh bạch
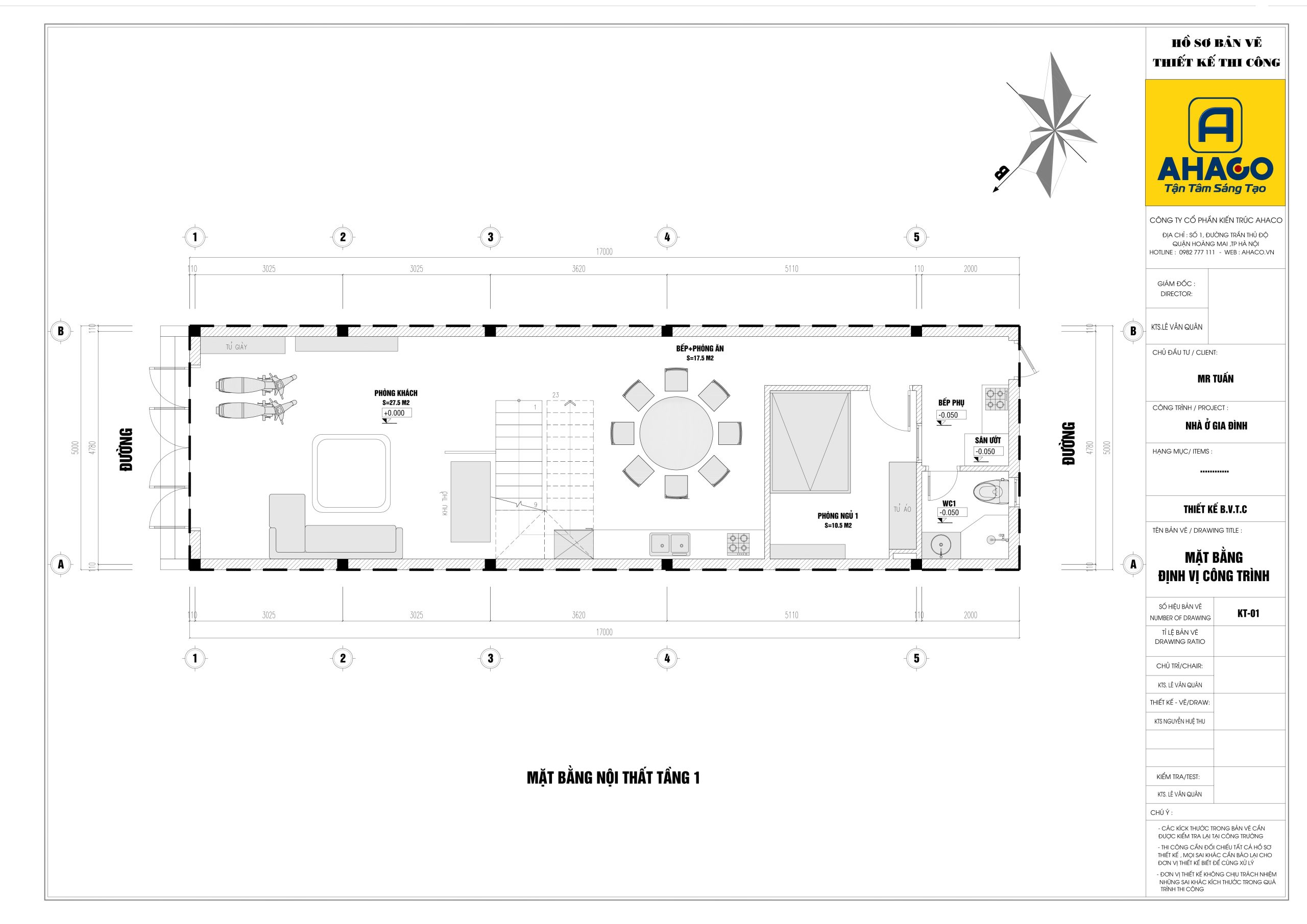
Mặt bằng công năng mẫu nhà 2 tầng 1 tum 5x17m 4 phòng ngủ
Với mong muốn mang đến không gian sống lý tưởng nhiều thế hệ , AHACO đã tối ưu hóa thiết kế công năng cho mẫu nhà mặt tiền 5 m này. Ngôi nhà được bố trí 4 phòng ngủ khoa học, trong đó 1 phòng ngủ tầng trệt tiện lợi cho người lớn tuổi, các phòng còn lại trên tầng 2 đảm bảo sự riêng tư và yên tĩnh. Không gian phòng khách – bếp được kết nối mở, rộng rãi, tạo cảm giác gần gũi, ấm cúng. Ngoài ra, thiết kế còn tích hợp khu vực thờ trang nghiêm, sân vườn tiểu cảnh và ban công thư giãn, mang đến cuộc sống tiện nghi, thoải mái và đậm chất hiện đại cho gia chủ. Với AHACO, mỗi mét vuông đều được tính toán tỉ mỉ để phục vụ trọn vẹn nhu cầu sinh hoạt và nghỉ ngơi của gia đình bạn.
Công năng tầng 1
- Phòng khách
- Phòng bếp + ăn
- 1 Phòng ngủ
- 1 Vệ sinh
- 1 Bếp phụ

Công năng tầng 2
- 3 Phòng ngủ
- 1 Vệ sinh

Công năng tầng 3
- Kho

Bảng khái toán xây thô mẫu nhà 2 tầng 1 tum 5x17m 4 phòng ngủ
AHACO hiểu rằng chi phí xây dựng là một trong những mối quan tâm hàng đầu của khách hàng khi xây nhà. Vì vậy, chúng tôi luôn cố gắng cung cấp bảng khái toán chi phí xây thô chi tiết và minh bạch nhất để khách hàng dễ dàng dự trù ngân sách.

Kết luận
Mẫu nhà 2 tầng 1 tum 5x17m 4 phòng ngủ là giải pháp lý tưởng cho những gia đình mong muốn không gian sống tiện nghi, hiện đại, phù hợp quỹ đất phổ biến tại Việt Nam. Thiết kế linh hoạt, chi phí hợp lý và công năng đầy đủ chính là lý do khiến mẫu nhà này ngày càng được ưa chuộng.
DỰ ÁN LIÊN QUAN
Mẫu nhà 2 tầng 1 tum mặt tiền 8m
Mr Thế Anh

