Mẫu nhà 2 tầng 1 tum 5×14 m đẹp sang trọng
Ba Vì
Đã xem: 247
Mã dự án:

- Diện tích: 5 x 14 m
- Phòng ngủ: 3
- Số tầng: 3
- Tầng hầm:
- Khách hàng: Ms Thuỳ
- Địa chỉ: Ba Vì
- Chi phí đầu tư: 794 triệu
Mô tả dự án
Trong những năm gần đây, mẫu nhà 2 tầng 1 tum 5x14m trở thành lựa chọn phổ biến cho các gia đình trẻ tại thành phố và khu vực ven đô. Với diện tích mặt tiền 5m và chiều sâu 14m, ngôi nhà được thiết kế tối ưu công năng, vừa hiện đại vừa tiết kiệm chi phí.
Phối cảnh ngoại thất mẫu nhà 2 tầng 1 tum 5×14 m đẹp sang trọng
Ngôi nhà hiện lên như một kiến trúc hiện đại và tinh tế, nổi bật giữa khung cảnh xanh mát của cây cối xung quanh. Tổng thể ngoại thất là sự kết hợp hài hòa giữa các khối hình học vuông vức, tông màu trung tính và vật liệu hiện đại, tạo nên một vẻ đẹp vừa thanh lịch vừa vững chãi.

Căn nhà mang dáng dấp của một ngôi nhà phố ống cao tầng, với mặt tiền hẹp nhưng được thiết kế thông minh để tối ưu hóa không gian và ánh sáng. Màu sơn chủ đạo là màu trắng tinh khôi, tạo cảm giác sạch sẽ, mở rộng không gian và làm nổi bật các chi tiết kiến trúc khác. Màu trắng này được điểm xuyết bởi các mảng vật liệu màu xám đậm hoặc đen (có thể là đá ốp, gạch hoặc kim loại) ở các góc tường, lan can và phần mái che, mang lại sự tương phản mạnh mẽ và nét sang trọng cho tổng thể.


Tầng trệt được dành cho gara và lối vào chính. Gara được trang bị cửa cuốn hoặc cửa xếp ngang màu trắng/kem, tích hợp một không gian nhỏ phía trước, có thể dùng để đậu xe máy hoặc là lối đi bộ. Đặc biệt, khu vực này còn có một mái che bằng kính cường lực trong suốt, kết hợp với khung gỗ hoặc kim loại màu nâu ấm, vừa che mưa vừa đón ánh sáng tự nhiên xuống khu vực tiền sảnh, tạo cảm giác mở và thân thiện.
Tầng lầu phía trên là nơi tập trung các khung cửa sổ lớn và ban công. Cửa sổ sử dụng kính lớn với khung nhôm hoặc thép mỏng màu đen, không chỉ tối đa hóa ánh sáng mà còn cho phép tầm nhìn rộng ra bên ngoài. Ban công được thiết kế hiện đại với lan can kính cường lực trong suốt, không làm che khuất tầm nhìn mà còn tăng tính thẩm mỹ và sự nhẹ nhàng cho mặt tiền.
Tầng thượng (hoặc tầng áp mái) nổi bật với một sân thượng rộng rãi, nơi có khu vực thư giãn ngoài trời. Phần mái che của sân thượng này sử dụng vật liệu màu đen với kết cấu khung thanh thoát, dưới mái che là trần ốp gỗ công nghiệp hoặc vật liệu giả gỗ màu ấm, tạo nên một không gian nghỉ ngơi ấm cúng, đối lập với sự lạnh lẽo của tông trắng và xám.

Một yếu tố làm nên sức sống của ngôi nhà là việc tích hợp cây xanh vào kiến trúc. Các bồn cây được bố trí ở ban công và sân thượng, mang lại mảng xanh tươi mát, dịu đi sự cứng nhắc của các khối bê tông và kim loại. Đáng chú ý là bức tường cao ở mặt tiền được ốp bằng vật liệu đá hoặc gạch xám thô, tăng thêm chiều sâu và sự vững chãi, đồng thời đóng vai trò như một bức bình phong độc đáo.
Ngôi nhà được bao bọc bởi một hàng rào chắc chắn, kết hợp giữa bức tường bê tông màu xám và các mảng nhấn màu tối. Cây bụi và thảm cỏ được chăm sóc tỉ mỉ chạy dọc theo hàng rào và vỉa hè, kết nối công trình kiến trúc với thiên nhiên xung quanh.

Ngoại thất ngôi nhà là một bản vẽ hoàn hảo của kiến trúc hiện đại tối giản, nơi ánh sáng, màu sắc và vật liệu được sử dụng một cách thông minh để tạo ra một không gian sống vừa tiện nghi, sang trọng lại vừa gần gũi với thiên nhiên.
Mặt bằng BÓC MÁI mẫu nhà 2 tầng 1 tum 5×14 m đẹp sang trọng
Phối cảnh bóc mái là một hình thức phối cảnh 3D đặc biệt, cho phép khách hàng và thợ thi công “nhìn xuyên qua mái nhà” để thấy rõ toàn bộ mặt bằng và cách tổ chức không gian của các tầng từ góc nhìn trên cao. Nó giống như việc bạn mở một mô hình nhà để khám phá chi tiết bên trong.
Phối cảnh bóc mái không chỉ là một hình ảnh 3D thông thường, mà là một “vũ khí mạnh” mang lại nhiều lợi ích thiết thực:
1. Hiểu Rõ Công Năng và Không Gian Trực Quan Nhất
- Nhìn rõ tổng thể: Chủ nhà có thể quan sát toàn bộ cách bố trí phòng ốc, hành lang, cầu thang, ô giếng trời, và các chi tiết kỹ thuật khác của từng tầng một cách rõ ràng, trực quan.
- Điều chỉnh dễ dàng: Hỗ trợ khách hàng điều chỉnh công năng sử dụng ngay từ giai đoạn thiết kế, đảm bảo không gian sống phù hợp nhất với nhu cầu gia đình.
2. Thể Hiện Kỹ Lưỡng Các Chi Tiết Kỹ Thuật Quan Trọng
- Tập trung vào hệ mái: Đặc biệt quan trọng với nhà mái bằng, phối cảnh bóc mái AHACO thể hiện kỹ lưỡng các chi tiết kỹ thuật phức tạp trên mái như: hệ thống thoát nước, chống nóng, vị trí đặt bồn nước, dàn năng lượng mặt trời, lam che nắng… Giúp đảm bảo tính thẩm mỹ, công năng và độ bền vững của công trình.
3. Công Cụ Giao Tiếp Hiệu Quả giữa Chủ nhà và Đơn vị Thi công
- Giảm thiểu sai sót: Là cầu nối giúp chủ nhà dễ dàng giải thích cho thợ thi công về ý đồ thiết kế ở các khu vực phức tạp mà không cần kiến thức chuyên môn. Điều này giúp hạn chế hiểu nhầm, thi công sai ý đồ thiết kế và tiết kiệm chi phí sửa chữa.
- Cam kết chất lượng: Thể hiện sự đầu tư và cam kết chất lượng trong từng bộ hồ sơ thiết kế của AHACO, mang lại sự yên tâm tuyệt đối cho khách hàng.
Với Phối cảnh bóc mái, AHACO không chỉ cung cấp bản vẽ, mà còn trao cho khách hàng khả năng tự tin giám sát và hiện thực hóa ngôi nhà mơ ước một cách chính xác và hiệu quả nhất.





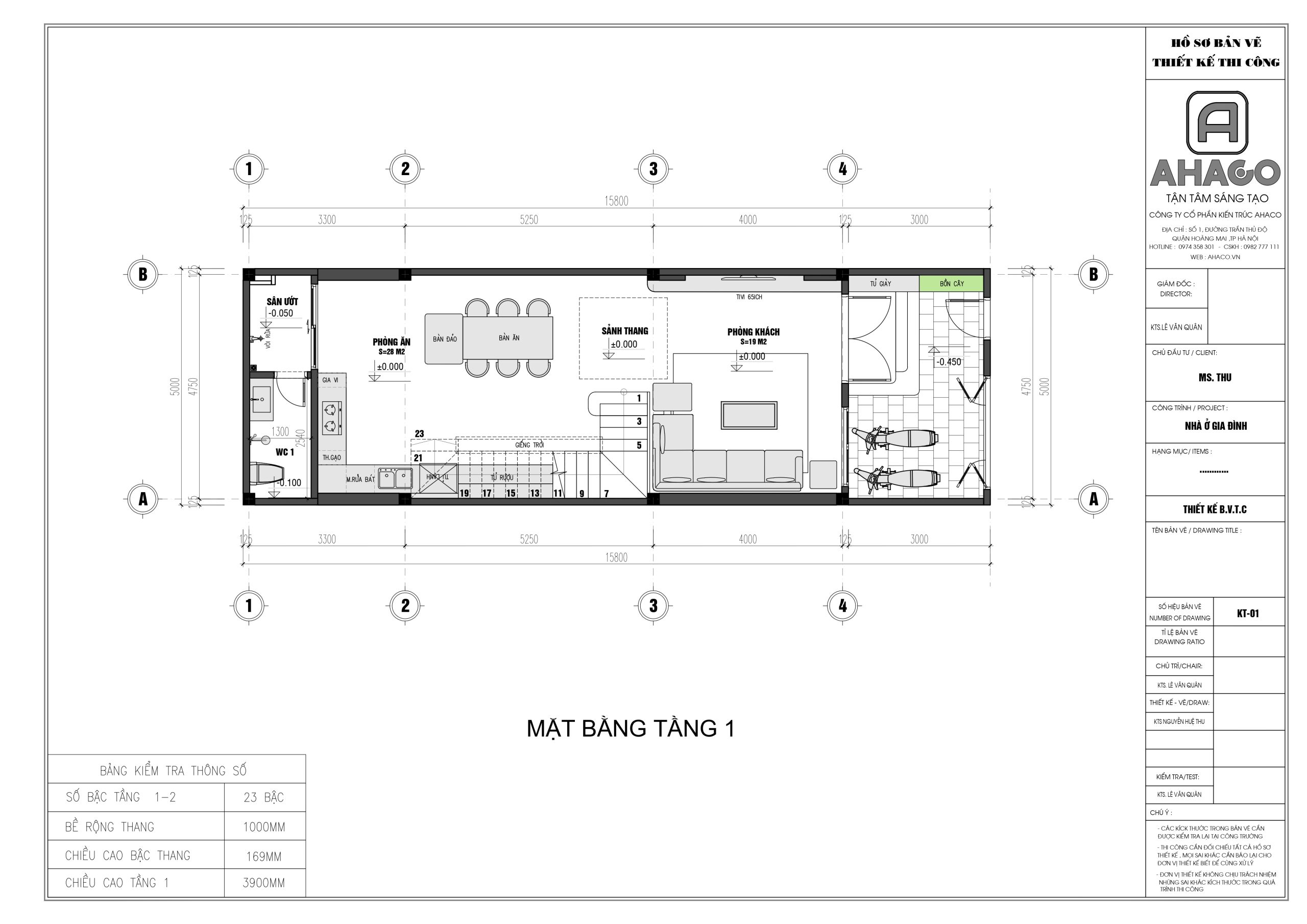
Mặt bằng 2D mẫu nhà 2 tầng 1 tum 5×14 m đẹp sang trọng
Dù diện tích 70m², AHACO đã thiết kế được một không gian sống 3 tầng hiện đại, 3 phòng ngủ đầy đủ tiện nghi, đáp ứng trọn vẹn nhu cầu của cả gia đình. Từng góc nhà đều được tối ưu hóa, đảm bảo vừa thoáng đãng, vừa tiện ích, vừa mang tính thẩm mỹ cao. Thiết kế chú trọng sự tối giản nhưng tinh tế, sử dụng cửa kính lớn để đón ánh sáng tự nhiên, giúp ngôi nhà luôn sáng sủa và tràn đầy năng lượng. Đây chính là minh chứng cho câu nói: “Diện tích nhỏ nhưng thiết kế đỉnh cao, nhà nhỏ vẫn đủ đầy và hạnh phúc!”
Công năng tầng 1
Khu để xe
Phòng khách
Phòng bếp + ăn
WC

Công năng tầng 2
3 Phòng ngủ
1 WC

Công năng tầng 3
Phòng thờ
Phòng giặt
Sân phơi
Sân chơi

Bảng dự toán chi phí mẫu nhà 2 tầng 1 tum 5×14 m đẹp sang trọng
AHACO hiểu rằng chi phí xây dựng là một trong những mối quan tâm hàng đầu của khách hàng khi xây nhà. Vì vậy, chúng tôi luôn cố gắng cung cấp bảng khái toán chi phí xây thô chi tiết và minh bạch nhất để khách hàng dễ dàng dự trù ngân sách.

Kết luận:
Mẫu nhà này là một đại diện tiêu biểu và thành công của phong cách kiến trúc nhà phố hiện đại (Modern Townhouse), đặc biệt phù hợp với những khu vực có mật độ xây dựng cao hoặc mặt tiền hẹp.

