Mẫu nhà 2 tầng 1 tum 4 phòng ngủ mặt tiền 4m
Gia Lộc
Đã xem: 85
Mã dự án:

- Diện tích: 4 x 21 m
- Phòng ngủ: 3
- Số tầng: 3
- Tầng hầm:
- Khách hàng: Mr Nam
- Địa chỉ: Gia Lộc
- Chi phí đầu tư: 814 triệu
Mô tả dự án
Trong bối cảnh quỹ đất ngày càng hạn hẹp tại đô thị, mẫu nhà 2 tầng 1 tum 4 phòng ngủ mặt tiền 4m đang trở thành lựa chọn lý tưởng cho nhiều gia đình Việt. Với thiết kế thông minh, tận dụng tối đa diện tích chiều sâu và chiều cao, mẫu nhà này vừa đảm bảo công năng sử dụng, vừa mang tính thẩm mỹ cao.
Phối cảnh ngoại thất nhà 2 tầng 1 tum 4 phòng ngủ mặt tiền 4m
Ngôi nhà trong ảnh mang vẻ đẹp đặc trưng của kiến trúc phố hiện đại với cấu trúc hai tầng một tum được thiết kế theo phong cách tối giản, chú trọng vào những hình khối vuông vức và đường nét gãy gọn. Bao phủ bởi tông màu trắng thanh khiết, ngoại thất công trình trở nên nổi bật và sang trọng hơn khi kết hợp cùng các chi tiết khung cửa màu xám đen và hệ lan can kính trong suốt.
Điểm nhấn ấn tượng nhất nằm ở cách thiết kế mặt tiền giật cấp, tạo ra những khoảng ban công rộng rãi ở tầng hai và tầng thượng, nơi gia chủ khéo léo bố trí những bộ ghế thư giãn cùng các bồn cây xanh mát để tạo không gian sống giao hòa với thiên nhiên.
Hệ cửa kính lớn sát trần không chỉ giúp đón trọn ánh sáng tự nhiên vào không gian nội thất mà còn tạo hiệu ứng phản chiếu lung linh khi màn đêm buông xuống. Phía trước nhà, một lối vào dài với bức tường bao cao ráo mang lại cảm giác an toàn và riêng tư tuyệt đối, dẫn vào khoảng sân đệm sạch sẽ trước khi bước tới sảnh chính. Trên cùng là tầng tum tiện nghi với sân thượng thoáng đãng, nơi đặt các thiết bị kỹ thuật nhưng vẫn đảm bảo được tính thẩm mỹ tổng thể cho toàn bộ công trình.




Phối cảnh bóc mái nhà 2 tầng 1 tum 4 phòng ngủ mặt tiền 4m
Phối cảnh bóc mái (3D floor plan/exploded view) của AHACO là một công cụ trực quan mạnh mẽ, mang lại nhiều lợi ích thiết thực giúp khách hàng hoàn toàn làm chủ quá trình xây dựng ngôi nhà của mình:
1. Hình dung không gian sống thực tế
Khác với bản vẽ 2D khô khan đầy thông số kỹ thuật, phối cảnh bóc mái giúp khách hàng “nhìn thấu” cách bố trí nội thất, phân chia phòng ốc và luồng di chuyển trong nhà một cách sống động. Khách hàng có thể dễ dàng thấy được kích thước phòng, vị trí cửa sổ, cửa đi và cách sắp xếp đồ đạc có phù hợp với nhu cầu sinh hoạt hay không.
2. Tối ưu hóa công năng và thẩm mỹ
Đánh giá sự hợp lý: Khách hàng có thể kiểm tra xem việc phân bổ diện tích giữa các khu vực (như phòng khách, bếp, phòng ngủ) đã khoa học chưa.
Cảm nhận màu sắc và vật liệu: Bản vẽ này thể hiện rõ tông màu chủ đạo, chất liệu sàn và ánh sáng, giúp gia chủ hình dung chính xác vẻ đẹp của ngôi nhà sau khi hoàn thiện.
3. Tiết kiệm chi phí và thời gian
Phát hiện lỗi sớm: Việc nhìn thấy mô hình 3D giúp khách hàng và kiến trúc sư phát hiện các điểm chưa hợp lý hoặc xung đột kỹ thuật trước khi thi công, từ đó tránh được việc phải đập phá, sửa chữa tốn kém về sau.
Dễ dàng điều chỉnh: Mọi thay đổi về vị trí đồ đạc hay ngăn chia lại không gian đều có thể thực hiện nhanh chóng trên bản vẽ, giúp rút ngắn thời gian phê duyệt và thống nhất ý tưởng.
4. Công cụ giám sát hiệu quả
Bản vẽ bóc mái đóng vai trò như một “kim chỉ nam” trực quan giúp khách hàng dễ dàng theo dõi quá trình thi công. Gia chủ có thể đối chiếu thực tế xây dựng với bản vẽ 3D để đảm bảo đội ngũ thi công thực hiện đúng theo ý tưởng thiết kế ban đầu, hạn chế tình trạng “vẽ một đằng, làm một nẻo”.





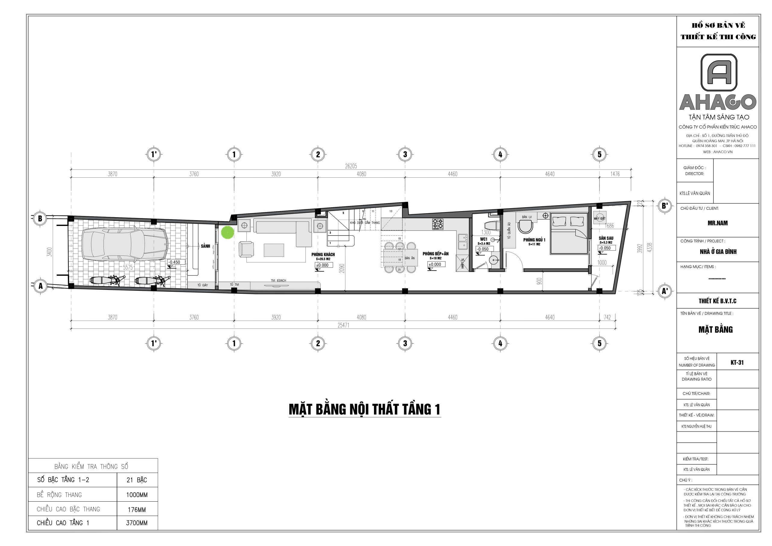
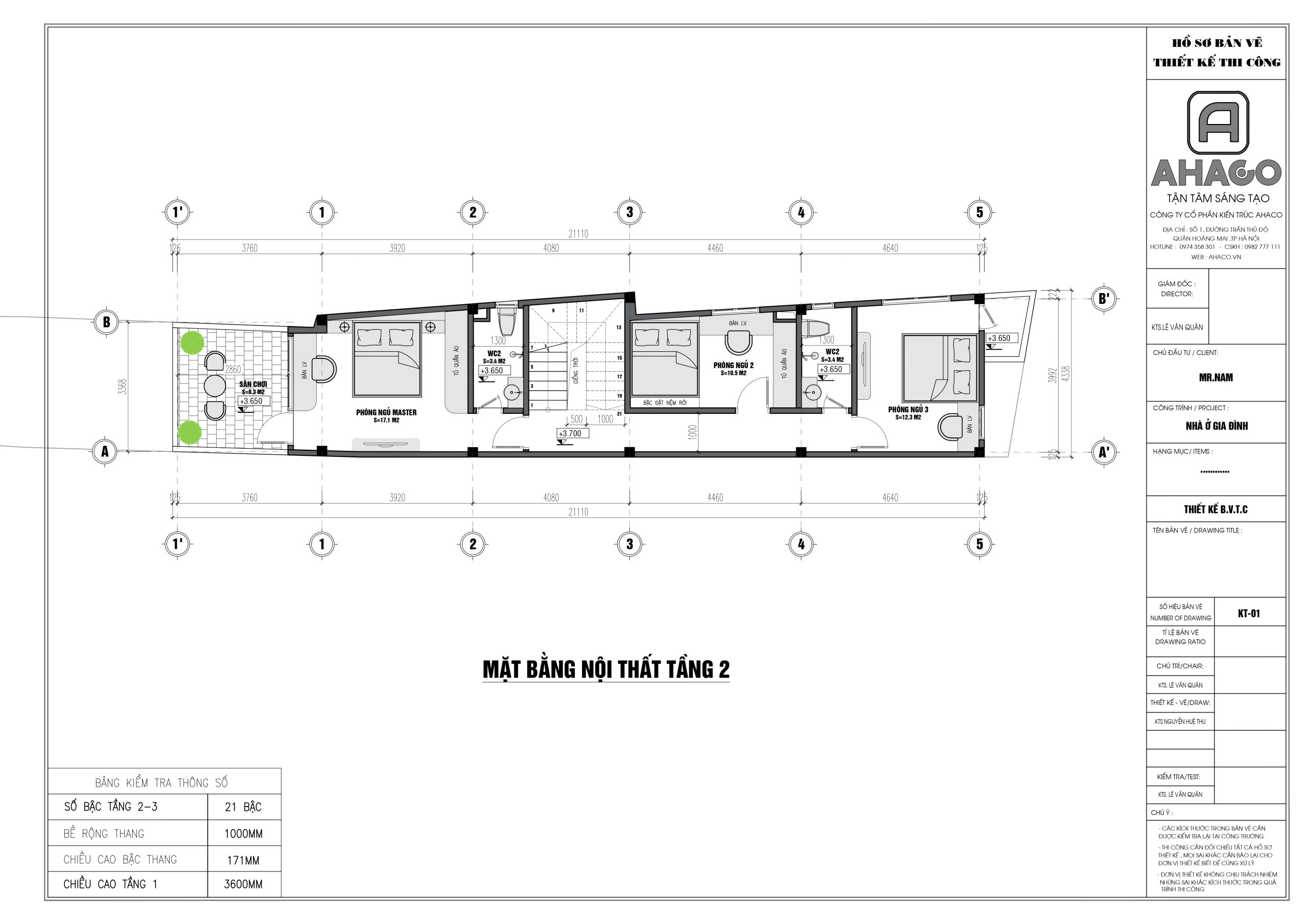
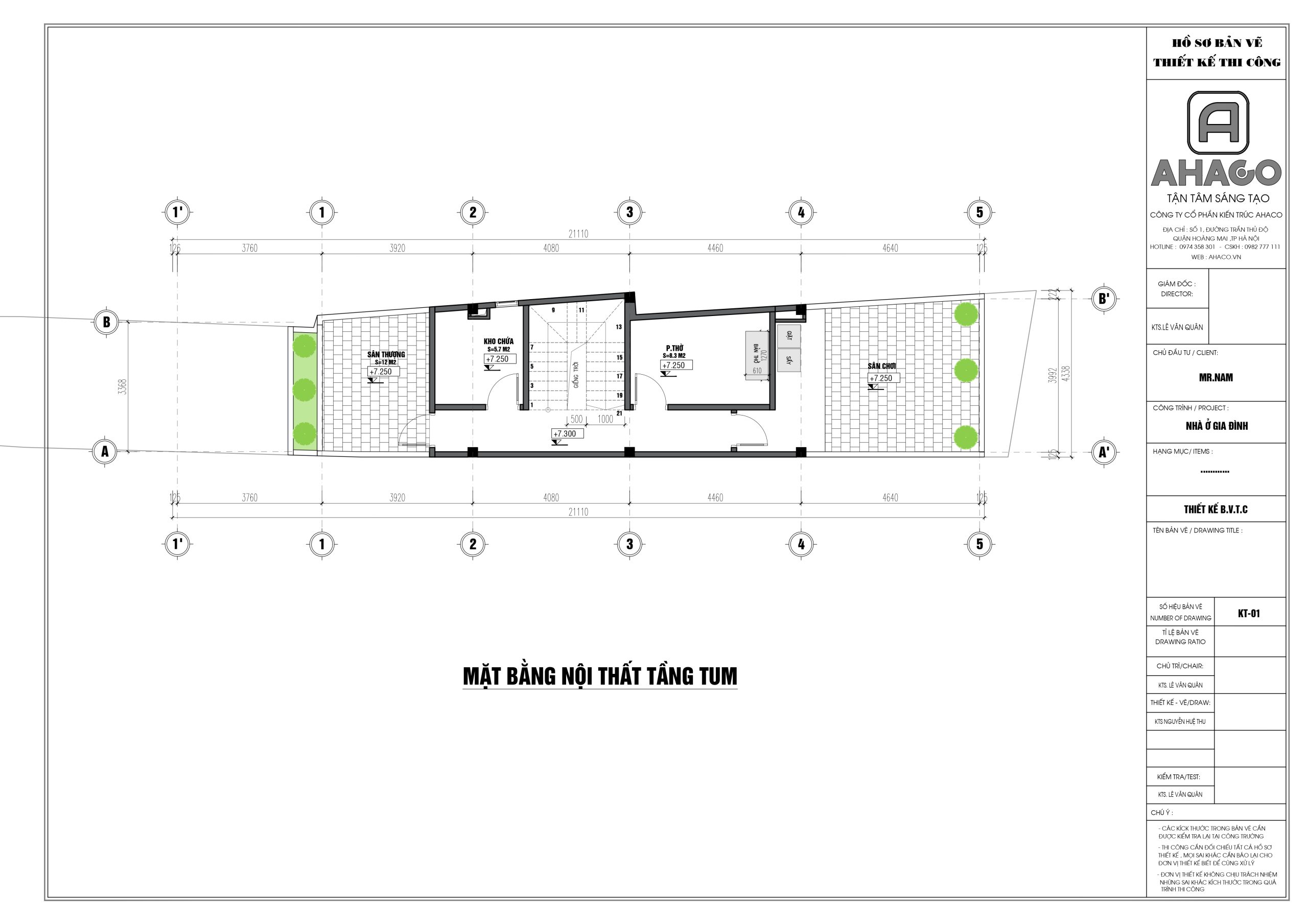
Mặt bằng công năng nhà 2 tầng 1 tum 4 phòng ngủ mặt tiền 4m
Dù diện tích chỉ vỏn vẹn chưa đến 50m², AHACO vẫn thiết kế được một không gian sống 3 tầng hiện đại, 4 phòng ngủ đầy đủ tiện nghi, đáp ứng trọn vẹn nhu cầu của cả gia đình. Từng góc nhà đều được tối ưu hóa, đảm bảo vừa thoáng đãng, vừa tiện ích, vừa mang tính thẩm mỹ cao. Thiết kế chú trọng sự tối giản nhưng tinh tế, sử dụng cửa kính lớn để đón ánh sáng tự nhiên, giúp ngôi nhà luôn sáng sủa và tràn đầy năng lượng. Đây chính là minh chứng cho câu nói: “Diện tích nhỏ nhưng thiết kế đỉnh cao, nhà nhỏ vẫn đủ đầy và hạnh phúc!”
Công năng tầng 1
Khu để xe
Phòng khách
Phòng bếp + ăn
1 Phòng ngủ
1 WC

Công năng tầng 2
3 Phòng ngủ
1 WC

Công năng tầng 3
Phòng thờ
Phòng giặt
Sân phơi
Sân chơi

Bảng khái toán nhà 2 tầng 1 tum 4 phòng ngủ mặt tiền 4m
AHACO – Tiên phong áp dụng công nghệ Bim vào trong bản vẽ thiết kế giúp quý vị xây nhà nhàn tênh, đọc bản vẽ dễ hiểu dễ giám sát thợ dù không có chuyên môn và đặc biệt công nghệ này giúp thống kê được các nguyên vật liệu cần dùng và số lượng chính xác để gia chủ kiểm soát tốt hơn chi phí xây dựng của ngôi nhà với các số liệu được cập nhật kịp thời, cụ thể và rõ ràng.

Kết luận
Mẫu nhà 2 tầng 1 tum 4 phòng ngủ mặt tiền 4m là giải pháp hoàn hảo cho nhà phố hiện đại: tối ưu diện tích, công năng đầy đủ, chi phí hợp lý và tính thẩm mỹ cao. Nếu được thiết kế bài bản, ngôi nhà không chỉ đẹp mà còn mang lại không gian sống tiện nghi, lâu dài cho cả gia đình.
DỰ ÁN LIÊN QUAN
Mẫu nhà 2 tầng 1 tum mặt tiền 8m
Mr Thế Anh

