Mẫu nhà 2 tầng 1 tum 3 phòng ngủ 5x13m
Hưng Yên
Đã xem: 20
Mã dự án:

- Diện tích: 5 x 13 m
- Phòng ngủ: 3
- Số tầng: 3
- Tầng hầm:
- Khách hàng: Mr Thành
- Địa chỉ: Hưng Yên
- Chi phí đầu tư: 752 triệu
Mô tả dự án
Với diện tích mặt tiền 5m và chiều sâu 13m, việc thiết kế một không gian sống đầy đủ tiện nghi cho gia đình 4-5 thành viên là bài toán khá thú vị. Mẫu nhà 2 tầng 1 tum 3 phòng ngủ 5x13m
Phối cảnh ngoại thất nhà 2 tầng 1 tum 3 phòng ngủ 5x13m
Giữa không gian đô thị tấp nập, ngôi nhà hiện lên như một tác phẩm nghệ thuật kiến trúc đầy kiêu hãnh với những đường nét hình khối vuông vức, khỏe khoắn nhưng không kém phần tinh tế. Với mặt tiền 5m lý tưởng, ngôi nhà là sự kết hợp hài hòa giữa nhịp sống hiện đại và những khoảng lặng xanh mát, tạo nên một tổng thể ngoại thất vừa sang trọng, vừa gần gũi với thiên nhiên.

Nhìn từ xa, ấn tượng đầu tiên về ngôi nhà chính là sự phối trộn màu sắc vô cùng thông minh. Gam màu trắng chủ đạo bao phủ các mảng tường lớn, tạo nên cảm giác sạch sẽ, rộng rãi và làm nền hoàn hảo cho các chi tiết trang trí khác. Điểm xuyết trên nền trắng ấy là những mảng đá ốp màu xám than (anthracite) đầy nam tính tại khu vực ban công và tầng tum, kết hợp cùng sắc nâu trầm ấm của các nan gỗ trang trí, tạo nên một chiều sâu thị giác cực kỳ cuốn hút.
Tầng một của ngôi nhà được bảo vệ bởi hệ thống cổng rào kiên cố nhưng đầy tính thẩm mỹ. Cánh cổng sắt đen thanh mảnh kết hợp cùng những tấm gỗ bản lớn tạo nên sự kín đáo cần thiết nhưng vẫn đón được những làn gió tự nhiên vào sân trước. Phía trên đại sảnh, những ánh đèn downlight vàng ấm áp được lắp đặt tinh tế, khiến ngôi nhà trở nên lung linh và đầy sức sống khi chiều tà buông xuống.

Lên đến tầng hai, kiến trúc sư đã khéo léo tạo ra một khoảng lùi ban công rộng rãi. Điểm nhấn đắt giá nhất ở đây chính là hệ cửa kính cường lực khung nhôm đen cao cấp sát trần. Việc sử dụng kính không chỉ giúp đón trọn ánh sáng tự nhiên vào các phòng ngủ bên trong mà còn xóa nhòa ranh giới giữa không gian nội thất và ngoại thất. Lan can kính trong suốt giúp tầm nhìn không bị hạn chế, kết hợp cùng những chậu cây xanh mướt được bố trí góc ban công, mang lại một không gian nghỉ ngơi thư thái, nơi gia chủ có thể nhâm nhi tách cà phê và ngắm nhìn phố xá.

Tầng tum chính là “linh hồn” giúp nâng tầm đẳng cấp cho công trình 5x13m này. Thay vì những khối bê tông nặng nề, phần mái tum được thiết kế với hệ lam sắt đen hiện đại theo dạng nan thưa. Thiết kế này vừa có tác dụng che nắng, vừa tạo ra những hiệu ứng bóng đổ đẹp mắt lên mặt sàn. Đây là khoảng không gian mở tuyệt vời với sân thượng rộng rãi, nơi những khóm cây xanh vươn cao, thổi vào công trình một hơi thở tươi mới và tràn đầy năng lượng. Những mảng tường gỗ ốp trần tại tầng tum phối hợp cùng ánh đèn vàng tạo nên một không gian ấm cúng, sang trọng như một khu resort thu nhỏ ngay tại gia.

Tổng thể ngôi nhà từ góc nhìn trên cao cho thấy một sự tính toán kỹ lưỡng về hình khối. Các khoảng giật cấp, lồi lõm của ban công và mái che không chỉ tạo nên sự nhịp nhàng cho kiến trúc mà còn có tác dụng điều hòa vi khí hậu, giúp ngôi nhà luôn mát mẻ. Sự hiện diện của những mảng xanh len lỏi từ cổng vào, lên ban công và lan tỏa tận tầng tum đã biến khối bê tông cốt thép trở nên mềm mại và giàu sức sống hơn bao giờ hết.
Có thể nói, ngoại thất của mẫu nhà 2 tầng 1 tum này là minh chứng cho tư duy kiến trúc hiện đại: không cần quá cầu kỳ, hoa mỹ nhưng vẫn toát lên vẻ thượng lưu nhờ sự tinh tế trong chất liệu và sự chuẩn xác trong tỷ lệ hình khối. Đây không chỉ là một nơi để về, mà còn là một không gian nghệ thuật khẳng định gu thẩm mỹ tinh tế của gia chủ.
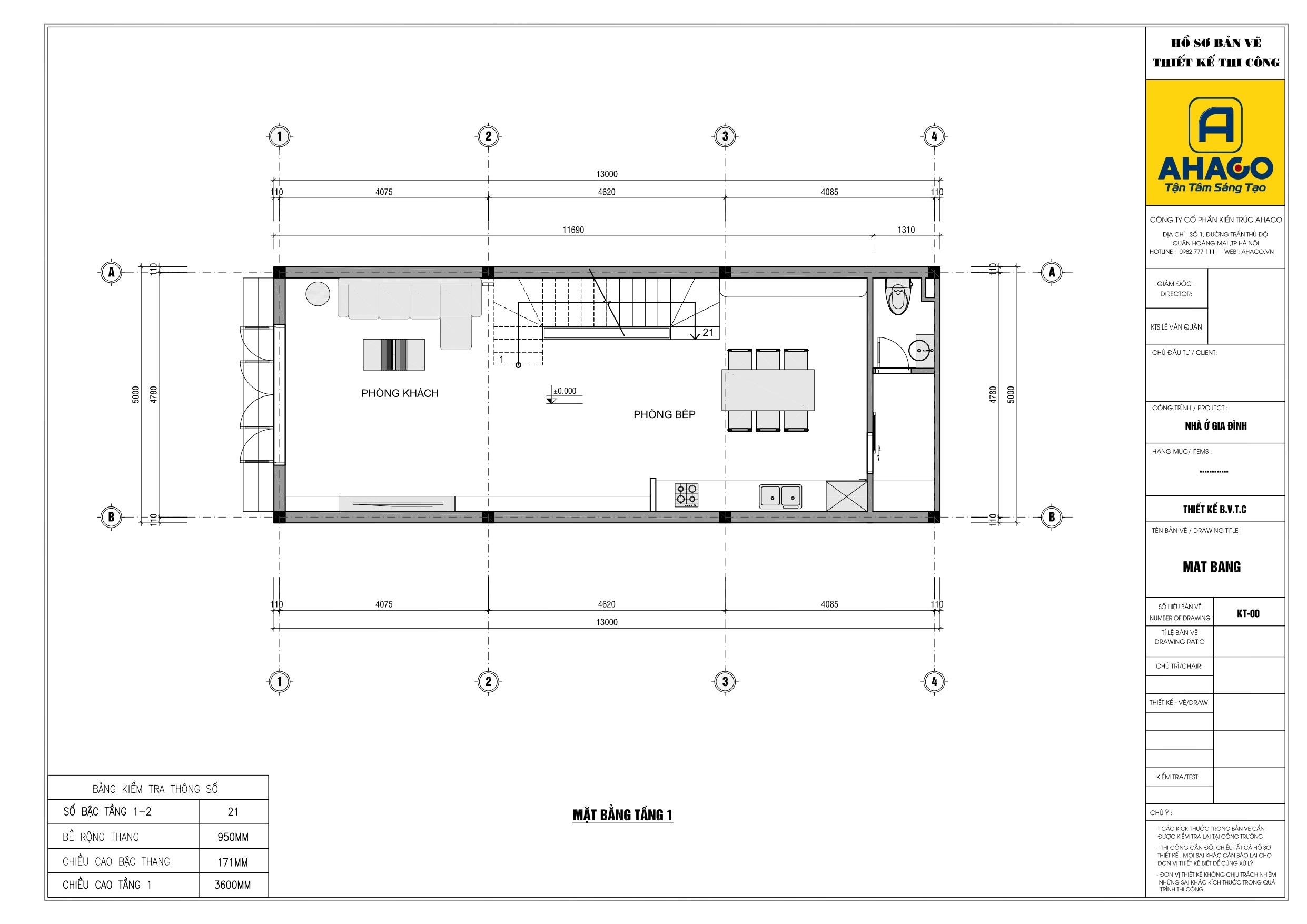
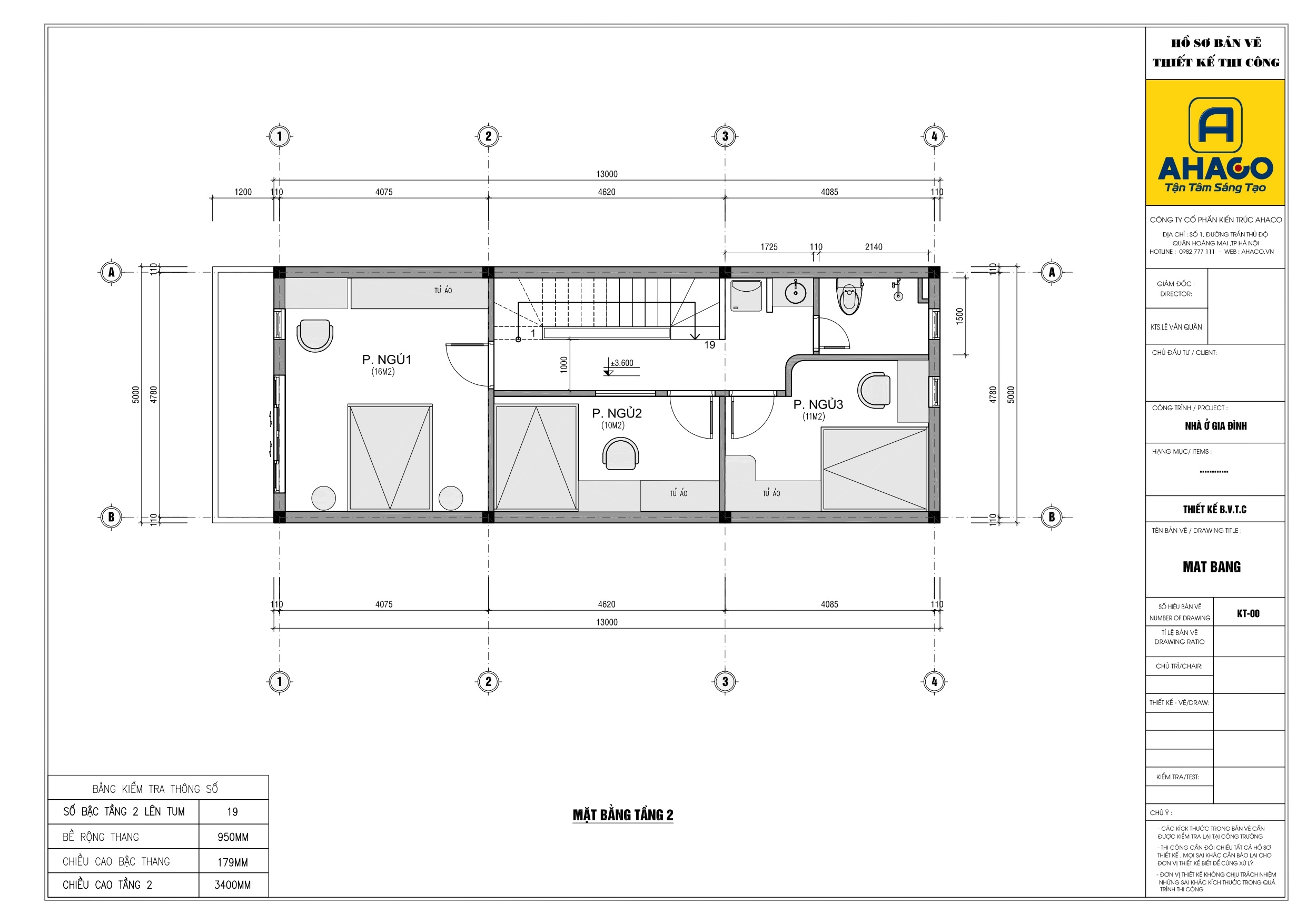
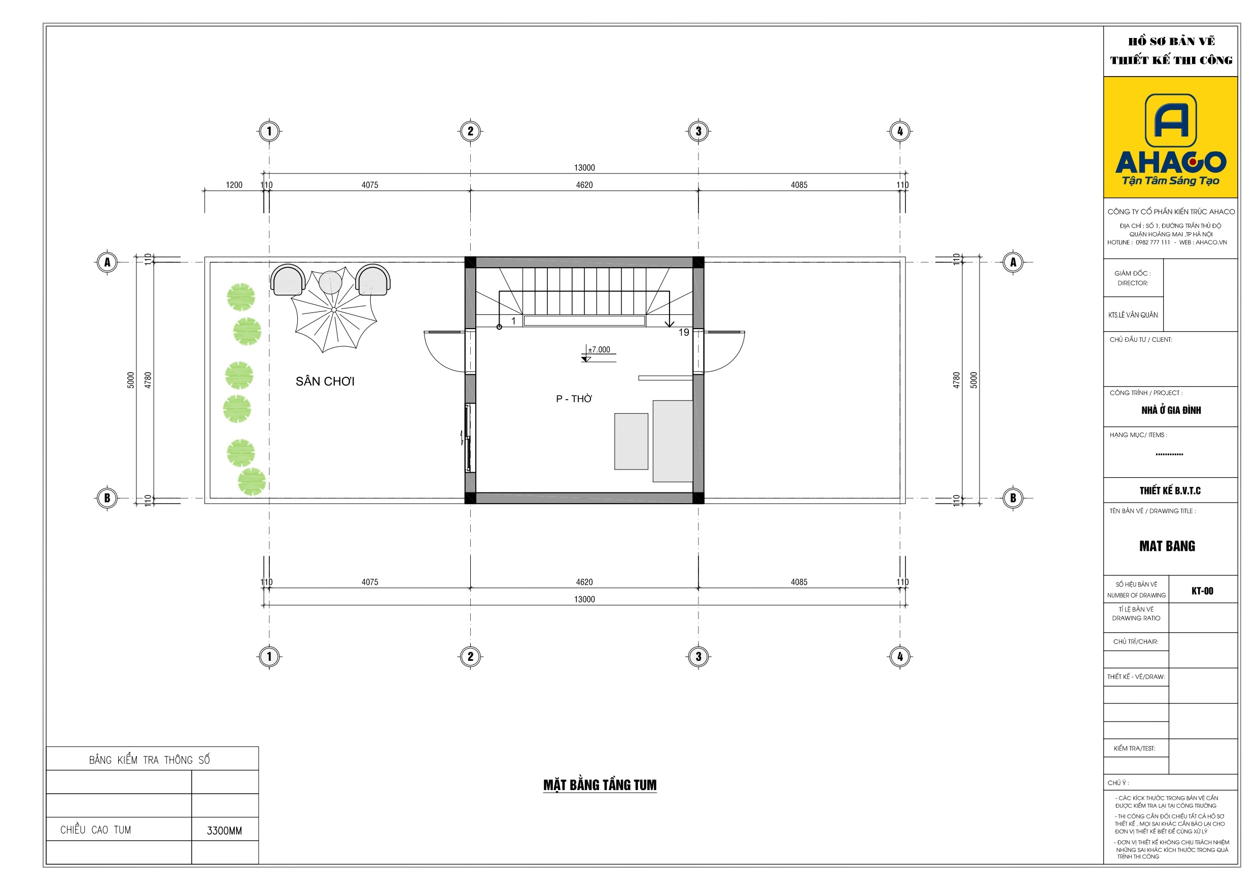
Mặt bằng 2D nhà 2 tầng 1 tum 3 phòng ngủ 5x13m
Để kiến tạo một không gian sống lý tưởng trong khuôn khổ nhà phố, AHACO luôn ưu tiên thiết kế mặt bằng công năng theo nguyên tắc khoa học, tối ưu hóa diện tích và đảm bảo sự thông thoáng, tiện nghi cho mọi thành viên.
Thiết kế công năng của AHACO tập trung vào việc phân chia rõ ràng các khu vực chức năng theo từng tầng, đồng thời tạo ra sự kết nối linh hoạt giữa chúng:
Công năng tầng 1
- Phòng bếp + ăn
- Phòng khách
- 1 Vệ sinh

Công năng tầng 2
- 3 Phòng ngủ
- 1 Vệ sinh

Công năng tầng tum
- Phòng thờ
- Sân chơi

Dự toán chi phí xây thô nhà 2 tầng 1 tum 3 phòng ngủ 5x13m
AHACO – Tiên phong áp dụng công nghệ Bim vào trong bản vẽ thiết kế. Dựa vào bảng dự toán chi phí xây thô, quý vị có thể mua và đặt cọc trước nguyên vật liệu để giữ giá, giúp dự trù kinh phí thực tế để tránh phát sinh trong quá trình thi công. Và còn giúp mình chủ động gọi nguyên vật liệu trong quá trình xây dựng. Như quý vị đang thấy ở đây là bảng dự toán chi phí xây thô của công trình có địa chỉ tại Hưng Yên ; chi phí gạch xây là 76 triệu đồng, chi phí cát xây là 9.7 triệu, chi phí nhân công xây dựng vào khoảng 260 triệu và tổng chi phí xây thô của công trình này vào khoảng 752 triệu đồng quý vị nhé!

Kết luận
Mẫu nhà 2 tầng 1 tum 3 phòng ngủ 5x13m là sự lựa chọn hoàn hảo cho những gia đình trẻ mong muốn một không gian sống hiện đại, tiện nghi và tiết kiệm. Nếu bạn đang sở hữu lô đất có diện tích tương tự, đừng ngần ngại đầu tư vào thiết kế này để có được tổ ấm như ý.

