Mẫu nhà 2.5 tầng 5x16m công năng 4 phòng ngủ
Gia Lộc
Đã xem: 41
Mã dự án:

- Diện tích: 5 x 16 m
- Phòng ngủ: 4
- Số tầng: 3
- Tầng hầm:
- Khách hàng: Mr Sơn
- Địa chỉ: Gia Lộc
- Chi phí đầu tư: 971 triệu
Mô tả dự án
Trong bối cảnh đất phân lô phố thị hiện nay, diện tích 5x16m rất phổ biến. Việc thiết kế nhà 2.5 tầng (1 trệt, 1 lầu, 1 tum) không chỉ giúp tiết kiệm chi phí xây dựng mà còn đáp ứng hoàn hảo nhu cầu sinh hoạt cho gia đình từ 4-6 thành viên.
Phối cảnh ngoại thất mẫu nhà 2.5 tầng 5x16m công năng 4 phòng ngủ
Trong xu thế kiến trúc hiện đại ngày nay, những mẫu nhà phố với đường nét tinh tế, tận dụng tối đa ánh sáng tự nhiên và cây xanh đang ngày càng được ưa chuộng. Một ví dụ điển hình cho phong cách này là mẫu nhà phố 3 tầng hiện đại với tone màu trắng chủ đạo, mang lại cảm giác thanh lịch, sang trọng và tràn đầy sức sống.
Ngôi nhà nổi bật với lối kiến trúc hình khối vuông vức nhưng không hề đơn điệu nhờ sự kết hợp khéo léo giữa các đường bo cong mềm mại và các khoảng hở thông thoáng. Tone màu trắng chủ đạo tạo nên sự nhẹ nhàng, trang nhã, đồng thời giúp làm nổi bật các chi tiết trang trí khác.

Mặt tiền tầng 1 được thiết kế rộng rãi với hệ cửa kính cường lực lớn, khung nhôm đen chắc chắn. Cửa kính không chỉ giúp lấy sáng tự nhiên cho không gian bên trong mà còn tạo cảm giác mở, kết nối ngôi nhà với môi trường bên ngoài. Phần tường bao quanh cửa được ốp đá vân mây trắng sang trọng, tạo điểm nhấn ấn tượng cho mặt tiền. Phía trước nhà là khoảng sân nhỏ được bao bọc bởi hàng rào bê tông trắng, đảm bảo sự riêng tư và an toàn cho gia đình. Hai bên lối vào là những bụi cây xanh mướt, mang lại cảm giác tươi mát và gần gũi với thiên nhiên.

Lên đến tầng 2, không gian sống trở nên ấn tượng hơn với ban công rộng, được bảo vệ bằng lan can kính cường lực trong suốt. Điểm nhấn đặc biệt của tầng này là phần tường bo cong mềm mại ở góc ban công, tạo nên sự uyển chuyển và độc đáo cho ngôi nhà. Một mảng tường được ốp gỗ nhựa màu nâu ấm áp, kết hợp với chậu cây xanh nhỏ, tạo nên góc thư giãn lý tưởng cho gia chủ. Đèn led âm trần được bố trí tinh tế ở phần mái hiên, cung cấp ánh sáng ấm áp vào ban đêm và làm nổi bật vẻ đẹp của kiến trúc.
Tầng 3 được thiết kế với khoảng sân thượng rộng rãi, là không gian lý tưởng để gia chủ trồng cây, tổ chức tiệc BBQ hoặc đơn giản là thư giãn và ngắm nhìn cảnh vật xung quanh. Phần mái hiên được thiết kế theo dạng lam gỗ, vừa giúp che nắng, vừa tạo nên vẻ đẹp thẩm mỹ cho ngôi nhà. Các chậu cây xanh lớn được bố trí xung quanh sân thượng, mang lại không gian xanh mát và trong lành. Hệ thống đèn led âm trần tiếp tục được sử dụng ở tầng này, đảm bảo ánh sáng và tạo nên vẻ đẹp lung linh vào ban đêm.

Tổng thể ngôi nhà là một tác phẩm kiến trúc hài hòa giữa hình khối, màu sắc và ánh sáng. Sự kết hợp giữa các vật liệu hiện đại như kính, thép, gỗ nhựa và cây xanh đã tạo nên một không gian sống tiện nghi, sang trọng và gần gũi với thiên nhiên. Mẫu nhà phố 3 tầng hiện đại này không chỉ là nơi để ở mà còn là biểu tượng của phong cách sống hiện đại, năng động và tinh tế.
Phối cảnh bóc mái mẫu nhà 2.5 tầng 5x16m công năng 4 phòng ngủ
Trong lĩnh vực thiết kế – thi công nhà ở, phối cảnh bóc mái không chỉ là một bản vẽ kỹ thuật, mà còn là minh chứng rõ ràng nhất cho năng lực chuyên môn và sự minh bạch của đơn vị thiết kế. Với mẫu nhà 2.5 tầng 4 phòng ngủ đẹp, độc đáo tại Gia Lộc , AHACO tiếp tục khẳng định triết lý làm nghề: thiết kế bằng tâm – xây dựng bằng tầm.
Khác với những bản phối cảnh ngoại thất thông thường chỉ thể hiện vẻ đẹp bề ngoài, phối cảnh bóc mái do AHACO thực hiện cho phép khách hàng nhìn xuyên suốt cấu trúc công trình: từ hệ mái, dầm, sàn cho đến cách tổ chức không gian bên trong từng tầng.
Thông qua phối cảnh bóc mái, toàn bộ công năng của ngôi nhà này được phô diễn một cách trực quan:
Cách bố trí 4 phòng ngủ khoa học, đảm bảo riêng tư và thông thoáng
Không gian sinh hoạt chung được kết nối mạch lạc giữa các tầng
Hệ mái, kết cấu chịu lực và giải pháp kỹ thuật được thể hiện rõ ràng, minh bạch
Đây chính là điểm khác biệt lớn giúp khách hàng hiểu đúng – hiểu đủ trước khi bước vào giai đoạn thi công.
AHACO không chạy theo hình thức, mà đặt trọng tâm vào:
Sự hợp lý trong tổ chức không gian sống
Giải pháp kết cấu bền vững, phù hợp điều kiện thi công thực tế
Khả năng tối ưu chi phí cho gia chủ mà vẫn đảm bảo thẩm mỹ và chất lượng
Chính vì vậy, phối cảnh bóc mái không chỉ đẹp để ngắm, mà còn đẹp ở tư duy thiết kế phía sau.






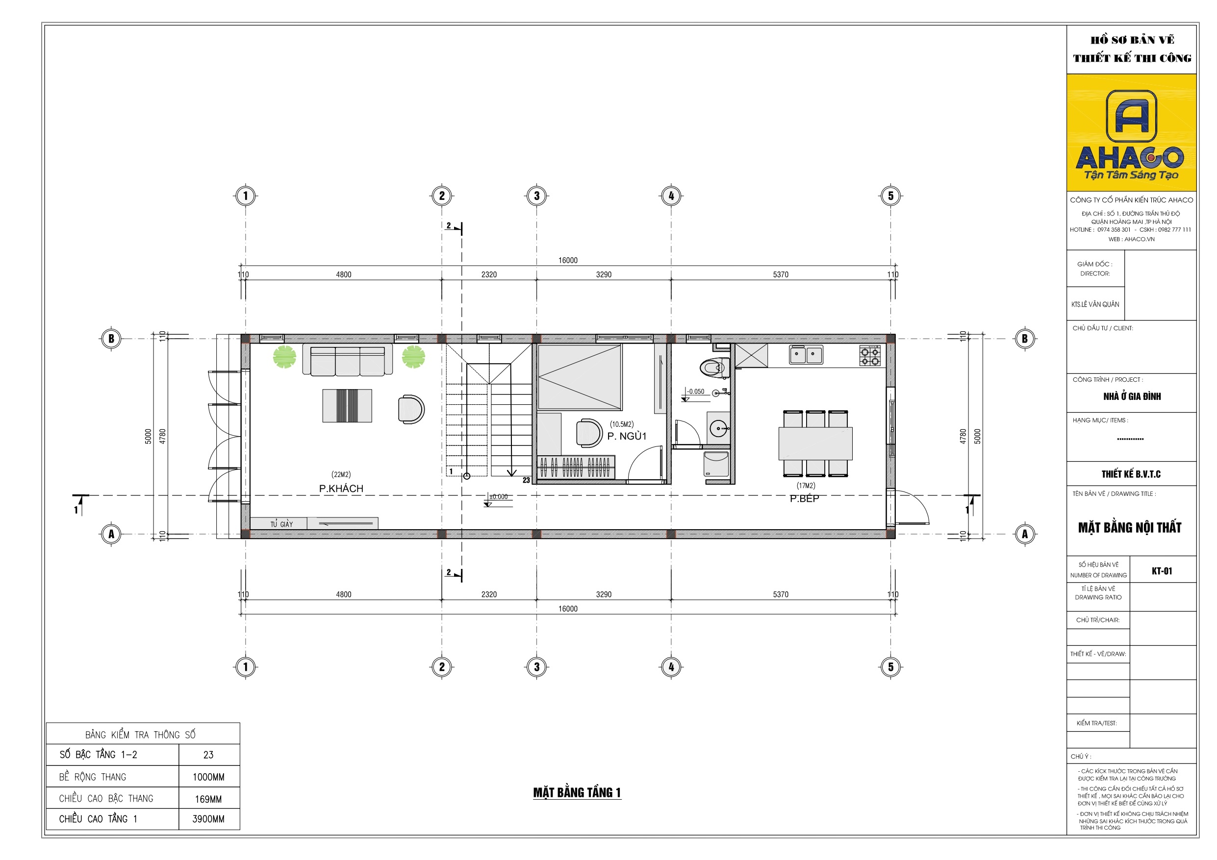
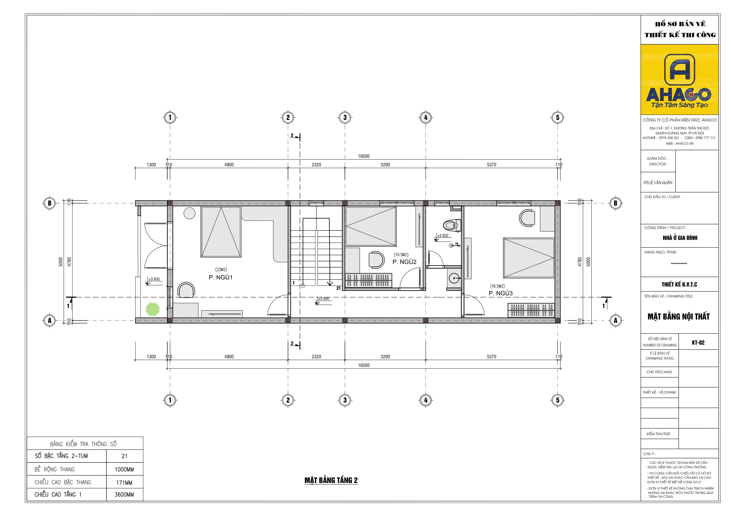
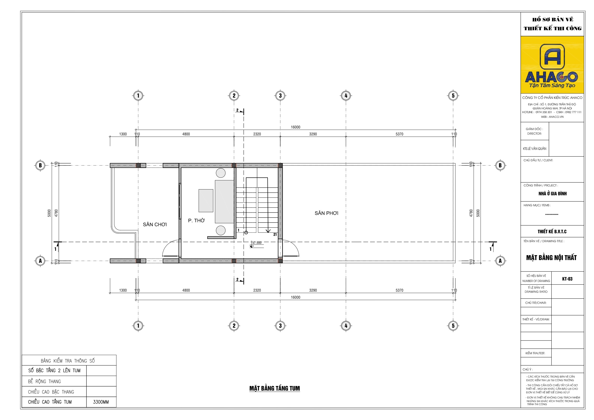
Mặt bằng công năng mẫu nhà 2.5 tầng 5x16m công năng 4 phòng ngủ
Với 4 phòng ngủ rộng rãi, phòng khách thoáng đãng, phòng bếp hiện đại và khu vực sân trước cửa, mỗi không gian đều được tính toán kỹ lưỡng để đáp ứng mọi nhu cầu sinh hoạt của gia đình bạn. AHACO luôn chú trọng đến việc tối ưu hóa ánh sáng tự nhiên và thông gió, mang đến không gian sống trong lành và thoải mái.
Công năng tầng 1 :
Phòng khách
Phòng bếp + ăn
1 Phòng ngủ
1 nhà vệ sinh

Công năng tầng 2 :
3 Phòng ngủ
1 nhà vệ sinh

Công năng tầng 3 :
Phòng thờ
Sân phơi
Sân chơi

Bảng khái toán xây thô mẫu nhà 2.5 tầng 5x16m công năng 4 phòng ngủ
AHACO – Tiên phong áp dụng công nghệ Bim vào trong bản vẽ thiết kế giúp quý vị xây nhà nhàn tênh, đọc bản vẽ dễ hiểu dễ giám sát thợ dù không có chuyên môn và đặc biệt công nghệ này giúp thống kê được các nguyên vật liệu cần dùng và số lượng chính xác để gia chủ kiểm soát tốt hơn chi phí xây dựng của ngôi nhà với các số liệu được cập nhật kịp thời, cụ thể và rõ ràng.

Kết luận
Mẫu nhà 2.5 tầng 5x16m công năng 4 phòng ngủ là lời giải bài toán không gian cho gia đình đông thành viên. Nếu bạn đang sở hữu lô đất tương tự, hãy ưu tiên lối thiết kế mở để tận hưởng không gian sống trọn vẹn nhất.
DỰ ÁN LIÊN QUAN
Mẫu nhà 2 tầng 1 tum mặt tiền 8m
Mr Thế Anh

