Mẫu biệt thự mái thái đẹp cuốn hút tại Thanh Hóa
Thanh Hóa
Đã xem: 288
Mã dự án:

- Diện tích: 7 x 16 m
- Phòng ngủ: 4
- Số tầng: 2
- Tầng hầm:
- Khách hàng: Mr Sơn
- Địa chỉ: Thanh Hóa
- Chi phí đầu tư: 858 triệu
Mô tả dự án
Với kiến trúc ngoại thất đẹp mắt cùng thiết kế nội thất ấn tượng, biệt thự mái Thái là sự lựa chọn lý tưởng của những gia đình tầng lớp trung lưu, mong muốn sở hữu một không gian sống thoáng đãng, tiện nghi, thoải mái với chi phí xây dựng không quá cao. Cùng tìm hiểu dự án mà AHACO đã thiết kế cho anh Sơn tại Thanh Hóa qua bài viết dưới đây.
Phối cảnh 3 D mẫu biệt thự mái thái đẹp cuốn hút tại Thanh Hóa
Mái nhà là điểm nhấn thu hút nhất của ngôi nhà với hệ thống mái Thái xếp lớp, tạo độ dốc vừa phải giúp thoát nước mưa nhanh chóng, chống nóng tốt và tăng tính thẩm mỹ. Màu sắc mái được lựa chọn theo phong thủy màu xanh ngọc .

Tường nhà thường được sơn màu trắng hoặc vàng kem kết hợp với các màu sắc khác như xanh lá, nâu gỗ,… tạo cảm giác sáng sủa, rộng rãi và tăng tính thẩm mỹ cho ngôi nhà. Bề mặt tường có thể được hoàn thiện bằng nhiều vật liệu khác nhau như sơn, gạch ốp, đá,…
Cửa chính tầng 1 ngôi nhà sử dụng cửa gỗ cao cấp, đảm bảo độ bền đẹp và an toàn. Cửa sổ bằng nhôm xingfa được thiết kế hợp lý để lấy ánh sáng tự nhiên và thông gió cho ngôi nhà.

Sân vườn trước nhà được thiết kế với nhiều cây xanh, hoa cảnh để tạo cảnh quan đẹp, tăng thêm sự mát mẻ và tạo bầu không khí trong lành cho ngôi nhà

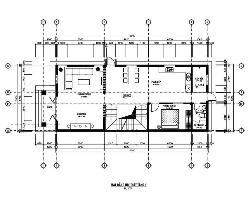
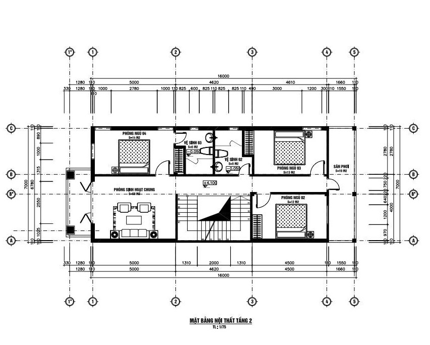
Mặt bằng công năng mẫu biệt thự mái thái đẹp cuốn hút tại Thanh Hóa
Tầng 1
Khách
Bếp + ăn
phòng thờ
Phòng ngủ 1
1 Nhà vệ sinh chung
Sân ướt

Tầng 2
Phòng sinh hoạt chung
3 Phòng ngủ
2 Nhà vệ sinh chung
Sân phơi

Dự toán xây thô mẫu biệt thự mái thái đẹp cuốn hút tại Thanh Hóa
AHACO – Tiên phong áp dụng công nghệ Bim vào trong bản vẽ thiết kế Dựa vào bảng dự toán chi phí xây thô, quý vị có thể mua và đặt cọc trước nguyên vật liệu để giữ giá, giúp dự trù kinh phí thực tế để tránh phát sinh trong quá trình thi công. Và còn giúp mình chủ động gọi nguyên vật liệu trong quá trình xây dựng. Như quý vị đang thấy ở đây là bảng dự toán chi phí xây thô của công trình có địa chỉ tại Thanh Hóa; chi phí gạch xây là 67 triệu đồng, chi phí cát xây là 14 triệu, chi phí nhân công trọn gói vào khoảng 336 triệu và tổng chi phí xây thô của công trình này vào khoảng 858 triệu đồng quý vị nhé!

Biệt thự mái thái 2 tầng là lựa chọn lý tưởng cho những gia đình đang tìm kiếm một ngôi nhà đẹp, bền đẹp, tiện nghi và phù hợp với điều kiện khí hậu Việt Nam.

