Mẫu biệt thự 3 phòng ngủ mặt tiền 12m tại Hải Dương
Hải Dương
Đã xem: 114
Mã dự án:

- Diện tích: 12.5 x 8 m
- Phòng ngủ: 3
- Số tầng: 2
- Tầng hầm:
- Khách hàng: Mr Trung
- Địa chỉ: Hải Dương
- Chi phí đầu tư: 927 triệu
Mô tả dự án
Bạn đang tìm kiếm một không gian sống sang trọng, tiện nghi và đủ rộng rãi tại trung tâm hoặc khu vực ven đô Hải Dương? Mẫu biệt thự 3 phòng ngủ mặt tiền 12m chính là lựa chọn hoàn hảo, kết hợp hài hòa giữa kiến trúc thẩm mỹ và công năng sử dụng tối ưu cho gia đình 3-4 thế hệ.
Phối cảnh ngoại thất mẫu biệt thự 3 phòng ngủ mặt tiền 12m tại Hải Dương
Ngôi nhà hai tầng với mặt tiền rộng 12m hiện lên như một tuyệt tác kiến trúc, hòa quyện giữa phong cách hiện đại mạnh mẽ và nét truyền thống thanh lịch. Tổng thể kiến trúc mang đến một cảm giác sang trọng, vững chãi và kín đáo.
Ngôi nhà chọn tông màu chủ đạo là xám nhạt (ghi sáng) cho phần tường ngoại thất, tạo cảm giác thanh thoát và hợp thời. Điểm nhấn nổi bật là hệ thống mái Thái dốc nhẹ, lợp ngói màu xanh đậm hoặc xám đen. Mái Thái không chỉ giúp thoát nước tốt mà còn tăng thêm chiều cao và vẻ cổ điển duyên dáng cho tổng thể, đối lập một cách hài hòa với các khối hình học hiện đại của thân nhà.

Mặt tiền 12m được chia thành các khối rõ ràng, nhấn mạnh sự cân đối và tỷ lệ vàng.
Tầng Trệt: Phần trung tâm là cổng gara hoặc cửa chính lớn được ốp gỗ màu nâu trầm (hoặc vật liệu giả gỗ), tạo sự ấm áp và nổi bật trên nền tường xám. Cửa gỗ đôi cao, bề thế gợi lên sự uy nghi và bảo mật. Cạnh bên là cửa sổ lớn với khung màu đen hiện đại, bên cạnh là một tiểu cảnh cây cảnh được chăm sóc tỉ mỉ.
Tầng Lầu: Tầng lầu là điểm nhấn chính của mặt tiền. Một khối kiến trúc nhô ra ở giữa được ốp bằng vật liệu đá tự nhiên hoặc gạch ốp màu xám đậm có vân (giả đá Marble), mang lại sự cao cấp và chiều sâu. Ban công rộng rãi, thoáng đãng được bảo vệ bằng lan can kính cường lực không khung, giúp mở rộng tầm nhìn và tăng tính hiện đại cho ngôi nhà. Các cửa kính lớn trượt mở ra ban công đảm bảo ánh sáng tự nhiên tối đa.

Hệ thống chiếu sáng được bố trí một cách thông minh và tinh tế, tạo hiệu ứng thị giác ấn tượng vào ban đêm:
Đèn âm trần và đèn vách (wall sconces) được lắp đặt trên các cột, dưới ban công và hai bên cửa chính, tạo ra những vệt sáng vàng ấm áp, làm nổi bật kết cấu và vật liệu của ngôi nhà.
Cảnh quan bao quanh rất xanh mát với những bụi cây, thảm thực vật và cây cọ lớn, tạo một không gian thư thái và gần gũi thiên nhiên.

Sự kín đáo và an toàn được đề cao thông qua hệ thống tường rào kiên cố:
Tường rào kết hợp giữa các mảng đá ốp/bê tông màu xám lạnh, hiện đại và các thanh sắt/gỗ thẳng đứng màu tối. Sự kết hợp này không gây cảm giác bí bách mà vẫn đảm bảo sự riêng tư.
Cổng chính là sự hòa trộn giữa vật liệu thép hộp sơn tĩnh điện màu đen và các mảng gỗ/giả gỗ sẫm màu, tạo nên sự đối lập và thẩm mỹ độc đáo, đồng thời là lời mời gọi trang trọng cho khách ghé thăm.

Tóm lại, ngôi nhà này là một hình mẫu cho thiết kế biệt thự phố hiện đại, nơi sự vững chãi của kiến trúc được tôn lên bởi sự tinh tế của vật liệu và màu sắc, mang lại một không gian sống đẳng cấp và bền vững với thời gian.
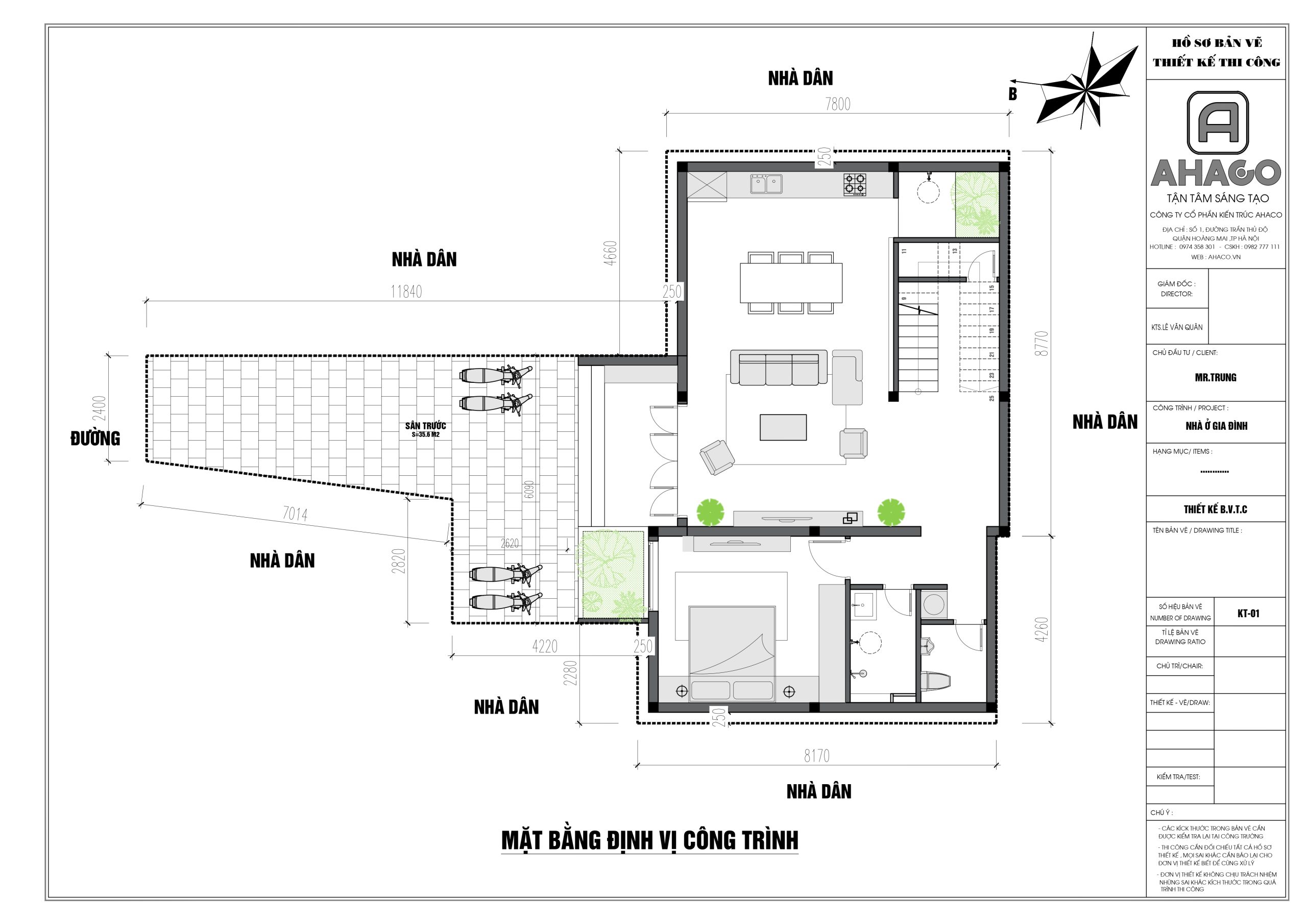
Mặt bằng bóc mái mẫu biệt thự 3 phòng ngủ mặt tiền 12m tại Hải Dương
AHACO tự hào giới thiệu giải pháp thiết kế “Mặt bằng bóc mái” mẫu Biệt Thự 3 Phòng Ngủ, Mặt Tiền 12m tại Hải Dương – minh chứng cho sự chuyên nghiệp và khả năng tối ưu hóa không gian sống đẳng cấp. Chúng tôi hiểu rằng, vẻ đẹp của một ngôi biệt thự không chỉ nằm ở mặt tiền sang trọng, mà còn ẩn chứa trong sự phân bổ công năng hợp lý.
Với mặt tiền rộng 12m quý giá, đội ngũ kiến trúc sư AHACO đã tận dụng triệt để lợi thế này để kiến tạo nên một không gian mở, nơi 3 phòng ngủ đều được đảm bảo ánh sáng tự nhiên và thông gió, cùng với các khu vực sinh hoạt chung như phòng khách, bếp ăn được kết nối liền mạch, tạo cảm giác rộng rãi, thư thái. Hơn thế nữa, quy trình “bóc mái” chi tiết của AHACO đóng vai trò cốt lõi trong việc tính toán kết cấu chịu lực chuẩn xác, đồng thời là công cụ giúp gia chủ tiết kiệm chi phí vật tư và kiểm soát chặt chẽ rủi ro phát sinh ngoài dự toán.
Mục tiêu cuối cùng của chúng tôi là mang lại một tổ ấm không chỉ bền vững về kết cấu mà còn hoàn hảo về mặt công năng và thẩm mỹ, xứng đáng với giá trị đầu tư của gia chủ tại Hải Dương. Hãy để AHACO biến ước mơ về một không gian sống đẳng cấp và tiện nghi thành hiện thực.




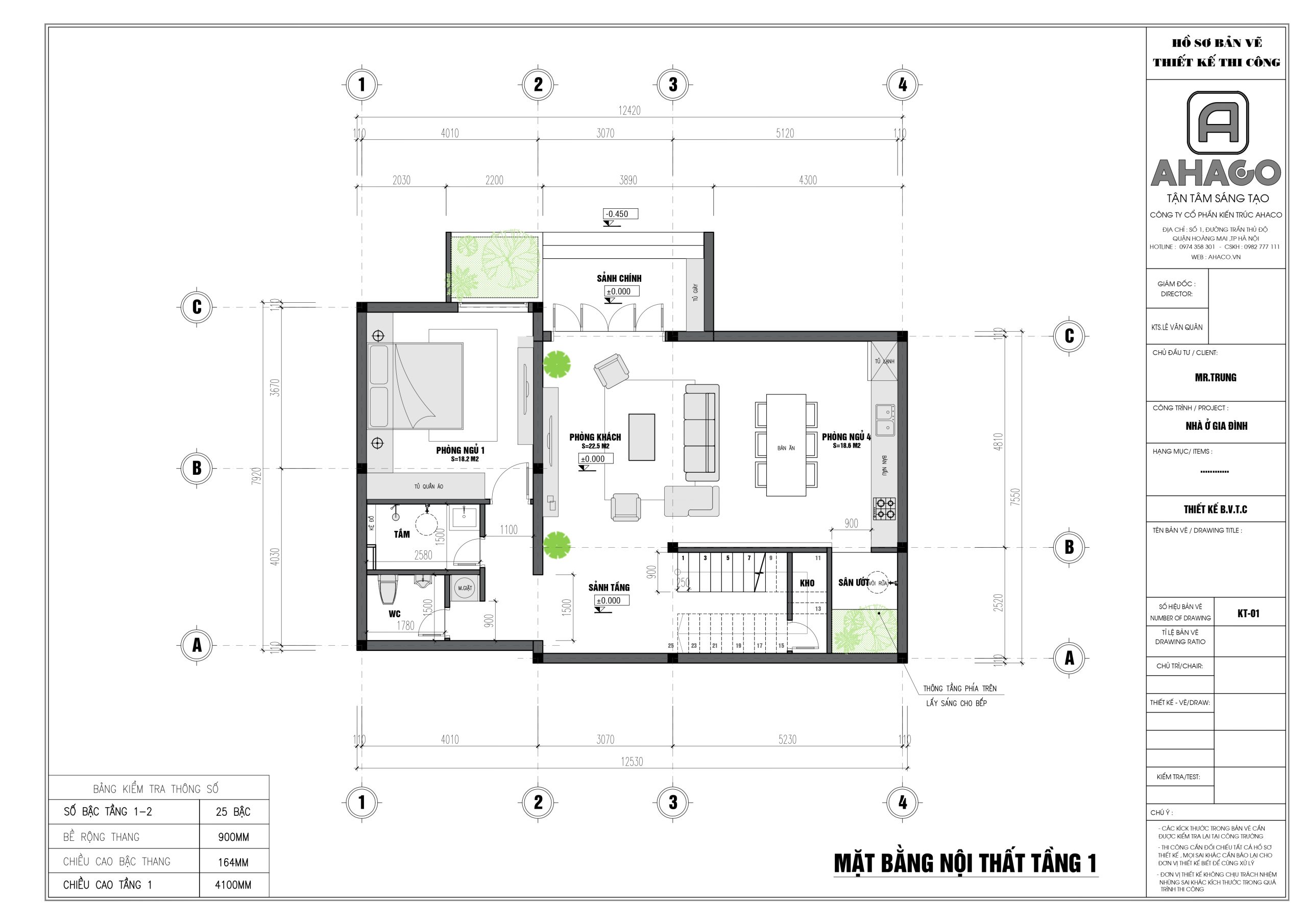
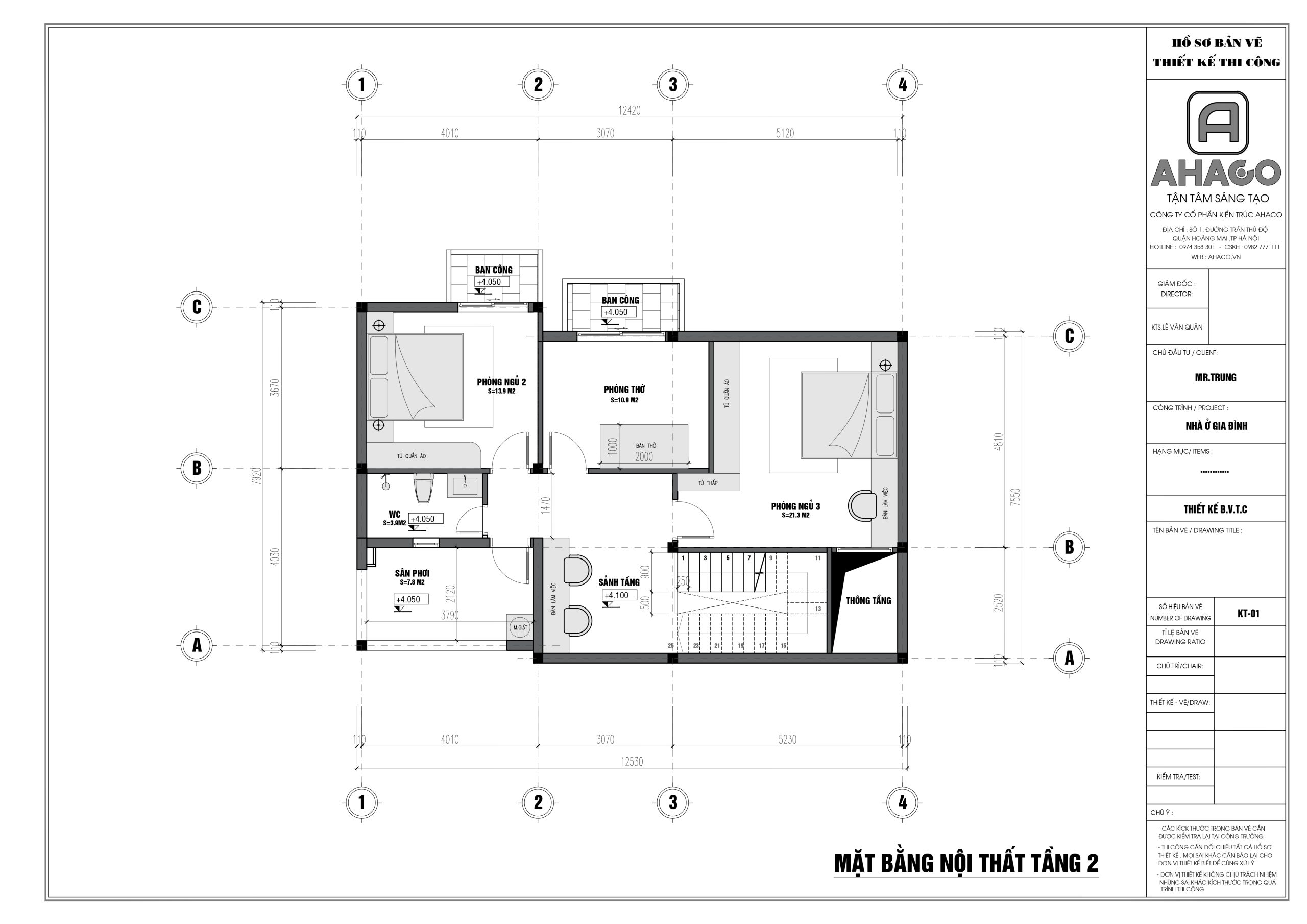
Mặt bằng công năng mẫu biệt thự 3 phòng ngủ mặt tiền 12m tại Hải Dương
Mẫu biệt thự tại Hải Dương với mặt tiền rộng 12m do AHACO thiết kế không chỉ là một công trình kiến trúc, mà là một giải pháp sống được tối ưu hóa. Chúng tôi đã áp dụng sự tinh tế và khoa học để kiến tạo mặt bằng công năng, đảm bảo mỗi mét vuông đều phát huy tối đa giá trị sử dụng. Với lợi thế mặt tiền rộng, biệt thự dễ dàng bố trí 3 phòng ngủ tiện nghi, cùng với các không gian chung mở, thoáng đãng, đón trọn ánh sáng tự nhiên. Từ khu vực Gara, Phòng Khách sang trọng, Bếp – Ăn ấm cúng ở tầng trệt, đến khu vực nghỉ ngơi yên tĩnh ở tầng trên, mọi chi tiết đều được kết nối một cách hợp lý theo thói quen sinh hoạt, mang đến sự tiện nghi và hài hòa, xứng đáng là không gian nghỉ dưỡng tuyệt vời cho gia đình bạn.

CÔNG NĂNG TẦNG 1
Phòng bếp
Phòng ăn
Phòng khách
1 Phòng ngủ
1 WC

CÔNG NĂNG TẦNG 2
2 Phòng ngủ
Phòng thờ
Phòng làm việc
1 WC

Bảng khái toán xây thô mẫu biệt thự 3 phòng ngủ mặt tiền 12m tại Hải Dương
AHACO – Tiên phong áp dụng công nghệ Bim vào trong bản vẽ thiết kế. Dựa vào bảng dự toán chi phí xây thô, quý vị có thể mua và đặt cọc trước nguyên vật liệu để giữ giá, giúp dự trù kinh phí thực tế để tránh phát sinh trong quá trình thi công. Và còn giúp mình chủ động gọi nguyên vật liệu trong quá trình xây dựng. Như quý vị đang thấy ở đây là bảng dự toán chi phí xây thô của công trình có địa chỉ tại Hải Dương ; chi phí gạch xây là 64 triệu đồng, chi phí cát xây là 17 triệu, chi phí nhân công xây dựng vào khoảng 319 triệu và tổng chi phí xây thô của công trình này vào khoảng 927 triệu đồng quý vị nhé!

Kết luận :
Mẫu biệt thự 3 phòng ngủ mặt tiền 12m tại Hải Dương do AHACO thiết kế không chỉ là một không gian sống, mà là sự khẳng định về phong cách và chất lượng. Với ưu thế mặt tiền rộng 12m, chúng tôi đã thành công trong việc tạo ra một kiến trúc sang trọng, hiện đại và một mặt bằng công năng khoa học, tinh tế.
DỰ ÁN LIÊN QUAN
Mẫu nhà 2 tầng 1 tum mặt tiền 8m
Mr Thế Anh

