Mẫu biệt thự 2 tầng mặt tiền 8m5 công năng 4 phòng ngủ
Nam Định
Đã xem: 42
Mã dự án:

- Diện tích: 8.5 x 11 m
- Phòng ngủ: 4
- Số tầng: 2
- Tầng hầm:
- Khách hàng: Ms Yến
- Địa chỉ: Nam Định
- Chi phí đầu tư: 886 triệu
Mô tả dự án
Trong những năm gần đây, mẫu biệt thự 2 tầng mặt tiền 8m5 công năng 4 phòng ngủ đang trở thành lựa chọn được nhiều gia đình yêu thích. Với lợi thế mặt tiền rộng, kiến trúc sư có thể dễ dàng bố trí không gian thoáng đãng, tối ưu công năng và mang đến vẻ đẹp sang trọng cho ngôi nhà. Đây là kiểu biệt thự phù hợp với gia đình nhiều thế hệ hoặc gia đình từ 4–6 thành viên.
Phối cảnh ngoại thất biệt thự 2 tầng mặt tiền 8m5 công năng 4 phòng ngủ
Mẫu biệt thự 2 tầng gây ấn tượng ngay từ cái nhìn đầu tiên bởi vẻ đẹp sang trọng, tinh tế nhưng vẫn rất gần gũi với không gian sống hiện đại. Tổng thể công trình được thiết kế theo phong cách hiện đại kết hợp một chút tân cổ điển nhẹ, tạo nên diện mạo vừa bề thế vừa thanh lịch.
Nhìn từ phía mặt tiền, ngôi biệt thự nổi bật với hình khối vuông vắn, cân đối, các đường nét kiến trúc được bố trí hài hòa và gọn gàng. Gam màu trắng chủ đạo giúp công trình trở nên sáng sủa và trang nhã, đồng thời làm nổi bật các chi tiết ốp đá màu tối ở phần chân cột, bậc tam cấp và lan can ban công. Sự kết hợp giữa hai gam màu sáng – tối mang lại cảm giác hiện đại và sang trọng cho toàn bộ mặt đứng của ngôi nhà.

Tầng 1 được thiết kế với hệ cửa kính lớn khung nhôm tối màu, vừa tăng tính thẩm mỹ vừa giúp không gian bên trong luôn ngập tràn ánh sáng tự nhiên. Phần sảnh chính nổi bật với hệ cột vuông chắc chắn, tạo cảm giác bề thế cho khu vực lối vào. Bậc tam cấp ốp đá sang trọng dẫn lên cửa chính, mang lại sự trang nghiêm và lịch sự cho tổng thể công trình.
Lên đến tầng 2, ban công rộng rãi với lan can kính trong suốt giúp mở rộng tầm nhìn và tạo điểm nhấn nhẹ nhàng cho mặt tiền. Những bồn cây nhỏ được bố trí khéo léo tại ban công mang lại sắc xanh tươi mát, giúp ngôi nhà trở nên sinh động và gần gũi hơn với thiên nhiên. Hệ cửa kính lớn tiếp tục được sử dụng ở tầng trên, giúp các phòng luôn thông thoáng và tận dụng tối đa nguồn ánh sáng tự nhiên.


Phần mái của biệt thự được thiết kế theo kiểu mái Nhật, với độ dốc vừa phải và các đường nét cân đối, tạo nên vẻ đẹp thanh thoát cho công trình. Mái ngói màu xám đậm kết hợp với màu sơn trắng của tường giúp tổng thể ngôi nhà trở nên nổi bật nhưng vẫn giữ được sự trang nhã và hiện đại.
Khoảng sân phía trước được lát gạch rộng rãi, vừa làm nơi đỗ xe vừa tạo khoảng đệm thông thoáng trước khi bước vào nhà. Hai bên khuôn viên được bố trí cây xanh và hàng rào gọn gàng, giúp không gian sống trở nên trong lành và riêng tư hơn.

Nhìn tổng thể, mẫu biệt thự 2 tầng này không chỉ sở hữu kiến trúc đẹp mắt mà còn thể hiện rõ sự tinh tế trong từng chi tiết thiết kế. Sự kết hợp hài hòa giữa hình khối kiến trúc, vật liệu hiện đại và không gian xanh đã tạo nên một tổ ấm lý tưởng – nơi mang lại cảm giác thư thái, tiện nghi và đẳng cấp cho gia chủ.
Phối cảnh bóc mái biệt thự 2 tầng mặt tiền 8m5 công năng 4 phòng ngủ
Trong thiết kế kiến trúc hiện đại, việc giúp khách hàng dễ dàng hình dung không gian sống trước khi xây dựng là yếu tố vô cùng quan trọng. Hiểu được điều đó, AHACO đã ứng dụng công nghệ phối cảnh bóc mái 3D, giúp thể hiện toàn bộ kết cấu và công năng của ngôi nhà một cách trực quan, sinh động và dễ hiểu.
Phối cảnh bóc mái là dạng mô hình 3D mô phỏng ngôi nhà theo từng lớp, trong đó phần mái và các tầng được tách ra để người xem có thể quan sát rõ từng khu vực bên trong. Nhờ đó, khách hàng có thể dễ dàng nhìn thấy:
Kết cấu móng và hệ khung chịu lực
Bố trí công năng từng tầng
Vị trí cầu thang, phòng chức năng
Sự liên kết giữa các không gian trong ngôi nhà
Đây được xem như một “bản đồ không gian 3D”, giúp gia chủ hiểu rõ ngôi nhà của mình trước khi bước vào giai đoạn thi công.
Trực quan toàn bộ công năng ngôi nhà
Với mẫu biệt thự 2 tầng mặt tiền 8m5, phối cảnh bóc mái của AHACO thể hiện rõ từng khu vực chức năng của ngôi nhà.
Ở tầng 1, không gian được bố trí khoa học gồm phòng khách rộng rãi ngay phía trước, tiếp nối là khu bếp và phòng ăn tạo thành không gian sinh hoạt chung ấm cúng cho cả gia đình. Ngoài ra, tầng này còn có một phòng ngủ tiện lợi cho người lớn tuổi cùng khu vệ sinh chung được đặt gọn gàng, đảm bảo sự thuận tiện trong sinh hoạt.
Lên đến tầng 2, không gian được bố trí với ba phòng ngủ riêng tư cho các thành viên trong gia đình. Bên cạnh đó là phòng thờ trang nghiêm được đặt ở vị trí phù hợp phong thủy. Khu vệ sinh chung và sân phơi được bố trí hợp lý giúp tối ưu diện tích sử dụng và đảm bảo sự thông thoáng cho toàn bộ tầng trên.





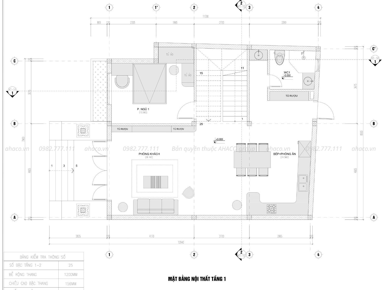
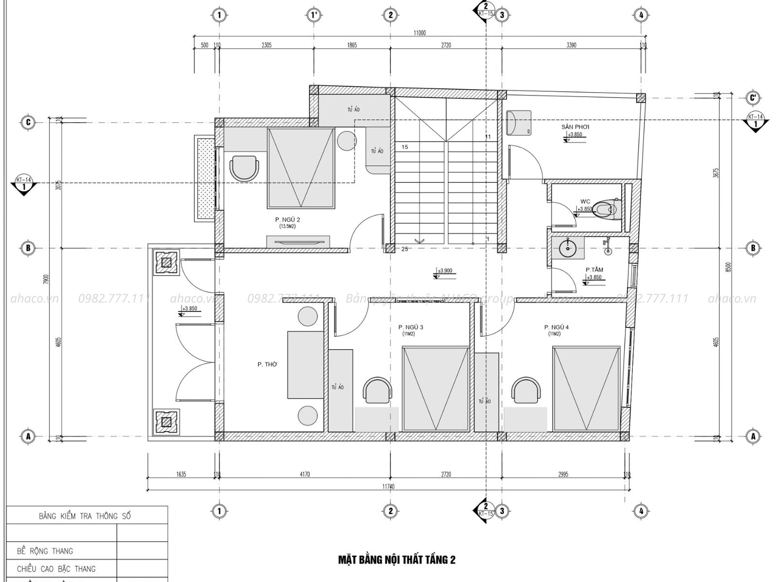
Mặt bằng công năng biệt thự 2 tầng mặt tiền 8m5 công năng 4 phòng ngủ
Với mong muốn mang đến không gian sống lý tưởng nhiều thế hệ lại thuận tiện kinh doanh , AHACO đã tối ưu hóa thiết kế công năng cho mẫu nhà mái Nhật mặt tiền 8.5 m này. Ngôi nhà được bố trí 4 phòng ngủ khoa học, trong đó 1 phòng ngủ tầng trệt tiện lợi cho người lớn tuổi, các phòng còn lại trên tầng 2 đảm bảo sự riêng tư và yên tĩnh. Không gian phòng khách – phòng thờ được kết nối mở, rộng rãi, tạo cảm giác gần gũi, ấm cúng. Ngoài ra, thiết kế còn tích hợp khu vực thờ trang nghiêm, sân vườn tiểu cảnh và ban công thư giãn, mang đến cuộc sống tiện nghi, thoải mái và đậm chất hiện đại cho gia chủ. Với AHACO, mỗi mét vuông đều được tính toán tỉ mỉ để phục vụ trọn vẹn nhu cầu sinh hoạt và nghỉ ngơi của gia đình bạn.
Công năng tầng 1
- Phòng khách
- Phòng bếp + ăn
- 1 Phòng ngủ
- 1 Vệ sinh

Công năng tầng 2
- Phòng thờ
- 3 Phòng ngủ
- 1 Vệ sinh

Bảng khái toán chi phí biệt thự 2 tầng mặt tiền 8m5 công năng 4 phòng ngủ
AHACO – Tiên phong áp dụng công nghệ Bim vào trong bản vẽ thiết kế giúp quý vị xây nhà nhàn tênh, đọc bản vẽ dễ hiểu dễ giám sát thợ dù không có chuyên môn và đặc biệt công nghệ này giúp thống kê được các nguyên vật liệu cần dùng và số lượng chính xác để gia chủ kiểm soát tốt hơn chi phí xây dựng của ngôi nhà với các số liệu được cập nhật kịp thời, cụ thể và rõ ràng.

Kết luận
Mẫu biệt thự 2 tầng mặt tiền 8m5 công năng 4 phòng ngủ là lựa chọn lý tưởng cho những gia đình mong muốn một không gian sống rộng rãi, tiện nghi và thẩm mỹ. Với thiết kế hiện đại, bố trí công năng khoa học và chi phí hợp lý, đây là mẫu nhà đang được nhiều gia chủ lựa chọn trong năm 2026.
Nếu được thiết kế bởi đội ngũ kiến trúc sư chuyên nghiệp, mẫu biệt thự này không chỉ đẹp về hình thức mà còn đảm bảo công năng sử dụng lâu dài, mang đến tổ ấm hoàn hảo cho cả gia đình.
DỰ ÁN LIÊN QUAN
Mẫu nhà 2 tầng 1 tum mặt tiền 8m
Mr Thế Anh

