Mẫu biệt thự 2 tầng 9.5 x 14 m mái nhật 4 phòng ngủ
Phú Thọ
Đã xem: 21
Mã dự án:

- Diện tích: 9.5 x 14 m
- Phòng ngủ: 4
- Số tầng: 2
- Tầng hầm:
- Khách hàng: Mr Thái
- Địa chỉ: Phú Thọ
- Chi phí đầu tư:
Mô tả dự án
Trong xu hướng kiến trúc hiện nay, mẫu biệt thự 2 tầng mái Nhật đang trở thành lựa chọn hàng đầu của nhiều gia đình nhờ vẻ đẹp thanh lịch, bền bỉ và tối ưu công năng. Với kích thước mặt tiền 9.5m và chiều sâu 14m, ngôi nhà không chỉ mang lại không gian sống rộng rãi mà còn khẳng định vị thế của gia chủ.
Phối cảnh ngoại thất biệt thự 2 tầng 9.5 x 14 m mái nhật 4 phòng ngủ
Ngôi biệt thự hai tầng sừng sững, hiện đại và tinh tế, là một tác phẩm kiến trúc đầy ấn tượng. Nhìn từ xa, mái nhà dốc màu xám đen, với những đường nét góc cạnh rõ ràng, tạo cảm giác kiên cố và vững chãi, như một vòng tay che chở ấm áp cho tổ ấm. Lớp ngói lợp đều tăm tắp, phản chiếu ánh mặt trời nhè nhẹ, càng làm tăng thêm vẻ đẹp trang nhã và cổ điển cho ngôi nhà. Những ô cửa sổ kính lớn, được bao quanh bởi khung đen sang trọng, mở ra một thế giới tràn ngập ánh sáng tự nhiên. Bên trong nhà, những rèm cửa trắng muốt, nhẹ nhàng bay bổng, tạo nên một không gian sống thanh bình và thư thái.

Ban công ở tầng hai rộng rãi, với lan can kính trong suốt, là nơi lý tưởng để gia chủ có thể thư giãn và tận hưởng không gian thoáng đãng. Những chậu cây xanh mướt, được bài trí tinh tế, mang lại sắc xanh tươi tắn cho ngôi nhà, làm dịu đi nét hiện đại và cứng nhắc của kiến trúc. Những bức tường trắng tinh khôi, được tô điểm bởi các mảng đá ốp màu xám, tạo nên sự hài hòa và sang trọng. Hệ thống đèn chiếu sáng bên ngoài được bố trí hợp lý, giúp ngôi nhà luôn lung linh và huyền ảo về đêm.



Ngôi biệt thự không chỉ là một công trình kiến trúc đẹp mắt mà còn là một không gian sống lý tưởng, nơi bạn có thể tìm thấy sự bình yên và hạnh phúc bên những người thân yêu. Đó là một tổ ấm tràn đầy tình thương và sự ấm áp, nơi mỗi góc nhỏ đều mang đậm dấu ấn riêng của gia chủ.
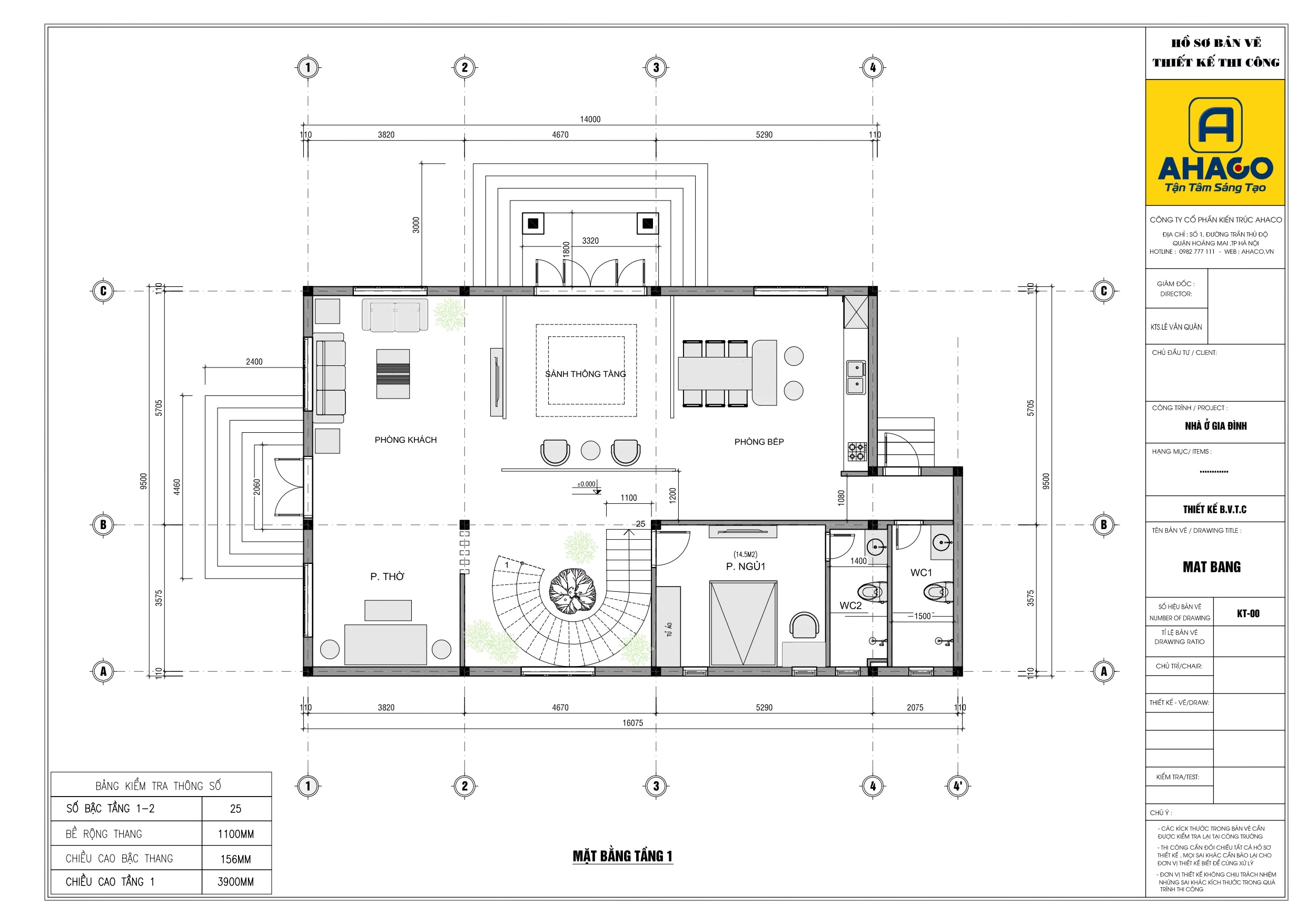
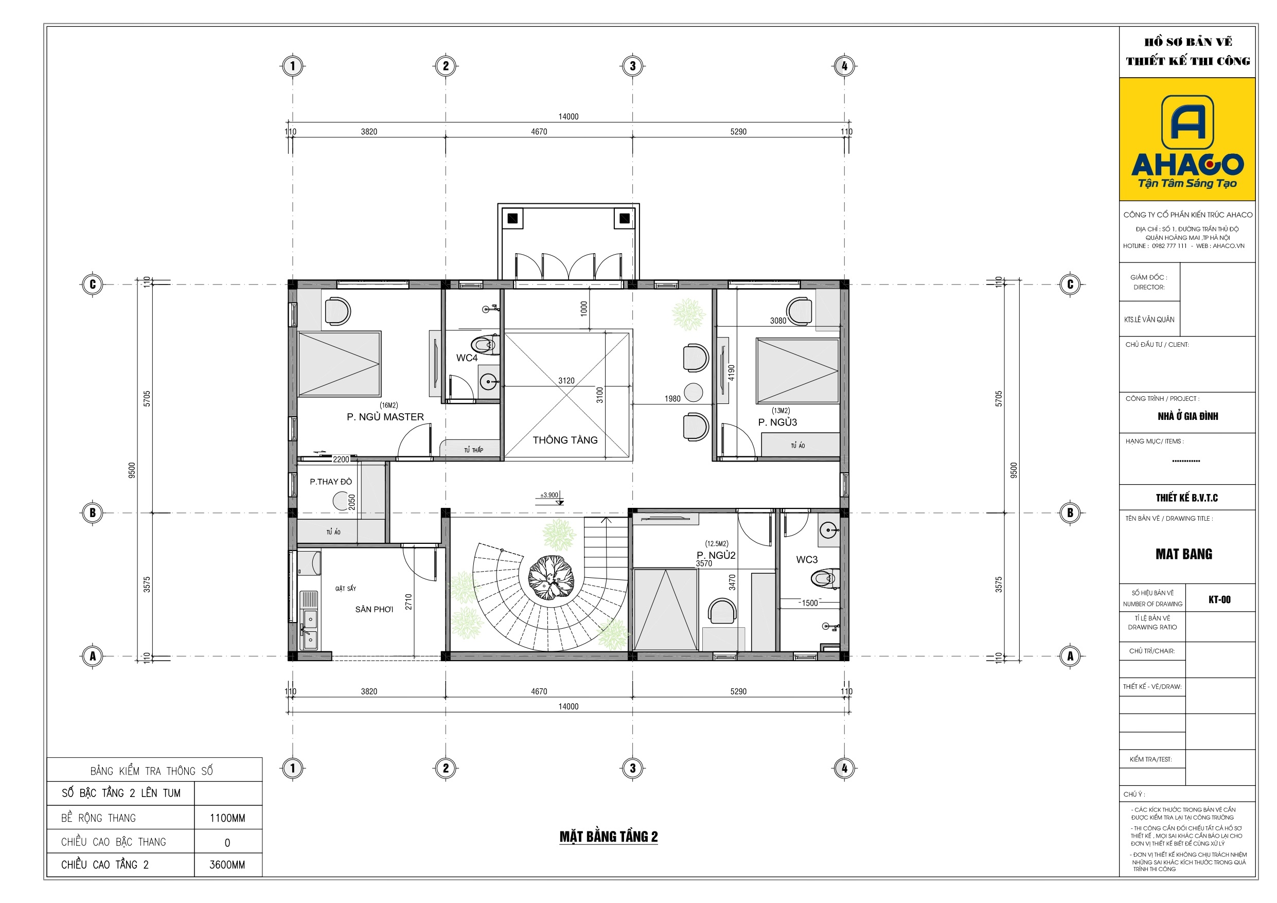
Mặt bằng công năng biệt thự 2 tầng 9.5 x 14 m mái nhật 4 phòng ngủ
Chia sẻ với chúng tôi, anh Thái mong muốn có 1 mẫu biệt thự đẹp đẽ phong cách hiện đại. Với 1 diện tích không quá lớn 9.5m*14m căn biệt thự được xây lùi về phía sau để chừa lại 1 khoảng sân để xe và sinh hoạt của gia đình, hạn chế khói bụi vào nhà. Sau khi khảo sát vị trí khu đất chúng tôi đã thiết kế cho anh mẫu biệt thự 2 tầng đẹp hút hồn với công năng sau đây.
Công năng tầng 1
1 Phòng khách
1 Phòng bếp + ăn
1 Phòng ngủ
1 Phòng thờ
2 WC

Công năng tầng 2
3 Phòng ngủ
1 Phòng thay đồ
2 WC
1 Ban công nhỏ

Kết luận
Mẫu biệt thự 2 tầng 9.5 x 14m mái Nhật 4 phòng ngủ là giải pháp hoàn hảo cho những ai đang tìm kiếm một không gian sống tiện nghi, thẩm mỹ và bền vững. Thiết kế không chỉ đáp ứng công năng mà còn thể hiện gu thẩm mỹ hiện đại, phù hợp xu hướng xây dựng năm 2026.

