Cải tạo nhà phố 2 tầng 1 tum 5×14.5m
Chương Mỹ
Đã xem: 34
Mã dự án:

- Diện tích: 5 x 14.5 m
- Phòng ngủ: 3
- Số tầng: 3
- Tầng hầm:
- Khách hàng: Mr Doanh
- Địa chỉ: Chương Mỹ
- Chi phí đầu tư: 562 triệu
Mô tả dự án
Bạn đang sở hữu một ngôi nhà cũ diện tích 5×14.5m và cảm thấy chật chội, bí bách? Việc thiết kế cải tạo nhà phố 2 tầng 1 tum chính là giải pháp “vàng” giúp gia tăng diện tích sử dụng, đón ánh sáng tự nhiên và nâng tầm thẩm mỹ cho tổ ấm của bạn.
Phối cảnh ngoại thất sau cải tạo nhà phố 2 tầng 1 tum 5×14.5m
Ngôi nhà phố 2 tầng 1 tum với kích thước 5×14.5m hiện lên như một điểm nhấn tinh tế giữa dãy nhà liền kề, mang đậm hơi thở hiện đại nhưng vẫn gần gũi và ấm áp. Ngay từ ánh nhìn đầu tiên, tổng thể công trình gây ấn tượng bởi hình khối vuông vức, gọn gàng, được xử lý khéo léo bằng những đường cong mềm mại ở các góc ban công và mái đua, tạo nên sự cân bằng giữa mạnh mẽ và uyển chuyển.
Mặt tiền ngôi nhà được thiết kế theo phong cách tối giản, lấy gam màu trắng làm chủ đạo. Sắc trắng tinh khôi không chỉ giúp công trình trở nên nổi bật mà còn tạo cảm giác rộng rãi, thoáng đãng cho không gian vốn có chiều ngang hạn chế. Trên nền trắng ấy, các chi tiết ốp gỗ màu nâu ấm ở trần ban công và khu vực mái hiên trở thành điểm nhấn đầy tinh tế, mang lại cảm giác gần gũi, sang trọng và có chiều sâu cho mặt đứng.

Phía trước là hệ cổng hiện đại với sự kết hợp giữa kim loại sơn tĩnh điện và các mảng ốp giả gỗ, tạo nên vẻ đẹp vừa chắc chắn vừa thẩm mỹ. Những nan dọc của cổng giúp không gian phía trong không bị bí bách, đồng thời tăng tính an toàn. Ngay sau cổng là khoảng sân nhỏ đủ để làm nơi để xe hoặc trồng thêm cây xanh, tạo lớp đệm chuyển tiếp nhẹ nhàng giữa bên ngoài và không gian sống bên trong.
Tầng một được che phủ bởi mái kính phẳng, thiết kế dạng canopy vươn ra phía trước. Lớp kính trong suốt kết hợp khung kim loại mảnh giúp che mưa nắng hiệu quả mà vẫn đảm bảo ánh sáng tự nhiên tràn vào. Bên dưới lớp mái này, ánh đèn vàng âm trần được bố trí khéo léo, khi đêm xuống sẽ tạo nên một không gian ấm áp, sang trọng, khiến ngôi nhà trở nên nổi bật và cuốn hút hơn.

Lên đến tầng hai, ban công được thiết kế rộng rãi với lan can kính cường lực trong suốt. Chất liệu kính giúp mở rộng tầm nhìn, tạo cảm giác nhẹ nhàng, thanh thoát cho toàn bộ mặt tiền. Các góc ban công được bo tròn mềm mại, phá vỡ sự khô cứng của các khối hộp, đồng thời tăng thêm tính thẩm mỹ. Trên ban công, những chậu cây xanh được bố trí dọc theo mép tường, từ cây lá nhỏ đến cây dáng cao, tạo nên một “khu vườn treo” nhỏ xinh, mang thiên nhiên len lỏi vào từng tầng không gian.
Phía trên cùng là tầng tum – điểm nhấn đặc biệt của toàn bộ công trình. Khu vực này được thiết kế như một không gian thư giãn mở, với mái che kết hợp giữa trần ốp gỗ và hệ lam chắn nắng. Những thanh lam vừa có tác dụng giảm bức xạ nhiệt, vừa tạo hiệu ứng ánh sáng đẹp mắt khi nắng chiếu qua. Ban công tầng tum cũng được bố trí cây xanh, tạo nên một khoảng xanh trên cao – nơi gia chủ có thể tận hưởng không khí trong lành, ngắm nhìn phố xá từ trên cao.

Một chi tiết không thể bỏ qua là hệ cửa kính lớn xuyên suốt các tầng. Những mảng kính rộng giúp ánh sáng tự nhiên tràn ngập vào bên trong, đồng thời tạo sự kết nối giữa nội thất và ngoại thất. Khi nhìn từ bên ngoài, lớp rèm bên trong kết hợp với ánh sáng vàng dịu nhẹ tạo nên cảm giác ấm cúng, sang trọng và rất “có hồn”.
Bên cạnh đó, các mảng tường được xử lý bằng những đường cắt lõm, tạo chiều sâu và hiệu ứng đổ bóng thú vị dưới ánh nắng. Sự kết hợp giữa khối đặc và khoảng rỗng, giữa vật liệu thô và vật liệu hoàn thiện bóng, tất cả hòa quyện để tạo nên một tổng thể hài hòa, không hề đơn điệu.
Không gian xung quanh nhà cũng được chăm chút kỹ lưỡng với hàng cây xanh chạy dọc theo hàng rào. Lớp cây này không chỉ giúp tăng tính riêng tư mà còn góp phần điều hòa không khí, giảm bụi và tiếng ồn từ bên ngoài. Sự hiện diện của cây xanh ở cả tầng trệt lẫn các tầng trên tạo nên một tổng thể “xanh” xuyên suốt, mang lại cảm giác thư thái, dễ chịu cho gia chủ mỗi khi trở về.

Tổng thể, ngôi nhà phố 2 tầng 1 tum 5×14.5m không chỉ là một công trình kiến trúc đơn thuần mà còn là sự kết hợp hài hòa giữa thẩm mỹ, công năng và cảm xúc. Từng chi tiết nhỏ đều được chăm chút tỉ mỉ, từ màu sắc, vật liệu đến ánh sáng và cây xanh. Dù nằm giữa khu đô thị đông đúc, ngôi nhà vẫn giữ được nét riêng biệt, nhẹ nhàng nhưng đầy cuốn hút – như một khoảng lặng tinh tế giữa nhịp sống hối hả.
Phối cảnh bóc mái sau cải tạo nhà phố 2 tầng 1 tum 5×14.5m





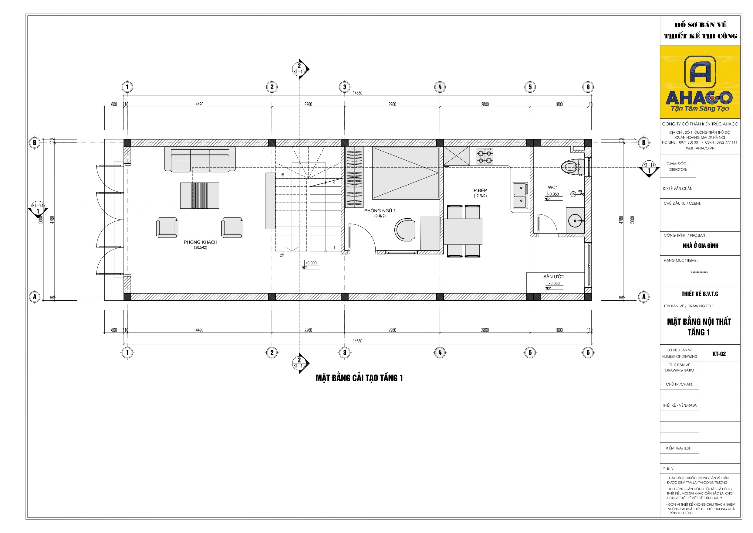
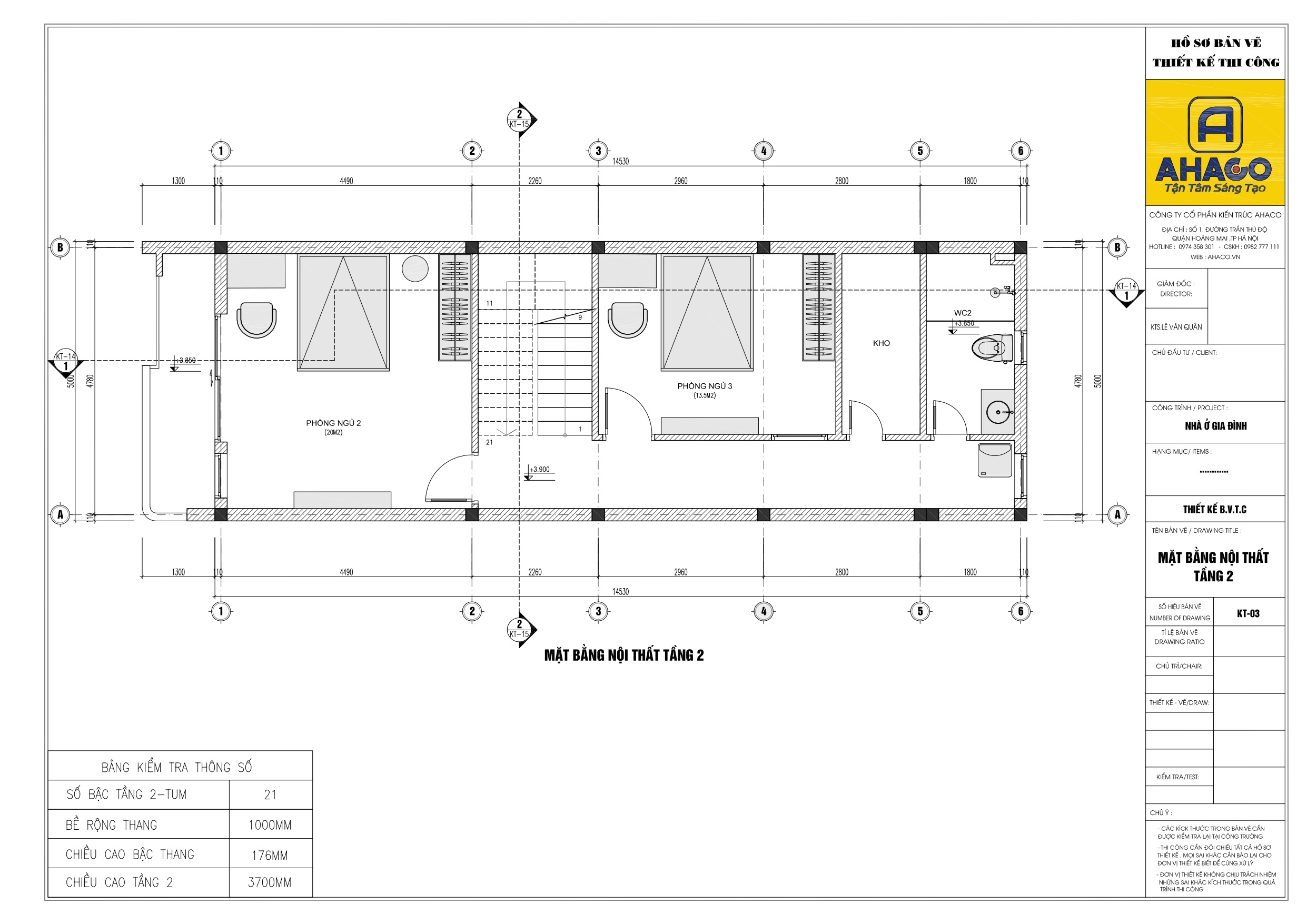
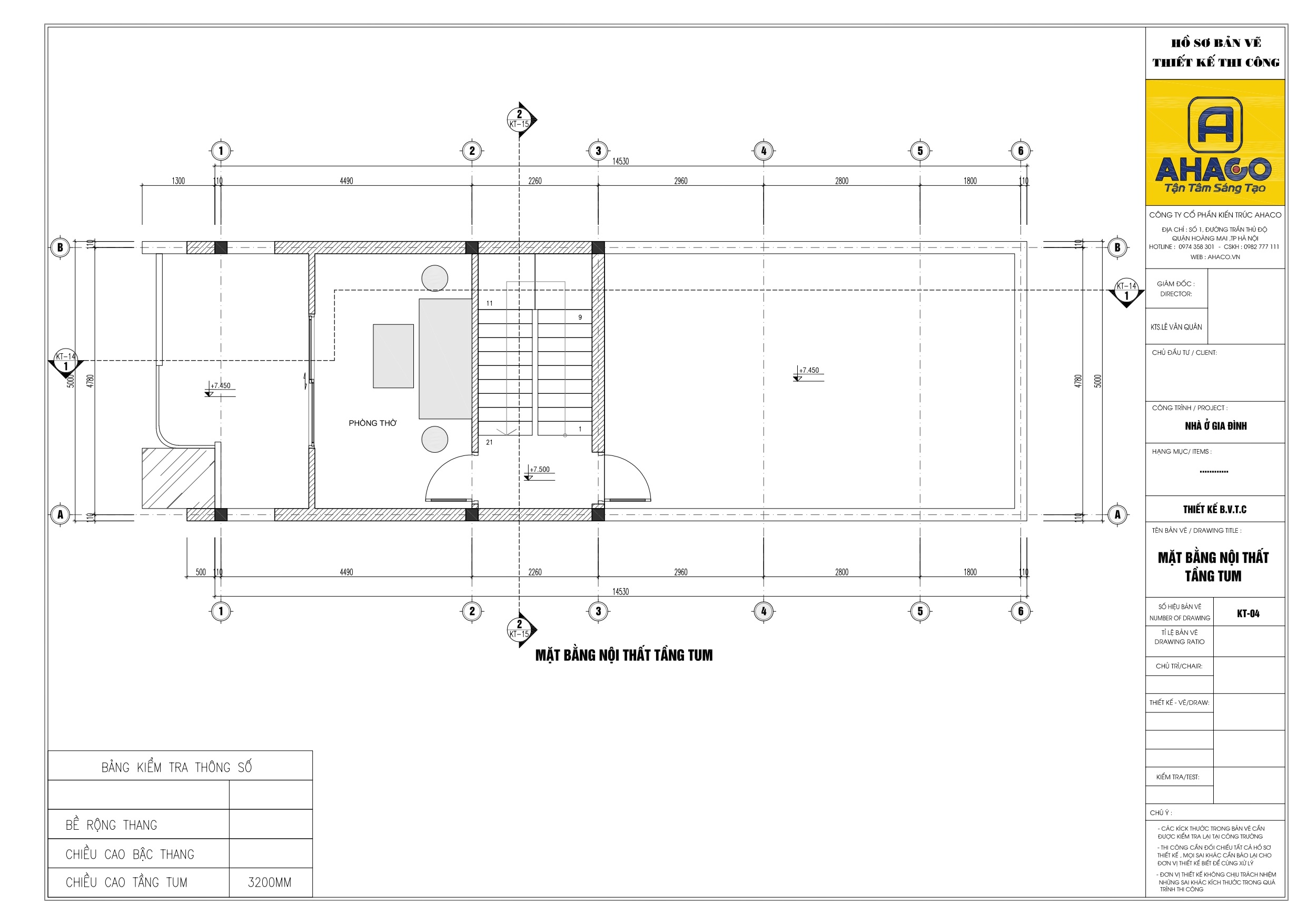
Mặt bằng công năng sau cải tạo nhà phố 2 tầng 1 tum 5×14.5m



Bảng chi phí cải tạo phần thô nhà phố 2 tầng 1 tum 5×14.5m
AHACO – Tiên phong áp dụng công nghệ Bim vào trong bản vẽ thiết kế. Dựa vào bảng dự toán chi phí xây thô, quý vị có thể mua và đặt cọc trước nguyên vật liệu để giữ giá, giúp dự trù kinh phí thực tế để tránh phát sinh trong quá trình thi công. Và còn giúp mình chủ động gọi nguyên vật liệu trong quá trình xây dựng. Như quý vị đang thấy ở đây là bảng dự toán chi phí xây thô của công trình có địa chỉ tại Chương Mỹ ; chi phí gạch xây là 45 triệu đồng, chi phí cát xây là 13 triệu, chi phí nhân công xây dựng vào khoảng 201 triệu và tổng chi phí xây thô của công trình này vào khoảng 562 triệu đồng quý vị nhé!

Kết luận
Cải tạo nhà phố 2 tầng 1 tum 5×14.5m là một hành trình biến cũ thành mới đầy thú vị. Nếu được đầu tư đúng cách về thiết kế, bạn sẽ sở hữu một không gian sống không kém gì những căn biệt thự phố sang trọng.
DỰ ÁN LIÊN QUAN
Mẫu nhà 2 tầng 1 tum mặt tiền 8m
Mr Thế Anh

