Nhà cấp 4 hình chữ T đang trở thành một xu hướng thiết kế phổ biến nhờ vào tính tiện nghi, đơn giản nhưng lại đầy đủ công năng. Với cấu trúc độc đáo, mẫu nhà này mang lại không gian sống rộng rãi, thoải mái và dễ dàng sử dụng cho nhiều gia đình. Nếu bạn đang tìm kiếm một mẫu nhà cấp 4 hình chữ T cho tổ ấm của mình, hãy cùng khám phá những lựa chọn hot nhất hiện nay trong bài viết dưới đây!
Nhà Cấp 4 Hình Chữ T Là Gì?
Trước khi đi vào chi tiết các mẫu nhà, chúng ta cần hiểu rõ nhà cấp 4 hình chữ T là gì. Đây là mẫu nhà có thiết kế dạng chữ T, với phần chính giữa rộng và dài, trong khi hai cánh của chữ T sẽ tạo thành các phòng phụ. Mẫu nhà này giúp tối ưu hóa diện tích sử dụng, mang lại không gian sống thoải mái, dễ dàng trong việc phân chia công năng các phòng.
Ưu Điểm Của Nhà Cấp 4 Hình Chữ T
- Tối Ưu Hóa Diện Tích
Nhà cấp 4 hình chữ T rất phù hợp với những lô đất có diện tích trung bình hoặc dài, giúp tận dụng tối đa không gian xây dựng. Mẫu nhà này dễ dàng chia các khu vực phòng khách, phòng ngủ, phòng bếp, và phòng tắm, tạo sự thuận tiện cho việc sinh hoạt. - Thiết Kế Đơn Giản, Tinh Tế
Mẫu nhà cấp 4 hình chữ T không yêu cầu quá nhiều chi tiết phức tạp, mang lại sự tối giản và tinh tế trong thiết kế. Các không gian trong nhà được phân chia một cách hợp lý, tạo ra sự thoải mái cho người sử dụng. - Tiết Kiệm Chi Phí Xây Dựng
Với kết cấu đơn giản, nhà cấp 4 hình chữ T không cần nhiều vật liệu xây dựng và công sức thi công phức tạp. Điều này giúp giảm thiểu chi phí xây dựng, phù hợp với nhiều gia đình có ngân sách hạn chế. - Phù Hợp Với Mọi Diện Tích Đất
Mẫu nhà này có thể được điều chỉnh để phù hợp với mọi diện tích đất, từ các khu đất dài hẹp cho đến những mảnh đất rộng. Điều này tạo sự linh hoạt trong thiết kế và thi công.
Các Mẫu Nhà Cấp 4 Hình Chữ T Hot Nhất Hiện Nay
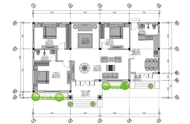
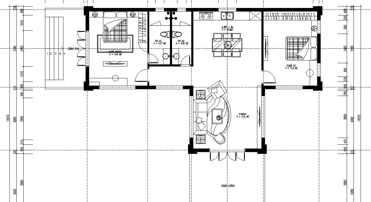
1. Mẫu Nhà Cấp 4 Hình Chữ T 3 Phòng Ngủ
Mẫu nhà này có thiết kế đơn giản nhưng không kém phần hiện đại, với 3 phòng ngủ và một không gian sinh hoạt chung rộng rãi. Phòng khách, phòng bếp và phòng ăn được thiết kế liên thông, giúp không gian trở nên thông thoáng và tiện lợi. Phần cánh của chữ T có thể sử dụng làm phòng ngủ hoặc phòng làm việc, tùy thuộc vào nhu cầu của gia đình.
Ưu điểm:
- Đầy đủ công năng cho gia đình 4-5 người.
- Không gian sinh hoạt chung thoải mái.
- Kiến trúc hiện đại, đơn giản.


2. Mẫu Nhà Cấp 4 Hình Chữ T Với Sân Vườn
Đây là mẫu thiết kế lý tưởng cho những gia đình yêu thích không gian sống gần gũi với thiên nhiên. Nhà cấp 4 hình chữ T có phần sân vườn rộng rãi ở phía trước và phía sau, mang lại một không gian sống thoáng đãng. Bên trong nhà, các phòng được phân chia hợp lý với không gian mở, tạo cảm giác rộng rãi và thoải mái.
Ưu điểm:
- Thiết kế sân vườn tạo không gian thư giãn.
- Không gian trong nhà rộng rãi, thoáng đãng.
- Phù hợp cho gia đình yêu thích sự yên tĩnh.


3. Mẫu Nhà Cấp 4 Hình Chữ T Mái Bằng
Mái Bằng đang trở thành một lựa chọn phổ biến trong các thiết kế nhà cấp 4 hiện đại. Mẫu nhà cấp 4 hình chữ T kết hợp với mái Bằng mang đến sự thanh thoát, hiện đại nhưng vẫn giữ được sự gần gũi, ấm cúng. Các cánh của chữ T có thể sử dụng làm phòng ngủ và phòng làm việc, trong khi phần trung tâm là không gian sinh hoạt chung.
Ưu điểm:
- Mái Bằng giúp ngôi nhà thêm hiện đại .
- Thiết kế thông minh, tối ưu diện tích.
- Phù hợp với mọi điều kiện khí hậu.


4. Mẫu Nhà Cấp 4 Hình Chữ T Với Gara Ô Tô
Đối với những gia đình sở hữu ô tô, mẫu nhà cấp 4 hình chữ T có gara là sự lựa chọn tuyệt vời. Gara ô tô được thiết kế ngay phía trước, giúp tiết kiệm diện tích đất và tạo sự thuận tiện khi di chuyển. Bên trong, nhà được bố trí với 3 phòng ngủ, phòng khách, phòng bếp và phòng tắm, tất cả đều được liên kết với nhau thông qua hành lang rộng rãi.
Ưu điểm:
- Phù hợp với gia đình có ô tô.
- Không gian sống đầy đủ tiện nghi.
- Thiết kế tiện lợi, hợp lý.

5. Mẫu Nhà Cấp 4 Hình Chữ T Mái Thái
Nhà cấp 4 hình chữ T mái Thái đang là xu hướng được nhiều gia đình Việt Nam lựa chọn nhờ sự kết hợp hài hòa giữa nét đẹp truyền thống và tiện nghi hiện đại. Kiểu nhà này không chỉ mang đến không gian sống rộng rãi, thoáng mát mà còn thể hiện gu thẩm mỹ tinh tế của gia chủ.
Ưu điểm:
- Không gian sống linh hoạt: Hình dáng chữ T giúp phân chia không gian chức năng rõ ràng, tạo ra các khu vực riêng tư và chung tiện nghi.
- Mái Thái truyền thống: Mái ngói dốc giúp thoát nước nhanh, chống nóng hiệu quả, phù hợp với khí hậu nhiệt đới của Việt Nam.
- Thẩm mỹ cao: Kết hợp giữa kiến trúc truyền thống và hiện đại tạo nên vẻ đẹp độc đáo, sang trọng.


Kết Luận
Nhà cấp 4 hình chữ T là lựa chọn lý tưởng cho những ai muốn sở hữu một không gian sống thoải mái, tiện nghi và tiết kiệm chi phí. Với nhiều mẫu mã đa dạng từ 3 phòng ngủ, có sân vườn, mái Thái đến có gara ô tô, bạn có thể dễ dàng lựa chọn được mẫu nhà phù hợp với nhu cầu và diện tích đất của gia đình. Nếu bạn đang tìm kiếm một ngôi nhà vừa đẹp, vừa tiện ích, đừng bỏ qua những mẫu nhà cấp 4 hình chữ T này!
| ✅ Thiết kế nhà đẹp | ⭐ Tư vấn 24/7 |
| ✅ Xây nhà trọn gói | ⭐ Chuyên nghiệp - Uy tín |
| ✅ Cải tạo nhà trọn gói | ⭐ Từ A - Z |
| ✅ Giám sát công trình | ⭐ Đảm bảo tiến độ - Chất lượng |


